| 1 | | FUL | FULFILLMENT DEED | ASCOLI REVOCABLE LIVING TRUST | SORENSEN KHALID LIEF & TIFFANEY ESTELLE | | | | 0 | 2021-07570 |
| 2 | 12/31/2020 | REAL ESTAT | REAL ESTATE CONTRACT | ASCOLI REVOCABLE LIVING TRUST | SORENSEN KHALID LIEF & TIFFANEY ESTELLE | | | $260,000.00 | 140652 | 2020-14052 |
| 3 | 05/19/2017 | QCD | QUIT CLAIM DEED | ASCOLI LOUIS J & YVONNE C | ASCOLI REVOCABLE LIVING TRUST | | | $0.00 | 132435 | 2017-03807 |
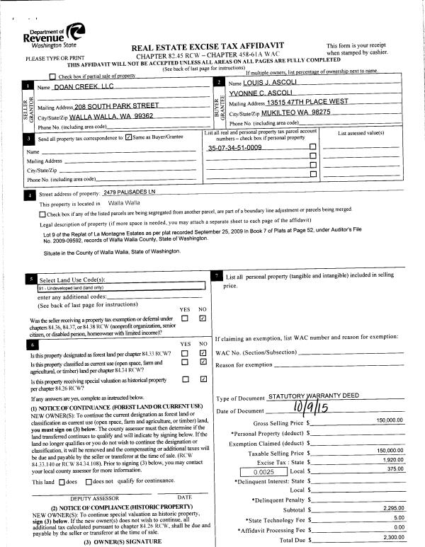
| 4 | 10/09/2015 | SWD | STATUTORY WARRANTY DEED | DOAN CREEK LLC | ASCOLI LOUIS J & YVONNE C | | | $150,000.00 | 128980 | 2015-08924 |
| 5 | 09/20/2011 | WARRANTY D | WARRANTY DEED | "CENTURY PLACE LLC, MARK~FREDL | | | | | 0 | 2011-07324 |
| 6 | 09/06/2011 | WARRANTY D | WARRANTY DEED | WALLA WALLA COUNTY~SHERIFF | DOAN CREEK LLC | | | | 0 | 2011-06932 |
| 7 | 02/01/2011 | QCD | QUIT CLAIM DEED | CENTURY PLACE LLC | BANK OF WHITMAN | | | | 119679 | 2011-01014 |
| 8 | 08/28/2007 | WARRANTY D | WARRANTY DEED | RIETZ CENTURY PLACE LLC | CENTURY PLACE LLC | | | | 113602 | 2007-10126 |