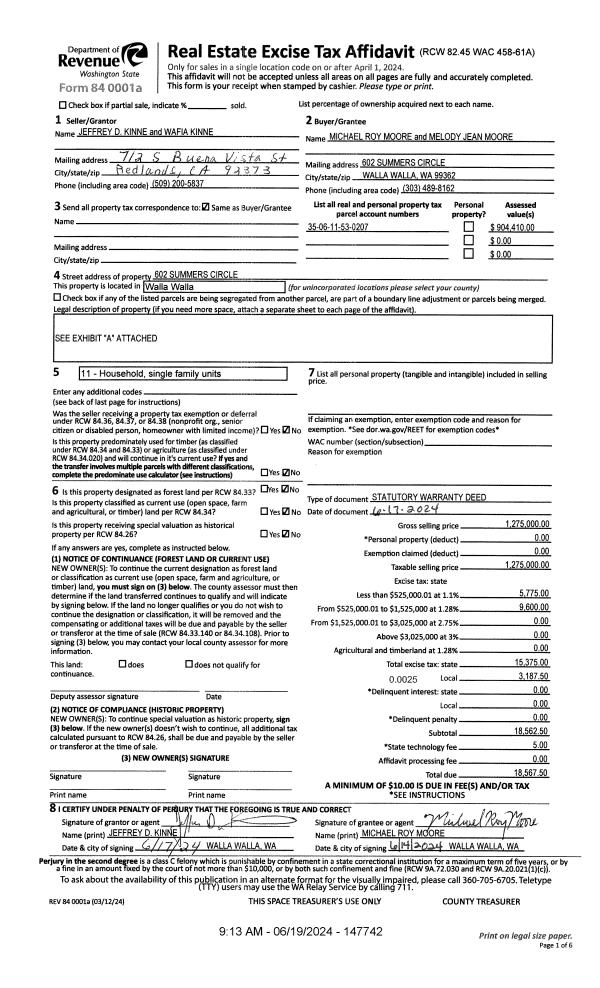
Property
Account |
| Property ID: | 23039 | Abbreviated Legal Description: | HILL TOP ACRES PHASE 2 LOT 7 BLOCK 2 |
| Parcel Number: | 350611530207 | Agent Code: | |
| Type: | Real | | |
| Tax Area: | 311 - 250-4 | Land Use Code | 11 |
| Open Space: | N | DFL | N |
| Historic Property: | N | Remodel Property: | N |
| Multi-Family Redevelopment: | N | | |
| Township: | 6 | Section: | 11 |
| Range: | 35 |
Location |
| Address: | 602 SUMMERS CIRCLE WA 99362 | Mapsco: | |
| Neighborhood: | G SFR Rural | Map ID: | |
| Neighborhood CD: | 214013 |
Owner |
| Name: | KINNE JEFFREY D & WAFIA | Owner ID: | 50456 |
| Mailing Address: | 602 SUMMERS CIRCLE WALLA WALLA, WA 99362 | % Ownership: | 100.0000000000% |
| | | Exemptions: | |
Taxes and Assessment Details
Values
| (+) Improvement Homesite Value: | + | $0 | |
| (+) Improvement Non-Homesite Value: | + | $778,590 | |
| (+) Land Homesite Value: | + | $0 | |
| (+) Land Non-Homesite Value: | + | $125,820 | |
| (+) Curr Use (HS): | + | $0 | $0 |
| (+) Curr Use (NHS): | + | $0 | $0 |
| | | -------------------------- | |
| (=) Market Value: | = | $904,410 | |
| (–) Productivity Loss: | – | $0 | |
| | | -------------------------- | |
| (=) Subtotal: | = | $904,410 | |
| (+) Senior Appraised Value: | + | $0 | |
| (+) Non-Senior Appraised Value: | + | $904,410 | |
| | | -------------------------- | |
| (=) Total Appraised Value: | = | $904,410 | |
| (–) Senior Exemption Loss: | – | $0 | |
| (–) Exemption Loss: | – | $0 | |
| | | -------------------------- | |
| (=) Taxable Value: | = | $904,410 | |
Taxing Jurisdiction
| Owner: | KINNE JEFFREY D & WAFIA | | |
| % Ownership: | 100.0000000000% | | |
| Total Value: | $904,410 | | |
| Tax Area: | 311 - 250-4 |
| CERFD | CURRENT EXPENSE REFUND 010 | 0.0000000000 | $904,410 | $904,410 | $0.00 | | |
| CURREXP | CURRENT EXPENSE 010 | 1.0175366760 | $904,410 | $904,410 | $920.27 | | |
| HUMNSERV | HUMAN SERVICES 119 | 0.0250000000 | $904,410 | $904,410 | $22.61 | | |
| SLDREL | SOLDIERS RELIEF 121 | 0.0155990005 | $904,410 | $904,410 | $14.11 | | |
| EMERGSER | EMS 147 | 0.3792580840 | $904,410 | $904,410 | $343.00 | | |
| EMSRFD | EMS REFUND 147 | 0.0000000000 | $904,410 | $904,410 | $0.00 | | |
| FD4EXP | FD #4 EXPENSE 686 | 0.8836993059 | $904,410 | $904,410 | $799.23 | | |
| RLBRFD | RURAL LIBRARY REFUND 623 | 0.0000000000 | $904,410 | $904,410 | $0.00 | | |
| RURALLIB | RURAL LIBRARY 623 | 0.3710609029 | $904,410 | $904,410 | $335.59 | | |
| PORTRFD | PORT REFUND 640 | 0.0000000000 | $904,410 | $904,410 | $0.00 | | |
| PORTWWGEN | PORT OF WW 640 | 0.2460186015 | $904,410 | $904,410 | $222.50 | | |
| SD250BOND | SD #250 BOND 773 | 1.4560608159 | $904,410 | $904,410 | $1,316.88 | | |
| SD250GEN | SD #250 GENERAL 770 | 2.3880724087 | $904,410 | $904,410 | $2,159.80 | | |
| ST2 | STATE SCHOOL PART 2 600 | 0.8131451643 | $904,410 | $904,410 | $735.42 | | |
| STATESCHL | STATE SCHOOL 600 | 1.5158548041 | $904,410 | $904,410 | $1,370.95 | | |
| STREFUND | STATE REFUND LEVY 603 | 0.0000000000 | $904,410 | $904,410 | $0.00 | | |
| COROAD | COUNTY ROAD 115 | 1.6549953990 | $904,410 | $904,410 | $1,496.79 | | |
| CRPRD | COUNTY ROAD REFUND 115 | 0.0000000000 | $904,410 | $904,410 | $0.00 | | |
| | Total Tax Rate: | 10.7663011628 | | | | | |
| | | | | Taxes w/Current Exemptions: | $9,737.15 | | |
| | | | | Taxes w/o Exemptions: | $9,737.15 | | |
Improvement / Building
| Improvement #1: | RESIDENTIAL | State Code: | 11 | 2901.0 sqft | Value: | $778,590 |
| Exterior Wall: | HARDBOARD | Heating/Cooling: | HEAT PUMP | | Number of Bathrooms: | 4 | Number of Bedrooms: | 5 | | Plumbing: | 19 | Roof Covering: | COMP SHINGLE |
|
| | Type | Description | Class CD | Sub Class CD | Year Built | Area |
| | MA | Main Area | 1 | 45 | 2012 | 2901.0 |
| | SI1 | SITE IMPROVEMENT | 1 | 45 | 2012 | 4.0 |
| | BASE | BASEMENT | 1 | 45 | 2012 | 2901.0 |
| | BPF | BASEMENT -PARTITIONED FINISH | 1 | 45 | 2012 | 1348.0 |
| | GFP | GAS FIREPLACE | 1 | 45 | 2012 | 1.0 |
| | RPC | OPEN PORCH W/ROOF , CEILED | 1 | 45 | 2012 | 90.0 |
| | BLW | WOOD BALCONIES | 1 | 45 | 2012 | 306.0 |
| | ATG | Attached Garage | 1 | 45 | 2012 | 774.0 |
Sketch
Property Image
Land
| 1 | RES 1 | Converted: Residential | 2.0900 | 91040.40 | 0.00 | 0.00 | 1.00 | $125,820 | $0 |
Roll Value History
| 2026 | N/A | N/A | N/A | N/A | N/A |
| 2025 | $1,090,020 | $125,820 | $0 | $1,215,840 | $1,215,840 |
| 2024 | $778,590 | $125,820 | $0 | $904,410 | $904,410 |
| 2023 | $778,590 | $125,820 | $0 | $904,410 | $904,410 |
| 2022 | $778,590 | $125,820 | $0 | $904,410 | $904,410 |
| 2021 | $471,870 | $125,820 | $0 | $597,690 | $597,690 |
| 2020 | $455,700 | $90,000 | $0 | $545,700 | $545,700 |
| 2019 | $455,700 | $90,000 | $0 | $545,700 | $545,700 |
| 2018 | $455,700 | $90,000 | $0 | $545,700 | $545,700 |
| 2017 | $455,700 | $90,000 | $0 | $545,700 | $545,700 |
| 2016 | $434,000 | $90,000 | $0 | $524,000 | $524,000 |
| 2015 | $434,000 | $90,000 | $0 | $524,000 | $524,000 |
| 2014 | $434,000 | $90,000 | $0 | $524,000 | $524,000 |
| 2013 | $434,000 | $90,000 | $0 | $524,000 | $524,000 |
| 2012 | $0 | $135,000 | $0 | $0 | $0 |
| 2011 | $0 | $135,000 | $0 | $0 | $0 |
| 2010 | $0 | $155,000 | $0 | $0 | $0 |
| 2009 | $0 | $155,000 | $0 | $0 | $0 |
| 2008 | $0 | $8,100 | $0 | $0 | $0 |
| 2007 | $0 | $8,100 | $0 | $0 | $0 |
Deed and Sales History
| 1 | 06/19/2024 | SWD | STATUTORY WARRANTY DEED | KINNE JEFFREY D & WAFIA | MOORE MICHAEL ROY & MELODY JEAN | | | $1,275,000.00 | 147742 | 2024-03261 |
| 2 | 11/02/2011 | WARRANTY D | WARRANTY DEED | GRAND VISTA ESTATE DEV LLC | KINNE, JEFFREY D & WAFIA | | | $93,000.00 | 120911 | 2011-08592 |
Payout Agreement
| No payout information available.. |