Property
Account |
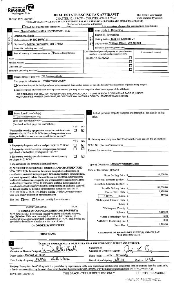
| Property ID: | 23034 | Abbreviated Legal Description: | HILL TOP ACRES PHASE 2 LOT 2 BLOCK 2 |
| Parcel Number: | 350611530202 | Agent Code: | |
| Type: | Real | | |
| Tax Area: | 311 - 250-4 | Land Use Code | 91 |
| Open Space: | N | DFL | N |
| Historic Property: | N | Remodel Property: | N |
| Multi-Family Redevelopment: | N | | |
| Township: | 6 | Section: | 11 |
| Range: | 35 |
Location |
| Address: | SUMMERS CIRCLE WA 99324 | Mapsco: | |
| Neighborhood: | G Land Only Rural | Map ID: | |
| Neighborhood CD: | 214093 |
Owner |
| Name: | BROWNING JODY L & ROBIN E | Owner ID: | 63860 |
| Mailing Address: | 608 SE LANDEN DR COLLEGE PLACE, WA 99324 | % Ownership: | 100.0000000000% |
| | | Exemptions: | |
Taxes and Assessment Details
Property Tax Information as of
02/21/2026
Click on "Statement Details" to expand or collapse a tax statement.
* Please enter a valid date ** Please enter a valid date *
Statement Details |
| | TOTAL: | $0.00 | $0.00 | $0.00 | $0.00 | $0.00 | $0.00 |
|
| | $0.00 | $0.00 | $0.00 | $0.00 | $0.00 | $0.00 |
Values
| (+) Improvement Homesite Value: | + | $0 | |
| (+) Improvement Non-Homesite Value: | + | $0 | |
| (+) Land Homesite Value: | + | $0 | |
| (+) Land Non-Homesite Value: | + | $125,510 | |
| (+) Curr Use (HS): | + | $0 | $0 |
| (+) Curr Use (NHS): | + | $0 | $0 |
| | | -------------------------- | |
| (=) Market Value: | = | $125,510 | |
| (–) Productivity Loss: | – | $0 | |
| | | -------------------------- | |
| (=) Subtotal: | = | $125,510 | |
| (+) Senior Appraised Value: | + | $0 | |
| (+) Non-Senior Appraised Value: | + | $125,510 | |
| | | -------------------------- | |
| (=) Total Appraised Value: | = | $125,510 | |
| (–) Senior Exemption Loss: | – | $0 | |
| (–) Exemption Loss: | – | $0 | |
| | | -------------------------- | |
| (=) Taxable Value: | = | $125,510 | |
Taxing Jurisdiction
| Owner: | BROWNING JODY L & ROBIN E | | |
| % Ownership: | 100.0000000000% | | |
| Total Value: | $125,510 | | |
| Tax Area: | 311 - 250-4 |
| CERFD | CURRENT EXPENSE REFUND 010 | 0.0000000000 | $125,510 | $125,510 | $0.00 | | |
| CURREXP | CURRENT EXPENSE 010 | 1.0175366760 | $125,510 | $125,510 | $127.71 | | |
| HUMNSERV | HUMAN SERVICES 119 | 0.0250000000 | $125,510 | $125,510 | $3.14 | | |
| SLDREL | SOLDIERS RELIEF 121 | 0.0155990005 | $125,510 | $125,510 | $1.96 | | |
| EMERGSER | EMS 147 | 0.3792580840 | $125,510 | $125,510 | $47.60 | | |
| EMSRFD | EMS REFUND 147 | 0.0000000000 | $125,510 | $125,510 | $0.00 | | |
| FD4EXP | FD #4 EXPENSE 686 | 0.8836993059 | $125,510 | $125,510 | $110.91 | | |
| RLBRFD | RURAL LIBRARY REFUND 623 | 0.0000000000 | $125,510 | $125,510 | $0.00 | | |
| RURALLIB | RURAL LIBRARY 623 | 0.3710609029 | $125,510 | $125,510 | $46.57 | | |
| PORTRFD | PORT REFUND 640 | 0.0000000000 | $125,510 | $125,510 | $0.00 | | |
| PORTWWGEN | PORT OF WW 640 | 0.2460186015 | $125,510 | $125,510 | $30.88 | | |
| SD250BOND | SD #250 BOND 773 | 1.4560608159 | $125,510 | $125,510 | $182.75 | | |
| SD250GEN | SD #250 GENERAL 770 | 2.3880724087 | $125,510 | $125,510 | $299.73 | | |
| ST2 | STATE SCHOOL PART 2 600 | 0.8131451643 | $125,510 | $125,510 | $102.06 | | |
| STATESCHL | STATE SCHOOL 600 | 1.5158548041 | $125,510 | $125,510 | $190.25 | | |
| STREFUND | STATE REFUND LEVY 603 | 0.0000000000 | $125,510 | $125,510 | $0.00 | | |
| COROAD | COUNTY ROAD 115 | 1.6549953990 | $125,510 | $125,510 | $207.72 | | |
| CRPRD | COUNTY ROAD REFUND 115 | 0.0000000000 | $125,510 | $125,510 | $0.00 | | |
| | Total Tax Rate: | 10.7663011628 | | | | | |
| | | | | Taxes w/Current Exemptions: | $1,351.28 | | |
| | | | | Taxes w/o Exemptions: | $1,351.28 | | |
Improvement / Building
Sketch
| No sketches available for this property. |
Property Image
Land
| 1 | RES 1 | Converted: Residential | 2.0500 | 89298.00 | 0.00 | 0.00 | 1.00 | $125,510 | $0 |
Roll Value History
| 2026 | N/A | N/A | N/A | N/A | N/A |
| 2025 | $0 | $125,510 | $0 | $125,510 | $125,510 |
| 2024 | $0 | $125,510 | $0 | $125,510 | $125,510 |
| 2023 | $0 | $125,510 | $0 | $125,510 | $125,510 |
| 2022 | $0 | $125,510 | $0 | $125,510 | $125,510 |
| 2021 | $0 | $125,510 | $0 | $125,510 | $125,510 |
| 2020 | $0 | $90,000 | $0 | $90,000 | $90,000 |
| 2019 | $0 | $90,000 | $0 | $90,000 | $90,000 |
| 2018 | $0 | $90,000 | $0 | $90,000 | $90,000 |
| 2017 | $0 | $90,000 | $0 | $90,000 | $90,000 |
| 2016 | $0 | $90,000 | $0 | $90,000 | $90,000 |
| 2015 | $0 | $90,000 | $0 | $90,000 | $90,000 |
| 2014 | $0 | $90,000 | $0 | $90,000 | $90,000 |
| 2013 | $0 | $90,000 | $0 | $90,000 | $90,000 |
| 2012 | $0 | $135,000 | $0 | $0 | $0 |
| 2011 | $0 | $135,000 | $0 | $0 | $0 |
| 2010 | $0 | $155,000 | $0 | $0 | $0 |
| 2009 | $0 | $155,000 | $0 | $0 | $0 |
| 2008 | $0 | $8,000 | $0 | $0 | $0 |
| 2007 | $0 | $8,000 | $0 | $0 | $0 |
Deed and Sales History
| 1 | 08/31/2018 | SWD | STATUTORY WARRANTY DEED | GRAND VISTA ESTATE DEV LLC | BROWNING JODY L & ROBIN E | | | $111,000.00 | 135474 | 2018-07292 |
Payout Agreement
| No payout information available.. |