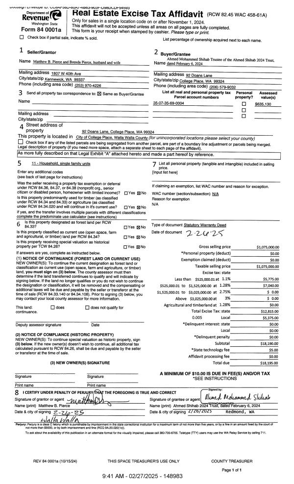
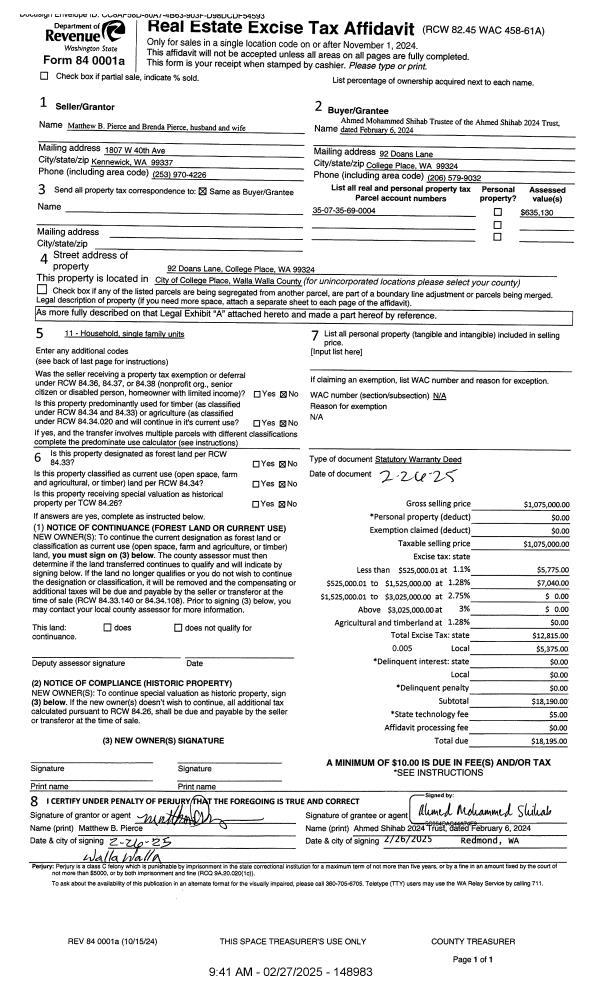
Property
Account |
| Property ID: | 23024 | Abbreviated Legal Description: | HOMESTEAD ACRES PUD LOT 4 |
| Parcel Number: | 350735690004 | Agent Code: | |
| Type: | Real | | |
| Tax Area: | 74 - CP-250-FB | Land Use Code | 11 |
| Open Space: | N | DFL | N |
| Historic Property: | N | Remodel Property: | N |
| Multi-Family Redevelopment: | N | | |
| Township: | 7 | Section: | 35 |
| Range: | 35 |
Location |
| Address: | 92 DOANS LN WA 99324 | Mapsco: | |
| Neighborhood: | G SFR Rural/City Inf S | Map ID: | |
| Neighborhood CD: | 114212 |
Owner |
| Name: | PIERCE MATTHEW B & BRENDA | Owner ID: | 57309 |
| Mailing Address: | 92 SW DOANS COLLEGE PLACE, WA 99324 | % Ownership: | 100.0000000000% |
| | | Exemptions: | |
Taxes and Assessment Details
Values
| (+) Improvement Homesite Value: | + | $0 | |
| (+) Improvement Non-Homesite Value: | + | $513,140 | |
| (+) Land Homesite Value: | + | $0 | |
| (+) Land Non-Homesite Value: | + | $121,990 | |
| (+) Curr Use (HS): | + | $0 | $0 |
| (+) Curr Use (NHS): | + | $0 | $0 |
| | | -------------------------- | |
| (=) Market Value: | = | $635,130 | |
| (–) Productivity Loss: | – | $0 | |
| | | -------------------------- | |
| (=) Subtotal: | = | $635,130 | |
| (+) Senior Appraised Value: | + | $0 | |
| (+) Non-Senior Appraised Value: | + | $635,130 | |
| | | -------------------------- | |
| (=) Total Appraised Value: | = | $635,130 | |
| (–) Senior Exemption Loss: | – | $0 | |
| (–) Exemption Loss: | – | $0 | |
| | | -------------------------- | |
| (=) Taxable Value: | = | $635,130 | |
Taxing Jurisdiction
| Owner: | PIERCE MATTHEW B & BRENDA | | |
| % Ownership: | 100.0000000000% | | |
| Total Value: | $635,130 | | |
| Tax Area: | 74 - CP-250-FB |
| CERFD | CURRENT EXPENSE REFUND 010 | 0.0000000000 | $635,130 | $635,130 | $0.00 | | |
| CURREXP | CURRENT EXPENSE 010 | 1.0175366760 | $635,130 | $635,130 | $646.27 | | |
| HUMNSERV | HUMAN SERVICES 119 | 0.0250000000 | $635,130 | $635,130 | $15.88 | | |
| SLDREL | SOLDIERS RELIEF 121 | 0.0155990005 | $635,130 | $635,130 | $9.91 | | |
| COLLPLBOND | C OF CP BOND 644 | 0.4374241808 | $635,130 | $635,130 | $277.82 | | |
| COLLPLGEN | CITY OF CP 632 | 1.4453819216 | $635,130 | $635,130 | $918.01 | | |
| EMERGSER | EMS 147 | 0.3792580840 | $635,130 | $635,130 | $240.88 | | |
| EMSRFD | EMS REFUND 147 | 0.0000000000 | $635,130 | $635,130 | $0.00 | | |
| RURALLIB | RURAL LIBRARY 623 | 0.3710609029 | $635,130 | $635,130 | $235.67 | | |
| PORTRFD | PORT REFUND 640 | 0.0000000000 | $635,130 | $635,130 | $0.00 | | |
| PORTWWGEN | PORT OF WW 640 | 0.2460186015 | $635,130 | $635,130 | $156.25 | | |
| SD250BOND | SD #250 BOND 773 | 1.4560608159 | $635,130 | $635,130 | $924.79 | | |
| SD250GEN | SD #250 GENERAL 770 | 2.3880724087 | $635,130 | $635,130 | $1,516.74 | | |
| ST2 | STATE SCHOOL PART 2 600 | 0.8131451643 | $635,130 | $635,130 | $516.45 | | |
| STATESCHL | STATE SCHOOL 600 | 1.5158548041 | $635,130 | $635,130 | $962.76 | | |
| STREFUND | STATE REFUND LEVY 603 | 0.0000000000 | $635,130 | $635,130 | $0.00 | | |
| | Total Tax Rate: | 10.1104125603 | | | | | |
| | | | | Taxes w/Current Exemptions: | $6,421.43 | | |
| | | | | Taxes w/o Exemptions: | $6,421.43 | | |
Improvement / Building
| Improvement #1: | RESIDENTIAL | State Code: | 11 | 3245.0 sqft | Value: | $513,140 |
| Exterior Wall: | SIDING | Heating/Cooling: | WARM & COOLED AIR | | Number of Bathrooms: | 3 | Number of Bedrooms: | 4 | | Plumbing: | 14 | Roof Covering: | METAL ROOFING |
|
| | Type | Description | Class CD | Sub Class CD | Year Built | Area |
| | MA | Main Area | 4 | 45 | 2017 | 3245.0 |
| | ATG | Attached Garage | 4 | 45 | 2017 | 672.0 |
| | UPFL | Upper Floor (included in main area) | 4 | 45 | 2017 | 768.0 |
| | RPC | OPEN PORCH W/ROOF , CEILED | 4 | 45 | 2017 | 68.0 |
| | GFP | GAS FIREPLACE | 4 | 45 | 2017 | 1.0 |
| | SI1 | SITE IMPROVEMENT | 4 | 45 | 2017 | 5.5 |
| | SMP | SWIMMING POOL | 4 | 45 | 2017 | 1.0 |
Sketch
Property Image
Land
| 1 | RES 1 | Converted: Residential | 1.1914 | 51896.00 | 0.00 | 0.00 | 1.00 | $121,990 | $0 |
Roll Value History
| 2026 | N/A | N/A | N/A | N/A | N/A |
| 2025 | $667,080 | $183,440 | $0 | $850,520 | $850,520 |
| 2024 | $513,140 | $121,990 | $0 | $635,130 | $635,130 |
| 2023 | $513,140 | $121,990 | $0 | $635,130 | $635,130 |
| 2022 | $498,590 | $121,990 | $0 | $620,580 | $620,580 |
| 2021 | $430,370 | $121,990 | $0 | $552,360 | $552,360 |
| 2020 | $374,230 | $121,990 | $0 | $496,220 | $496,220 |
| 2019 | $421,220 | $75,000 | $0 | $496,220 | $496,220 |
| 2018 | $408,950 | $75,000 | $0 | $483,950 | $483,950 |
| 2017 | $408,950 | $75,000 | $0 | $483,950 | $483,950 |
| 2016 | $0 | $75,000 | $0 | $75,000 | $75,000 |
| 2015 | $0 | $75,000 | $0 | $75,000 | $75,000 |
| 2014 | $0 | $75,000 | $0 | $75,000 | $75,000 |
| 2013 | $0 | $75,000 | $0 | $75,000 | $75,000 |
| 2012 | $0 | $75,000 | $0 | $0 | $0 |
| 2011 | $0 | $120,000 | $0 | $0 | $0 |
| 2010 | $0 | $132,500 | $0 | $0 | $0 |
| 2009 | $0 | $132,500 | $0 | $0 | $0 |
| 2008 | $0 | $4,800 | $0 | $0 | $0 |
| 2007 | $0 | $4,800 | $0 | $0 | $0 |
Deed and Sales History
| 1 | 02/27/2025 | SWD | STATUTORY WARRANTY DEED | PIERCE MATTHEW B & BRENDA | AHMED SHIHAB 2024 TRUST | | | $1,075,000.00 | 148983 | 2025-00994 |
| 2 | 08/28/2015 | SWD | STATUTORY WARRANTY DEED | FRIDLUND RONALD L & KATHRYN | PIERCE MATTHEW B & BRENDA | | | $95,000.00 | 128716 | 2015-07588 |
| 3 | 04/13/2006 | WARRANTY D | WARRANTY DEED | BOTIMER, DOUGLAS A & GLORIA J | FRIDLUND, RONALD L & KATHRYN | | | $133,000.00 | 110027 | 2006-04196 |
Payout Agreement
| No payout information available.. |