Property
Account |
| Property ID: | 23015 | Abbreviated Legal Description: | VILLAGES OF GARRISON CREEK P.U.D. PHASE X LOT 264 |
| Parcel Number: | 350736490010 | Agent Code: | |
| Type: | Real | | |
| Tax Area: | 77 - CP-250-F | Land Use Code | 11 |
| Open Space: | N | DFL | N |
| Historic Property: | N | Remodel Property: | N |
| Multi-Family Redevelopment: | N | | |
| Township: | 7 | Section: | 36 |
| Range: | 35 |
Location |
| Address: | 1027 SE CRESTLANE DR WA 99324 | Mapsco: | |
| Neighborhood: | G SFR | Map ID: | |
| Neighborhood CD: | 114011 |
Owner |
| Name: | BENZEL MARK ANDREW | Owner ID: | 57542 |
| Mailing Address: | KRISTINE REW WEATHERILL 1027 SE CRESTLANE DR COLLEGE PLACE, WA 99324 | % Ownership: | 100.0000000000% |
| | | Exemptions: | |
Taxes and Assessment Details
Property Tax Information as of
02/21/2026
Click on "Statement Details" to expand or collapse a tax statement.
* Please enter a valid date ** Please enter a valid date *
Statement Details |
| | TOTAL: | $0.00 | $0.00 | $0.00 | $0.00 | $0.00 | $0.00 |
|
| | $0.00 | $0.00 | $0.00 | $0.00 | $0.00 | $0.00 |
Values
| (+) Improvement Homesite Value: | + | $0 | |
| (+) Improvement Non-Homesite Value: | + | $527,650 | |
| (+) Land Homesite Value: | + | $0 | |
| (+) Land Non-Homesite Value: | + | $100,000 | |
| (+) Curr Use (HS): | + | $0 | $0 |
| (+) Curr Use (NHS): | + | $0 | $0 |
| | | -------------------------- | |
| (=) Market Value: | = | $627,650 | |
| (–) Productivity Loss: | – | $0 | |
| | | -------------------------- | |
| (=) Subtotal: | = | $627,650 | |
| (+) Senior Appraised Value: | + | $0 | |
| (+) Non-Senior Appraised Value: | + | $627,650 | |
| | | -------------------------- | |
| (=) Total Appraised Value: | = | $627,650 | |
| (–) Senior Exemption Loss: | – | $0 | |
| (–) Exemption Loss: | – | $0 | |
| | | -------------------------- | |
| (=) Taxable Value: | = | $627,650 | |
Taxing Jurisdiction
| Owner: | BENZEL MARK ANDREW | | |
| % Ownership: | 100.0000000000% | | |
| Total Value: | $627,650 | | |
| Tax Area: | 77 - CP-250-F |
| CERFD | CURRENT EXPENSE REFUND 010 | 0.0000000000 | $627,650 | $627,650 | $0.00 | | |
| CURREXP | CURRENT EXPENSE 010 | 1.0175366760 | $627,650 | $627,650 | $638.66 | | |
| HUMNSERV | HUMAN SERVICES 119 | 0.0250000000 | $627,650 | $627,650 | $15.69 | | |
| SLDREL | SOLDIERS RELIEF 121 | 0.0155990005 | $627,650 | $627,650 | $9.79 | | |
| COLLPLBOND | C OF CP BOND 644 | 0.4374241808 | $627,650 | $627,650 | $274.55 | | |
| COLLPLGEN | CITY OF CP 632 | 1.4453819216 | $627,650 | $627,650 | $907.19 | | |
| EMERGSER | EMS 147 | 0.3792580840 | $627,650 | $627,650 | $238.04 | | |
| EMSRFD | EMS REFUND 147 | 0.0000000000 | $627,650 | $627,650 | $0.00 | | |
| RURALLIB | RURAL LIBRARY 623 | 0.3710609029 | $627,650 | $627,650 | $232.90 | | |
| PORTRFD | PORT REFUND 640 | 0.0000000000 | $627,650 | $627,650 | $0.00 | | |
| PORTWWGEN | PORT OF WW 640 | 0.2460186015 | $627,650 | $627,650 | $154.41 | | |
| SD250BOND | SD #250 BOND 773 | 1.4560608159 | $627,650 | $627,650 | $913.90 | | |
| SD250GEN | SD #250 GENERAL 770 | 2.3880724087 | $627,650 | $627,650 | $1,498.87 | | |
| ST2 | STATE SCHOOL PART 2 600 | 0.8131451643 | $627,650 | $627,650 | $510.37 | | |
| STATESCHL | STATE SCHOOL 600 | 1.5158548041 | $627,650 | $627,650 | $951.43 | | |
| STREFUND | STATE REFUND LEVY 603 | 0.0000000000 | $627,650 | $627,650 | $0.00 | | |
| | Total Tax Rate: | 10.1104125603 | | | | | |
| | | | | Taxes w/Current Exemptions: | $6,345.80 | | |
| | | | | Taxes w/o Exemptions: | $6,345.80 | | |
Improvement / Building
| Improvement #1: | RESIDENTIAL | State Code: | 11 | 2566.0 sqft | Value: | $527,650 |
| Exterior Wall: | HARDBOARD | Heating/Cooling: | HEAT PUMP | | Number of Bathrooms: | 2.5 | Number of Bedrooms: | 3 | | Plumbing: | 15 | Roof Covering: | BITUMEN MEMBRANE |
|
| | Type | Description | Class CD | Sub Class CD | Year Built | Area |
| | MA | Main Area | 4 | 55 | 2016 | 2566.0 |
| | ATG | Attached Garage | 4 | 55 | 2016 | 629.0 |
| | RPC | OPEN PORCH W/ROOF , CEILED | 4 | 55 | 2016 | 88.0 |
| | OPS | OPEN PORCH W/STEPS | 4 | 55 | 2016 | 300.0 |
| | BLW | WOOD BALCONIES | 4 | 55 | 2016 | 96.0 |
| | UPFL | Upper Floor (included in main area) | 4 | 55 | 2016 | 807.0 |
| | PRC | PORCH W STEPS, ROOF,CEILED | 4 | 55 | 2016 | 120.0 |
| | SI1 | SITE IMPROVEMENT | 4 | 55 | 2016 | 5.0 |
Sketch
Property Image
Land
| 1 | RES 1 | Converted: Residential | 0.2433 | 10600.00 | 0.00 | 0.00 | 1.00 | $100,000 | $0 |
Roll Value History
| 2026 | N/A | N/A | N/A | N/A | N/A |
| 2025 | $459,060 | $175,000 | $0 | $634,060 | $634,060 |
| 2024 | $527,650 | $100,000 | $0 | $627,650 | $627,650 |
| 2023 | $527,650 | $100,000 | $0 | $627,650 | $627,650 |
| 2022 | $502,520 | $100,000 | $0 | $602,520 | $602,520 |
| 2021 | $456,840 | $100,000 | $0 | $556,840 | $556,840 |
| 2020 | $380,700 | $100,000 | $0 | $480,700 | $480,700 |
| 2019 | $415,700 | $65,000 | $0 | $480,700 | $480,700 |
| 2018 | $415,700 | $65,000 | $0 | $480,700 | $480,700 |
| 2017 | $415,700 | $65,000 | $0 | $480,700 | $480,700 |
| 2016 | $136,600 | $65,000 | $0 | $201,600 | $201,600 |
| 2015 | $0 | $65,000 | $0 | $65,000 | $65,000 |
| 2014 | $0 | $65,000 | $0 | $65,000 | $65,000 |
| 2013 | $0 | $65,000 | $0 | $65,000 | $65,000 |
| 2012 | $0 | $100,000 | $0 | $0 | $0 |
| 2011 | $0 | $100,000 | $0 | $0 | $0 |
| 2010 | $0 | $100,000 | $0 | $0 | $0 |
| 2009 | $0 | $100,000 | $0 | $0 | $0 |
| 2008 | $0 | $700 | $0 | $0 | $0 |
| 2007 | $0 | $700 | $0 | $0 | $0 |
Deed and Sales History
| 1 | 10/02/2015 | SWD | STATUTORY WARRANTY DEED | KISHNER DANIEL ADAM & BRIANNA | BENZEL MARK ANDREW | | | $90,000.00 | 128932 | 2015-08698 |
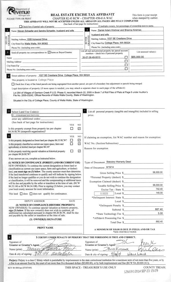
| 2 | 09/19/2014 | SWD | STATUTORY WARRANTY DEED | SCHAEFER STEVEN & SANDRA | KISHNER DANIEL ADAM & BRIANNA | | | $58,000.00 | 126690 | 2014-06984 |
| 3 | 09/23/2014 | FUL | FULFILLMENT DEED | | SCHAEFER STEVEN & SANDRA | | | | 0 | 2014-06983 |
| 4 | 06/24/2011 | WARRANTY D | WARRANTY DEED | KUEST, RICHARD & JOAN TRUSTEES | SCHAEFER, STEVEN & SANDRA | | | $68,000.00 | 120303 | 2011-04893 |
| 5 | 11/23/2005 | WARRANTY D | WARRANTY DEED | PHASE FIVE DEVELOPMENT LLC | KUEST, RICHARD & JOAN TRUSTEES | | | $98,000.00 | 109116 | 2005-14830 |
Payout Agreement
| No payout information available.. |