Property
Account |
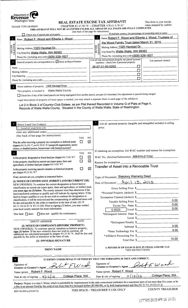
| Property ID: | 23010 | Abbreviated Legal Description: | LOT 2 BLK 2 COUNTRY CLUB ESTATES |
| Parcel Number: | 360731500202 | Agent Code: | |
| Type: | Real | | |
| Tax Area: | 101 - 140-4 | Land Use Code | 11 |
| Open Space: | N | DFL | N |
| Historic Property: | N | Remodel Property: | N |
| Multi-Family Redevelopment: | N | | |
| Township: | 7 | Section: | 31 |
| Range: | 36 |
Location |
| Address: | 1325 HAVSTAD DR WA 99362 | Mapsco: | |
| Neighborhood: | G SFR Rural/City Inf | Map ID: | |
| Neighborhood CD: | 114012 |
Owner |
| Name: | WOOD FAMILY TRUST | Owner ID: | 56516 |
| Mailing Address: | 1325 HAVSTAD DR WALLA WALLA, WA 99362 | % Ownership: | 100.0000000000% |
| | | Exemptions: | |
Taxes and Assessment Details
Property Tax Information as of
02/21/2026
Click on "Statement Details" to expand or collapse a tax statement.
* Please enter a valid date ** Please enter a valid date *
Statement Details |
| | TOTAL: | $0.00 | $0.00 | $0.00 | $0.00 | $0.00 | $0.00 |
|
| | $0.00 | $0.00 | $0.00 | $0.00 | $0.00 | $0.00 |
Values
| (+) Improvement Homesite Value: | + | $0 | |
| (+) Improvement Non-Homesite Value: | + | $333,040 | |
| (+) Land Homesite Value: | + | $0 | |
| (+) Land Non-Homesite Value: | + | $107,600 | |
| (+) Curr Use (HS): | + | $0 | $0 |
| (+) Curr Use (NHS): | + | $0 | $0 |
| | | -------------------------- | |
| (=) Market Value: | = | $440,640 | |
| (–) Productivity Loss: | – | $0 | |
| | | -------------------------- | |
| (=) Subtotal: | = | $440,640 | |
| (+) Senior Appraised Value: | + | $0 | |
| (+) Non-Senior Appraised Value: | + | $440,640 | |
| | | -------------------------- | |
| (=) Total Appraised Value: | = | $440,640 | |
| (–) Senior Exemption Loss: | – | $0 | |
| (–) Exemption Loss: | – | $0 | |
| | | -------------------------- | |
| (=) Taxable Value: | = | $440,640 | |
Taxing Jurisdiction
| Owner: | WOOD FAMILY TRUST | | |
| % Ownership: | 100.0000000000% | | |
| Total Value: | $440,640 | | |
| Tax Area: | 101 - 140-4 |
| CERFD | CURRENT EXPENSE REFUND 010 | 0.0000000000 | $440,640 | $440,640 | $0.00 | | |
| CURREXP | CURRENT EXPENSE 010 | 1.0175366760 | $440,640 | $440,640 | $448.37 | | |
| HUMNSERV | HUMAN SERVICES 119 | 0.0250000000 | $440,640 | $440,640 | $11.02 | | |
| SLDREL | SOLDIERS RELIEF 121 | 0.0155990005 | $440,640 | $440,640 | $6.87 | | |
| EMERGSER | EMS 147 | 0.3792580840 | $440,640 | $440,640 | $167.12 | | |
| EMSRFD | EMS REFUND 147 | 0.0000000000 | $440,640 | $440,640 | $0.00 | | |
| FD4EXP | FD #4 EXPENSE 686 | 0.8836993059 | $440,640 | $440,640 | $389.39 | | |
| RLBRFD | RURAL LIBRARY REFUND 623 | 0.0000000000 | $440,640 | $440,640 | $0.00 | | |
| RURALLIB | RURAL LIBRARY 623 | 0.3710609029 | $440,640 | $440,640 | $163.50 | | |
| PORTRFD | PORT REFUND 640 | 0.0000000000 | $440,640 | $440,640 | $0.00 | | |
| PORTWWGEN | PORT OF WW 640 | 0.2460186015 | $440,640 | $440,640 | $108.41 | | |
| SD140BOND | SD #140 BOND 764 | 0.8342371393 | $440,640 | $440,640 | $367.60 | | |
| SD140GEN | SD #140 GENERAL 760 | 2.0646500647 | $440,640 | $440,640 | $909.77 | | |
| ST2 | STATE SCHOOL PART 2 600 | 0.8131451643 | $440,640 | $440,640 | $358.30 | | |
| STATESCHL | STATE SCHOOL 600 | 1.5158548041 | $440,640 | $440,640 | $667.95 | | |
| STREFUND | STATE REFUND LEVY 603 | 0.0000000000 | $440,640 | $440,640 | $0.00 | | |
| COROAD | COUNTY ROAD 115 | 1.6549953990 | $440,640 | $440,640 | $729.26 | | |
| CRPRD | COUNTY ROAD REFUND 115 | 0.0000000000 | $440,640 | $440,640 | $0.00 | | |
| | Total Tax Rate: | 9.8210551422 | | | | | |
| | | | | Taxes w/Current Exemptions: | $4,327.56 | | |
| | | | | Taxes w/o Exemptions: | $4,327.56 | | |
Improvement / Building
| Improvement #1: | RESIDENTIAL | State Code: | 11 | 1668.0 sqft | Value: | $333,040 |
| Exterior Wall: | SIDING | Heating/Cooling: | REV-HEAT-PUMP-W/DUCT | | Number of Bathrooms: | 3 | Number of Bedrooms: | 5 | | Plumbing: | 11 | Roof Covering: | COMP SHINGLE |
|
| | Type | Description | Class CD | Sub Class CD | Year Built | Area |
| | MA | Main Area | 1 | 30 | 1963 | 1668.0 |
| | SI1 | SITE IMPROVEMENT | 1 | 30 | 0 | 2.0 |
| | BASE | BASEMENT | 1 | 30 | 1963 | 1668.0 |
| | BPF | BASEMENT -PARTITIONED FINISH | 1 | 30 | 1963 | 944.0 |
| | ATG | Attached Garage | 1 | 30 | 1963 | 484.0 |
| | BLW | WOOD BALCONIES | 1 | 30 | 1963 | 289.0 |
| | D2F | Double 2 Story Fireplace | 1 | 30 | 1963 | 1.0 |
| | RPO | OPEN PORCH W/ROOF | 1 | 30 | 1963 | 145.0 |
| | UTST | Utility Storage Shed | 1 | 30 | 1963 | 195.0 |
Sketch
Property Image
Land
| 1 | RES 1 | Converted: Residential | 0.5705 | 24849.00 | 0.00 | 0.00 | 1.00 | $107,600 | $0 |
Roll Value History
| 2026 | N/A | N/A | N/A | N/A | N/A |
| 2025 | $283,080 | $158,540 | $0 | $441,620 | $441,620 |
| 2024 | $333,040 | $107,600 | $0 | $440,640 | $440,640 |
| 2023 | $333,040 | $107,600 | $0 | $440,640 | $440,640 |
| 2022 | $333,040 | $107,600 | $0 | $440,640 | $440,640 |
| 2021 | $302,760 | $107,600 | $0 | $410,360 | $410,360 |
| 2020 | $216,260 | $107,600 | $0 | $323,860 | $323,860 |
| 2019 | $258,860 | $65,000 | $0 | $323,860 | $323,860 |
| 2018 | $215,720 | $65,000 | $0 | $280,720 | $280,720 |
| 2017 | $159,200 | $65,000 | $0 | $224,200 | $224,200 |
| 2016 | $159,200 | $65,000 | $0 | $224,200 | $224,200 |
| 2015 | $159,200 | $65,000 | $0 | $224,200 | $224,200 |
| 2014 | $159,200 | $65,000 | $0 | $224,200 | $224,200 |
| 2013 | $159,200 | $65,000 | $0 | $224,200 | $224,200 |
| 2012 | $159,200 | $65,000 | $0 | $0 | $0 |
| 2011 | $159,200 | $65,000 | $0 | $0 | $0 |
| 2010 | $159,200 | $65,000 | $0 | $0 | $0 |
| 2009 | $184,100 | $65,000 | $0 | $0 | $0 |
| 2008 | $124,200 | $40,000 | $0 | $0 | $0 |
| 2007 | $124,200 | $40,000 | $0 | $0 | $0 |
Deed and Sales History
| 1 | 04/15/2015 | SWD | STATUTORY WARRANTY DEED | WOOD ROBERT F | WOOD FAMILY TRUST | | | $0.00 | 127785 | 2015-03050 |
| 2 | 09/24/1976 | WARRANTY D | WARRANTY DEED | | | | | $52,500.00 | 0 | 4805-57929 |
Payout Agreement
| No payout information available.. |