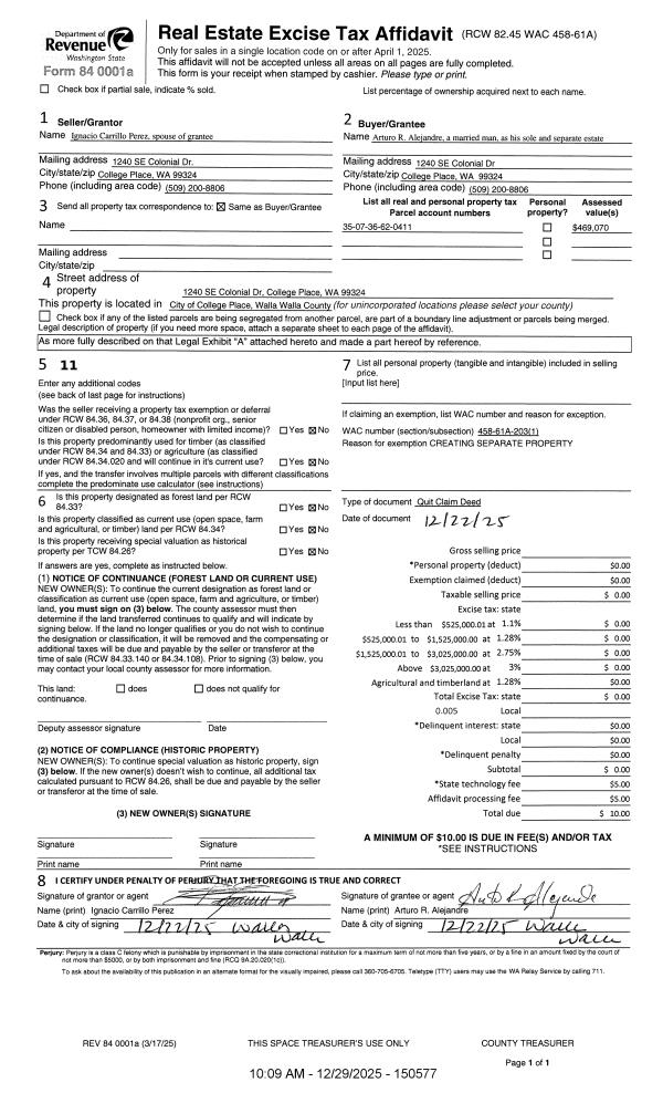
Property
Account |
| Property ID: | 22992 | Abbreviated Legal Description: | KNAPP ADDN PARCEL 11 BLK 4 |
| Parcel Number: | 350736620411 | Agent Code: | |
| Type: | Real | | |
| Tax Area: | 77 - CP-250-F | Land Use Code | 11 |
| Open Space: | N | DFL | N |
| Historic Property: | N | Remodel Property: | N |
| Multi-Family Redevelopment: | N | | |
| Township: | 7 | Section: | 36 |
| Range: | 35 |
Location |
| Address: | 1240 SE COLONIAL DR WA 99324 | Mapsco: | |
| Neighborhood: | A SFR Rural/City Inf | Map ID: | |
| Neighborhood CD: | 113012 |
Owner |
| Name: | ALEJANDRE ARTURO R | Owner ID: | 70652 |
| Mailing Address: | 1240 SE COLONIAL DR COLLEGE PLACE, WA 99324 | % Ownership: | 100.0000000000% |
| | | Exemptions: | |
Taxes and Assessment Details
Property Tax Information as of
02/21/2026
Click on "Statement Details" to expand or collapse a tax statement.
* Please enter a valid date ** Please enter a valid date *
Statement Details |
| | TOTAL: | $0.00 | $0.00 | $0.00 | $0.00 | $0.00 | $0.00 |
|
| | $0.00 | $0.00 | $0.00 | $0.00 | $0.00 | $0.00 |
Values
| (+) Improvement Homesite Value: | + | $0 | |
| (+) Improvement Non-Homesite Value: | + | $423,840 | |
| (+) Land Homesite Value: | + | $0 | |
| (+) Land Non-Homesite Value: | + | $70,000 | |
| (+) Curr Use (HS): | + | $0 | $0 |
| (+) Curr Use (NHS): | + | $0 | $0 |
| | | -------------------------- | |
| (=) Market Value: | = | $493,840 | |
| (–) Productivity Loss: | – | $0 | |
| | | -------------------------- | |
| (=) Subtotal: | = | $493,840 | |
| (+) Senior Appraised Value: | + | $0 | |
| (+) Non-Senior Appraised Value: | + | $493,840 | |
| | | -------------------------- | |
| (=) Total Appraised Value: | = | $493,840 | |
| (–) Senior Exemption Loss: | – | $0 | |
| (–) Exemption Loss: | – | $0 | |
| | | -------------------------- | |
| (=) Taxable Value: | = | $493,840 | |
Taxing Jurisdiction
| Owner: | ALEJANDRE ARTURO R | | |
| % Ownership: | 100.0000000000% | | |
| Total Value: | $493,840 | | |
| Tax Area: | 77 - CP-250-F |
| CERFD | CURRENT EXPENSE REFUND 010 | 0.0000000000 | $493,840 | $493,840 | $0.00 | | |
| CURREXP | CURRENT EXPENSE 010 | 1.0175366760 | $493,840 | $493,840 | $502.50 | | |
| HUMNSERV | HUMAN SERVICES 119 | 0.0250000000 | $493,840 | $493,840 | $12.35 | | |
| SLDREL | SOLDIERS RELIEF 121 | 0.0155990005 | $493,840 | $493,840 | $7.70 | | |
| COLLPLBOND | C OF CP BOND 644 | 0.4374241808 | $493,840 | $493,840 | $216.02 | | |
| COLLPLGEN | CITY OF CP 632 | 1.4453819216 | $493,840 | $493,840 | $713.79 | | |
| EMERGSER | EMS 147 | 0.3792580840 | $493,840 | $493,840 | $187.29 | | |
| EMSRFD | EMS REFUND 147 | 0.0000000000 | $493,840 | $493,840 | $0.00 | | |
| RURALLIB | RURAL LIBRARY 623 | 0.3710609029 | $493,840 | $493,840 | $183.24 | | |
| PORTRFD | PORT REFUND 640 | 0.0000000000 | $493,840 | $493,840 | $0.00 | | |
| PORTWWGEN | PORT OF WW 640 | 0.2460186015 | $493,840 | $493,840 | $121.49 | | |
| SD250BOND | SD #250 BOND 773 | 1.4560608159 | $493,840 | $493,840 | $719.06 | | |
| SD250GEN | SD #250 GENERAL 770 | 2.3880724087 | $493,840 | $493,840 | $1,179.33 | | |
| ST2 | STATE SCHOOL PART 2 600 | 0.8131451643 | $493,840 | $493,840 | $401.56 | | |
| STATESCHL | STATE SCHOOL 600 | 1.5158548041 | $493,840 | $493,840 | $748.59 | | |
| STREFUND | STATE REFUND LEVY 603 | 0.0000000000 | $493,840 | $493,840 | $0.00 | | |
| | Total Tax Rate: | 10.1104125603 | | | | | |
| | | | | Taxes w/Current Exemptions: | $4,992.92 | | |
| | | | | Taxes w/o Exemptions: | $4,992.92 | | |
Improvement / Building
| Improvement #1: | RESIDENTIAL | State Code: | 11 | 2412.0 sqft | Value: | $423,840 |
| Exterior Wall: | PLYWOOD | Heating/Cooling: | HEAT PUMP | | Number of Bathrooms: | 2 | Number of Bedrooms: | 3 | | Plumbing: | 13 | Roof Covering: | COMP SHINGLE |
|
| | Type | Description | Class CD | Sub Class CD | Year Built | Area |
| | MA | Main Area | 3 | 35 | 1983 | 2412.0 |
| | SI1 | SITE IMPROVEMENT | 3 | 35 | 1983 | 2.5 |
| | UPFL | Upper Floor (included in main area) | 3 | 35 | 1983 | 528.0 |
| | BIG | Built In Garage | 3 | 35 | 1983 | 624.0 |
| | WOD | Wood Deck | 3 | 35 | 1983 | 828.0 |
| | OPS | OPEN PORCH W/STEPS | 3 | 35 | 1983 | 120.0 |
| | SMP | SWIMMING POOL | 3 | 35 | 1983 | 1.0 |
Sketch
Property Image
Land
| 1 | RES 1 | Converted: Residential | 0.3300 | 14375.00 | 0.00 | 0.00 | 1.00 | $70,000 | $0 |
Roll Value History
| 2026 | N/A | N/A | N/A | N/A | N/A |
| 2025 | $339,070 | $130,000 | $0 | $469,070 | $469,070 |
| 2024 | $423,840 | $70,000 | $0 | $493,840 | $493,840 |
| 2023 | $423,840 | $70,000 | $0 | $493,840 | $493,840 |
| 2022 | $403,660 | $70,000 | $0 | $473,660 | $473,660 |
| 2021 | $351,010 | $70,000 | $0 | $421,010 | $421,010 |
| 2020 | $250,720 | $70,000 | $0 | $320,720 | $320,720 |
| 2019 | $265,720 | $55,000 | $0 | $320,720 | $320,720 |
| 2018 | $204,400 | $55,000 | $0 | $259,400 | $259,400 |
| 2017 | $204,400 | $55,000 | $0 | $259,400 | $259,400 |
| 2016 | $204,400 | $55,000 | $0 | $259,400 | $259,400 |
| 2015 | $204,400 | $55,000 | $0 | $259,400 | $259,400 |
| 2014 | $204,400 | $55,000 | $0 | $259,400 | $259,400 |
| 2013 | $204,400 | $55,000 | $0 | $259,400 | $259,400 |
| 2012 | $204,400 | $55,000 | $0 | $0 | $0 |
| 2011 | $218,100 | $55,000 | $0 | $0 | $0 |
| 2010 | $218,100 | $55,000 | $0 | $0 | $0 |
| 2009 | $232,500 | $55,000 | $0 | $0 | $0 |
| 2008 | $162,900 | $30,000 | $0 | $0 | $0 |
| 2007 | $162,900 | $30,000 | $0 | $0 | $0 |
Deed and Sales History
| 1 | 12/29/2025 | QCD | QUIT CLAIM DEED | | ALEJANDRE ARTURO R | | | | 150577 | 2025-07965 |
| 2 | 11/23/2021 | QCD | QUIT CLAIM DEED | ALEJANDRE ARTURO R & NORMA L | ALEJANDRE ARTURO R | | | $0.00 | 142868 | 2021-13917 |
| 3 | 08/05/2005 | WARRANTY D | WARRANTY DEED | CLARK, LYNN I & TIA | ALEJANDRE, ARTURO R & NORMA L | | | $235,000.00 | 108158 | 2005-09664 |
| 4 | 09/05/2003 | WARRANTY D | WARRANTY DEED | LIGHTFOOT, KENNETH D & SANDRA | CLARK, LYNN I & TIA | | | $198,900.00 | 102939 | 2003-13503 |
| 5 | 02/28/1991 | WARRANTY D | WARRANTY DEED | | | | | $82,900.00 | 0 | 1879-101183 |
Payout Agreement
| No payout information available.. |