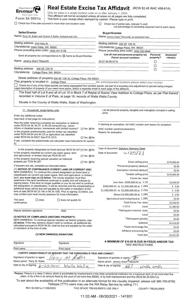
Property
Account |
| Property ID: | 22986 | Abbreviated Legal Description: | SCENIC VIEW E1/2 OF LOT 9 BLK 7, LOT 10 BLK 7 |
| Parcel Number: | 350736580710 | Agent Code: | |
| Type: | Real | | |
| Tax Area: | 75 - CP 250 | Land Use Code | 11 |
| Open Space: | N | DFL | N |
| Historic Property: | N | Remodel Property: | N |
| Multi-Family Redevelopment: | N | | |
| Township: | 7 | Section: | 36 |
| Range: | 35 |
Location |
| Address: | 508 SE 12TH ST WA 99324 | Mapsco: | |
| Neighborhood: | A SFR | Map ID: | |
| Neighborhood CD: | 113011 |
Owner |
| Name: | TITTSWORTH JEREMY GRANT | Owner ID: | 69715 |
| Mailing Address: | 508 SE 12TH ST COLLEGE PLACE, WA 99324 | % Ownership: | 100.0000000000% |
| | | Exemptions: | |
Taxes and Assessment Details
Values
| (+) Improvement Homesite Value: | + | $0 | |
| (+) Improvement Non-Homesite Value: | + | $217,390 | |
| (+) Land Homesite Value: | + | $0 | |
| (+) Land Non-Homesite Value: | + | $55,690 | |
| (+) Curr Use (HS): | + | $0 | $0 |
| (+) Curr Use (NHS): | + | $0 | $0 |
| | | -------------------------- | |
| (=) Market Value: | = | $273,080 | |
| (–) Productivity Loss: | – | $0 | |
| | | -------------------------- | |
| (=) Subtotal: | = | $273,080 | |
| (+) Senior Appraised Value: | + | $0 | |
| (+) Non-Senior Appraised Value: | + | $273,080 | |
| | | -------------------------- | |
| (=) Total Appraised Value: | = | $273,080 | |
| (–) Senior Exemption Loss: | – | $0 | |
| (–) Exemption Loss: | – | $0 | |
| | | -------------------------- | |
| (=) Taxable Value: | = | $273,080 | |
Taxing Jurisdiction
| Owner: | TITTSWORTH JEREMY GRANT | | |
| % Ownership: | 100.0000000000% | | |
| Total Value: | $273,080 | | |
| Tax Area: | 75 - CP 250 |
| CERFD | CURRENT EXPENSE REFUND 010 | 0.0000000000 | $273,080 | $273,080 | $0.00 | | |
| CURREXP | CURRENT EXPENSE 010 | 1.0175366760 | $273,080 | $273,080 | $277.87 | | |
| HUMNSERV | HUMAN SERVICES 119 | 0.0250000000 | $273,080 | $273,080 | $6.83 | | |
| SLDREL | SOLDIERS RELIEF 121 | 0.0155990005 | $273,080 | $273,080 | $4.26 | | |
| COLLPLBOND | C OF CP BOND 644 | 0.4374241808 | $273,080 | $273,080 | $119.45 | | |
| COLLPLGEN | CITY OF CP 632 | 1.4453819216 | $273,080 | $273,080 | $394.70 | | |
| EMERGSER | EMS 147 | 0.3792580840 | $273,080 | $273,080 | $103.57 | | |
| EMSRFD | EMS REFUND 147 | 0.0000000000 | $273,080 | $273,080 | $0.00 | | |
| RURALLIB | RURAL LIBRARY 623 | 0.3710609029 | $273,080 | $273,080 | $101.33 | | |
| PORTRFD | PORT REFUND 640 | 0.0000000000 | $273,080 | $273,080 | $0.00 | | |
| PORTWWGEN | PORT OF WW 640 | 0.2460186015 | $273,080 | $273,080 | $67.18 | | |
| SD250BOND | SD #250 BOND 773 | 1.4560608159 | $273,080 | $273,080 | $397.62 | | |
| SD250GEN | SD #250 GENERAL 770 | 2.3880724087 | $273,080 | $273,080 | $652.13 | | |
| ST2 | STATE SCHOOL PART 2 600 | 0.8131451643 | $273,080 | $273,080 | $222.05 | | |
| STATESCHL | STATE SCHOOL 600 | 1.5158548041 | $273,080 | $273,080 | $413.95 | | |
| STREFUND | STATE REFUND LEVY 603 | 0.0000000000 | $273,080 | $273,080 | $0.00 | | |
| | Total Tax Rate: | 10.1104125603 | | | | | |
| | | | | Taxes w/Current Exemptions: | $2,760.94 | | |
| | | | | Taxes w/o Exemptions: | $2,760.94 | | |
Improvement / Building
| Improvement #1: | RESIDENTIAL | State Code: | 11 | 884.0 sqft | Value: | $217,390 |
| Exterior Wall: | SIDING | Heating/Cooling: | WARM & COOLED AIR | | Number of Bathrooms: | 2 | Number of Bedrooms: | 2 | | Plumbing: | 11 | Roof Covering: | COMP SHINGLE |
|
| | Type | Description | Class CD | Sub Class CD | Year Built | Area |
| | MA | Main Area | 1 | 35 | 1946 | 884.0 |
| | SI1 | SITE IMPROVEMENT | 1 | 35 | 1946 | 1.5 |
| | ATG | Attached Garage | 1 | 35 | 1946 | 264.0 |
| | RPS | PORCH W/STEPS,ROOF | 1 | 35 | 1946 | 24.0 |
| | WOD | Wood Deck | 1 | 35 | 2007 | 140.0 |
| | GFP | GAS FIREPLACE | 1 | 35 | 1946 | 1.0 |
Sketch
Property Image
Land
| 1 | RES 1 | Converted: Residential | 0.1894 | 8250.00 | 0.00 | 0.00 | 1.00 | $55,690 | $0 |
Roll Value History
| 2026 | N/A | N/A | N/A | N/A | N/A |
| 2025 | $195,650 | $82,500 | $0 | $278,150 | $278,150 |
| 2024 | $217,390 | $55,690 | $0 | $273,080 | $273,080 |
| 2023 | $217,390 | $55,690 | $0 | $273,080 | $273,080 |
| 2022 | $207,040 | $55,690 | $0 | $262,730 | $262,730 |
| 2021 | $142,790 | $55,690 | $0 | $198,480 | $198,480 |
| 2020 | $101,990 | $55,690 | $0 | $157,680 | $157,680 |
| 2019 | $112,080 | $45,600 | $0 | $157,680 | $157,680 |
| 2018 | $93,400 | $45,600 | $0 | $139,000 | $139,000 |
| 2017 | $93,400 | $45,600 | $0 | $139,000 | $139,000 |
| 2016 | $93,400 | $45,600 | $0 | $139,000 | $139,000 |
| 2015 | $93,400 | $45,600 | $0 | $139,000 | $139,000 |
| 2014 | $93,400 | $45,600 | $0 | $139,000 | $139,000 |
| 2013 | $93,400 | $45,600 | $0 | $139,000 | $139,000 |
| 2012 | $80,800 | $45,600 | $0 | $0 | $0 |
| 2011 | $69,300 | $45,600 | $0 | $0 | $0 |
| 2010 | $69,300 | $45,600 | $0 | $0 | $0 |
| 2009 | $82,100 | $45,600 | $0 | $0 | $0 |
| 2008 | $52,300 | $23,200 | $0 | $0 | $0 |
| 2007 | $52,300 | $23,200 | $0 | $0 | $0 |
Deed and Sales History
| 1 | 06/30/2021 | SWD | STATUTORY WARRANTY DEED | RIDLER PERRY M & NICHOLE E | TITTSWORTH JEREMY GRANT | | | $276,000.00 | 141931 | 2021-07934 |
| 2 | 12/01/1997 | WARRANTY D | WARRANTY DEED | | | | | $69,000.00 | 89627 | 2619-712814 |
Payout Agreement
| No payout information available.. |