Property
Account |
| Property ID: | 22985 | Abbreviated Legal Description: | SCENIC VIEW LOT 27 BLK 4, E1/2 LOT 28 BLK 4 |
| Parcel Number: | 350736580427 | Agent Code: | |
| Type: | Real | | |
| Tax Area: | 75 - CP 250 | Land Use Code | 11 |
| Open Space: | N | DFL | N |
| Historic Property: | N | Remodel Property: | N |
| Multi-Family Redevelopment: | N | | |
| Township: | 7 | Section: | 36 |
| Range: | 35 |
Location |
| Address: | 221 SE SUNNY DR WA 99324 | Mapsco: | |
| Neighborhood: | A SFR | Map ID: | |
| Neighborhood CD: | 113011 |
Owner |
| Name: | RODENOUR NICOLE M | Owner ID: | 59458 |
| Mailing Address: | RIDENOUR DAVID W JR 221 SE SUNNY DR COLLEGE PLACE, WA 99324 | % Ownership: | 100.0000000000% |
| | | Exemptions: | |
Taxes and Assessment Details
Property Tax Information as of
02/21/2026
Click on "Statement Details" to expand or collapse a tax statement.
* Please enter a valid date ** Please enter a valid date *
Statement Details |
| | TOTAL: | $0.00 | $0.00 | $0.00 | $0.00 | $0.00 | $0.00 |
|
| | $0.00 | $0.00 | $0.00 | $0.00 | $0.00 | $0.00 |
Values
| (+) Improvement Homesite Value: | + | $0 | |
| (+) Improvement Non-Homesite Value: | + | $208,350 | |
| (+) Land Homesite Value: | + | $0 | |
| (+) Land Non-Homesite Value: | + | $60,750 | |
| (+) Curr Use (HS): | + | $0 | $0 |
| (+) Curr Use (NHS): | + | $0 | $0 |
| | | -------------------------- | |
| (=) Market Value: | = | $269,100 | |
| (–) Productivity Loss: | – | $0 | |
| | | -------------------------- | |
| (=) Subtotal: | = | $269,100 | |
| (+) Senior Appraised Value: | + | $0 | |
| (+) Non-Senior Appraised Value: | + | $269,100 | |
| | | -------------------------- | |
| (=) Total Appraised Value: | = | $269,100 | |
| (–) Senior Exemption Loss: | – | $0 | |
| (–) Exemption Loss: | – | $0 | |
| | | -------------------------- | |
| (=) Taxable Value: | = | $269,100 | |
Taxing Jurisdiction
| Owner: | RODENOUR NICOLE M | | |
| % Ownership: | 100.0000000000% | | |
| Total Value: | $269,100 | | |
| Tax Area: | 75 - CP 250 |
| CERFD | CURRENT EXPENSE REFUND 010 | 0.0000000000 | $269,100 | $269,100 | $0.00 | | |
| CURREXP | CURRENT EXPENSE 010 | 1.0175366760 | $269,100 | $269,100 | $273.82 | | |
| HUMNSERV | HUMAN SERVICES 119 | 0.0250000000 | $269,100 | $269,100 | $6.73 | | |
| SLDREL | SOLDIERS RELIEF 121 | 0.0155990005 | $269,100 | $269,100 | $4.20 | | |
| COLLPLBOND | C OF CP BOND 644 | 0.4374241808 | $269,100 | $269,100 | $117.71 | | |
| COLLPLGEN | CITY OF CP 632 | 1.4453819216 | $269,100 | $269,100 | $388.95 | | |
| EMERGSER | EMS 147 | 0.3792580840 | $269,100 | $269,100 | $102.06 | | |
| EMSRFD | EMS REFUND 147 | 0.0000000000 | $269,100 | $269,100 | $0.00 | | |
| RURALLIB | RURAL LIBRARY 623 | 0.3710609029 | $269,100 | $269,100 | $99.85 | | |
| PORTRFD | PORT REFUND 640 | 0.0000000000 | $269,100 | $269,100 | $0.00 | | |
| PORTWWGEN | PORT OF WW 640 | 0.2460186015 | $269,100 | $269,100 | $66.20 | | |
| SD250BOND | SD #250 BOND 773 | 1.4560608159 | $269,100 | $269,100 | $391.83 | | |
| SD250GEN | SD #250 GENERAL 770 | 2.3880724087 | $269,100 | $269,100 | $642.63 | | |
| ST2 | STATE SCHOOL PART 2 600 | 0.8131451643 | $269,100 | $269,100 | $218.82 | | |
| STATESCHL | STATE SCHOOL 600 | 1.5158548041 | $269,100 | $269,100 | $407.92 | | |
| STREFUND | STATE REFUND LEVY 603 | 0.0000000000 | $269,100 | $269,100 | $0.00 | | |
| | Total Tax Rate: | 10.1104125603 | | | | | |
| | | | | Taxes w/Current Exemptions: | $2,720.72 | | |
| | | | | Taxes w/o Exemptions: | $2,720.72 | | |
Improvement / Building
| Improvement #1: | RESIDENTIAL | State Code: | 11 | 1621.0 sqft | Value: | $208,350 |
| Exterior Wall: | SIDING | Foundation: | SLAB FOUNDATION | | Heating/Cooling: | WARM & COOLED AIR | Number of Bathrooms: | 2 | | Number of Bedrooms: | 3 | Plumbing: | 9 | | Roof Covering: | COMP SHINGLE |   |   |
|
| | Type | Description | Class CD | Sub Class CD | Year Built | Area |
| | MA | Main Area | 1 | 20 | 1956 | 1621.0 |
| | SI1 | SITE IMPROVEMENT | 1 | 20 | 1956 | 2.0 |
| | BASE | BASEMENT | 1 | 20 | 1956 | 1056.0 |
| | BPF | BASEMENT -PARTITIONED FINISH | 1 | 20 | 1956 | 1056.0 |
| | DTG | Detached Garage | 1 | 20 | 1956 | 440.0 |
| | S1F | Single One Story Fireplace | 1 | 20 | 1956 | 1.0 |
| | RPS | PORCH W/STEPS,ROOF | 1 | 20 | 1956 | 36.0 |
| | SUN | SOLAR ROOM | 1 | 20 | 2007 | 280.0 |
Sketch
Property Image
Land
| 1 | RES 1 | Converted: Residential | 0.2066 | 9000.00 | 0.00 | 0.00 | 1.00 | $60,750 | $0 |
Roll Value History
| 2026 | N/A | N/A | N/A | N/A | N/A |
| 2025 | $187,520 | $90,000 | $0 | $277,520 | $277,520 |
| 2024 | $208,350 | $60,750 | $0 | $269,100 | $269,100 |
| 2023 | $208,350 | $60,750 | $0 | $269,100 | $269,100 |
| 2022 | $208,350 | $60,750 | $0 | $269,100 | $269,100 |
| 2021 | $189,410 | $60,750 | $0 | $250,160 | $250,160 |
| 2020 | $172,190 | $60,750 | $0 | $232,940 | $232,940 |
| 2019 | $186,640 | $46,300 | $0 | $232,940 | $232,940 |
| 2018 | $169,670 | $46,300 | $0 | $215,970 | $215,970 |
| 2017 | $169,670 | $46,300 | $0 | $215,970 | $215,970 |
| 2016 | $154,250 | $46,300 | $0 | $200,550 | $200,550 |
| 2015 | $146,900 | $46,300 | $0 | $193,200 | $193,200 |
| 2014 | $146,900 | $46,300 | $0 | $193,200 | $193,200 |
| 2013 | $146,900 | $46,300 | $0 | $193,200 | $193,200 |
| 2012 | $168,400 | $46,300 | $0 | $0 | $0 |
| 2011 | $168,400 | $46,300 | $0 | $0 | $0 |
| 2010 | $158,200 | $46,300 | $0 | $0 | $0 |
| 2009 | $180,900 | $46,300 | $0 | $0 | $0 |
| 2008 | $109,100 | $23,800 | $0 | $0 | $0 |
| 2007 | $109,100 | $23,800 | $0 | $0 | $0 |
Deed and Sales History
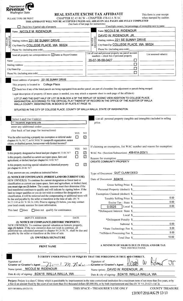
| 1 | 11/15/2023 | QCD | QUIT CLAIM DEED | RODENOUR NICOLE M | RIDENOUR NICOLE M | | | | 146790 | 2023-06703 |
| 2 | 08/24/2016 | QCD | QUIT CLAIM DEED | MORAMARCO NICOLE M | RODENOUR NICOLE M | | | $0.00 | 130907 | 2016-06905 |
| 3 | 06/17/2011 | WARRANTY D | WARRANTY DEED | MARQUIS, RAYMOND W & FRANCES L | MORAMARCO, NICOLE M | | | $200,500.00 | 120278 | 2011-04735 |
| 4 | 07/01/1998 | WARRANTY D | WARRANTY DEED | | | | | $111,000.00 | 90965 | 2709-808698 |
Payout Agreement
| No payout information available.. |