Property
Account |
| Property ID: | 22941 | Abbreviated Legal Description: | FAIRFIELD LOTS 1 AND 2 BLK 5 PLUS PTN VAC ALLEY |
| Parcel Number: | 360729610501 | Agent Code: | |
| Type: | Real | | |
| Tax Area: | 1 - OL-140-F | Land Use Code | 91 |
| Open Space: | N | DFL | N |
| Historic Property: | N | Remodel Property: | N |
| Multi-Family Redevelopment: | N | | |
| Township: | 7 | Section: | 29 |
| Range: | 36 |
Location |
| Address: | 107 DONALD ST WA 99362 | Mapsco: | |
| Neighborhood: | Fair Res Land Only | Map ID: | |
| Neighborhood CD: | 612091 |
Owner |
| Name: | BET LLC | Owner ID: | 70657 |
| Mailing Address: | 88805 SUMMIT VIEW DR KENNEWICK, WA 99338 | % Ownership: | 100.0000000000% |
| | | Exemptions: | |
Taxes and Assessment Details
Property Tax Information as of
04/17/2026
Click on "Statement Details" to expand or collapse a tax statement.
* Please enter a valid date ** Please enter a valid date *
Statement Details |
| 2024 | 16857 | EMS - EMS | $13.28 | $13.27 | $0.00 | $0.00 | $26.55 | $0.00 |
| 2024 | 16857 | PORT - PORT | $8.61 | $8.61 | $0.00 | $0.00 | $17.22 | $0.00 |
| 2024 | 16857 | ST SCH - STATE | $81.53 | $81.52 | $0.00 | $0.00 | $163.05 | $0.00 |
| 2024 | 16857 | WW - CITY OF WALLA WALLA | $66.03 | $66.02 | $0.00 | $0.00 | $132.05 | $0.00 |
| 2024 | 16857 | SD 140 - SCHOOL DIST 140 | $101.48 | $101.47 | $0.00 | $0.00 | $202.95 | $0.00 |
| 2024 | 16857 | COUNTY - COUNTY | $37.05 | $37.03 | $0.00 | $0.00 | $74.08 | $0.00 |
| 2024 | 16857 | MILLCRKFLD - MILL CREEK FLOOD | $2.09 | $2.08 | $0.00 | $0.00 | $4.17 | $0.00 |
| 2024 | 16857 | TOTAL: | $310.07 | $310.00 | $0.00 | $0.00 | $620.07 | $0.00 |
|
| 2024 | 16857 | $310.07 | $310.00 | $0.00 | $0.00 | $620.07 | $0.00 |
Statement Details |
| 2023 | 16897 | EMS - EMS | $11.14 | $11.14 | $0.00 | $0.00 | $22.28 | $0.00 |
| 2023 | 16897 | PORT - PORT | $7.23 | $7.23 | $0.00 | $0.00 | $14.46 | $0.00 |
| 2023 | 16897 | ST SCH - STATE | $68.59 | $68.57 | $0.00 | $0.00 | $137.16 | $0.00 |
| 2023 | 16897 | WW - CITY OF WALLA WALLA | $57.03 | $57.02 | $0.00 | $0.00 | $114.05 | $0.00 |
| 2023 | 16897 | SD 140 - SCHOOL DIST 140 | $86.09 | $86.08 | $0.00 | $0.00 | $172.17 | $0.00 |
| 2023 | 16897 | COUNTY - COUNTY | $30.80 | $30.79 | $0.00 | $0.00 | $61.59 | $0.00 |
| 2023 | 16897 | MILLCRKFLD - MILL CREEK FLOOD | $1.78 | $1.78 | $0.00 | $0.00 | $3.56 | $0.00 |
| 2023 | 16897 | TOTAL: | $262.66 | $262.61 | $0.00 | $0.00 | $525.27 | $0.00 |
|
| 2023 | 16897 | $262.66 | $262.61 | $0.00 | $0.00 | $525.27 | $0.00 |
Statement Details |
| 2022 | 16956 | EMS - EMS | $12.32 | $12.31 | $0.00 | $0.00 | $24.63 | $0.00 |
| 2022 | 16956 | PORT - PORT | $8.07 | $8.07 | $0.00 | $0.00 | $16.14 | $0.00 |
| 2022 | 16956 | ST SCH - STATE | $78.02 | $78.01 | $0.00 | $0.00 | $156.03 | $0.00 |
| 2022 | 16956 | WW - CITY OF WALLA WALLA | $66.53 | $66.53 | $0.00 | $0.00 | $133.06 | $0.00 |
| 2022 | 16956 | SD 140 - SCHOOL DIST 140 | $97.25 | $97.24 | $0.00 | $0.00 | $194.49 | $0.00 |
| 2022 | 16956 | COUNTY - COUNTY | $34.37 | $34.37 | $0.00 | $0.00 | $68.74 | $0.00 |
| 2022 | 16956 | MILLCRKFLD - MILL CREEK FLOOD | $2.08 | $2.07 | $0.00 | $0.00 | $4.15 | $0.00 |
| 2022 | 16956 | TOTAL: | $298.64 | $298.60 | $0.00 | $0.00 | $597.24 | $0.00 |
|
| 2022 | 16956 | $298.64 | $298.60 | $0.00 | $0.00 | $597.24 | $0.00 |
Statement Details |
| 2021 | 17011 | EMS - EMS | $13.78 | $13.78 | $0.00 | $0.00 | $27.56 | $0.00 |
| 2021 | 17011 | PORT - PORT | $9.12 | $9.11 | $0.00 | $0.00 | $18.23 | $0.00 |
| 2021 | 17011 | ST SCH - STATE | $85.90 | $85.89 | $0.00 | $0.00 | $171.79 | $0.00 |
| 2021 | 17011 | WW - CITY OF WALLA WALLA | $78.91 | $78.90 | $0.00 | $0.00 | $157.81 | $0.00 |
| 2021 | 17011 | SD 140 - SCHOOL DIST 140 | $100.89 | $100.88 | $0.00 | $0.00 | $201.77 | $0.00 |
| 2021 | 17011 | COUNTY - COUNTY | $38.47 | $38.47 | $0.00 | $0.00 | $76.94 | $0.00 |
| 2021 | 17011 | MILLCRKFLD - MILL CREEK FLOOD | $2.38 | $2.37 | $0.00 | $0.00 | $4.75 | $0.00 |
| 2021 | 17011 | TOTAL: | $329.45 | $329.40 | $0.00 | $0.00 | $658.85 | $0.00 |
|
| 2021 | 17011 | $329.45 | $329.40 | $0.00 | $0.00 | $658.85 | $0.00 |
Values
| (+) Improvement Homesite Value: | + | $0 | |
| (+) Improvement Non-Homesite Value: | + | $0 | |
| (+) Land Homesite Value: | + | $0 | |
| (+) Land Non-Homesite Value: | + | $70,010 | |
| (+) Curr Use (HS): | + | $0 | $0 |
| (+) Curr Use (NHS): | + | $0 | $0 |
| | | -------------------------- | |
| (=) Market Value: | = | $70,010 | |
| (–) Productivity Loss: | – | $0 | |
| | | -------------------------- | |
| (=) Subtotal: | = | $70,010 | |
| (+) Senior Appraised Value: | + | $0 | |
| (+) Non-Senior Appraised Value: | + | $70,010 | |
| | | -------------------------- | |
| (=) Total Appraised Value: | = | $70,010 | |
| (–) Senior Exemption Loss: | – | $0 | |
| (–) Exemption Loss: | – | $0 | |
| | | -------------------------- | |
| (=) Taxable Value: | = | $70,010 | |
Taxing Jurisdiction
| Owner: | BET LLC | | |
| % Ownership: | 100.0000000000% | | |
| Total Value: | $70,010 | | |
| Tax Area: | 1 - OL-140-F |
| CERFD | CURRENT EXPENSE REFUND 010 | 0.0000000000 | $70,010 | $70,010 | $0.00 | | |
| CURREXP | CURRENT EXPENSE 010 | 1.0175366760 | $70,010 | $70,010 | $71.24 | | |
| HUMNSERV | HUMAN SERVICES 119 | 0.0250000000 | $70,010 | $70,010 | $1.75 | | |
| SLDREL | SOLDIERS RELIEF 121 | 0.0155990005 | $70,010 | $70,010 | $1.09 | | |
| EMERGSER | EMS 147 | 0.3792580840 | $70,010 | $70,010 | $26.55 | | |
| EMSRFD | EMS REFUND 147 | 0.0000000000 | $70,010 | $70,010 | $0.00 | | |
| PORTRFD | PORT REFUND 640 | 0.0000000000 | $70,010 | $70,010 | $0.00 | | |
| PORTWWGEN | PORT OF WW 640 | 0.2460186015 | $70,010 | $70,010 | $17.22 | | |
| SD140BOND | SD #140 BOND 764 | 0.8342371393 | $70,010 | $70,010 | $58.40 | | |
| SD140GEN | SD #140 GENERAL 760 | 2.0646500647 | $70,010 | $70,010 | $144.55 | | |
| ST2 | STATE SCHOOL PART 2 600 | 0.8131451643 | $70,010 | $70,010 | $56.93 | | |
| STATESCHL | STATE SCHOOL 600 | 1.5158548041 | $70,010 | $70,010 | $106.12 | | |
| STREFUND | STATE REFUND LEVY 603 | 0.0000000000 | $70,010 | $70,010 | $0.00 | | |
| CWWBOND | C OF WW BOND 643 | 0.2760494372 | $70,010 | $70,010 | $19.33 | | |
| CWWGEN | CITY OF WW 631 | 1.6100204973 | $70,010 | $70,010 | $112.72 | | |
| CWWRFD | CITY OF WALLA WALLA REFUND 631 | 0.0000000000 | $70,010 | $70,010 | $0.00 | | |
| | Total Tax Rate: | 8.7973694689 | | | | | |
| | | | | Taxes w/Current Exemptions: | $615.90 | | |
| | | | | Taxes w/o Exemptions: | $615.90 | | |
Improvement / Building
Sketch
| No sketches available for this property. |
Property Image
Land
| 1 | RES 1 | Converted: Residential | 0.2922 | 12729.00 | 0.00 | 0.00 | 1.00 | $70,010 | $0 |
Roll Value History
| 2023 | $0 | $70,010 | $0 | $70,010 | $70,010 |
| 2022 | $0 | $55,120 | $0 | $55,120 | $55,120 |
| 2021 | $0 | $55,120 | $0 | $55,120 | $55,120 |
| 2020 | $0 | $55,120 | $0 | $55,120 | $55,120 |
| 2019 | $0 | $55,120 | $0 | $55,120 | $55,120 |
| 2018 | $0 | $49,400 | $0 | $49,400 | $49,400 |
| 2017 | $0 | $49,400 | $0 | $49,400 | $49,400 |
| 2016 | $0 | $49,400 | $0 | $49,400 | $49,400 |
| 2015 | $0 | $49,400 | $0 | $49,400 | $49,400 |
| 2014 | $0 | $49,400 | $0 | $49,400 | $49,400 |
| 2013 | $0 | $49,400 | $0 | $49,400 | $49,400 |
| 2012 | $0 | $49,400 | $0 | $0 | $0 |
| 2011 | $0 | $49,400 | $0 | $0 | $0 |
| 2010 | $0 | $48,800 | $0 | $0 | $0 |
| 2009 | $0 | $48,800 | $0 | $0 | $0 |
| 2008 | $0 | $48,800 | $0 | $0 | $0 |
| 2007 | $0 | $20,600 | $0 | $0 | $0 |
Deed and Sales History
| 1 | 01/03/2024 | SURVEY | SURVEY | | | 14 | 150 | | 0 | 2024-00046 |
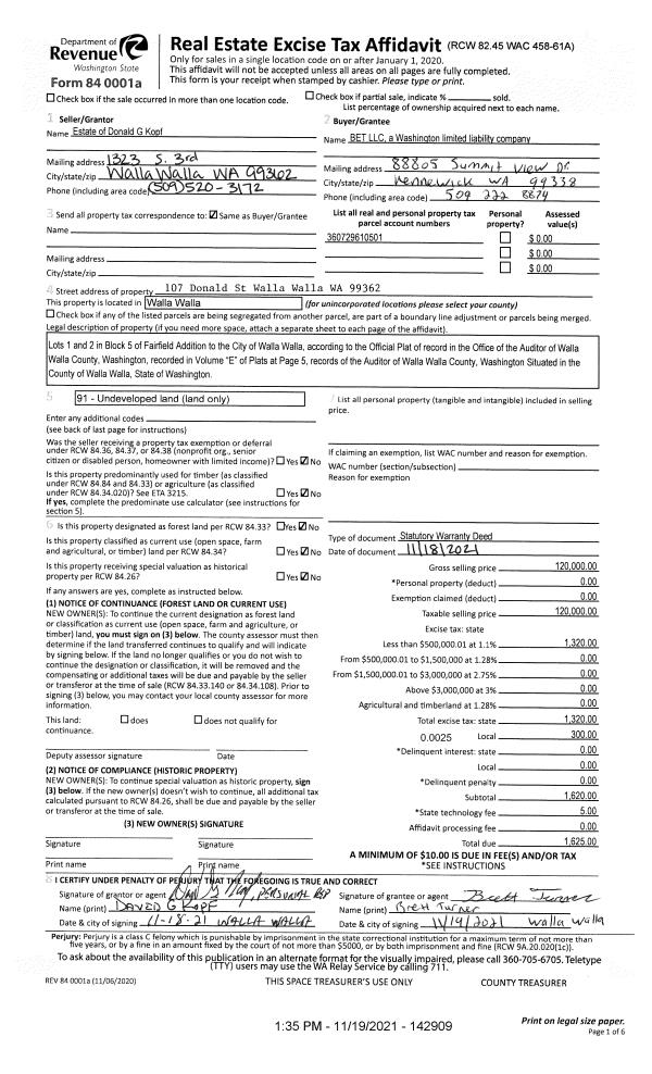
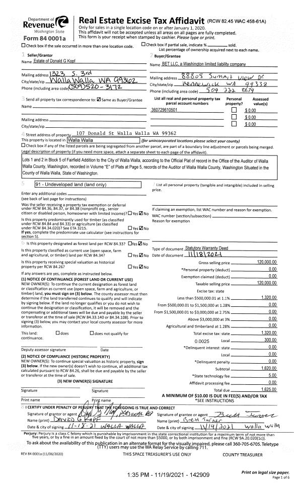
| 2 | 11/19/2021 | SWD | STATUTORY WARRANTY DEED | KOPF DONALD G ESTATE OF | BET LLC | | | $120,000.00 | 142909 | 2021-13791 |
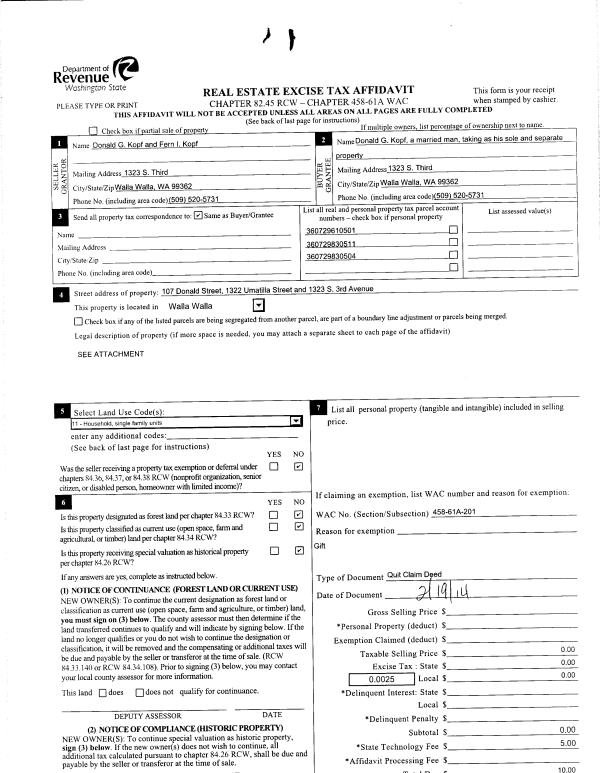
| 3 | 02/19/2014 | QCD | QUIT CLAIM DEED | | KOPF DONALD G ESTATE OF | 3-PARCELS | | | 125451 | 2014-01240 |
| 4 | 10/11/1991 | WARRANTY D | WARRANTY DEED | | | | | $7,200.00 | 0 | 1929-107172 |
Payout Agreement
| No payout information available.. |