Property
Account |
| Property ID: | 22923 | Abbreviated Legal Description: | GREENS ANNEX LOT 2 LESS N 10', PLUS ELY STRIP; LESS S 58' OF LOT 3W 120' LESS S 150' LOT 5 LESS TAX 6 & ST BLOCK 1 |
| Parcel Number: | 360721750120 | Agent Code: | |
| Type: | Real | | |
| Tax Area: | 1 - OL-140-F | Land Use Code | 13 |
| Open Space: | N | DFL | N |
| Historic Property: | N | Remodel Property: | N |
| Multi-Family Redevelopment: | N | | |
| Township: | 7 | Section: | 21 |
| Range: | 36 |
Location |
| Address: | 1950 MELROSE ST WA 99362 | Mapsco: | |
| Neighborhood: | WW Downtown Core area #3 | Map ID: | |
| Neighborhood CD: | 5343 |
Owner |
| Name: | BRIX WALLA WALLA 125 LLC | Owner ID: | 73170 |
| Mailing Address: | 223 10TH ST SOUTH KIRKLAND, WA 98033 | % Ownership: | 100.0000000000% |
| | | Exemptions: | |
Taxes and Assessment Details
Values
| (+) Improvement Homesite Value: | + | $0 | |
| (+) Improvement Non-Homesite Value: | + | $5,139,400 | |
| (+) Land Homesite Value: | + | $0 | |
| (+) Land Non-Homesite Value: | + | $232,500 | |
| (+) Curr Use (HS): | + | $0 | $0 |
| (+) Curr Use (NHS): | + | $0 | $0 |
| | | -------------------------- | |
| (=) Market Value: | = | $5,371,900 | |
| (–) Productivity Loss: | – | $0 | |
| | | -------------------------- | |
| (=) Subtotal: | = | $5,371,900 | |
| (+) Senior Appraised Value: | + | $0 | |
| (+) Non-Senior Appraised Value: | + | $5,371,900 | |
| | | -------------------------- | |
| (=) Total Appraised Value: | = | $5,371,900 | |
| (–) Senior Exemption Loss: | – | $0 | |
| (–) Exemption Loss: | – | $0 | |
| | | -------------------------- | |
| (=) Taxable Value: | = | $5,371,900 | |
Taxing Jurisdiction
| Owner: | BRIX WALLA WALLA 125 LLC | | |
| % Ownership: | 100.0000000000% | | |
| Total Value: | $5,371,900 | | |
| Tax Area: | 1 - OL-140-F |
| CERFD | CURRENT EXPENSE REFUND 010 | 0.0000000000 | $5,371,900 | $5,371,900 | $0.00 | | |
| CURREXP | CURRENT EXPENSE 010 | 0.9851088983 | $5,371,900 | $5,371,900 | $5,291.91 | | |
| HUMNSERV | HUMAN SERVICES 119 | 0.0250000000 | $5,371,900 | $5,371,900 | $134.30 | | |
| SLDREL | SOLDIERS RELIEF 121 | 0.0155990000 | $5,371,900 | $5,371,900 | $83.80 | | |
| EMERGSER | EMS 147 | 0.3676811629 | $5,371,900 | $5,371,900 | $1,975.15 | | |
| EMSRFD | EMS REFUND 147 | 0.0000000000 | $5,371,900 | $5,371,900 | $0.00 | | |
| PORTRFD | PORT REFUND 640 | 0.0000000000 | $5,371,900 | $5,371,900 | $0.00 | | |
| PORTWWGEN | PORT OF WW 640 | 0.2344301070 | $5,371,900 | $5,371,900 | $1,259.34 | | |
| SD140BOND | SD #140 BOND 764 | 0.8032434458 | $5,371,900 | $5,371,900 | $4,314.94 | | |
| SD140CAP | SD #140 CAP 762 | 0.3840034221 | $5,371,900 | $5,371,900 | $2,062.83 | | |
| SD140GEN | SD #140 GENERAL 760 | 2.4999999996 | $5,371,900 | $5,371,900 | $13,429.75 | | |
| ST2 | STATE SCHOOL PART 2 600 | 0.8853714103 | $5,371,900 | $5,371,900 | $4,756.13 | | |
| STATESCHL | STATE SCHOOL 600 | 1.6424571473 | $5,371,900 | $5,371,900 | $8,823.12 | | |
| STREFUND | STATE REFUND LEVY 603 | 0.0000000000 | $5,371,900 | $5,371,900 | $0.00 | | |
| CWWBOND | C OF WW BOND 643 | 0.2642134255 | $5,371,900 | $5,371,900 | $1,419.33 | | |
| CWWGEN | CITY OF WW 631 | 1.6110494978 | $5,371,900 | $5,371,900 | $8,654.40 | | |
| CWWRFD | CITY OF WALLA WALLA REFUND 631 | 0.0000000000 | $5,371,900 | $5,371,900 | $0.00 | | |
| | Total Tax Rate: | 9.7181575166 | | | | | |
| | | | | Taxes w/Current Exemptions: | $52,205.00 | | |
| | | | | Taxes w/o Exemptions: | $52,205.00 | | |
Improvement / Building
| Improvement #1: | COMMERCIAL | State Code: | 13 | 42462.0 sqft | Value: | $5,139,400 |
| | Type | Description | Class CD | Sub Class CD | Year Built | Area |
| | MA | Main Area | D | * | 1970 | 42462.0 |
| | CPC | COVERED CARPORT/PATIO | D | * | 1970 | 1296.0 |
| | CPC | COVERED CARPORT/PATIO | D | * | 1970 | 1296.0 |
| | CPC | COVERED CARPORT/PATIO | D | * | 1970 | 954.0 |
| | DTG | Detached Garage | D | * | 1970 | 396.0 |
| | DTG | Detached Garage | D | * | 1970 | 432.0 |
| | EWS | EXT WOOD STAIRS | D | * | 1970 | 9.0 |
| | BLW | WOOD BALCONIES | D | * | 1970 | 1680.0 |
| | PRKSTLA | PARK STALL AVERAGE | D | * | 1970 | 28.0 |
| | SMP | SWIMMING POOL | D | * | 1970 | 4.0 |
Sketch
Property Image
Land
| 1 | COM 1 | Converted: Commercial | 1.8691 | 81419.00 | 0.00 | 0.00 | 1.00 | $232,500 | $0 |
Roll Value History
| 2026 | N/A | N/A | N/A | N/A | N/A |
| 2025 | $5,139,400 | $232,500 | $0 | $5,371,900 | $5,371,900 |
| 2024 | $4,862,700 | $232,500 | $0 | $5,095,200 | $5,095,200 |
| 2023 | $2,739,600 | $210,600 | $0 | $2,950,200 | $2,950,200 |
| 2022 | $1,902,100 | $210,600 | $0 | $2,112,700 | $2,112,700 |
| 2021 | $1,902,100 | $210,600 | $0 | $2,112,700 | $2,112,700 |
| 2020 | $1,902,100 | $210,600 | $0 | $2,112,700 | $2,112,700 |
| 2019 | $1,902,100 | $210,600 | $0 | $2,112,700 | $2,112,700 |
| 2018 | $1,770,000 | $210,600 | $0 | $1,980,600 | $1,980,600 |
| 2017 | $1,676,900 | $210,600 | $0 | $1,887,500 | $1,887,500 |
| 2016 | $1,676,900 | $210,600 | $0 | $1,887,500 | $1,887,500 |
| 2015 | $1,676,900 | $210,600 | $0 | $1,887,500 | $1,887,500 |
| 2014 | $1,676,900 | $210,600 | $0 | $1,887,500 | $1,887,500 |
| 2013 | $1,676,900 | $210,600 | $0 | $1,887,500 | $1,887,500 |
| 2012 | $1,597,600 | $203,500 | $0 | $0 | $0 |
| 2011 | $1,597,600 | $203,500 | $0 | $0 | $0 |
| 2010 | $1,597,600 | $203,500 | $0 | $0 | $0 |
| 2009 | $1,597,600 | $203,500 | $0 | $0 | $0 |
| 2008 | $1,597,600 | $203,500 | $0 | $0 | $0 |
| 2007 | $1,597,600 | $203,500 | $0 | $0 | $0 |
Deed and Sales History
| 1 | 02/17/2023 | SWD | STATUTORY WARRANTY DEED | JACOBS-SERVIN LLC | BRIX WALLA WALLA 125 LLC | | 3-PARCELS | $19,831,400.00 | 145423 | 2023-00879 |
|   | |
| 2 | 01/05/2015 | QCD | QUIT CLAIM DEED | JACOBS ROBERT W & MARY H | JACOBS-SERVIN LLC | | 3-PARCELS | | 127216 | 2015-00026 |
| 3 | 10/30/2014 | SWD | STATUTORY WARRANTY DEED | R JACOBS ET UX STEVEN SERVIN | JACOBS ROBERT W & MARY H | | 3-PARCELS | $0.00 | 126872 | 2014-08000 |
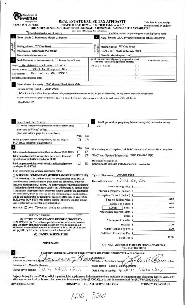
| 4 | 06/28/2011 | QCD | QUIT CLAIM DEED | BROOME, LESLIE C & MARDELL J | BROOME LLLP | | | | 120320 | 2011-05002 |
| 5 | 12/30/2005 | QCD | QUIT CLAIM DEED | SERVIN, STEVEN H TRUST | SERVIN, STEVEN H | | | | 109365 | 2005-16340 |
| 6 | 03/12/2004 | QCD | QUIT CLAIM DEED | BLUE MT ACTION COUNCIL | JACOBS & SERVIN TRUST | | | | 0 | 2004-02646 |
| 7 | 12/03/2001 | WARRANTY D | WARRANTY DEED | | | | | $995,000.00 | 98463 | 3240-113162 |
Payout Agreement
| No payout information available.. |