Property
Account |
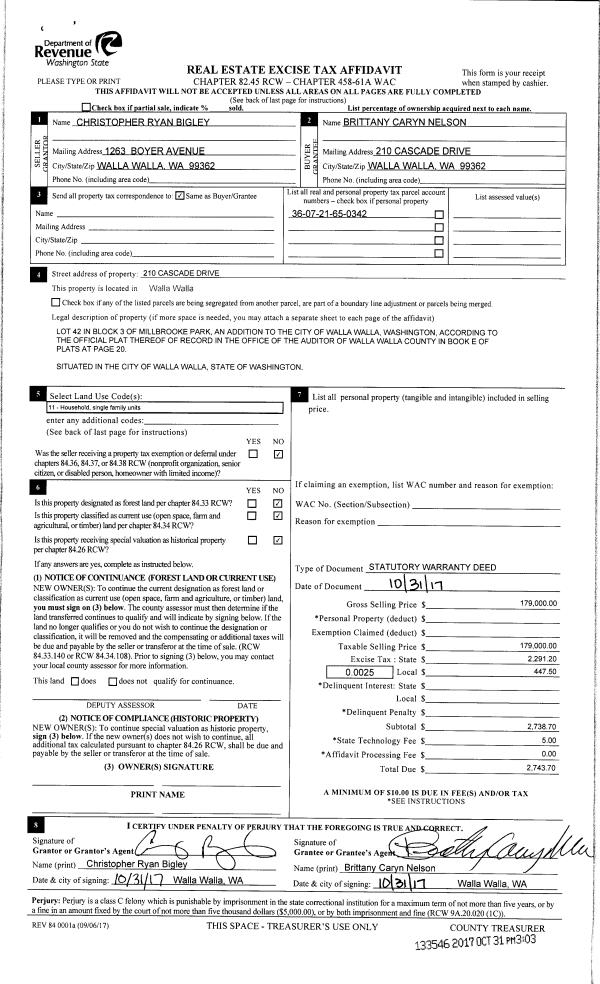
| Property ID: | 22922 | Abbreviated Legal Description: | MILBROOKE PARK LT 42 BLK 3 |
| Parcel Number: | 360721650342 | Agent Code: | |
| Type: | Real | | |
| Tax Area: | 1 - OL-140-F | Land Use Code | 11 |
| Open Space: | N | DFL | N |
| Historic Property: | N | Remodel Property: | N |
| Multi-Family Redevelopment: | N | | |
| Township: | 7 | Section: | 21 |
| Range: | 36 |
Location |
| Address: | 210 CASCADE DR WA 99362 | Mapsco: | |
| Neighborhood: | A-Superior SFR | Map ID: | |
| Neighborhood CD: | 513211 |
Owner |
| Name: | NELSON BRITTANY CARYN | Owner ID: | 62026 |
| Mailing Address: | 210 CASCADE DR WALLA WALLA, WA 99362 | % Ownership: | 100.0000000000% |
| | | Exemptions: | |
Taxes and Assessment Details
Values
| (+) Improvement Homesite Value: | + | $0 | |
| (+) Improvement Non-Homesite Value: | + | $273,070 | |
| (+) Land Homesite Value: | + | $0 | |
| (+) Land Non-Homesite Value: | + | $37,130 | |
| (+) Curr Use (HS): | + | $0 | $0 |
| (+) Curr Use (NHS): | + | $0 | $0 |
| | | -------------------------- | |
| (=) Market Value: | = | $310,200 | |
| (–) Productivity Loss: | – | $0 | |
| | | -------------------------- | |
| (=) Subtotal: | = | $310,200 | |
| (+) Senior Appraised Value: | + | $0 | |
| (+) Non-Senior Appraised Value: | + | $310,200 | |
| | | -------------------------- | |
| (=) Total Appraised Value: | = | $310,200 | |
| (–) Senior Exemption Loss: | – | $0 | |
| (–) Exemption Loss: | – | $0 | |
| | | -------------------------- | |
| (=) Taxable Value: | = | $310,200 | |
Taxing Jurisdiction
| Owner: | NELSON BRITTANY CARYN | | |
| % Ownership: | 100.0000000000% | | |
| Total Value: | $310,200 | | |
| Tax Area: | 1 - OL-140-F |
| CERFD | CURRENT EXPENSE REFUND 010 | 0.0000000000 | $310,200 | $310,200 | $0.00 | | |
| CURREXP | CURRENT EXPENSE 010 | 1.0175366760 | $310,200 | $310,200 | $315.64 | | |
| HUMNSERV | HUMAN SERVICES 119 | 0.0250000000 | $310,200 | $310,200 | $7.76 | | |
| SLDREL | SOLDIERS RELIEF 121 | 0.0155990005 | $310,200 | $310,200 | $4.84 | | |
| EMERGSER | EMS 147 | 0.3792580840 | $310,200 | $310,200 | $117.65 | | |
| EMSRFD | EMS REFUND 147 | 0.0000000000 | $310,200 | $310,200 | $0.00 | | |
| PORTRFD | PORT REFUND 640 | 0.0000000000 | $310,200 | $310,200 | $0.00 | | |
| PORTWWGEN | PORT OF WW 640 | 0.2460186015 | $310,200 | $310,200 | $76.31 | | |
| SD140BOND | SD #140 BOND 764 | 0.8342371393 | $310,200 | $310,200 | $258.78 | | |
| SD140GEN | SD #140 GENERAL 760 | 2.0646500647 | $310,200 | $310,200 | $640.45 | | |
| ST2 | STATE SCHOOL PART 2 600 | 0.8131451643 | $310,200 | $310,200 | $252.24 | | |
| STATESCHL | STATE SCHOOL 600 | 1.5158548041 | $310,200 | $310,200 | $470.22 | | |
| STREFUND | STATE REFUND LEVY 603 | 0.0000000000 | $310,200 | $310,200 | $0.00 | | |
| CWWBOND | C OF WW BOND 643 | 0.2760494372 | $310,200 | $310,200 | $85.63 | | |
| CWWGEN | CITY OF WW 631 | 1.6100204973 | $310,200 | $310,200 | $499.43 | | |
| CWWRFD | CITY OF WALLA WALLA REFUND 631 | 0.0000000000 | $310,200 | $310,200 | $0.00 | | |
| | Total Tax Rate: | 8.7973694689 | | | | | |
| | | | | Taxes w/Current Exemptions: | $2,728.95 | | |
| | | | | Taxes w/o Exemptions: | $2,728.95 | | |
Improvement / Building
| Improvement #1: | RESIDENTIAL | State Code: | 11 | 982.0 sqft | Value: | $273,070 |
| Exterior Wall: | SIDING | Heating/Cooling: | FORCED AIR | | Number of Bathrooms: | 2 | Number of Bedrooms: | 2 | | Plumbing: | 9 | Roof Covering: | COMP SHINGLE |
|
| | Type | Description | Class CD | Sub Class CD | Year Built | Area |
| | MA | Main Area | 1 | 30 | 1950 | 982.0 |
| | SI1 | SITE IMPROVEMENT | 1 | 30 | 1950 | 1.5 |
| | BASE | BASEMENT | 1 | 30 | 1950 | 982.0 |
| | BPF | BASEMENT -PARTITIONED FINISH | 1 | 30 | 1950 | 90.0 |
| | DTG | Detached Garage | 1 | 30 | 1950 | 240.0 |
| | RPO | OPEN PORCH W/ROOF | 1 | 30 | 1950 | 50.0 |
Sketch
Property Image
Land
| 1 | RES 1 | Converted: Residential | 0.1364 | 5940.00 | 0.00 | 0.00 | 1.00 | $37,130 | $0 |
Roll Value History
| 2026 | N/A | N/A | N/A | N/A | N/A |
| 2025 | $249,220 | $59,400 | $0 | $308,620 | $308,620 |
| 2024 | $249,220 | $59,400 | $0 | $308,620 | $308,620 |
| 2023 | $273,070 | $37,130 | $0 | $310,200 | $310,200 |
| 2022 | $273,070 | $37,130 | $0 | $310,200 | $310,200 |
| 2021 | $210,060 | $37,130 | $0 | $247,190 | $247,190 |
| 2020 | $150,040 | $37,130 | $0 | $187,170 | $187,170 |
| 2019 | $150,040 | $37,130 | $0 | $187,170 | $187,170 |
| 2018 | $136,400 | $37,130 | $0 | $173,530 | $173,530 |
| 2017 | $148,200 | $23,800 | $0 | $172,000 | $172,000 |
| 2016 | $123,500 | $23,800 | $0 | $147,300 | $147,300 |
| 2015 | $123,500 | $23,800 | $0 | $147,300 | $147,300 |
| 2014 | $119,900 | $23,800 | $0 | $143,700 | $143,700 |
| 2013 | $119,900 | $23,800 | $0 | $143,700 | $143,700 |
| 2012 | $131,500 | $23,800 | $0 | $0 | $0 |
| 2011 | $111,200 | $23,800 | $0 | $0 | $0 |
| 2010 | $104,800 | $23,800 | $0 | $0 | $0 |
| 2009 | $119,100 | $23,800 | $0 | $0 | $0 |
| 2008 | $119,100 | $23,800 | $0 | $0 | $0 |
| 2007 | $119,100 | $23,800 | $0 | $0 | $0 |
Deed and Sales History
| 1 | 10/31/2017 | SWD | STATUTORY WARRANTY DEED | BIGLEY CHRISTOPHER RYAN | NELSON BRITTANY CARYN | | | $179,000.00 | 133546 | 2017-08775 |
| 2 | 10/11/2017 | QCD | QUIT CLAIM DEED | BIGLEY CHRISTOPHER RYAN | BIGLEY CHRISTOPHER RYAN | | | $0.00 | 133413 | 2017-08161 |
| 3 | 06/04/2008 | WARRANTY D | WARRANTY DEED | STOCKMAN, JEANIE R | BIGLEY, CHRISTOPHER RYAN | | | $159,500.00 | 115129 | 2008-05633 |
| 4 | 10/02/2003 | QCD | QUIT CLAIM DEED | STOCKMAN, SHAWN | STOCKMAN, JEANIE R | | | | 103162 | 2003-15129 |
| 5 | 10/02/2003 | WARRANTY D | WARRANTY DEED | LORANG, JUNE L | STOCKMAN, JEANIE R | | | $105,600.00 | 103161 | 2003-15128 |
| 6 | 05/30/2003 | QCD | QUIT CLAIM DEED | LORANG, ALBERT W | LORANG, ALBERT W & JUNE L | | | | 102224 | 2003-08016 |
| 7 | 04/16/1990 | WARRANTY D | WARRANTY DEED | | | | | $0.00 | 0 | 1829-002481 |
Payout Agreement
| No payout information available.. |