Property
Account |
| Property ID: | 22917 | Abbreviated Legal Description: | 33-8-38 PT TRACT 75 IN NE1/4SE1/4 |
| Parcel Number: | 380833410010 | Agent Code: | |
| Type: | Real | | |
| Tax Area: | 310 - 101-8 | Land Use Code | 11 |
| Open Space: | N | DFL | N |
| Historic Property: | N | Remodel Property: | N |
| Multi-Family Redevelopment: | N | | |
| Township: | 8 | Section: | 33 |
| Range: | 38 |
Location |
| Address: | 5589 SOUTH FORK COPPEI RD WA 99329 | Mapsco: | |
| Neighborhood: | A- Mnt Property Cabin | Map ID: | |
| Neighborhood CD: | 513175 |
Owner |
| Name: | JONES STEPHEN V & CINDY S REVOCABLE LIVING TRUST | Owner ID: | 57684 |
| Mailing Address: | 5589 S FORK COPPEI RD WAITSBURG, WA 99361 | % Ownership: | 100.0000000000% |
| | | Exemptions: | |
Taxes and Assessment Details
Values
| (+) Improvement Homesite Value: | + | N/A | |
| (+) Improvement Non-Homesite Value: | + | N/A | |
| (+) Land Homesite Value: | + | N/A | |
| (+) Land Non-Homesite Value: | + | N/A | Ag / Timber Use Value |
| (+) Curr Use (HS): | + | N/A | N/A |
| (+) Curr Use (NHS): | + | N/A | N/A |
| | | -------------------------- | |
| (=) Market Value: | = | N/A | |
| (–) Productivity Loss: | – | N/A | |
| | | -------------------------- | |
| (=) Subtotal: | = | N/A | |
| (+) Senior Appraised Value: | + | N/A | |
| (+) Non-Senior Appraised Value: | + | N/A | |
| | | -------------------------- | |
| (=) Total Appraised Value: | = | N/A | |
| (–) Senior Exemption Loss: | – | N/A | |
| (–) Exemption Loss: | – | N/A | |
| | | -------------------------- | |
| (=) Taxable Value: | = | N/A | |
Taxing Jurisdiction
| Owner: | JONES STEPHEN V & CINDY S REVOCABLE LIVING TRUST | | |
| % Ownership: | 100.0000000000% | | |
| Total Value: | N/A | | |
| Tax Area: | 310 - 101-8 |
| CERFD | CURRENT EXPENSE REFUND 010 | N/A | N/A | N/A | N/A | | |
| CURREXP | CURRENT EXPENSE 010 | N/A | N/A | N/A | N/A | | |
| HUMNSERV | HUMAN SERVICES 119 | N/A | N/A | N/A | N/A | | |
| SLDREL | SOLDIERS RELIEF 121 | N/A | N/A | N/A | N/A | | |
| EMERGSER | EMS 147 | N/A | N/A | N/A | N/A | | |
| EMSRFD | EMS REFUND 147 | N/A | N/A | N/A | N/A | | |
| FD8EXP | FD #8 EXPENSE 697 | N/A | N/A | N/A | N/A | | |
| RLBRFD | RURAL LIBRARY REFUND 623 | N/A | N/A | N/A | N/A | | |
| RURALLIB | RURAL LIBRARY 623 | N/A | N/A | N/A | N/A | | |
| PORTRFD | PORT REFUND 640 | N/A | N/A | N/A | N/A | | |
| PORTWWGEN | PORT OF WW 640 | N/A | N/A | N/A | N/A | | |
| SD101CAP | SD #101 CAP 752 | N/A | N/A | N/A | N/A | | |
| SD101GEN | SD #101 GENERAL 750 | N/A | N/A | N/A | N/A | | |
| ST2 | STATE SCHOOL PART 2 600 | N/A | N/A | N/A | N/A | | |
| STATESCHL | STATE SCHOOL 600 | N/A | N/A | N/A | N/A | | |
| STREFUND | STATE REFUND LEVY 603 | N/A | N/A | N/A | N/A | | |
| COROAD | COUNTY ROAD 115 | N/A | N/A | N/A | N/A | | |
| CRPRD | COUNTY ROAD REFUND 115 | N/A | N/A | N/A | N/A | | |
| | Total Tax Rate: | N/A | | | | | |
| | | | | Taxes w/Current Exemptions: | N/A | | |
| | | | | Taxes w/o Exemptions: | N/A | | |
Improvement / Building
| Improvement #1: | RESIDENTIAL | State Code: | 11 | 2484.0 sqft | Value: | N/A |
| Exterior Wall: | STUCCO | Heating/Cooling: | WARM & COOLED AIR | | Number of Bathrooms: | 2.5 | Number of Bedrooms: | 3 | | Plumbing: | 12 | Roof Covering: | COMP SHINGLE |
|
| | Type | Description | Class CD | Sub Class CD | Year Built | Area |
| | MA | Main Area | 1 | 40 | 2013 | 2484.0 |
| | RPC | OPEN PORCH W/ROOF , CEILED | 1 | 40 | 2013 | 80.0 |
| | RPC | OPEN PORCH W/ROOF , CEILED | 1 | 40 | 2013 | 240.0 |
| | ATG | Attached Garage | 1 | 40 | 2013 | 1008.0 |
| | RPC | OPEN PORCH W/ROOF , CEILED | 1 | 40 | 2013 | 436.0 |
| | S1F | Single One Story Fireplace | 1 | | 2013 | 1.0 |
| | POL2 | POLE BUILDING-CONCRETE | 1 | 30 | 2016 | 810.0 |
Sketch
Property Image
Land
| 1 | 45000-HS | Homesite 45000 | 1.0000 | 0.00 | 0.00 | 0.00 | 1.00 | N/A | N/A |
| 2 | 16-MTN | Mountain | 8.1200 | 0.00 | 0.00 | 0.00 | 1.00 | N/A | N/A |
Roll Value History
| 2026 | N/A | N/A | N/A | N/A | N/A |
| 2025 | $368,490 | $51,500 | $0 | $419,990 | $419,990 |
| 2024 | $350,940 | $51,500 | $0 | $402,440 | $402,440 |
| 2023 | $350,940 | $29,060 | $0 | $380,000 | $380,000 |
| 2022 | $280,750 | $29,060 | $0 | $309,810 | $309,810 |
| 2021 | $280,750 | $29,060 | $0 | $309,810 | $309,810 |
| 2020 | $280,750 | $29,060 | $0 | $309,810 | $309,810 |
| 2019 | $280,750 | $29,060 | $0 | $309,810 | $309,810 |
| 2018 | $280,750 | $29,060 | $0 | $309,810 | $309,810 |
| 2017 | $280,750 | $29,060 | $0 | $309,810 | $309,810 |
| 2016 | $280,750 | $29,060 | $0 | $309,810 | $309,810 |
| 2015 | $266,100 | $29,060 | $0 | $295,160 | $295,160 |
| 2014 | $266,100 | $29,060 | $0 | $295,160 | $295,160 |
| 2013 | $114,200 | $29,100 | $4,065 | $143,300 | $143,300 |
| 2012 | $0 | $29,100 | $0 | $0 | $0 |
| 2011 | $0 | $29,100 | $0 | $0 | $0 |
| 2010 | $0 | $29,100 | $0 | $0 | $0 |
| 2009 | $0 | $29,100 | $0 | $0 | $0 |
| 2008 | $0 | $29,100 | $0 | $0 | $0 |
| 2007 | $0 | $29,100 | $0 | $0 | $0 |
Deed and Sales History
| 1 | 10/27/2015 | QCD | QUIT CLAIM DEED | COPPEI HOLDINGS LLC | JONES STEPHEN V & CINDY S REVOCABLE LIVING TRUST | 2 PARCELS | | | 129086 | 2015-09452 |
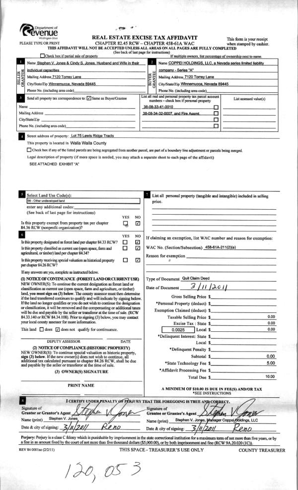
| 2 | 04/27/2011 | QCD | QUIT CLAIM DEED | JONES, STEPHEN V & CINDY S | COPPEI HOLDINGS LLC | | | | 120053 | 2011-03367 |
| 3 | 09/16/1998 | WARRANTY D | WARRANTY DEED | | | | | $29,000.00 | 91252 | 2729-810682 |
|   | |
Payout Agreement
| No payout information available.. |