Property
Account |
| Property ID: | 22836 | Abbreviated Legal Description: | PROSPECT TERRACE LOT 21 |
| Parcel Number: | 360732810021 | Agent Code: | |
| Type: | Real | | |
| Tax Area: | 6 - OL-140-F-FB | Land Use Code | 11 |
| Open Space: | N | DFL | N |
| Historic Property: | N | Remodel Property: | N |
| Multi-Family Redevelopment: | N | | |
| Township: | 7 | Section: | 32 |
| Range: | 36 |
Location |
| Address: | 955 HIGHLAND RD WA 99362 | Mapsco: | |
| Neighborhood: | G Res Rural/City Inf | Map ID: | |
| Neighborhood CD: | 614012 |
Owner |
| Name: | BALLARD JOAN TERESA | Owner ID: | 73316 |
| Mailing Address: | 955 HIGHLAND RD WALLA WALLA, WA 99362 | % Ownership: | 100.0000000000% |
| | | Exemptions: | |
Taxes and Assessment Details
Property Tax Information as of
02/21/2026
Click on "Statement Details" to expand or collapse a tax statement.
* Please enter a valid date ** Please enter a valid date *
Statement Details |
| | TOTAL: | $0.00 | $0.00 | $0.00 | $0.00 | $0.00 | $0.00 |
|
| | $0.00 | $0.00 | $0.00 | $0.00 | $0.00 | $0.00 |
Values
| (+) Improvement Homesite Value: | + | $0 | |
| (+) Improvement Non-Homesite Value: | + | $319,730 | |
| (+) Land Homesite Value: | + | $0 | |
| (+) Land Non-Homesite Value: | + | $85,000 | |
| (+) Curr Use (HS): | + | $0 | $0 |
| (+) Curr Use (NHS): | + | $0 | $0 |
| | | -------------------------- | |
| (=) Market Value: | = | $404,730 | |
| (–) Productivity Loss: | – | $0 | |
| | | -------------------------- | |
| (=) Subtotal: | = | $404,730 | |
| (+) Senior Appraised Value: | + | $0 | |
| (+) Non-Senior Appraised Value: | + | $404,730 | |
| | | -------------------------- | |
| (=) Total Appraised Value: | = | $404,730 | |
| (–) Senior Exemption Loss: | – | $0 | |
| (–) Exemption Loss: | – | $0 | |
| | | -------------------------- | |
| (=) Taxable Value: | = | $404,730 | |
Taxing Jurisdiction
| Owner: | BALLARD JOAN TERESA | | |
| % Ownership: | 100.0000000000% | | |
| Total Value: | $404,730 | | |
| Tax Area: | 6 - OL-140-F-FB |
| CERFD | CURRENT EXPENSE REFUND 010 | 0.0000000000 | $404,730 | $404,730 | $0.00 | | |
| CURREXP | CURRENT EXPENSE 010 | 1.0175366760 | $404,730 | $404,730 | $411.83 | | |
| HUMNSERV | HUMAN SERVICES 119 | 0.0250000000 | $404,730 | $404,730 | $10.12 | | |
| SLDREL | SOLDIERS RELIEF 121 | 0.0155990005 | $404,730 | $404,730 | $6.31 | | |
| EMERGSER | EMS 147 | 0.3792580840 | $404,730 | $404,730 | $153.50 | | |
| EMSRFD | EMS REFUND 147 | 0.0000000000 | $404,730 | $404,730 | $0.00 | | |
| PORTRFD | PORT REFUND 640 | 0.0000000000 | $404,730 | $404,730 | $0.00 | | |
| PORTWWGEN | PORT OF WW 640 | 0.2460186015 | $404,730 | $404,730 | $99.57 | | |
| SD140BOND | SD #140 BOND 764 | 0.8342371393 | $404,730 | $404,730 | $337.64 | | |
| SD140GEN | SD #140 GENERAL 760 | 2.0646500647 | $404,730 | $404,730 | $835.63 | | |
| ST2 | STATE SCHOOL PART 2 600 | 0.8131451643 | $404,730 | $404,730 | $329.10 | | |
| STATESCHL | STATE SCHOOL 600 | 1.5158548041 | $404,730 | $404,730 | $613.51 | | |
| STREFUND | STATE REFUND LEVY 603 | 0.0000000000 | $404,730 | $404,730 | $0.00 | | |
| CWWBOND | C OF WW BOND 643 | 0.2760494372 | $404,730 | $404,730 | $111.73 | | |
| CWWGEN | CITY OF WW 631 | 1.6100204973 | $404,730 | $404,730 | $651.62 | | |
| CWWRFD | CITY OF WALLA WALLA REFUND 631 | 0.0000000000 | $404,730 | $404,730 | $0.00 | | |
| | Total Tax Rate: | 8.7973694689 | | | | | |
| | | | | Taxes w/Current Exemptions: | $3,560.56 | | |
| | | | | Taxes w/o Exemptions: | $3,560.56 | | |
Improvement / Building
| Improvement #1: | RESIDENTIAL | State Code: | 11 | 1512.0 sqft | Value: | $319,730 |
| Exterior Wall: | HARDBOARD | Heating/Cooling: | WARM & COOLED AIR | | Number of Bathrooms: | 2 | Number of Bedrooms: | 3 | | Plumbing: | 10 | Roof Covering: | COMP SHINGLE |
|
| | Type | Description | Class CD | Sub Class CD | Year Built | Area |
| | MA | Main Area | 1 | 30 | 2009 | 1512.0 |
| | SI1 | SITE IMPROVEMENT | 1 | 30 | 2009 | 2.0 |
| | ATG | Attached Garage | 1 | 30 | 2009 | 400.0 |
| | RPO | OPEN PORCH W/ROOF | 1 | 30 | 2009 | 80.0 |
| | GFP | GAS FIREPLACE | 1 | 30 | 2009 | 1.0 |
Sketch
Property Image
Land
| 1 | RES 1 | Converted: Residential | 0.1820 | 7928.00 | 0.00 | 0.00 | 1.00 | $85,000 | $0 |
Roll Value History
| 2026 | N/A | N/A | N/A | N/A | N/A |
| 2025 | $328,710 | $125,000 | $0 | $453,710 | $453,710 |
| 2024 | $335,710 | $85,000 | $0 | $420,710 | $420,710 |
| 2023 | $319,730 | $85,000 | $0 | $404,730 | $404,730 |
| 2022 | $304,500 | $70,000 | $0 | $374,500 | $374,500 |
| 2021 | $243,600 | $70,000 | $0 | $313,600 | $313,600 |
| 2020 | $168,000 | $70,000 | $0 | $238,000 | $238,000 |
| 2019 | $168,000 | $70,000 | $0 | $238,000 | $238,000 |
| 2018 | $158,100 | $60,000 | $0 | $218,100 | $218,100 |
| 2017 | $158,100 | $60,000 | $0 | $218,100 | $218,100 |
| 2016 | $155,000 | $60,000 | $0 | $215,000 | $215,000 |
| 2015 | $147,620 | $60,000 | $0 | $207,620 | $207,620 |
| 2014 | $134,200 | $60,000 | $0 | $194,200 | $194,200 |
| 2013 | $134,200 | $60,000 | $0 | $194,200 | $194,200 |
| 2012 | $128,400 | $60,000 | $0 | $0 | $0 |
| 2011 | $147,700 | $60,000 | $0 | $0 | $0 |
| 2010 | $0 | $60,000 | $0 | $0 | $0 |
| 2009 | $0 | $60,000 | $0 | $0 | $0 |
| 2008 | $0 | $3,800 | $0 | $0 | $0 |
| 2007 | $134,200 | $60,000 | $0 | $0 | $0 |
Deed and Sales History
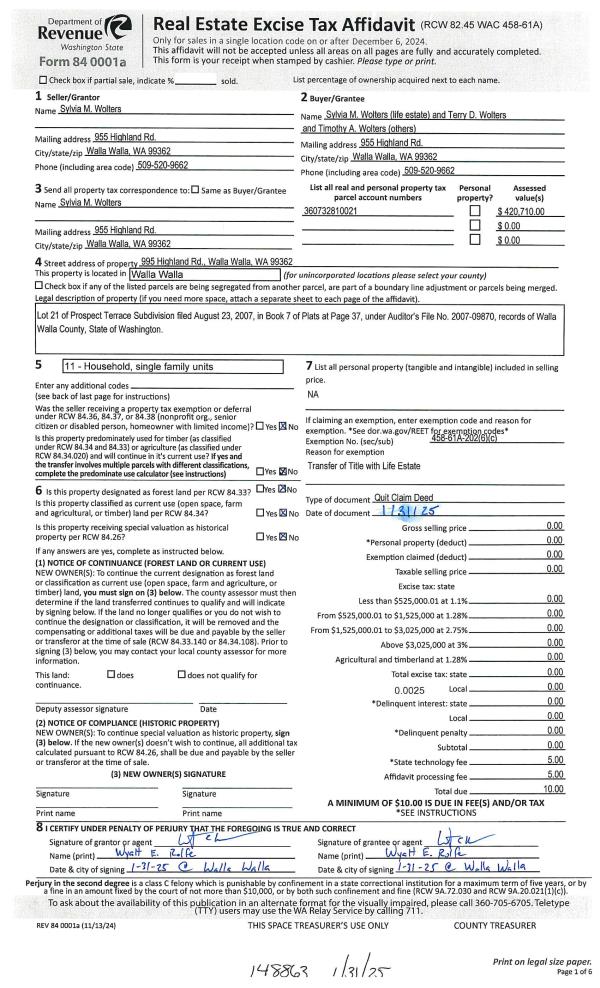
| 1 | 01/31/2025 | QCD | QUIT CLAIM DEED | WOLTERS SYLVIA M | WOLTERS SYLVIA M LIFE ESTATE | | | | 148863 | 2025-00528 |
| 2 | 02/09/2024 | SWD | STATUTORY WARRANTY DEED | BALLARD JOAN TERESA | WOLTERS SYLVIA M | | | $490,000.00 | 147130 | 2024-00698 |
| 3 | 03/24/2023 | SWD | STATUTORY WARRANTY DEED | BATSON OLIVER A & JULIE C | BALLARD JOAN TERESA | | | $455,000.00 | 145556 | 2023-01504 |
| 4 | 03/10/2015 | SWD | STATUTORY WARRANTY DEED | WEBER MATTHEW R | BATSON OLIVER A & JULIE C | | | $217,000.00 | 127555 | 2015-02025 |
| 5 | 09/30/2009 | WARRANTY D | WARRANTY DEED | HAYDEN HOMES LLC | WEBER, MATTHEW R | | | $215,730.00 | 117413 | 2009-09774 |
| 6 | 12/05/2007 | WARRANTY D | WARRANTY DEED | HAYDEN ENTERPRISES INC | | | | | 114183 | 2007-13846 |
Payout Agreement
| No payout information available.. |