Property
Account |
| Property ID: | 22825 | Abbreviated Legal Description: | PROSPECT TERRACE LOT 11 |
| Parcel Number: | 360732810011 | Agent Code: | |
| Type: | Real | | |
| Tax Area: | 6 - OL-140-F-FB | Land Use Code | 11 |
| Open Space: | N | DFL | N |
| Historic Property: | N | Remodel Property: | N |
| Multi-Family Redevelopment: | N | | |
| Township: | 7 | Section: | 32 |
| Range: | 36 |
Location |
| Address: | 905 HEDINE RD WA 99362 | Mapsco: | |
| Neighborhood: | G Res Rural/City Inf | Map ID: | |
| Neighborhood CD: | 614012 |
Owner |
| Name: | KETTNER REBECCA R & GREGORY D | Owner ID: | 67871 |
| Mailing Address: | 905 HEDINE RD WALLA WALLA, WA 99362 | % Ownership: | 100.0000000000% |
| | | Exemptions: | |
Taxes and Assessment Details
Property Tax Information as of
02/21/2026
Click on "Statement Details" to expand or collapse a tax statement.
* Please enter a valid date ** Please enter a valid date *
Statement Details |
| | TOTAL: | $0.00 | $0.00 | $0.00 | $0.00 | $0.00 | $0.00 |
|
| | $0.00 | $0.00 | $0.00 | $0.00 | $0.00 | $0.00 |
Values
| (+) Improvement Homesite Value: | + | $0 | |
| (+) Improvement Non-Homesite Value: | + | $370,490 | |
| (+) Land Homesite Value: | + | $0 | |
| (+) Land Non-Homesite Value: | + | $85,000 | |
| (+) Curr Use (HS): | + | $0 | $0 |
| (+) Curr Use (NHS): | + | $0 | $0 |
| | | -------------------------- | |
| (=) Market Value: | = | $455,490 | |
| (–) Productivity Loss: | – | $0 | |
| | | -------------------------- | |
| (=) Subtotal: | = | $455,490 | |
| (+) Senior Appraised Value: | + | $0 | |
| (+) Non-Senior Appraised Value: | + | $455,490 | |
| | | -------------------------- | |
| (=) Total Appraised Value: | = | $455,490 | |
| (–) Senior Exemption Loss: | – | $0 | |
| (–) Exemption Loss: | – | $0 | |
| | | -------------------------- | |
| (=) Taxable Value: | = | $455,490 | |
Taxing Jurisdiction
| Owner: | KETTNER REBECCA R & GREGORY D | | |
| % Ownership: | 100.0000000000% | | |
| Total Value: | $455,490 | | |
| Tax Area: | 6 - OL-140-F-FB |
| CERFD | CURRENT EXPENSE REFUND 010 | 0.0000000000 | $455,490 | $455,490 | $0.00 | | |
| CURREXP | CURRENT EXPENSE 010 | 1.0175366760 | $455,490 | $455,490 | $463.48 | | |
| HUMNSERV | HUMAN SERVICES 119 | 0.0250000000 | $455,490 | $455,490 | $11.39 | | |
| SLDREL | SOLDIERS RELIEF 121 | 0.0155990005 | $455,490 | $455,490 | $7.11 | | |
| EMERGSER | EMS 147 | 0.3792580840 | $455,490 | $455,490 | $172.75 | | |
| EMSRFD | EMS REFUND 147 | 0.0000000000 | $455,490 | $455,490 | $0.00 | | |
| PORTRFD | PORT REFUND 640 | 0.0000000000 | $455,490 | $455,490 | $0.00 | | |
| PORTWWGEN | PORT OF WW 640 | 0.2460186015 | $455,490 | $455,490 | $112.06 | | |
| SD140BOND | SD #140 BOND 764 | 0.8342371393 | $455,490 | $455,490 | $379.99 | | |
| SD140GEN | SD #140 GENERAL 760 | 2.0646500647 | $455,490 | $455,490 | $940.43 | | |
| ST2 | STATE SCHOOL PART 2 600 | 0.8131451643 | $455,490 | $455,490 | $370.38 | | |
| STATESCHL | STATE SCHOOL 600 | 1.5158548041 | $455,490 | $455,490 | $690.46 | | |
| STREFUND | STATE REFUND LEVY 603 | 0.0000000000 | $455,490 | $455,490 | $0.00 | | |
| CWWBOND | C OF WW BOND 643 | 0.2760494372 | $455,490 | $455,490 | $125.74 | | |
| CWWGEN | CITY OF WW 631 | 1.6100204973 | $455,490 | $455,490 | $733.35 | | |
| CWWRFD | CITY OF WALLA WALLA REFUND 631 | 0.0000000000 | $455,490 | $455,490 | $0.00 | | |
| | Total Tax Rate: | 8.7973694689 | | | | | |
| | | | | Taxes w/Current Exemptions: | $4,007.14 | | |
| | | | | Taxes w/o Exemptions: | $4,007.14 | | |
Improvement / Building
| Improvement #1: | RESIDENTIAL | State Code: | 11 | 2008.0 sqft | Value: | $370,490 |
| Exterior Wall: | PLYWOOD | Heating/Cooling: | WARM & COOLED AIR | | Number of Bathrooms: | 2.5 | Number of Bedrooms: | 3 | | Plumbing: | 13 | Roof Covering: | COMP SHINGLE |
|
| | Type | Description | Class CD | Sub Class CD | Year Built | Area |
| | MA | Main Area | 2 | 30 | 2008 | 2008.0 |
| | SI1 | SITE IMPROVEMENT | 2 | 30 | 2008 | 2.5 |
| | UPFL | Upper Floor (included in main area) | 2 | 30 | 2008 | 819.0 |
| | ATG | Attached Garage | 2 | 30 | 2008 | 570.0 |
| | GFP | GAS FIREPLACE | 2 | 30 | 2008 | 1.0 |
Sketch
Property Image
Land
| 1 | RES 1 | Converted: Residential | 0.1665 | 7253.00 | 0.00 | 0.00 | 1.00 | $85,000 | $0 |
Roll Value History
| 2026 | N/A | N/A | N/A | N/A | N/A |
| 2025 | $323,070 | $125,000 | $0 | $448,070 | $448,070 |
| 2024 | $370,490 | $85,000 | $0 | $455,490 | $455,490 |
| 2023 | $370,490 | $85,000 | $0 | $455,490 | $455,490 |
| 2022 | $336,810 | $70,000 | $0 | $406,810 | $406,810 |
| 2021 | $276,080 | $70,000 | $0 | $346,080 | $346,080 |
| 2020 | $204,500 | $70,000 | $0 | $274,500 | $274,500 |
| 2019 | $204,500 | $70,000 | $0 | $274,500 | $274,500 |
| 2018 | $186,710 | $60,000 | $0 | $246,710 | $246,710 |
| 2017 | $181,280 | $60,000 | $0 | $241,280 | $241,280 |
| 2016 | $157,630 | $60,000 | $0 | $217,630 | $217,630 |
| 2015 | $157,630 | $60,000 | $0 | $217,630 | $217,630 |
| 2014 | $143,300 | $60,000 | $0 | $203,300 | $203,300 |
| 2013 | $143,300 | $60,000 | $0 | $203,300 | $203,300 |
| 2012 | $136,500 | $60,000 | $0 | $0 | $0 |
| 2011 | $136,500 | $60,000 | $0 | $0 | $0 |
| 2010 | $158,300 | $60,000 | $0 | $0 | $0 |
| 2009 | $182,600 | $60,000 | $0 | $0 | $0 |
| 2008 | $0 | $3,700 | $0 | $0 | $0 |
| 2007 | $143,300 | $60,000 | $0 | $0 | $0 |
Deed and Sales History
| 1 | 09/14/2020 | QCD | QUIT CLAIM DEED | SMITH REBECCA R | KETTNER REBECCA R & GREGORY D | | | | 139905 | 2020-09290 |
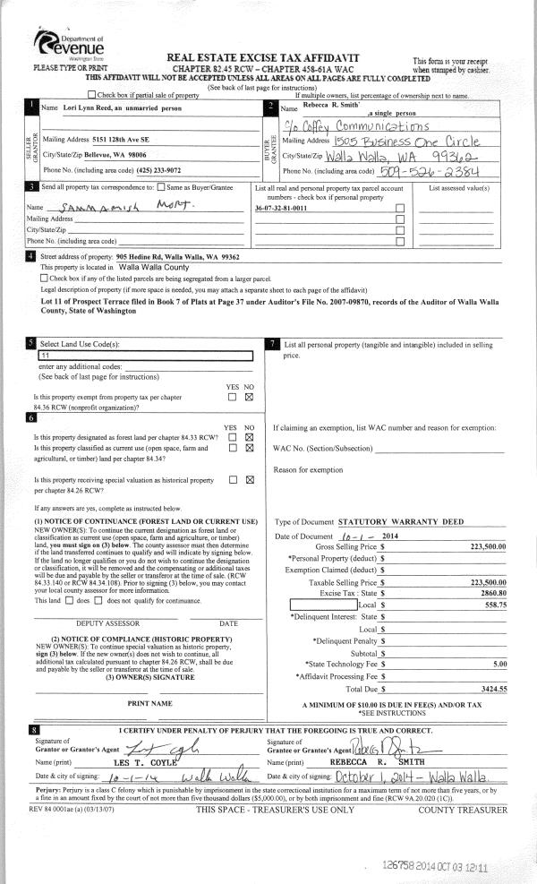
| 2 | 10/01/2014 | SWD | STATUTORY WARRANTY DEED | REED LORI LYNN | SMITH REBECCA R | | | $223,500.00 | 126758 | 2014-07268 |
| 3 | 05/19/2008 | WARRANTY D | WARRANTY DEED | HAYDEN HOMES LLC | REED, LORI LYNN | | | $256,196.00 | 115048 | 2008-05060 |
| 4 | 12/05/2007 | WARRANTY D | WARRANTY DEED | HAYDEN ENTERPRISES INC | | | | | 114183 | 2007-13846 |
Payout Agreement
| No payout information available.. |