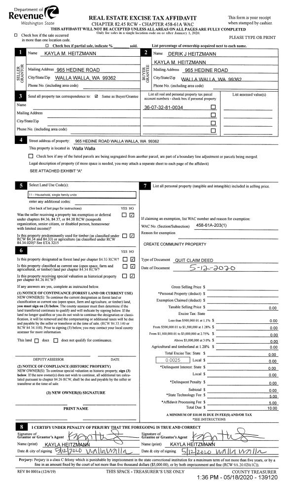
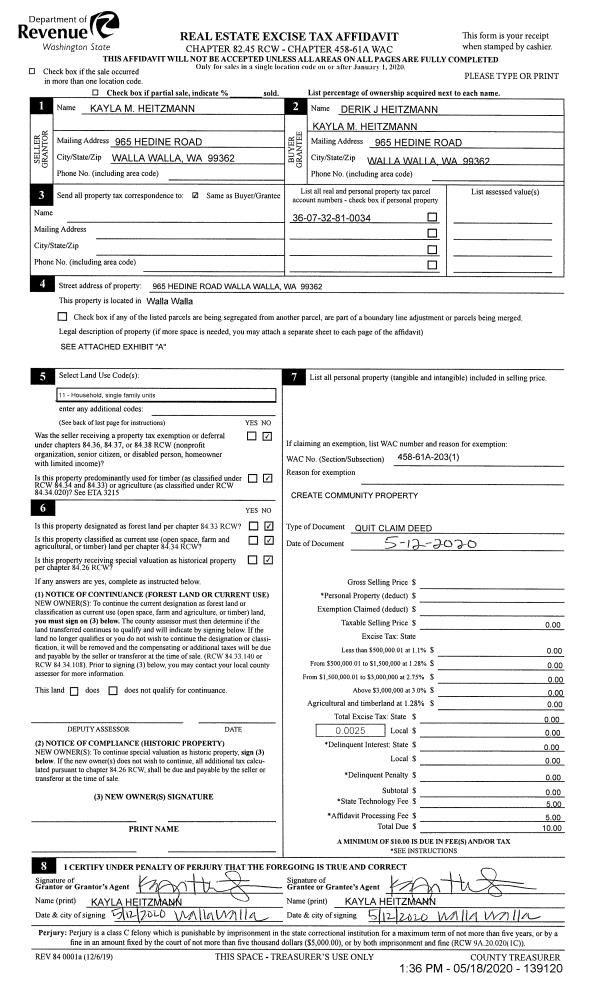
Property
Account |
| Property ID: | 22817 | Abbreviated Legal Description: | PROSPECT TERRACE LOT 34 |
| Parcel Number: | 360732810034 | Agent Code: | |
| Type: | Real | | |
| Tax Area: | 6 - OL-140-F-FB | Land Use Code | 11 |
| Open Space: | N | DFL | N |
| Historic Property: | N | Remodel Property: | N |
| Multi-Family Redevelopment: | N | | |
| Township: | 7 | Section: | 32 |
| Range: | 36 |
Location |
| Address: | 965 HEDINE RD WA 99362 | Mapsco: | |
| Neighborhood: | G Res Rural/City Inf | Map ID: | |
| Neighborhood CD: | 614012 |
Owner |
| Name: | LIN DONNA | Owner ID: | 70714 |
| Mailing Address: | 2050 WALLACE ST WALLA WALLA, WA 99362 | % Ownership: | 100.0000000000% |
| | | Exemptions: | |
Taxes and Assessment Details
Values
| (+) Improvement Homesite Value: | + | $0 | |
| (+) Improvement Non-Homesite Value: | + | $310,020 | |
| (+) Land Homesite Value: | + | $0 | |
| (+) Land Non-Homesite Value: | + | $85,000 | |
| (+) Curr Use (HS): | + | $0 | $0 |
| (+) Curr Use (NHS): | + | $0 | $0 |
| | | -------------------------- | |
| (=) Market Value: | = | $395,020 | |
| (–) Productivity Loss: | – | $0 | |
| | | -------------------------- | |
| (=) Subtotal: | = | $395,020 | |
| (+) Senior Appraised Value: | + | $0 | |
| (+) Non-Senior Appraised Value: | + | $395,020 | |
| | | -------------------------- | |
| (=) Total Appraised Value: | = | $395,020 | |
| (–) Senior Exemption Loss: | – | $0 | |
| (–) Exemption Loss: | – | $0 | |
| | | -------------------------- | |
| (=) Taxable Value: | = | $395,020 | |
Taxing Jurisdiction
| Owner: | LIN DONNA | | |
| % Ownership: | 100.0000000000% | | |
| Total Value: | $395,020 | | |
| Tax Area: | 6 - OL-140-F-FB |
| CERFD | CURRENT EXPENSE REFUND 010 | 0.0000000000 | $395,020 | $395,020 | $0.00 | | |
| CURREXP | CURRENT EXPENSE 010 | 1.0175366760 | $395,020 | $395,020 | $401.95 | | |
| HUMNSERV | HUMAN SERVICES 119 | 0.0250000000 | $395,020 | $395,020 | $9.88 | | |
| SLDREL | SOLDIERS RELIEF 121 | 0.0155990005 | $395,020 | $395,020 | $6.16 | | |
| EMERGSER | EMS 147 | 0.3792580840 | $395,020 | $395,020 | $149.81 | | |
| EMSRFD | EMS REFUND 147 | 0.0000000000 | $395,020 | $395,020 | $0.00 | | |
| PORTRFD | PORT REFUND 640 | 0.0000000000 | $395,020 | $395,020 | $0.00 | | |
| PORTWWGEN | PORT OF WW 640 | 0.2460186015 | $395,020 | $395,020 | $97.18 | | |
| SD140BOND | SD #140 BOND 764 | 0.8342371393 | $395,020 | $395,020 | $329.54 | | |
| SD140GEN | SD #140 GENERAL 760 | 2.0646500647 | $395,020 | $395,020 | $815.58 | | |
| ST2 | STATE SCHOOL PART 2 600 | 0.8131451643 | $395,020 | $395,020 | $321.21 | | |
| STATESCHL | STATE SCHOOL 600 | 1.5158548041 | $395,020 | $395,020 | $598.79 | | |
| STREFUND | STATE REFUND LEVY 603 | 0.0000000000 | $395,020 | $395,020 | $0.00 | | |
| CWWBOND | C OF WW BOND 643 | 0.2760494372 | $395,020 | $395,020 | $109.05 | | |
| CWWGEN | CITY OF WW 631 | 1.6100204973 | $395,020 | $395,020 | $635.99 | | |
| CWWRFD | CITY OF WALLA WALLA REFUND 631 | 0.0000000000 | $395,020 | $395,020 | $0.00 | | |
| | Total Tax Rate: | 8.7973694689 | | | | | |
| | | | | Taxes w/Current Exemptions: | $3,475.14 | | |
| | | | | Taxes w/o Exemptions: | $3,475.14 | | |
Improvement / Building
| Improvement #1: | RESIDENTIAL | State Code: | 11 | 1244.0 sqft | Value: | $310,020 |
| Exterior Wall: | PLYWOOD | Heating/Cooling: | WARM & COOLED AIR | | Number of Bathrooms: | 2 | Number of Bedrooms: | 3 | | Plumbing: | 8 | Roof Covering: | COMP SHINGLE |
|
| | Type | Description | Class CD | Sub Class CD | Year Built | Area |
| | MA | Main Area | 1 | 30 | 2008 | 1244.0 |
| | SI1 | SITE IMPROVEMENT | 1 | 30 | 2008 | 1.5 |
| | ATG | Attached Garage | 1 | 30 | 2008 | 400.0 |
| | RPO | OPEN PORCH W/ROOF | 1 | 30 | 2008 | 121.0 |
| | GFP | GAS FIREPLACE | 1 | 30 | 2008 | 1.0 |
Sketch
Property Image
Land
| 1 | RES 1 | Converted: Residential | 0.1697 | 7392.00 | 0.00 | 0.00 | 1.00 | $85,000 | $0 |
Roll Value History
| 2026 | N/A | N/A | N/A | N/A | N/A |
| 2025 | $297,810 | $125,000 | $0 | $422,810 | $422,810 |
| 2024 | $310,020 | $85,000 | $0 | $395,020 | $395,020 |
| 2023 | $310,020 | $85,000 | $0 | $395,020 | $395,020 |
| 2022 | $295,260 | $70,000 | $0 | $365,260 | $365,260 |
| 2021 | $227,120 | $70,000 | $0 | $297,120 | $297,120 |
| 2020 | $146,530 | $70,000 | $0 | $216,530 | $216,530 |
| 2019 | $146,530 | $70,000 | $0 | $216,530 | $216,530 |
| 2018 | $134,190 | $60,000 | $0 | $194,190 | $194,190 |
| 2017 | $121,990 | $60,000 | $0 | $181,990 | $181,990 |
| 2016 | $119,600 | $60,000 | $0 | $179,600 | $179,600 |
| 2015 | $113,900 | $60,000 | $0 | $173,900 | $173,900 |
| 2014 | $113,900 | $60,000 | $0 | $173,900 | $173,900 |
| 2013 | $113,900 | $60,000 | $0 | $173,900 | $173,900 |
| 2012 | $109,100 | $60,000 | $0 | $0 | $0 |
| 2011 | $118,000 | $60,000 | $0 | $0 | $0 |
| 2010 | $110,300 | $60,000 | $0 | $0 | $0 |
| 2009 | $129,200 | $60,000 | $0 | $0 | $0 |
| 2008 | $0 | $3,700 | $0 | $0 | $0 |
| 2007 | $113,900 | $60,000 | $0 | $0 | $0 |
Deed and Sales History
| 1 | 11/30/2021 | SWD | STATUTORY WARRANTY DEED | HEITZMANN DERIK J & KAYLA M | LIN DONNA | | | $373,000.00 | 142968 | 2021-14139 |
| 2 | 05/12/2020 | QCD | QUIT CLAIM DEED | WATSON KAYLA MARIE | HEITZMANN DERIK J & KAYLA M | | | $0.00 | 139120 | 2020-04320 |
| 3 | 07/10/2015 | SWD | STATUTORY WARRANTY DEED | HOLMES DANA F | WATSON KAYLA MARIE | | | $185,000.00 | 128380 | 2015-05954 |
| 4 | 10/27/2008 | WARRANTY D | WARRANTY DEED | HAYDEN HOMES LLC | HOLMES, DANA F | | | $189,990.00 | 115881 | 2008-10899 |
| 5 | 12/05/2007 | WARRANTY D | WARRANTY DEED | HAYDEN ENTERPRISES INC | | | | | 114183 | 2007-13846 |
Payout Agreement
| No payout information available.. |