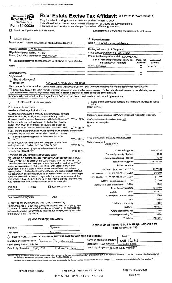
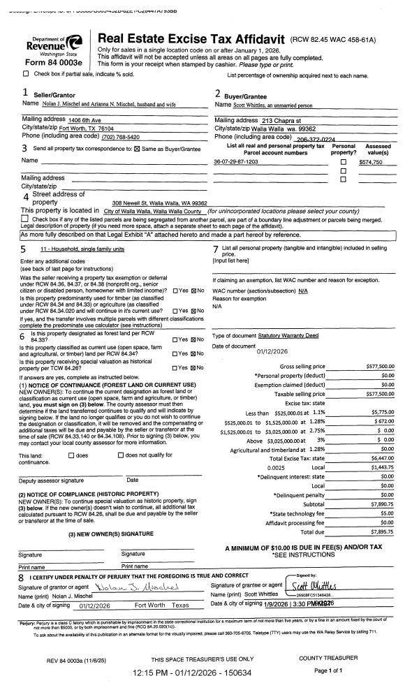
Property
Account |
| Property ID: | 22805 | Abbreviated Legal Description: | ROBERTS W 15' OF LOT 2 BLK 12; LOT 3 BLK 12 |
| Parcel Number: | 360729871203 | Agent Code: | |
| Type: | Real | | |
| Tax Area: | 1 - OL-140-F | Land Use Code | 11 |
| Open Space: | N | DFL | N |
| Historic Property: | N | Remodel Property: | N |
| Multi-Family Redevelopment: | N | | |
| Township: | 7 | Section: | 29 |
| Range: | 36 |
Location |
| Address: | 308 NEWELL ST WA 99362 | Mapsco: | |
| Neighborhood: | G-SFR | Map ID: | |
| Neighborhood CD: | 514011 |
Owner |
| Name: | MISCHEL NOLAN J & ARIANNA N | Owner ID: | 67421 |
| Mailing Address: | 308 NEWELL ST WALLA WALLA, WA 99362 | % Ownership: | 100.0000000000% |
| | | Exemptions: | |
Taxes and Assessment Details
Property Tax Information as of
02/21/2026
Click on "Statement Details" to expand or collapse a tax statement.
* Please enter a valid date ** Please enter a valid date *
Statement Details |
| | TOTAL: | $0.00 | $0.00 | $0.00 | $0.00 | $0.00 | $0.00 |
|
| | $0.00 | $0.00 | $0.00 | $0.00 | $0.00 | $0.00 |
Values
| (+) Improvement Homesite Value: | + | $0 | |
| (+) Improvement Non-Homesite Value: | + | $482,200 | |
| (+) Land Homesite Value: | + | $0 | |
| (+) Land Non-Homesite Value: | + | $70,690 | |
| (+) Curr Use (HS): | + | $0 | $0 |
| (+) Curr Use (NHS): | + | $0 | $0 |
| | | -------------------------- | |
| (=) Market Value: | = | $552,890 | |
| (–) Productivity Loss: | – | $0 | |
| | | -------------------------- | |
| (=) Subtotal: | = | $552,890 | |
| (+) Senior Appraised Value: | + | $0 | |
| (+) Non-Senior Appraised Value: | + | $552,890 | |
| | | -------------------------- | |
| (=) Total Appraised Value: | = | $552,890 | |
| (–) Senior Exemption Loss: | – | $0 | |
| (–) Exemption Loss: | – | $0 | |
| | | -------------------------- | |
| (=) Taxable Value: | = | $552,890 | |
Taxing Jurisdiction
| Owner: | MISCHEL NOLAN J & ARIANNA N | | |
| % Ownership: | 100.0000000000% | | |
| Total Value: | $552,890 | | |
| Tax Area: | 1 - OL-140-F |
| CERFD | CURRENT EXPENSE REFUND 010 | 0.0000000000 | $552,890 | $552,890 | $0.00 | | |
| CURREXP | CURRENT EXPENSE 010 | 1.0175366760 | $552,890 | $552,890 | $562.59 | | |
| HUMNSERV | HUMAN SERVICES 119 | 0.0250000000 | $552,890 | $552,890 | $13.82 | | |
| SLDREL | SOLDIERS RELIEF 121 | 0.0155990005 | $552,890 | $552,890 | $8.62 | | |
| EMERGSER | EMS 147 | 0.3792580840 | $552,890 | $552,890 | $209.69 | | |
| EMSRFD | EMS REFUND 147 | 0.0000000000 | $552,890 | $552,890 | $0.00 | | |
| PORTRFD | PORT REFUND 640 | 0.0000000000 | $552,890 | $552,890 | $0.00 | | |
| PORTWWGEN | PORT OF WW 640 | 0.2460186015 | $552,890 | $552,890 | $136.02 | | |
| SD140BOND | SD #140 BOND 764 | 0.8342371393 | $552,890 | $552,890 | $461.24 | | |
| SD140GEN | SD #140 GENERAL 760 | 2.0646500647 | $552,890 | $552,890 | $1,141.52 | | |
| ST2 | STATE SCHOOL PART 2 600 | 0.8131451643 | $552,890 | $552,890 | $449.58 | | |
| STATESCHL | STATE SCHOOL 600 | 1.5158548041 | $552,890 | $552,890 | $838.10 | | |
| STREFUND | STATE REFUND LEVY 603 | 0.0000000000 | $552,890 | $552,890 | $0.00 | | |
| CWWBOND | C OF WW BOND 643 | 0.2760494372 | $552,890 | $552,890 | $152.62 | | |
| CWWGEN | CITY OF WW 631 | 1.6100204973 | $552,890 | $552,890 | $890.16 | | |
| CWWRFD | CITY OF WALLA WALLA REFUND 631 | 0.0000000000 | $552,890 | $552,890 | $0.00 | | |
| | Total Tax Rate: | 8.7973694689 | | | | | |
| | | | | Taxes w/Current Exemptions: | $4,863.96 | | |
| | | | | Taxes w/o Exemptions: | $4,863.96 | | |
Improvement / Building
| Improvement #1: | RESIDENTIAL | State Code: | 11 | 2106.0 sqft | Value: | $482,200 |
| Exterior Wall: | SIDING | Heating/Cooling: | HEAT PUMP | | Number of Bathrooms: | 2 | Number of Bedrooms: | 5 | | Plumbing: | 10 | Roof Covering: | COMP SHINGLE |
|
| | Type | Description | Class CD | Sub Class CD | Year Built | Area |
| | MA | Main Area | 4 | 40 | 1906 | 2106.0 |
| | UPFL | Upper Floor (included in main area) | 4 | 40 | 1906 | 602.0 |
| | SI1 | SITE IMPROVEMENT | 4 | 40 | 1906 | 4.0 |
| | BASE | BASEMENT | 4 | 40 | 1906 | 1504.0 |
| | BPF | BASEMENT -PARTITIONED FINISH | 4 | 40 | 1906 | 1504.0 |
| | RCD | WOOD DECK W/ROOF, CEILED | 4 | 40 | 1906 | 192.0 |
| | DTG | Detached Garage | 4 | 40 | 1906 | 1200.0 |
Sketch
Property Image
Land
| 1 | RES 1 | Converted: Residential | 0.2238 | 9750.00 | 0.00 | 0.00 | 1.00 | $70,690 | $0 |
Roll Value History
| 2026 | N/A | N/A | N/A | N/A | N/A |
| 2025 | $467,500 | $107,250 | $0 | $574,750 | $574,750 |
| 2024 | $467,500 | $107,250 | $0 | $574,750 | $574,750 |
| 2023 | $482,200 | $70,690 | $0 | $552,890 | $552,890 |
| 2022 | $438,360 | $70,690 | $0 | $509,050 | $509,050 |
| 2021 | $350,690 | $70,690 | $0 | $421,380 | $421,380 |
| 2020 | $350,690 | $70,690 | $0 | $421,380 | $421,380 |
| 2019 | $350,690 | $70,690 | $0 | $421,380 | $421,380 |
| 2018 | $318,810 | $70,690 | $0 | $389,500 | $389,500 |
| 2017 | $291,800 | $43,900 | $0 | $335,700 | $335,700 |
| 2016 | $291,800 | $43,900 | $0 | $335,700 | $335,700 |
| 2015 | $291,800 | $43,900 | $0 | $335,700 | $335,700 |
| 2014 | $291,800 | $43,900 | $0 | $335,700 | $335,700 |
| 2013 | $291,800 | $43,900 | $0 | $335,700 | $335,700 |
| 2012 | $271,500 | $43,900 | $0 | $0 | $0 |
| 2011 | $271,500 | $43,900 | $0 | $0 | $0 |
| 2010 | $218,900 | $43,900 | $0 | $0 | $0 |
| 2009 | $248,100 | $43,900 | $0 | $0 | $0 |
| 2008 | $176,800 | $43,900 | $0 | $0 | $0 |
| 2007 | $176,800 | $43,900 | $0 | $0 | $0 |
Deed and Sales History
| 1 | 06/29/2020 | SWD | STATUTORY WARRANTY DEED | DOUGHTY THOMAS JAMES & SUZANNE MARIA | MISCHEL NOLAN J & ARIANNA N | | | $422,000.00 | 139387 | 2020-06016 |
| 2 | 05/22/2008 | WARRANTY D | WARRANTY DEED | BAGLEY, STANFORD L & JILL I | DOUGHTY, THOMAS JAMES & SUZANN | | | $439,750.00 | 115067 | 2008-05187 |
| 3 | 12/15/1993 | WARRANTY D | WARRANTY DEED | | | | | $46,000.00 | 80670 | 2149-313278 |
Payout Agreement
| No payout information available.. |