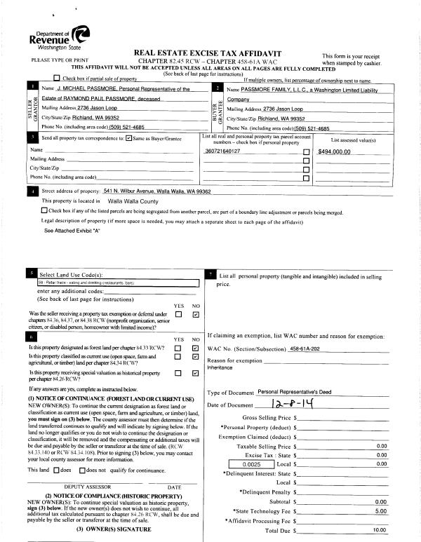
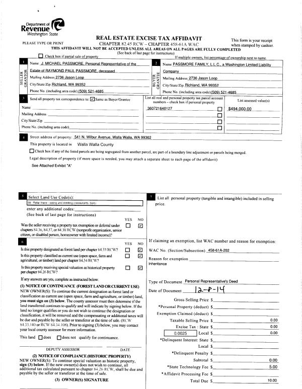
Property
Account |
| Property ID: | 22756 | Abbreviated Legal Description: | LUTCHERS LOTS 1, 2, 3, 4 & 5 LESS ELY PTN FOR STREET BLOCK 1 |
| Parcel Number: | 360721640127 | Agent Code: | |
| Type: | Real | | |
| Tax Area: | 1 - OL-140-F | Land Use Code | 58 |
| Open Space: | N | DFL | N |
| Historic Property: | N | Remodel Property: | N |
| Multi-Family Redevelopment: | N | | |
| Township: | 7 | Section: | 21 |
| Range: | 36 |
Location |
| Address: | 541 N WILBUR AVE WA 99362 | Mapsco: | |
| Neighborhood: | WW Downtown Core Area #2 | Map ID: | |
| Neighborhood CD: | 5342 |
Owner |
| Name: | PASSMORE FAMILY LLC | Owner ID: | 56219 |
| Mailing Address: | 2736 JASON LOOP RICHLAND, WA 99352 | % Ownership: | 100.0000000000% |
| | | Exemptions: | |
Taxes and Assessment Details
Property Tax Information as of
02/21/2026
Click on "Statement Details" to expand or collapse a tax statement.
* Please enter a valid date ** Please enter a valid date *
Statement Details |
| | TOTAL: | $0.00 | $0.00 | $0.00 | $0.00 | $0.00 | $0.00 |
|
| | $0.00 | $0.00 | $0.00 | $0.00 | $0.00 | $0.00 |
Values
| (+) Improvement Homesite Value: | + | $0 | |
| (+) Improvement Non-Homesite Value: | + | $333,400 | |
| (+) Land Homesite Value: | + | $0 | |
| (+) Land Non-Homesite Value: | + | $164,600 | |
| (+) Curr Use (HS): | + | $0 | $0 |
| (+) Curr Use (NHS): | + | $0 | $0 |
| | | -------------------------- | |
| (=) Market Value: | = | $498,000 | |
| (–) Productivity Loss: | – | $0 | |
| | | -------------------------- | |
| (=) Subtotal: | = | $498,000 | |
| (+) Senior Appraised Value: | + | $0 | |
| (+) Non-Senior Appraised Value: | + | $498,000 | |
| | | -------------------------- | |
| (=) Total Appraised Value: | = | $498,000 | |
| (–) Senior Exemption Loss: | – | $0 | |
| (–) Exemption Loss: | – | $0 | |
| | | -------------------------- | |
| (=) Taxable Value: | = | $498,000 | |
Taxing Jurisdiction
| Owner: | PASSMORE FAMILY LLC | | |
| % Ownership: | 100.0000000000% | | |
| Total Value: | $498,000 | | |
| Tax Area: | 1 - OL-140-F |
| CERFD | CURRENT EXPENSE REFUND 010 | 0.0000000000 | $498,000 | $498,000 | $0.00 | | |
| CURREXP | CURRENT EXPENSE 010 | 1.0175366760 | $498,000 | $498,000 | $506.73 | | |
| HUMNSERV | HUMAN SERVICES 119 | 0.0250000000 | $498,000 | $498,000 | $12.45 | | |
| SLDREL | SOLDIERS RELIEF 121 | 0.0155990005 | $498,000 | $498,000 | $7.77 | | |
| EMERGSER | EMS 147 | 0.3792580840 | $498,000 | $498,000 | $188.87 | | |
| EMSRFD | EMS REFUND 147 | 0.0000000000 | $498,000 | $498,000 | $0.00 | | |
| PORTRFD | PORT REFUND 640 | 0.0000000000 | $498,000 | $498,000 | $0.00 | | |
| PORTWWGEN | PORT OF WW 640 | 0.2460186015 | $498,000 | $498,000 | $122.52 | | |
| SD140BOND | SD #140 BOND 764 | 0.8342371393 | $498,000 | $498,000 | $415.45 | | |
| SD140GEN | SD #140 GENERAL 760 | 2.0646500647 | $498,000 | $498,000 | $1,028.20 | | |
| ST2 | STATE SCHOOL PART 2 600 | 0.8131451643 | $498,000 | $498,000 | $404.95 | | |
| STATESCHL | STATE SCHOOL 600 | 1.5158548041 | $498,000 | $498,000 | $754.90 | | |
| STREFUND | STATE REFUND LEVY 603 | 0.0000000000 | $498,000 | $498,000 | $0.00 | | |
| CWWBOND | C OF WW BOND 643 | 0.2760494372 | $498,000 | $498,000 | $137.47 | | |
| CWWGEN | CITY OF WW 631 | 1.6100204973 | $498,000 | $498,000 | $801.79 | | |
| CWWRFD | CITY OF WALLA WALLA REFUND 631 | 0.0000000000 | $498,000 | $498,000 | $0.00 | | |
| | Total Tax Rate: | 8.7973694689 | | | | | |
| | | | | Taxes w/Current Exemptions: | $4,381.10 | | |
| | | | | Taxes w/o Exemptions: | $4,381.10 | | |
Improvement / Building
| Improvement #1: | COMMERCIAL | State Code: | 58 | 2768.0 sqft | Value: | $333,400 |
| | Type | Description | Class CD | Sub Class CD | Year Built | Area |
| | MA | Main Area | D | * | 2007 | 2768.0 |
| | SI1 | SITE IMPROVEMENT | D | * | 2007 | 2.0 |
| | PRKSTLA | PARK STALL AVERAGE | D | * | 2007 | 21.0 |
Sketch
Property Image
Land
| 1 | COM 1 | Converted: Commercial | 0.3778 | 16458.00 | 0.00 | 0.00 | 1.00 | $164,600 | $0 |
Roll Value History
| 2026 | N/A | N/A | N/A | N/A | N/A |
| 2025 | $335,600 | $181,000 | $0 | $516,600 | $516,600 |
| 2024 | $333,400 | $181,000 | $0 | $514,400 | $514,400 |
| 2023 | $333,400 | $164,600 | $0 | $498,000 | $498,000 |
| 2022 | $333,400 | $164,600 | $0 | $498,000 | $498,000 |
| 2021 | $333,400 | $164,600 | $0 | $498,000 | $498,000 |
| 2020 | $333,400 | $164,600 | $0 | $498,000 | $498,000 |
| 2019 | $333,400 | $164,600 | $0 | $498,000 | $498,000 |
| 2018 | $333,400 | $164,600 | $0 | $498,000 | $498,000 |
| 2017 | $329,400 | $164,600 | $0 | $494,000 | $494,000 |
| 2016 | $329,400 | $164,600 | $0 | $494,000 | $494,000 |
| 2015 | $329,400 | $164,600 | $0 | $494,000 | $494,000 |
| 2014 | $329,400 | $164,600 | $0 | $494,000 | $494,000 |
| 2013 | $329,400 | $164,600 | $0 | $494,000 | $494,000 |
| 2012 | $442,100 | $90,500 | $0 | $0 | $0 |
| 2011 | $442,100 | $90,500 | $0 | $0 | $0 |
| 2010 | $442,100 | $90,500 | $0 | $0 | $0 |
| 2009 | $124,700 | $90,500 | $0 | $0 | $0 |
| 2008 | $329,400 | $164,600 | $0 | $0 | $0 |
Deed and Sales History
| 1 | 03/04/2015 | DPR | DEED OF PERSONAL REPRESENTATIVE | PASSMORE RAY | PASSMORE FAMILY LLC | | | $0.00 | 127547 | 2015-01982 |
| 2 | 03/04/2015 | DPR | DEED OF PERSONAL REPRESENTATIVE | PASSMORE RAY | PASSMORE RAY | | | $0.00 | 127546 | 2015-01981 |
| 3 | 01/08/2015 | DPR | DEED OF PERSONAL REPRESENTATIVE | PASSMORE RAY | PASSMORE FAMILY LLC | | | $0.00 | 127377 | 2015-00977 |
| 4 | 01/07/2015 | DPR | DEED OF PERSONAL REPRESENTATIVE | PASSMORE RAY | PASSMORE MICHAEL J | | | | 127220 | 2015-00089 |
| 5 | 02/07/1974 | WARRANTY D | WARRANTY DEED | | | | | $2,940.00 | 0 | 1305-34765 |
Payout Agreement
| No payout information available.. |