Property
Account |
| Property ID: | 22718 | Abbreviated Legal Description: | 19-7-36 LOT 3 OF AMENDED S/P (PT TAX 17) |
| Parcel Number: | 360719430048 | Agent Code: | |
| Type: | Real | | |
| Tax Area: | 1 - OL-140-F | Land Use Code | 64 |
| Open Space: | N | DFL | N |
| Historic Property: | N | Remodel Property: | N |
| Multi-Family Redevelopment: | N | | |
| Township: | 7 | Section: | 19 |
| Range: | 36 |
Location |
| Address: | 680 N 13TH AVE WALLA WALLA, WA 99362 | Mapsco: | |
| Neighborhood: | COMMERCIAL | Map ID: | |
| Neighborhood CD: | 3302 |
Owner |
| Name: | RDL HOLDINGS LLC | Owner ID: | 56279 |
| Mailing Address: | 680 N 13TH AVE WALLA WALLA, WA 99362 | % Ownership: | 100.0000000000% |
| | | Exemptions: | |
Taxes and Assessment Details
Values
| (+) Improvement Homesite Value: | + | N/A | |
| (+) Improvement Non-Homesite Value: | + | N/A | |
| (+) Land Homesite Value: | + | N/A | |
| (+) Land Non-Homesite Value: | + | N/A | Ag / Timber Use Value |
| (+) Curr Use (HS): | + | N/A | N/A |
| (+) Curr Use (NHS): | + | N/A | N/A |
| | | -------------------------- | |
| (=) Market Value: | = | N/A | |
| (–) Productivity Loss: | – | N/A | |
| | | -------------------------- | |
| (=) Subtotal: | = | N/A | |
| (+) Senior Appraised Value: | + | N/A | |
| (+) Non-Senior Appraised Value: | + | N/A | |
| | | -------------------------- | |
| (=) Total Appraised Value: | = | N/A | |
| (–) Senior Exemption Loss: | – | N/A | |
| (–) Exemption Loss: | – | N/A | |
| | | -------------------------- | |
| (=) Taxable Value: | = | N/A | |
Taxing Jurisdiction
| Owner: | RDL HOLDINGS LLC | | |
| % Ownership: | 100.0000000000% | | |
| Total Value: | N/A | | |
| Tax Area: | 1 - OL-140-F |
| CERFD | CURRENT EXPENSE REFUND 010 | N/A | N/A | N/A | N/A | | |
| CURREXP | CURRENT EXPENSE 010 | N/A | N/A | N/A | N/A | | |
| HUMNSERV | HUMAN SERVICES 119 | N/A | N/A | N/A | N/A | | |
| SLDREL | SOLDIERS RELIEF 121 | N/A | N/A | N/A | N/A | | |
| EMERGSER | EMS 147 | N/A | N/A | N/A | N/A | | |
| EMSRFD | EMS REFUND 147 | N/A | N/A | N/A | N/A | | |
| PORTRFD | PORT REFUND 640 | N/A | N/A | N/A | N/A | | |
| PORTWWGEN | PORT OF WW 640 | N/A | N/A | N/A | N/A | | |
| SD140BOND | SD #140 BOND 764 | N/A | N/A | N/A | N/A | | |
| SD140GEN | SD #140 GENERAL 760 | N/A | N/A | N/A | N/A | | |
| ST2 | STATE SCHOOL PART 2 600 | N/A | N/A | N/A | N/A | | |
| STATESCHL | STATE SCHOOL 600 | N/A | N/A | N/A | N/A | | |
| STREFUND | STATE REFUND LEVY 603 | N/A | N/A | N/A | N/A | | |
| CWWBOND | C OF WW BOND 643 | N/A | N/A | N/A | N/A | | |
| CWWGEN | CITY OF WW 631 | N/A | N/A | N/A | N/A | | |
| CWWRFD | CITY OF WALLA WALLA REFUND 631 | N/A | N/A | N/A | N/A | | |
| | Total Tax Rate: | N/A | | | | | |
| | | | | Taxes w/Current Exemptions: | N/A | | |
| | | | | Taxes w/o Exemptions: | N/A | | |
Improvement / Building
| Improvement #1: | COMMERCIAL | State Code: | 64 | 12000.0 sqft | Value: | N/A |
| | Type | Description | Class CD | Sub Class CD | Year Built | Area |
| | MA | Main Area | D | * | 2015 | 12000.0 |
| | SI1 | SITE IMPROVEMENT | D | * | 2015 | 7.0 |
Sketch
Property Image
Land
| 1 | COM 1 | Converted: Commercial | 0.9121 | 39731.08 | 0.00 | 0.00 | 1.00 | N/A | N/A |
Roll Value History
| 2026 | N/A | N/A | N/A | N/A | N/A |
| 2025 | $630,100 | $198,300 | $0 | $828,400 | $828,400 |
| 2024 | $630,100 | $198,300 | $0 | $828,400 | $828,400 |
| 2023 | $630,100 | $198,300 | $0 | $828,400 | $828,400 |
| 2022 | $630,100 | $198,300 | $0 | $828,400 | $828,400 |
| 2021 | $618,700 | $198,300 | $0 | $817,000 | $817,000 |
| 2020 | $618,700 | $198,300 | $0 | $817,000 | $817,000 |
| 2019 | $618,700 | $198,300 | $0 | $817,000 | $817,000 |
| 2018 | $618,700 | $198,300 | $0 | $817,000 | $817,000 |
| 2017 | $618,700 | $198,300 | $0 | $817,000 | $817,000 |
| 2016 | $585,300 | $198,300 | $0 | $783,600 | $783,600 |
| 2015 | $264,300 | $198,300 | $0 | $462,600 | $462,600 |
| 2014 | $0 | $198,300 | $0 | $198,300 | $198,300 |
| 2013 | $0 | $198,300 | $0 | $198,300 | $198,300 |
| 2012 | $0 | $198,300 | $0 | $0 | $0 |
| 2011 | $0 | $198,300 | $0 | $0 | $0 |
| 2010 | $0 | $198,300 | $0 | $0 | $0 |
| 2009 | $0 | $29,700 | $0 | $0 | $0 |
| 2008 | $0 | $29,700 | $0 | $0 | $0 |
| 2007 | $0 | $29,700 | $0 | $0 | $0 |
Deed and Sales History
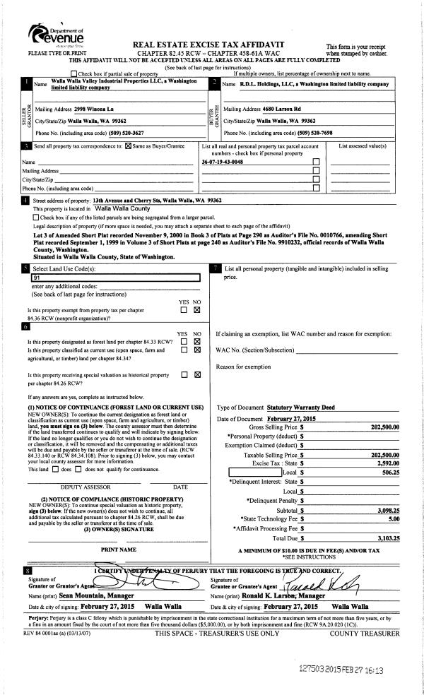
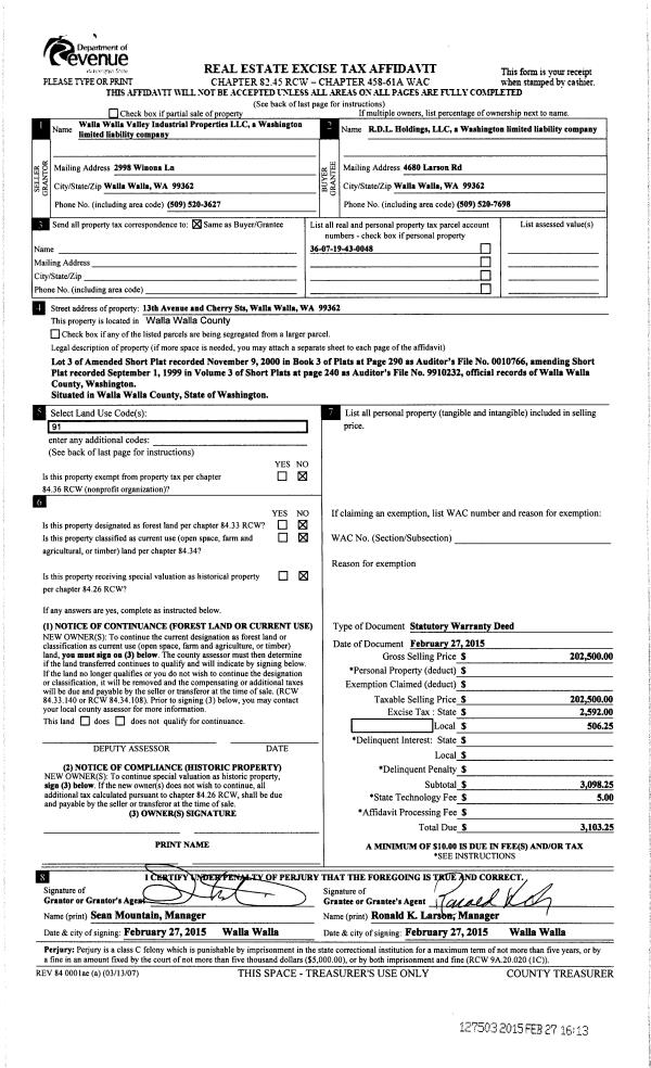
| 1 | 02/27/2015 | SWD | STATUTORY WARRANTY DEED | WALLA WALLA VALLEY INDUSTRIAL | RDL HOLDINGS LLC | | | $202,500.00 | 127503 | 2015-01749 |
| 2 | 05/05/2008 | WARRANTY D | WARRANTY DEED | ARTEMESIA LLC | WALLA WALLA VALLEY INDUSTRIAL | | | $215,000.00 | 114970 | 2008-04504 |
| 3 | 08/31/2006 | QCD | QUIT CLAIM DEED | NASH, ANNE E AS TRUSTEE OF THE | ARTEMESIA LLC | | | | 111096 | 2006-10494 |
| 4 | 07/25/2006 | WARRANTY D | WARRANTY DEED | PK PARTNERSHIP | NASH ANNE E AS TRUSTEE OF THE | | | $789,559.00 | 110795 | 2006-08715 |
|   | |
| 5 | 09/28/2004 | WARRANTY D | WARRANTY DEED | PRINGLE RAY T & BARBARA | PK PARTNERSHIP | | | | 105801 | 2004-11209 |
Payout Agreement
| No payout information available.. |