Property
Account |
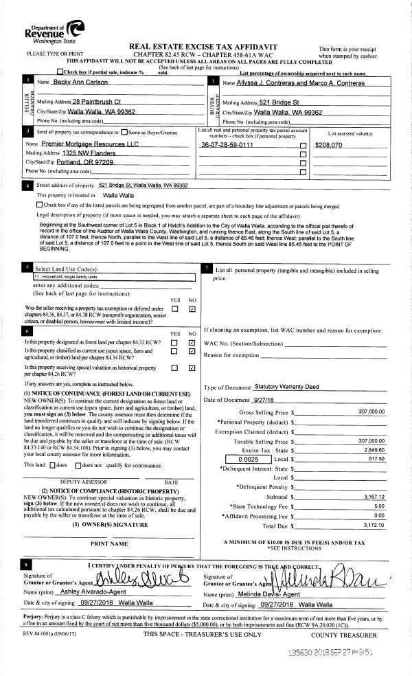
| Property ID: | 22716 | Abbreviated Legal Description: | HATCH W 107' OF S 85.45' LOT 5 BLK 1 |
| Parcel Number: | 360728590111 | Agent Code: | |
| Type: | Real | | |
| Tax Area: | 1 - OL-140-F | Land Use Code | 11 |
| Open Space: | N | DFL | N |
| Historic Property: | N | Remodel Property: | N |
| Multi-Family Redevelopment: | N | | |
| Township: | 7 | Section: | 28 |
| Range: | 36 |
Location |
| Address: | 521 BRIDGE ST WA 99362 | Mapsco: | |
| Neighborhood: | A Res | Map ID: | |
| Neighborhood CD: | 613011 |
Owner |
| Name: | CONTRERAS MARCO A & ALLYSSA J | Owner ID: | 64014 |
| Mailing Address: | 521 BRIDGE ST WALLA WALLA, WA 99362 | % Ownership: | 100.0000000000% |
| | | Exemptions: | |
Taxes and Assessment Details
Values
| (+) Improvement Homesite Value: | + | $0 | |
| (+) Improvement Non-Homesite Value: | + | $288,240 | |
| (+) Land Homesite Value: | + | $0 | |
| (+) Land Non-Homesite Value: | + | $81,860 | |
| (+) Curr Use (HS): | + | $0 | $0 |
| (+) Curr Use (NHS): | + | $0 | $0 |
| | | -------------------------- | |
| (=) Market Value: | = | $370,100 | |
| (–) Productivity Loss: | – | $0 | |
| | | -------------------------- | |
| (=) Subtotal: | = | $370,100 | |
| (+) Senior Appraised Value: | + | $0 | |
| (+) Non-Senior Appraised Value: | + | $370,100 | |
| | | -------------------------- | |
| (=) Total Appraised Value: | = | $370,100 | |
| (–) Senior Exemption Loss: | – | $0 | |
| (–) Exemption Loss: | – | $0 | |
| | | -------------------------- | |
| (=) Taxable Value: | = | $370,100 | |
Taxing Jurisdiction
| Owner: | CONTRERAS MARCO A & ALLYSSA J | | |
| % Ownership: | 100.0000000000% | | |
| Total Value: | $370,100 | | |
| Tax Area: | 1 - OL-140-F |
| CERFD | CURRENT EXPENSE REFUND 010 | 0.0000000000 | $370,100 | $370,100 | $0.00 | | |
| CURREXP | CURRENT EXPENSE 010 | 1.0175366760 | $370,100 | $370,100 | $376.59 | | |
| HUMNSERV | HUMAN SERVICES 119 | 0.0250000000 | $370,100 | $370,100 | $9.25 | | |
| SLDREL | SOLDIERS RELIEF 121 | 0.0155990005 | $370,100 | $370,100 | $5.77 | | |
| EMERGSER | EMS 147 | 0.3792580840 | $370,100 | $370,100 | $140.36 | | |
| EMSRFD | EMS REFUND 147 | 0.0000000000 | $370,100 | $370,100 | $0.00 | | |
| PORTRFD | PORT REFUND 640 | 0.0000000000 | $370,100 | $370,100 | $0.00 | | |
| PORTWWGEN | PORT OF WW 640 | 0.2460186015 | $370,100 | $370,100 | $91.05 | | |
| SD140BOND | SD #140 BOND 764 | 0.8342371393 | $370,100 | $370,100 | $308.75 | | |
| SD140GEN | SD #140 GENERAL 760 | 2.0646500647 | $370,100 | $370,100 | $764.13 | | |
| ST2 | STATE SCHOOL PART 2 600 | 0.8131451643 | $370,100 | $370,100 | $300.95 | | |
| STATESCHL | STATE SCHOOL 600 | 1.5158548041 | $370,100 | $370,100 | $561.02 | | |
| STREFUND | STATE REFUND LEVY 603 | 0.0000000000 | $370,100 | $370,100 | $0.00 | | |
| CWWBOND | C OF WW BOND 643 | 0.2760494372 | $370,100 | $370,100 | $102.17 | | |
| CWWGEN | CITY OF WW 631 | 1.6100204973 | $370,100 | $370,100 | $595.87 | | |
| CWWRFD | CITY OF WALLA WALLA REFUND 631 | 0.0000000000 | $370,100 | $370,100 | $0.00 | | |
| | Total Tax Rate: | 8.7973694689 | | | | | |
| | | | | Taxes w/Current Exemptions: | $3,255.91 | | |
| | | | | Taxes w/o Exemptions: | $3,255.91 | | |
Improvement / Building
| Improvement #1: | RESIDENTIAL | State Code: | 11 | 1485.0 sqft | Value: | $288,240 |
| Exterior Wall: | METAL/STEEL | Heating/Cooling: | WARM & COOLED AIR | | Number of Bathrooms: | 2.5 | Number of Bedrooms: | 3 | | Plumbing: | 12 | Roof Covering: | COMP SHINGLE |
|
| | Type | Description | Class CD | Sub Class CD | Year Built | Area |
| | MA | Main Area | 1 | 30 | 1946 | 1485.0 |
| | SI1 | SITE IMPROVEMENT | 1 | 30 | 1946 | 2.0 |
| | RPS | PORCH W/STEPS,ROOF | 1 | 30 | 1946 | 30.0 |
| | DTG | Detached Garage | 1 | 30 | 1946 | 240.0 |
| | OPS | OPEN PORCH W/STEPS | 1 | 30 | 1946 | 225.0 |
Sketch
Property Image
Land
| 1 | RES 1 | Converted: Residential | 0.2088 | 9095.00 | 0.00 | 0.00 | 1.00 | $81,860 | $0 |
Roll Value History
| 2026 | N/A | N/A | N/A | N/A | N/A |
| 2025 | $273,690 | $100,050 | $0 | $373,740 | $373,740 |
| 2024 | $288,240 | $81,860 | $0 | $370,100 | $370,100 |
| 2023 | $288,240 | $81,860 | $0 | $370,100 | $370,100 |
| 2022 | $240,200 | $65,940 | $0 | $306,140 | $306,140 |
| 2021 | $184,770 | $65,940 | $0 | $250,710 | $250,710 |
| 2020 | $142,130 | $65,940 | $0 | $208,070 | $208,070 |
| 2019 | $142,130 | $65,940 | $0 | $208,070 | $208,070 |
| 2018 | $161,670 | $46,400 | $0 | $208,070 | $208,070 |
| 2017 | $146,970 | $46,400 | $0 | $193,370 | $193,370 |
| 2016 | $127,800 | $46,400 | $0 | $174,200 | $174,200 |
| 2015 | $127,800 | $46,400 | $0 | $174,200 | $174,200 |
| 2014 | $127,800 | $46,400 | $0 | $174,200 | $174,200 |
| 2013 | $127,800 | $46,400 | $0 | $174,200 | $174,200 |
| 2012 | $137,000 | $46,400 | $0 | $0 | $0 |
| 2011 | $137,000 | $46,400 | $0 | $0 | $0 |
| 2010 | $120,300 | $46,400 | $0 | $0 | $0 |
| 2009 | $109,200 | $46,400 | $0 | $0 | $0 |
| 2008 | $109,200 | $46,400 | $0 | $0 | $0 |
| 2007 | $100,300 | $23,900 | $0 | $0 | $0 |
Deed and Sales History
| 1 | 09/27/2018 | SWD | STATUTORY WARRANTY DEED | CARLSON BECKY ANN | CONTRERAS MARCO A & ALLYSSA J | | | $207,000.00 | 135630 | 2018-08065 |
| 2 | 09/27/2018 | QCD | QUIT CLAIM DEED | CARLSON RICHARD LEE JR & BECKY ANN | CARLSON BECKY ANN | | | $0.00 | 135629 | 2018-08064 |
| 3 | 05/13/2008 | WARRANTY D | WARRANTY DEED | CRAMER, THOMAS G & CARRIE L | CARLSON, RICHARD LEE JR & BECK | | | $189,500.00 | 115007 | 2008-04853 |
| 4 | 06/14/2004 | WARRANTY D | WARRANTY DEED | BURT, ERIC D | CRAMER, THOMAS G & CARRIE L | | | $99,900.00 | 104999 | 2004-06539 |
| 5 | 06/27/2000 | WARRANTY D | WARRANTY DEED | | | | | $74,000.00 | 95343 | 2990-006128 |
Payout Agreement
| No payout information available.. |