Property
Account |
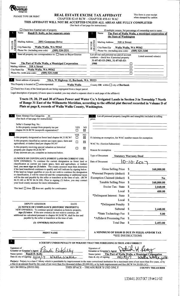
| Property ID: | 22699 | Abbreviated Legal Description: | SEC 3 TWP 7 RNG 31 TRACT 19 TRACT 20 N1/2 OF TRACT 29 N1/2 OF TRACT30 |
| Parcel Number: | 310703531900 | Agent Code: | |
| Type: | Real | | |
| Tax Area: | 333 - 400-5-C-M | Land Use Code | 81 |
| Open Space: | N | DFL | N |
| Historic Property: | N | Remodel Property: | N |
| Multi-Family Redevelopment: | N | | |
| Township: | 7 | Section: | 3 |
| Range: | 31 |
Location |
| Address: | W HIGHWAY 12 WA 99323 | Mapsco: | |
| Neighborhood: | 0 Farm | Map ID: | |
| Neighborhood CD: | 2220 |
Owner |
| Name: | WALLA WALLA PORT OF | Owner ID: | 58 |
| Mailing Address: | 310 A ST WALLA WALLA, WA 99362 | % Ownership: | 100.0000000000% |
| | | Exemptions: | |
Taxes and Assessment Details
Values
| (+) Improvement Homesite Value: | + | $0 | |
| (+) Improvement Non-Homesite Value: | + | $0 | |
| (+) Land Homesite Value: | + | $0 | |
| (+) Land Non-Homesite Value: | + | $12,110 | |
| (+) Curr Use (HS): | + | $0 | $0 |
| (+) Curr Use (NHS): | + | $0 | $0 |
| | | -------------------------- | |
| (=) Market Value: | = | $12,110 | |
| (–) Productivity Loss: | – | $0 | |
| | | -------------------------- | |
| (=) Subtotal: | = | $12,110 | |
| (+) Senior Appraised Value: | + | $0 | |
| (+) Non-Senior Appraised Value: | + | $12,110 | |
| | | -------------------------- | |
| (=) Total Appraised Value: | = | $12,110 | |
| (–) Senior Exemption Loss: | – | $0 | |
| (–) Exemption Loss: | – | $0 | |
| | | -------------------------- | |
| (=) Taxable Value: | = | $12,110 | |
Taxing Jurisdiction
| Owner: | WALLA WALLA PORT OF | | |
| % Ownership: | 100.0000000000% | | |
| Total Value: | $12,110 | | |
| Tax Area: | 333 - 400-5-C-M |
| CERFD | CURRENT EXPENSE REFUND 010 | 0.0000000000 | $12,110 | $12,110 | $0.00 | | |
| CURREXP | CURRENT EXPENSE 010 | 1.0175366760 | $12,110 | $12,110 | $12.32 | | |
| HUMNSERV | HUMAN SERVICES 119 | 0.0250000000 | $12,110 | $12,110 | $0.30 | | |
| SLDREL | SOLDIERS RELIEF 121 | 0.0155990005 | $12,110 | $12,110 | $0.19 | | |
| EMERGSER | EMS 147 | 0.3792580840 | $12,110 | $12,110 | $4.59 | | |
| EMSRFD | EMS REFUND 147 | 0.0000000000 | $12,110 | $12,110 | $0.00 | | |
| FD5EXP | FD #5 EXPENSE 689 | 1.2045331840 | $12,110 | $12,110 | $14.59 | | |
| RLBRFD | RURAL LIBRARY REFUND 623 | 0.0000000000 | $12,110 | $12,110 | $0.00 | | |
| RURALLIB | RURAL LIBRARY 623 | 0.3710609029 | $12,110 | $12,110 | $4.49 | | |
| PORTRFD | PORT REFUND 640 | 0.0000000000 | $12,110 | $12,110 | $0.00 | | |
| PORTWWGEN | PORT OF WW 640 | 0.2460186015 | $12,110 | $12,110 | $2.98 | | |
| SD400BOND | SD #400 BOND 793 | 0.0000000000 | $12,110 | $12,110 | $0.00 | | |
| SD400CAP | SD #400 CP 792 | 0.3443722657 | $12,110 | $12,110 | $4.17 | | |
| SD400GEN | SD #400 GENERAL 790 | 1.9278469916 | $12,110 | $12,110 | $23.35 | | |
| ST2 | STATE SCHOOL PART 2 600 | 0.8131451643 | $12,110 | $12,110 | $9.85 | | |
| STATESCHL | STATE SCHOOL 600 | 1.5158548041 | $12,110 | $12,110 | $18.36 | | |
| STREFUND | STATE REFUND LEVY 603 | 0.0000000000 | $12,110 | $12,110 | $0.00 | | |
| COROAD | COUNTY ROAD 115 | 1.6549953990 | $12,110 | $12,110 | $20.04 | | |
| CRPRD | COUNTY ROAD REFUND 115 | 0.0000000000 | $12,110 | $12,110 | $0.00 | | |
| | Total Tax Rate: | 9.5152210736 | | | | | |
| | | | | Taxes w/Current Exemptions: | $115.23 | | |
| | | | | Taxes w/o Exemptions: | $115.23 | | |
Improvement / Building
Sketch
| No sketches available for this property. |
Property Image
Land
| 1 | DLP | Dry Land Pasture | 30.6600 | 0.00 | 0.00 | 0.00 | 1.00 | $12,110 | $0 |
Roll Value History
| 2026 | N/A | N/A | N/A | N/A | N/A |
| 2025 | $0 | $12,110 | $0 | $12,110 | $0 |
| 2024 | $0 | $12,110 | $0 | $12,110 | $12,110 |
| 2023 | $0 | $12,110 | $0 | $12,110 | $12,110 |
| 2022 | $0 | $10,730 | $0 | $10,730 | $10,730 |
| 2021 | $0 | $10,730 | $0 | $10,730 | $10,730 |
| 2020 | $0 | $9,200 | $0 | $9,200 | $9,200 |
| 2019 | $0 | $9,200 | $0 | $9,200 | $9,200 |
| 2018 | $0 | $9,200 | $0 | $9,200 | $9,200 |
| 2017 | $0 | $9,200 | $0 | $9,200 | $9,200 |
| 2016 | $0 | $3,070 | $0 | $3,070 | $3,070 |
| 2015 | $0 | $3,070 | $0 | $3,070 | $3,070 |
| 2014 | $0 | $3,070 | $0 | $3,070 | $3,070 |
| 2013 | $0 | $3,100 | $3,100 | $3,100 | $3,100 |
| 2012 | $0 | $3,100 | $0 | $0 | $0 |
| 2011 | $0 | $3,100 | $0 | $0 | $0 |
| 2010 | $0 | $3,100 | $0 | $0 | $0 |
| 2009 | $0 | $3,100 | $0 | $0 | $0 |
| 2008 | $0 | $3,100 | $0 | $0 | $0 |
| 2007 | $0 | $3,100 | $0 | $0 | $0 |
Deed and Sales History
| 1 | 10/19/2017 | SWD | STATUTORY WARRANTY DEED | KELLY RANDI D | PORT OF WALLA WALLA | | 2-PARCELS | $160,000.00 | 133441 | 2017-08342 |
|   | |
| 2 | 04/20/2017 | DPR | DEED OF PERSONAL REPRESENTATIVE | KELLY FRANK L & RANDI D | KELLY RANDI D | | | $0.00 | 132242 | 2017-02985 |
| 3 | 12/01/1965 | WARRANTY D | WARRANTY DEED | | | | | $200.00 | 0 | 3160-472848 |
Payout Agreement
| No payout information available.. |