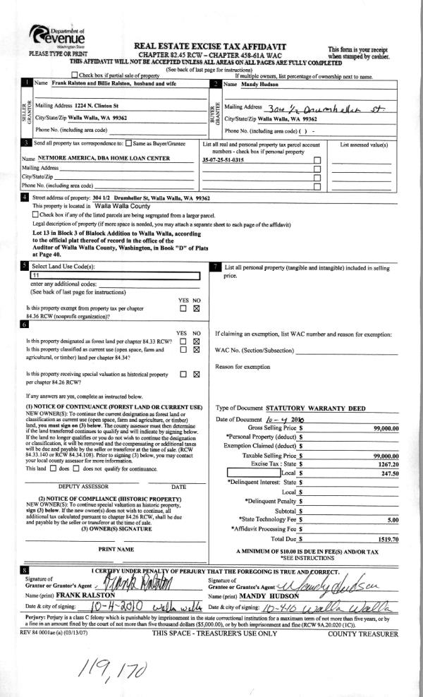
Property
Account |
| Property ID: | 22662 | Abbreviated Legal Description: | KINZERS LOT 3 BLK 2 |
| Parcel Number: | 350736560203 | Agent Code: | |
| Type: | Real | | |
| Tax Area: | 77 - CP-250-F | Land Use Code | 11 |
| Open Space: | N | DFL | N |
| Historic Property: | N | Remodel Property: | N |
| Multi-Family Redevelopment: | N | | |
| Township: | 7 | Section: | 36 |
| Range: | 35 |
Location |
| Address: | 1239 SE DEWEY DR WA 99324 | Mapsco: | |
| Neighborhood: | A Superior SFR | Map ID: | |
| Neighborhood CD: | 113211 |
Owner |
| Name: | DICKENSON RACHEL NICOLE & FORD ROYCE | Owner ID: | 71545 |
| Mailing Address: | 1239 SE DEWEY DR COLLEGE PLACE, WA 99324 | % Ownership: | 100.0000000000% |
| | | Exemptions: | |
Taxes and Assessment Details
Values
| (+) Improvement Homesite Value: | + | $0 | |
| (+) Improvement Non-Homesite Value: | + | $344,330 | |
| (+) Land Homesite Value: | + | $0 | |
| (+) Land Non-Homesite Value: | + | $70,000 | |
| (+) Curr Use (HS): | + | $0 | $0 |
| (+) Curr Use (NHS): | + | $0 | $0 |
| | | -------------------------- | |
| (=) Market Value: | = | $414,330 | |
| (–) Productivity Loss: | – | $0 | |
| | | -------------------------- | |
| (=) Subtotal: | = | $414,330 | |
| (+) Senior Appraised Value: | + | $0 | |
| (+) Non-Senior Appraised Value: | + | $414,330 | |
| | | -------------------------- | |
| (=) Total Appraised Value: | = | $414,330 | |
| (–) Senior Exemption Loss: | – | $0 | |
| (–) Exemption Loss: | – | $0 | |
| | | -------------------------- | |
| (=) Taxable Value: | = | $414,330 | |
Taxing Jurisdiction
| Owner: | DICKENSON RACHEL NICOLE & FORD ROYCE | | |
| % Ownership: | 100.0000000000% | | |
| Total Value: | $414,330 | | |
| Tax Area: | 77 - CP-250-F |
| CERFD | CURRENT EXPENSE REFUND 010 | 0.0000000000 | $414,330 | $414,330 | $0.00 | | |
| CURREXP | CURRENT EXPENSE 010 | 1.0175366760 | $414,330 | $414,330 | $421.60 | | |
| HUMNSERV | HUMAN SERVICES 119 | 0.0250000000 | $414,330 | $414,330 | $10.36 | | |
| SLDREL | SOLDIERS RELIEF 121 | 0.0155990005 | $414,330 | $414,330 | $6.46 | | |
| COLLPLBOND | C OF CP BOND 644 | 0.4374241808 | $414,330 | $414,330 | $181.24 | | |
| COLLPLGEN | CITY OF CP 632 | 1.4453819216 | $414,330 | $414,330 | $598.87 | | |
| EMERGSER | EMS 147 | 0.3792580840 | $414,330 | $414,330 | $157.14 | | |
| EMSRFD | EMS REFUND 147 | 0.0000000000 | $414,330 | $414,330 | $0.00 | | |
| RURALLIB | RURAL LIBRARY 623 | 0.3710609029 | $414,330 | $414,330 | $153.74 | | |
| PORTRFD | PORT REFUND 640 | 0.0000000000 | $414,330 | $414,330 | $0.00 | | |
| PORTWWGEN | PORT OF WW 640 | 0.2460186015 | $414,330 | $414,330 | $101.93 | | |
| SD250BOND | SD #250 BOND 773 | 1.4560608159 | $414,330 | $414,330 | $603.29 | | |
| SD250GEN | SD #250 GENERAL 770 | 2.3880724087 | $414,330 | $414,330 | $989.45 | | |
| ST2 | STATE SCHOOL PART 2 600 | 0.8131451643 | $414,330 | $414,330 | $336.91 | | |
| STATESCHL | STATE SCHOOL 600 | 1.5158548041 | $414,330 | $414,330 | $628.06 | | |
| STREFUND | STATE REFUND LEVY 603 | 0.0000000000 | $414,330 | $414,330 | $0.00 | | |
| | Total Tax Rate: | 10.1104125603 | | | | | |
| | | | | Taxes w/Current Exemptions: | $4,189.05 | | |
| | | | | Taxes w/o Exemptions: | $4,189.05 | | |
Improvement / Building
| Improvement #1: | RESIDENTIAL | State Code: | 11 | 1104.0 sqft | Value: | $344,330 |
| Exterior Wall: | PLYWOOD | Heating/Cooling: | WARM & COOLED AIR | | Number of Bathrooms: | 2 | Number of Bedrooms: | 3 | | Plumbing: | 9 | Roof Covering: | COMP SHINGLE |
|
| | Type | Description | Class CD | Sub Class CD | Year Built | Area |
| | MA | Main Area | 1 | 30 | 1960 | 1104.0 |
| | SI1 | SITE IMPROVEMENT | 1 | 30 | 1960 | 1.5 |
| | BASE | BASEMENT | 1 | 30 | 1960 | 1104.0 |
| | BPF | BASEMENT -PARTITIONED FINISH | 1 | 30 | 1960 | 1104.0 |
| | ATG | Attached Garage | 1 | 30 | 1960 | 336.0 |
| | WOD | Wood Deck | 1 | 30 | 1960 | 110.0 |
| | D2F | Double 2 Story Fireplace | 1 | 30 | 1960 | 1.0 |
| | RPC | OPEN PORCH W/ROOF , CEILED | 1 | 30 | 1960 | 125.0 |
Sketch
Property Image
Land
| 1 | RES 1 | Converted: Residential | 0.2651 | 11548.00 | 0.00 | 0.00 | 1.00 | $70,000 | $0 |
Roll Value History
| 2026 | N/A | N/A | N/A | N/A | N/A |
| 2025 | $289,240 | $130,000 | $0 | $419,240 | $419,240 |
| 2024 | $361,550 | $70,000 | $0 | $431,550 | $431,550 |
| 2023 | $344,330 | $70,000 | $0 | $414,330 | $414,330 |
| 2022 | $245,950 | $70,000 | $0 | $315,950 | $315,950 |
| 2021 | $153,720 | $70,000 | $0 | $223,720 | $223,720 |
| 2020 | $128,100 | $70,000 | $0 | $198,100 | $198,100 |
| 2019 | $138,100 | $60,000 | $0 | $198,100 | $198,100 |
| 2018 | $125,550 | $60,000 | $0 | $185,550 | $185,550 |
| 2017 | $119,570 | $60,000 | $0 | $179,570 | $179,570 |
| 2016 | $108,700 | $60,000 | $0 | $168,700 | $168,700 |
| 2015 | $108,700 | $60,000 | $0 | $168,700 | $168,700 |
| 2014 | $108,700 | $60,000 | $0 | $168,700 | $168,700 |
| 2013 | $108,700 | $60,000 | $0 | $168,700 | $168,700 |
| 2012 | $108,700 | $60,000 | $0 | $0 | $0 |
| 2011 | $100,700 | $60,000 | $0 | $0 | $0 |
| 2010 | $100,700 | $60,000 | $0 | $0 | $0 |
| 2009 | $109,200 | $60,000 | $0 | $0 | $0 |
| 2008 | $93,300 | $26,100 | $0 | $0 | $0 |
| 2007 | $93,300 | $26,100 | $0 | $0 | $0 |
Deed and Sales History
| 1 | 04/26/2022 | SWD | STATUTORY WARRANTY DEED | SERJEANT SHELLY | DICKENSON RACHEL NICOLE & FORD ROYCE | | | $450,000.00 | 143840 | 2022-03552 |
| 2 | 02/02/2016 | SWD | STATUTORY WARRANTY DEED | MEZA DAPHNE L | SERJEANT SHELLY | | | $190,000.00 | 129613 | 2016-00834 |
| 3 | 10/12/2010 | WARRANTY D | WARRANTY DEED | VINYARD, WILLIAM A | MEZA, DAPHNE L | | | $172,000.00 | 119171 | 2010-08208 |
| 4 | 05/09/2008 | QCD | QUIT CLAIM DEED | VINYARD, BILL A | VINYARD, WILLIAM A | | | | 114993 | 2008-04740 |
| 5 | 02/10/2006 | WARRANTY D | WARRANTY DEED | POTTER, SHIRLEY J SUTTON | VINYARD, BILL A | | | $169,500.00 | 109643 | 2006-01648 |
| 6 | 03/23/1979 | WARRANTY D | WARRANTY DEED | | | | | $0.00 | 71227 | 1905-39426 |
Payout Agreement
| No payout information available.. |