Property
Account |
| Property ID: | 22631 | Abbreviated Legal Description: | EAST WALLA WALLA LOT 8 & E 1/2 OF LOT 9 BLK 4 PLUS PTN VACATEDALLEY, LESS STRIP FROM LOT 9 |
| Parcel Number: | 360727530408 | Agent Code: | |
| Type: | Real | | |
| Tax Area: | 105 - 140-F-4 | Land Use Code | 11 |
| Open Space: | N | DFL | N |
| Historic Property: | N | Remodel Property: | N |
| Multi-Family Redevelopment: | N | | |
| Township: | 7 | Section: | 27 |
| Range: | 36 |
Location |
| Address: | 1914 CARL ST WA 99362 | Mapsco: | |
| Neighborhood: | A Inferior Res | Map ID: | |
| Neighborhood CD: | 413111 |
Owner |
| Name: | SEBO ISAIAH J & TALITA B ROGERS | Owner ID: | 69517 |
| Mailing Address: | 1914 CARL ST WALLA WALLA, WA 99362 | % Ownership: | 100.0000000000% |
| | | Exemptions: | |
Taxes and Assessment Details
Values
| (+) Improvement Homesite Value: | + | $0 | |
| (+) Improvement Non-Homesite Value: | + | $268,990 | |
| (+) Land Homesite Value: | + | $0 | |
| (+) Land Non-Homesite Value: | + | $81,840 | |
| (+) Curr Use (HS): | + | $0 | $0 |
| (+) Curr Use (NHS): | + | $0 | $0 |
| | | -------------------------- | |
| (=) Market Value: | = | $350,830 | |
| (–) Productivity Loss: | – | $0 | |
| | | -------------------------- | |
| (=) Subtotal: | = | $350,830 | |
| (+) Senior Appraised Value: | + | $0 | |
| (+) Non-Senior Appraised Value: | + | $350,830 | |
| | | -------------------------- | |
| (=) Total Appraised Value: | = | $350,830 | |
| (–) Senior Exemption Loss: | – | $0 | |
| (–) Exemption Loss: | – | $0 | |
| | | -------------------------- | |
| (=) Taxable Value: | = | $350,830 | |
Taxing Jurisdiction
| Owner: | SEBO ISAIAH J & TALITA B ROGERS | | |
| % Ownership: | 100.0000000000% | | |
| Total Value: | $350,830 | | |
| Tax Area: | 105 - 140-F-4 |
| CERFD | CURRENT EXPENSE REFUND 010 | 0.0000000000 | $350,830 | $350,830 | $0.00 | | |
| CURREXP | CURRENT EXPENSE 010 | 1.0175366760 | $350,830 | $350,830 | $356.98 | | |
| HUMNSERV | HUMAN SERVICES 119 | 0.0250000000 | $350,830 | $350,830 | $8.77 | | |
| SLDREL | SOLDIERS RELIEF 121 | 0.0155990005 | $350,830 | $350,830 | $5.47 | | |
| EMERGSER | EMS 147 | 0.3792580840 | $350,830 | $350,830 | $133.06 | | |
| EMSRFD | EMS REFUND 147 | 0.0000000000 | $350,830 | $350,830 | $0.00 | | |
| FD4EXP | FD #4 EXPENSE 686 | 0.8836993059 | $350,830 | $350,830 | $310.03 | | |
| RLBRFD | RURAL LIBRARY REFUND 623 | 0.0000000000 | $350,830 | $350,830 | $0.00 | | |
| RURALLIB | RURAL LIBRARY 623 | 0.3710609029 | $350,830 | $350,830 | $130.18 | | |
| PORTRFD | PORT REFUND 640 | 0.0000000000 | $350,830 | $350,830 | $0.00 | | |
| PORTWWGEN | PORT OF WW 640 | 0.2460186015 | $350,830 | $350,830 | $86.31 | | |
| SD140BOND | SD #140 BOND 764 | 0.8342371393 | $350,830 | $350,830 | $292.68 | | |
| SD140GEN | SD #140 GENERAL 760 | 2.0646500647 | $350,830 | $350,830 | $724.34 | | |
| ST2 | STATE SCHOOL PART 2 600 | 0.8131451643 | $350,830 | $350,830 | $285.28 | | |
| STATESCHL | STATE SCHOOL 600 | 1.5158548041 | $350,830 | $350,830 | $531.81 | | |
| STREFUND | STATE REFUND LEVY 603 | 0.0000000000 | $350,830 | $350,830 | $0.00 | | |
| COROAD | COUNTY ROAD 115 | 1.6549953990 | $350,830 | $350,830 | $580.62 | | |
| CRPRD | COUNTY ROAD REFUND 115 | 0.0000000000 | $350,830 | $350,830 | $0.00 | | |
| | Total Tax Rate: | 9.8210551422 | | | | | |
| | | | | Taxes w/Current Exemptions: | $3,445.53 | | |
| | | | | Taxes w/o Exemptions: | $3,445.53 | | |
Improvement / Building
| Improvement #1: | RESIDENTIAL | State Code: | 11 | 1874.0 sqft | Value: | $268,990 |
| Exterior Wall: | CONCRETE BLOCK | Foundation: | SLAB FOUNDATION | | Heating/Cooling: | WARM & COOLED AIR | Number of Bathrooms: | 2 | | Number of Bedrooms: | 3 | Plumbing: | 9 | | Roof Covering: | COMP SHINGLE |   |   |
|
| | Type | Description | Class CD | Sub Class CD | Year Built | Area |
| | MA | Main Area | 1 | 30 | 1951 | 1874.0 |
| | CPC | COVERED CARPORT/PATIO | 1 | 30 | 0 | 150.0 |
| | SI1 | SITE IMPROVEMENT | 1 | 30 | 0 | 3.5 |
| | WDR | WOOD DECK W/ROOF | 1 | 30 | 0 | 144.0 |
| | ATG | Attached Garage | 1 | 30 | 1951 | 252.0 |
| | RPO | OPEN PORCH W/ROOF | 1 | 30 | 1951 | 25.0 |
| | S1F | Single One Story Fireplace | 1 | 30 | 1951 | 1.0 |
| | WOD | Wood Deck | 1 | 30 | 1951 | 335.0 |
| | UTST | Utility Storage Shed | 1 | 30 | 1951 | 180.0 |
Sketch
Property Image
Land
| 1 | RES 1 | Converted: Residential | 0.2987 | 13011.00 | 0.00 | 0.00 | 1.00 | $81,840 | $0 |
Roll Value History
| 2026 | N/A | N/A | N/A | N/A | N/A |
| 2025 | $296,560 | $81,840 | $0 | $378,400 | $378,400 |
| 2024 | $282,440 | $81,840 | $0 | $364,280 | $364,280 |
| 2023 | $268,990 | $81,840 | $0 | $350,830 | $350,830 |
| 2022 | $286,130 | $54,910 | $0 | $341,040 | $341,040 |
| 2021 | $173,410 | $54,910 | $0 | $228,320 | $228,320 |
| 2020 | $128,450 | $54,910 | $0 | $183,360 | $183,360 |
| 2019 | $128,450 | $54,910 | $0 | $183,360 | $67,600 |
| 2018 | $128,450 | $54,910 | $0 | $183,360 | $67,600 |
| 2017 | $128,450 | $54,910 | $0 | $183,360 | $67,600 |
| 2016 | $137,790 | $49,700 | $0 | $187,490 | $67,600 |
| 2015 | $131,230 | $49,700 | $0 | $180,930 | $180,930 |
| 2014 | $119,300 | $49,700 | $0 | $169,000 | $169,000 |
| 2013 | $119,300 | $49,700 | $0 | $169,000 | $109,850 |
| 2012 | $119,300 | $49,700 | $0 | $169,000 | $109,850 |
| 2011 | $115,000 | $49,700 | $0 | $0 | $0 |
| 2010 | $115,000 | $49,700 | $0 | $0 | $0 |
| 2009 | $133,300 | $49,700 | $0 | $0 | $0 |
| 2008 | $133,300 | $49,700 | $0 | $0 | $0 |
| 2007 | $107,100 | $26,700 | $0 | $0 | $0 |
Deed and Sales History
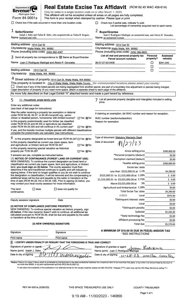
| 1 | 11/30/2023 | SWD | STATUTORY WARRANTY DEED | SEBO ISAIAH J & TALITA B ROGERS | MADRIGAL JUAN C RODRIGUEZ | | | $390,000.00 | 146866 | 2023-06915 |
| 2 | 06/03/2021 | SWD | STATUTORY WARRANTY DEED | YEATER RICHARD JR & KATELYN | SEBO ISAIAH J & TALITA B ROGERS | | | $346,000.00 | 141704 | 2021-06734 |
| 3 | 04/30/2021 | QCD | QUIT CLAIM DEED | YEATER RICHARD JR & KATELYN | BERRY AUSTIN & TAYLOR | | | | 141449 | 2021-05088 |
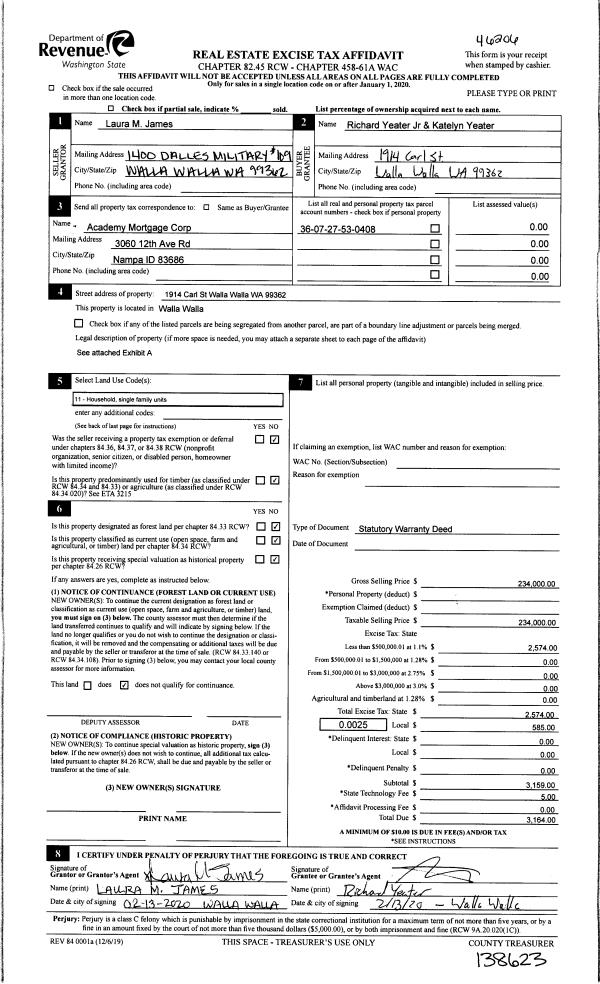
| 4 | 02/14/2020 | SWD | STATUTORY WARRANTY DEED | JAMES LAURA M | YEATER RICHARD JR & KATELYN | | | $234,000.00 | 138623 | 2020-01425 |
| 5 | 04/21/2008 | BOUNDARY L | BOUNDARY LINE ADJUSTMENT | JAMES, LAURA | FRIEDMAN, MICHAEL & SUSANNE | | | | 114876 | 2008-03905 |
| 6 | 10/04/1991 | WARRANTY D | WARRANTY DEED | | | | | $65,000.00 | 0 | 1929-106986 |
Payout Agreement
| No payout information available.. |