Property
Account |
| Property ID: | 22611 | Abbreviated Legal Description: | 31-7-36 TAX 9A & TRIANGLE IN MOST SWLY CORNER OF TAX 17B & TRIANGLEFROM NELY PTN TAX 9 ALL WITHIN NE1/4SE1/4 |
| Parcel Number: | 360731410066 | Agent Code: | |
| Type: | Real | | |
| Tax Area: | 5 - OL-140 | Land Use Code | 11 |
| Open Space: | N | DFL | N |
| Historic Property: | N | Remodel Property: | N |
| Multi-Family Redevelopment: | N | | |
| Township: | 7 | Section: | 31 |
| Range: | 36 |
Location |
| Address: | 1259 COUNTRY CLUB RD WA 99362 | Mapsco: | |
| Neighborhood: | E SRF | Map ID: | |
| Neighborhood CD: | 116011 |
Owner |
| Name: | SIEVERTSEN CRAIG | Owner ID: | 67619 |
| Mailing Address: | 1259 COUNTRY CLUB RD WALLA WALLA, WA 99362 | % Ownership: | 100.0000000000% |
| | | Exemptions: | |
Taxes and Assessment Details
Values
| (+) Improvement Homesite Value: | + | $0 | |
| (+) Improvement Non-Homesite Value: | + | $378,470 | |
| (+) Land Homesite Value: | + | $0 | |
| (+) Land Non-Homesite Value: | + | $110,000 | |
| (+) Curr Use (HS): | + | $0 | $0 |
| (+) Curr Use (NHS): | + | $0 | $0 |
| | | -------------------------- | |
| (=) Market Value: | = | $488,470 | |
| (–) Productivity Loss: | – | $0 | |
| | | -------------------------- | |
| (=) Subtotal: | = | $488,470 | |
| (+) Senior Appraised Value: | + | $0 | |
| (+) Non-Senior Appraised Value: | + | $488,470 | |
| | | -------------------------- | |
| (=) Total Appraised Value: | = | $488,470 | |
| (–) Senior Exemption Loss: | – | $0 | |
| (–) Exemption Loss: | – | $0 | |
| | | -------------------------- | |
| (=) Taxable Value: | = | $488,470 | |
Taxing Jurisdiction
| Owner: | SIEVERTSEN CRAIG | | |
| % Ownership: | 100.0000000000% | | |
| Total Value: | $488,470 | | |
| Tax Area: | 5 - OL-140 |
| CERFD | CURRENT EXPENSE REFUND 010 | 0.0000000000 | $488,470 | $488,470 | $0.00 | | |
| CURREXP | CURRENT EXPENSE 010 | 1.0175366760 | $488,470 | $488,470 | $497.04 | | |
| HUMNSERV | HUMAN SERVICES 119 | 0.0250000000 | $488,470 | $488,470 | $12.21 | | |
| SLDREL | SOLDIERS RELIEF 121 | 0.0155990005 | $488,470 | $488,470 | $7.62 | | |
| EMERGSER | EMS 147 | 0.3792580840 | $488,470 | $488,470 | $185.26 | | |
| EMSRFD | EMS REFUND 147 | 0.0000000000 | $488,470 | $488,470 | $0.00 | | |
| PORTRFD | PORT REFUND 640 | 0.0000000000 | $488,470 | $488,470 | $0.00 | | |
| PORTWWGEN | PORT OF WW 640 | 0.2460186015 | $488,470 | $488,470 | $120.17 | | |
| SD140BOND | SD #140 BOND 764 | 0.8342371393 | $488,470 | $488,470 | $407.50 | | |
| SD140GEN | SD #140 GENERAL 760 | 2.0646500647 | $488,470 | $488,470 | $1,008.52 | | |
| ST2 | STATE SCHOOL PART 2 600 | 0.8131451643 | $488,470 | $488,470 | $397.20 | | |
| STATESCHL | STATE SCHOOL 600 | 1.5158548041 | $488,470 | $488,470 | $740.45 | | |
| STREFUND | STATE REFUND LEVY 603 | 0.0000000000 | $488,470 | $488,470 | $0.00 | | |
| CWWBOND | C OF WW BOND 643 | 0.2760494372 | $488,470 | $488,470 | $134.84 | | |
| CWWGEN | CITY OF WW 631 | 1.6100204973 | $488,470 | $488,470 | $786.45 | | |
| CWWRFD | CITY OF WALLA WALLA REFUND 631 | 0.0000000000 | $488,470 | $488,470 | $0.00 | | |
| | Total Tax Rate: | 8.7973694689 | | | | | |
| | | | | Taxes w/Current Exemptions: | $4,297.26 | | |
| | | | | Taxes w/o Exemptions: | $4,297.26 | | |
Improvement / Building
| Improvement #1: | RESIDENTIAL | State Code: | 11 | 2264.0 sqft | Value: | $378,470 |
| Exterior Wall: | MASONRY VENEER | Heating/Cooling: | WARM & COOLED AIR | | Number of Bathrooms: | 3 | Number of Bedrooms: | 3 | | Plumbing: | 13 | Roof Covering: | COMP SHINGLE |
|
| | Type | Description | Class CD | Sub Class CD | Year Built | Area |
| | MA | Main Area | 1 | 40 | 1976 | 2264.0 |
| | ATG | Attached Garage | 1 | 40 | 1976 | 576.0 |
| | SI1 | SITE IMPROVEMENT | 1 | 40 | 1976 | 3.0 |
| | RPC | OPEN PORCH W/ROOF , CEILED | 1 | 40 | 1976 | 167.0 |
| | S1F | Single One Story Fireplace | 1 | 40 | 1976 | 1.0 |
Sketch
Property Image
Land
| 1 | RES 1 | Converted: Residential | 0.3475 | 15138.00 | 0.00 | 0.00 | 1.00 | $110,000 | $0 |
Roll Value History
| 2026 | N/A | N/A | N/A | N/A | N/A |
| 2025 | $478,770 | $180,000 | $0 | $658,770 | $658,770 |
| 2024 | $416,320 | $110,000 | $0 | $526,320 | $526,320 |
| 2023 | $378,470 | $110,000 | $0 | $488,470 | $488,470 |
| 2022 | $344,060 | $110,000 | $0 | $454,060 | $454,060 |
| 2021 | $286,720 | $110,000 | $0 | $396,720 | $396,720 |
| 2020 | $179,200 | $110,000 | $0 | $289,200 | $289,200 |
| 2019 | $199,200 | $90,000 | $0 | $289,200 | $289,200 |
| 2018 | $199,200 | $90,000 | $0 | $289,200 | $289,200 |
| 2017 | $199,200 | $90,000 | $0 | $289,200 | $289,200 |
| 2016 | $199,200 | $90,000 | $0 | $289,200 | $289,200 |
| 2015 | $199,200 | $90,000 | $0 | $289,200 | $289,200 |
| 2014 | $199,200 | $90,000 | $0 | $289,200 | $289,200 |
| 2013 | $199,200 | $90,000 | $0 | $289,200 | $289,200 |
| 2012 | $199,200 | $90,000 | $0 | $0 | $0 |
| 2011 | $161,500 | $90,000 | $0 | $0 | $0 |
| 2010 | $161,500 | $90,000 | $0 | $0 | $0 |
| 2009 | $205,900 | $90,000 | $0 | $0 | $0 |
| 2008 | $200,900 | $58,700 | $0 | $0 | $0 |
| 2007 | $200,900 | $58,700 | $0 | $0 | $0 |
Deed and Sales History
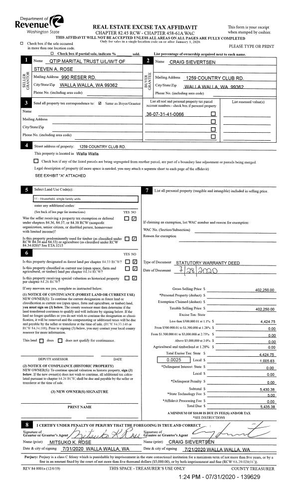
| 1 | 07/31/2020 | SWD | STATUTORY WARRANTY DEED | QTIP MARITAL TRUST | SIEVERTSEN CRAIG | | | $402,250.00 | 139629 | 2020-07471 |
| 2 | 10/19/2010 | WARRANTY D | WARRANTY DEED | ROSE, MITSUKO | QTIP MARITAL TRUST | | | | 119213 | 2010-08449 |
| 3 | 04/09/2008 | WARRANTY D | WARRANTY DEED | ROSE, ORVAL T TRUSTEE | ROSE, STEVEN A & MITSUKO K | | | $255,000.00 | 114811 | 2008-03431 |
| 4 | 07/25/2005 | BOUNDARY L | BOUNDARY LINE ADJUSTMENT | HAGER TRUST | ROSE, ORVAL T TRUSTEE | | | | 108032 | 2005-09023 |
Payout Agreement
| No payout information available.. |