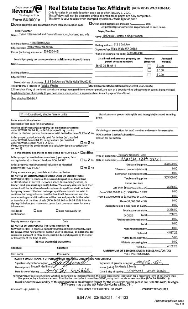
Property
Account |
| Property ID: | 22583 | Abbreviated Legal Description: | CHASE LESS N 106.75' & LESS ALLEY LOT 10 BLK 4 |
| Parcel Number: | 360729580411 | Agent Code: | |
| Type: | Real | | |
| Tax Area: | 1 - OL-140-F | Land Use Code | 11 |
| Open Space: | N | DFL | N |
| Historic Property: | N | Remodel Property: | N |
| Multi-Family Redevelopment: | N | | |
| Township: | 7 | Section: | 29 |
| Range: | 36 |
Location |
| Address: | 812 S 3RD AVE WA 99362 | Mapsco: | |
| Neighborhood: | Fair Res | Map ID: | |
| Neighborhood CD: | 612011 |
Owner |
| Name: | MORRIS MCKHAYLA L | Owner ID: | 69032 |
| Mailing Address: | 812 S 3RD AVE WALLA WALLA, WA 99362 | % Ownership: | 100.0000000000% |
| | | Exemptions: | |
Taxes and Assessment Details
Property Tax Information as of
02/21/2026
Click on "Statement Details" to expand or collapse a tax statement.
* Please enter a valid date ** Please enter a valid date *
Statement Details |
| | TOTAL: | $0.00 | $0.00 | $0.00 | $0.00 | $0.00 | $0.00 |
|
| | $0.00 | $0.00 | $0.00 | $0.00 | $0.00 | $0.00 |
Values
| (+) Improvement Homesite Value: | + | $0 | |
| (+) Improvement Non-Homesite Value: | + | $289,150 | |
| (+) Land Homesite Value: | + | $0 | |
| (+) Land Non-Homesite Value: | + | $48,000 | |
| (+) Curr Use (HS): | + | $0 | $0 |
| (+) Curr Use (NHS): | + | $0 | $0 |
| | | -------------------------- | |
| (=) Market Value: | = | $337,150 | |
| (–) Productivity Loss: | – | $0 | |
| | | -------------------------- | |
| (=) Subtotal: | = | $337,150 | |
| (+) Senior Appraised Value: | + | $0 | |
| (+) Non-Senior Appraised Value: | + | $337,150 | |
| | | -------------------------- | |
| (=) Total Appraised Value: | = | $337,150 | |
| (–) Senior Exemption Loss: | – | $0 | |
| (–) Exemption Loss: | – | $0 | |
| | | -------------------------- | |
| (=) Taxable Value: | = | $337,150 | |
Taxing Jurisdiction
| Owner: | MORRIS MCKHAYLA L | | |
| % Ownership: | 100.0000000000% | | |
| Total Value: | $337,150 | | |
| Tax Area: | 1 - OL-140-F |
| CERFD | CURRENT EXPENSE REFUND 010 | 0.0000000000 | $337,150 | $337,150 | $0.00 | | |
| CURREXP | CURRENT EXPENSE 010 | 1.0175366760 | $337,150 | $337,150 | $343.06 | | |
| HUMNSERV | HUMAN SERVICES 119 | 0.0250000000 | $337,150 | $337,150 | $8.43 | | |
| SLDREL | SOLDIERS RELIEF 121 | 0.0155990005 | $337,150 | $337,150 | $5.26 | | |
| EMERGSER | EMS 147 | 0.3792580840 | $337,150 | $337,150 | $127.87 | | |
| EMSRFD | EMS REFUND 147 | 0.0000000000 | $337,150 | $337,150 | $0.00 | | |
| PORTRFD | PORT REFUND 640 | 0.0000000000 | $337,150 | $337,150 | $0.00 | | |
| PORTWWGEN | PORT OF WW 640 | 0.2460186015 | $337,150 | $337,150 | $82.95 | | |
| SD140BOND | SD #140 BOND 764 | 0.8342371393 | $337,150 | $337,150 | $281.26 | | |
| SD140GEN | SD #140 GENERAL 760 | 2.0646500647 | $337,150 | $337,150 | $696.10 | | |
| ST2 | STATE SCHOOL PART 2 600 | 0.8131451643 | $337,150 | $337,150 | $274.15 | | |
| STATESCHL | STATE SCHOOL 600 | 1.5158548041 | $337,150 | $337,150 | $511.07 | | |
| STREFUND | STATE REFUND LEVY 603 | 0.0000000000 | $337,150 | $337,150 | $0.00 | | |
| CWWBOND | C OF WW BOND 643 | 0.2760494372 | $337,150 | $337,150 | $93.07 | | |
| CWWGEN | CITY OF WW 631 | 1.6100204973 | $337,150 | $337,150 | $542.82 | | |
| CWWRFD | CITY OF WALLA WALLA REFUND 631 | 0.0000000000 | $337,150 | $337,150 | $0.00 | | |
| | Total Tax Rate: | 8.7973694689 | | | | | |
| | | | | Taxes w/Current Exemptions: | $2,966.04 | | |
| | | | | Taxes w/o Exemptions: | $2,966.04 | | |
Improvement / Building
| Improvement #1: | RESIDENTIAL | State Code: | 11 | 1282.0 sqft | Value: | $289,150 |
| Exterior Wall: | VINYL | Heating/Cooling: | WARM & COOLED AIR | | Number of Bathrooms: | 2 | Number of Bedrooms: | 3 | | Plumbing: | 10 | Roof Covering: | COMP SHINGLE |
|
| | Type | Description | Class CD | Sub Class CD | Year Built | Area |
| | MA | Main Area | 1 | 30 | 1927 | 1282.0 |
| | SI1 | SITE IMPROVEMENT | 1 | 30 | 1927 | 2.0 |
| | BASE | BASEMENT | 1 | 30 | 1927 | 420.0 |
| | BPF | BASEMENT -PARTITIONED FINISH | 1 | 30 | 1927 | 420.0 |
| | PRC | PORCH W STEPS, ROOF,CEILED | 1 | 30 | 1927 | 50.0 |
| | POL1 | POLE BUILDING-GRAVEL | 1 | 30 | 1927 | 500.0 |
Sketch
Property Image
Land
| 1 | RES 1 | Converted: Residential | 0.1377 | 6000.00 | 0.00 | 0.00 | 1.00 | $48,000 | $0 |
Roll Value History
| 2026 | N/A | N/A | N/A | N/A | N/A |
| 2025 | $317,240 | $60,000 | $0 | $377,240 | $377,240 |
| 2024 | $289,150 | $48,000 | $0 | $337,150 | $337,150 |
| 2023 | $289,150 | $48,000 | $0 | $337,150 | $337,150 |
| 2022 | $251,430 | $37,500 | $0 | $288,930 | $288,930 |
| 2021 | $251,430 | $37,500 | $0 | $288,930 | $288,930 |
| 2020 | $125,200 | $37,500 | $0 | $162,700 | $162,700 |
| 2019 | $125,200 | $37,500 | $0 | $162,700 | $162,700 |
| 2018 | $117,290 | $36,000 | $0 | $153,290 | $153,290 |
| 2017 | $101,990 | $36,000 | $0 | $137,990 | $137,990 |
| 2016 | $92,720 | $36,000 | $0 | $128,720 | $128,720 |
| 2015 | $92,720 | $36,000 | $0 | $128,720 | $128,720 |
| 2014 | $88,300 | $36,000 | $0 | $124,300 | $124,300 |
| 2013 | $88,300 | $36,000 | $0 | $124,300 | $124,300 |
| 2012 | $88,300 | $36,000 | $0 | $0 | $0 |
| 2011 | $88,300 | $36,000 | $0 | $0 | $0 |
| 2010 | $82,400 | $36,000 | $0 | $0 | $0 |
| 2009 | $83,600 | $36,000 | $0 | $0 | $0 |
| 2008 | $83,600 | $36,000 | $0 | $0 | $0 |
| 2007 | $49,700 | $12,000 | $0 | $0 | $0 |
Deed and Sales History
| 1 | 03/19/2021 | SWD | STATUTORY WARRANTY DEED | HAMMOND TYSON R & DAWN M | MORRIS MCKHAYLA L | | | $303,500.00 | 141133 | 2021-03149 |
| 2 | 04/15/2008 | WARRANTY D | WARRANTY DEED | HAMMOND, MIKE | HAMMOND, TYSON R & DAWN M | | | $135,000.00 | 114843 | 2008-03710 |
| 3 | 08/05/2005 | WARRANTY D | WARRANTY DEED | FERRIS, SAMUEL & ABRAHAM | HAMMOND, MICHAEL R | | | | 108155 | 2005--09648 |
| 4 | 12/05/2003 | WARRANTY D | WARRANTY DEED | MC CARTER, GARY L & VICKEY L | HAMMOND, MIKE | | | $70,000.00 | 103654 | 2003-18478 |
| 5 | 01/28/1991 | WARRANTY D | WARRANTY DEED | | | | | $28,000.00 | 0 | 1879-100502 |
Payout Agreement
| No payout information available.. |