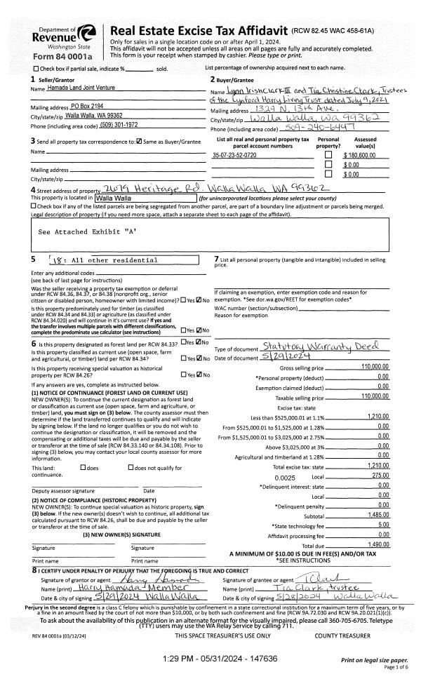
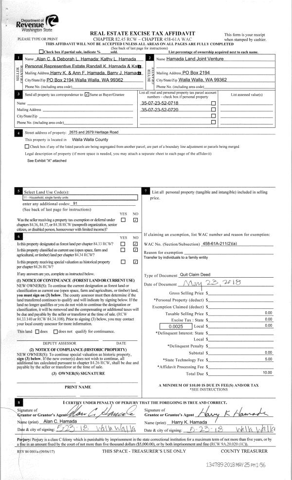
Property
Account |
| Property ID: | 22451 | Abbreviated Legal Description: | BLALOCK ORCHARDS (PARCEL 3 OF SURVEY 2003-01762) LOT 2, LESS NLY 111'; ALL LOT11; LOT 12, LESS ELY 100' OF NLY 228' BLOCK 7 |
| Parcel Number: | 350723520720 | Agent Code: | |
| Type: | Real | | |
| Tax Area: | 311 - 250-4 | Land Use Code | 18 |
| Open Space: | N | DFL | N |
| Historic Property: | N | Remodel Property: | N |
| Multi-Family Redevelopment: | N | | |
| Township: | 7 | Section: | 23 |
| Range: | 35 |
Location |
| Address: | 2679 HERITAGE RD WA 99324 | Mapsco: | |
| Neighborhood: | A Land Rural/City Infl | Map ID: | |
| Neighborhood CD: | 313092 |
Owner |
| Name: | LYNFORD HARRY LIVING TRUST | Owner ID: | 75326 |
| Mailing Address: | 1329 N 13TH AVE WALLA WALLA, WA 99362 | % Ownership: | 100.0000000000% |
| | | Exemptions: | |
Taxes and Assessment Details
Property Tax Information as of
04/19/2026
Click on "Statement Details" to expand or collapse a tax statement.
* Please enter a valid date ** Please enter a valid date *
Statement Details |
| | TOTAL: | $0.00 | $0.00 | $0.00 | $0.00 | $0.00 | $0.00 |
|
| | $0.00 | $0.00 | $0.00 | $0.00 | $0.00 | $0.00 |
Values
| (+) Improvement Homesite Value: | + | $0 | |
| (+) Improvement Non-Homesite Value: | + | $29,690 | |
| (+) Land Homesite Value: | + | $0 | |
| (+) Land Non-Homesite Value: | + | $150,910 | |
| (+) Curr Use (HS): | + | $0 | $0 |
| (+) Curr Use (NHS): | + | $0 | $0 |
| | | -------------------------- | |
| (=) Market Value: | = | $180,600 | |
| (–) Productivity Loss: | – | $0 | |
| | | -------------------------- | |
| (=) Subtotal: | = | $180,600 | |
| (+) Senior Appraised Value: | + | $0 | |
| (+) Non-Senior Appraised Value: | + | $180,600 | |
| | | -------------------------- | |
| (=) Total Appraised Value: | = | $180,600 | |
| (–) Senior Exemption Loss: | – | $0 | |
| (–) Exemption Loss: | – | $0 | |
| | | -------------------------- | |
| (=) Taxable Value: | = | $180,600 | |
Taxing Jurisdiction
| Owner: | LYNFORD HARRY LIVING TRUST | | |
| % Ownership: | 100.0000000000% | | |
| Total Value: | $180,600 | | |
| Tax Area: | 311 - 250-4 |
| CERFD | CURRENT EXPENSE REFUND 010 | 0.0000000000 | $180,600 | $180,600 | $0.00 | | |
| CURREXP | CURRENT EXPENSE 010 | 0.9851088983 | $180,600 | $180,600 | $177.91 | | |
| HUMNSERV | HUMAN SERVICES 119 | 0.0250000000 | $180,600 | $180,600 | $4.52 | | |
| SLDREL | SOLDIERS RELIEF 121 | 0.0155990000 | $180,600 | $180,600 | $2.82 | | |
| EMERGSER | EMS 147 | 0.3676811629 | $180,600 | $180,600 | $66.40 | | |
| EMSRFD | EMS REFUND 147 | 0.0000000000 | $180,600 | $180,600 | $0.00 | | |
| FD4EXP | FD #4 EXPENSE 686 | 1.2367913128 | $180,600 | $180,600 | $223.36 | | |
| RLBRFD | RURAL LIBRARY REFUND 623 | 0.0000000000 | $180,600 | $180,600 | $0.00 | | |
| RURALLIB | RURAL LIBRARY 623 | 0.3601547782 | $180,600 | $180,600 | $65.04 | | |
| PORTRFD | PORT REFUND 640 | 0.0000000000 | $180,600 | $180,600 | $0.00 | | |
| PORTWWGEN | PORT OF WW 640 | 0.2344301070 | $180,600 | $180,600 | $42.34 | | |
| SD250BOND | SD #250 BOND 773 | 1.3740031235 | $180,600 | $180,600 | $248.14 | | |
| SD250GEN | SD #250 GENERAL 770 | 2.4999999988 | $180,600 | $180,600 | $451.50 | | |
| ST2 | STATE SCHOOL PART 2 600 | 0.8853714103 | $180,600 | $180,600 | $159.90 | | |
| STATESCHL | STATE SCHOOL 600 | 1.6424571473 | $180,600 | $180,600 | $296.63 | | |
| STREFUND | STATE REFUND LEVY 603 | 0.0000000000 | $180,600 | $180,600 | $0.00 | | |
| COROAD | COUNTY ROAD 115 | 1.6137667997 | $180,600 | $180,600 | $291.45 | | |
| CRPRD | COUNTY ROAD REFUND 115 | 0.0000000000 | $180,600 | $180,600 | $0.00 | | |
| | Total Tax Rate: | 11.2403637388 | | | | | |
| | | | | Taxes w/Current Exemptions: | $2,030.01 | | |
| | | | | Taxes w/o Exemptions: | $2,030.01 | | |
Improvement / Building
| Improvement #1: | RESIDENTIAL | State Code: | 18 | 0.0 sqft | Value: | $29,690 |
Sketch
Property Image
Land
| 1 | RES 1 | Converted: Residential | 5.1700 | 225205.00 | 0.00 | 0.00 | 1.00 | $150,910 | $0 |
Roll Value History
| 2026 | N/A | N/A | N/A | N/A | N/A |
| 2025 | $29,690 | $150,910 | $0 | $180,600 | $180,600 |
| 2024 | $29,690 | $150,910 | $0 | $180,600 | $180,600 |
| 2023 | $29,690 | $150,910 | $0 | $180,600 | $180,600 |
| 2022 | $29,690 | $150,910 | $0 | $180,600 | $180,600 |
| 2021 | $29,690 | $38,800 | $0 | $68,490 | $68,490 |
| 2020 | $29,690 | $38,800 | $0 | $68,490 | $68,490 |
| 2019 | $29,690 | $38,800 | $0 | $68,490 | $68,490 |
| 2018 | $29,690 | $38,800 | $0 | $68,490 | $68,490 |
| 2017 | $29,690 | $38,800 | $0 | $68,490 | $68,490 |
| 2016 | $29,690 | $38,800 | $0 | $68,490 | $68,490 |
| 2015 | $29,800 | $38,800 | $0 | $68,600 | $68,600 |
| 2014 | $29,800 | $38,800 | $0 | $68,600 | $68,600 |
| 2013 | $29,800 | $38,800 | $0 | $68,600 | $68,600 |
| 2012 | $29,800 | $38,800 | $0 | $0 | $0 |
| 2011 | $29,800 | $38,800 | $0 | $0 | $0 |
| 2010 | $14,700 | $55,200 | $0 | $0 | $0 |
| 2009 | $11,700 | $61,700 | $0 | $0 | $0 |
| 2008 | $11,700 | $61,700 | $0 | $0 | $0 |
| 2007 | $11,700 | $61,700 | $0 | $0 | $0 |
Deed and Sales History
| 1 | 05/31/2024 | SWD | STATUTORY WARRANTY DEED | HAMADA LAND JOINT VENTURE | LYNFORD HARRY LIVING TRUST | | | $110,000.00 | 147636 | 2024-02887 |
| 2 | 05/23/2018 | QCD | QUIT CLAIM DEED | HAMADA ALAN ETAL | HAMADA LAND JOINT VENTURE | | | $0.00 | 134789 | 2018-04137 |
| 3 | 04/02/2010 | QCD | QUIT CLAIM DEED | HAMADA, BRIAN K | HAMADA, ALAN C & DEBORAH L H/W | | | | 118294 | 2010-02690 |
| 4 | 04/15/2003 | WARRANTY D | WARRANTY DEED | OYE, RICHARD K & AILEEN | HAMADA ALAN ETAL | | | $55,000.00 | 101846 | 2003-05336 |
|   | |
Payout Agreement
| No payout information available.. |