Property
Account |
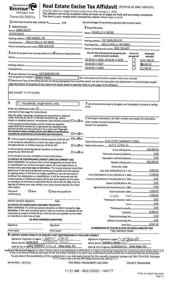
| Property ID: | 22441 | Abbreviated Legal Description: | 36 06 06 PART OF TAX 28B UNDER CONTRACT |
| Parcel Number: | 360606110037 | Agent Code: | |
| Type: | Real | | |
| Tax Area: | 101 - 140-4 | Land Use Code | 91 |
| Open Space: | N | DFL | N |
| Historic Property: | N | Remodel Property: | N |
| Multi-Family Redevelopment: | N | | |
| Township: | 6 | Section: | 6 |
| Range: | 36 |
Location |
| Address: | BARLEEN DR & WILLOWHAVEN DR WA 99362 | Mapsco: | |
| Neighborhood: | G SFR Contig Rural/City Inf | Map ID: | |
| Neighborhood CD: | 114097 |
Owner |
| Name: | BEEBE DANIELLE S | Owner ID: | 61697 |
| Mailing Address: | 1321 BARLEEN DR WALLA WALLA, WA 99362 | % Ownership: | 100.0000000000% |
| | | Exemptions: | |
Taxes and Assessment Details
Values
| (+) Improvement Homesite Value: | + | $0 | |
| (+) Improvement Non-Homesite Value: | + | $0 | |
| (+) Land Homesite Value: | + | $0 | |
| (+) Land Non-Homesite Value: | + | $17,030 | |
| (+) Curr Use (HS): | + | $0 | $0 |
| (+) Curr Use (NHS): | + | $0 | $0 |
| | | -------------------------- | |
| (=) Market Value: | = | $17,030 | |
| (–) Productivity Loss: | – | $0 | |
| | | -------------------------- | |
| (=) Subtotal: | = | $17,030 | |
| (+) Senior Appraised Value: | + | $0 | |
| (+) Non-Senior Appraised Value: | + | $17,030 | |
| | | -------------------------- | |
| (=) Total Appraised Value: | = | $17,030 | |
| (–) Senior Exemption Loss: | – | $0 | |
| (–) Exemption Loss: | – | $0 | |
| | | -------------------------- | |
| (=) Taxable Value: | = | $17,030 | |
Taxing Jurisdiction
| Owner: | BEEBE DANIELLE S | | |
| % Ownership: | 100.0000000000% | | |
| Total Value: | $17,030 | | |
| Tax Area: | 101 - 140-4 |
| CERFD | CURRENT EXPENSE REFUND 010 | 0.0000000000 | $17,030 | $17,030 | $0.00 | | |
| CURREXP | CURRENT EXPENSE 010 | 0.9851088983 | $17,030 | $17,030 | $16.78 | | |
| HUMNSERV | HUMAN SERVICES 119 | 0.0250000000 | $17,030 | $17,030 | $0.43 | | |
| SLDREL | SOLDIERS RELIEF 121 | 0.0155990000 | $17,030 | $17,030 | $0.27 | | |
| EMERGSER | EMS 147 | 0.3676811629 | $17,030 | $17,030 | $6.26 | | |
| EMSRFD | EMS REFUND 147 | 0.0000000000 | $17,030 | $17,030 | $0.00 | | |
| FD4EXP | FD #4 EXPENSE 686 | 1.2367913128 | $17,030 | $17,030 | $21.06 | | |
| RLBRFD | RURAL LIBRARY REFUND 623 | 0.0000000000 | $17,030 | $17,030 | $0.00 | | |
| RURALLIB | RURAL LIBRARY 623 | 0.3601547782 | $17,030 | $17,030 | $6.13 | | |
| PORTRFD | PORT REFUND 640 | 0.0000000000 | $17,030 | $17,030 | $0.00 | | |
| PORTWWGEN | PORT OF WW 640 | 0.2344301070 | $17,030 | $17,030 | $3.99 | | |
| SD140BOND | SD #140 BOND 764 | 0.8032434458 | $17,030 | $17,030 | $13.68 | | |
| SD140CAP | SD #140 CAP 762 | 0.3840034221 | $17,030 | $17,030 | $6.54 | | |
| SD140GEN | SD #140 GENERAL 760 | 2.4999999996 | $17,030 | $17,030 | $42.58 | | |
| ST2 | STATE SCHOOL PART 2 600 | 0.8853714103 | $17,030 | $17,030 | $15.08 | | |
| STATESCHL | STATE SCHOOL 600 | 1.6424571473 | $17,030 | $17,030 | $27.97 | | |
| STREFUND | STATE REFUND LEVY 603 | 0.0000000000 | $17,030 | $17,030 | $0.00 | | |
| COROAD | COUNTY ROAD 115 | 1.6137667997 | $17,030 | $17,030 | $27.48 | | |
| CRPRD | COUNTY ROAD REFUND 115 | 0.0000000000 | $17,030 | $17,030 | $0.00 | | |
| | Total Tax Rate: | 11.0536074840 | | | | | |
| | | | | Taxes w/Current Exemptions: | $188.25 | | |
| | | | | Taxes w/o Exemptions: | $188.25 | | |
Improvement / Building
Sketch
| No sketches available for this property. |
Property Image
Land
| 1 | RES 1 | Converted: Residential | 0.8500 | 37026.00 | 0.00 | 0.00 | 1.00 | $17,030 | $0 |
Roll Value History
| 2026 | N/A | N/A | N/A | N/A | N/A |
| 2025 | $0 | $17,030 | $0 | $17,030 | $17,030 |
| 2024 | $0 | $9,450 | $0 | $9,450 | $9,450 |
| 2023 | $0 | $9,450 | $0 | $9,450 | $9,450 |
| 2022 | $0 | $9,450 | $0 | $9,450 | $9,450 |
| 2021 | $0 | $9,450 | $0 | $9,450 | $9,450 |
| 2020 | $0 | $9,450 | $0 | $9,450 | $9,450 |
| 2019 | $0 | $11,100 | $0 | $11,100 | $11,100 |
| 2018 | $0 | $11,100 | $0 | $11,100 | $11,100 |
| 2017 | $0 | $11,100 | $0 | $11,100 | $11,100 |
| 2016 | $0 | $11,100 | $0 | $11,100 | $11,100 |
| 2015 | $0 | $11,100 | $0 | $11,100 | $11,100 |
| 2014 | $0 | $11,100 | $0 | $11,100 | $11,100 |
| 2013 | $0 | $11,100 | $0 | $11,100 | $11,100 |
| 2012 | $0 | $11,100 | $0 | $0 | $0 |
| 2011 | $0 | $15,900 | $0 | $0 | $0 |
| 2010 | $0 | $15,900 | $0 | $0 | $0 |
| 2009 | $0 | $15,900 | $0 | $0 | $0 |
| 2008 | $0 | $15,900 | $0 | $0 | $0 |
| 2007 | $0 | $7,200 | $0 | $0 | $0 |
Deed and Sales History
| 1 | 06/21/2022 | SWD | STATUTORY WARRANTY DEED | BOCK JAMES & ESTER | BEEBE DANIELLE S | | 4-PARCELS | $620,000.00 | 144177 | 2022-05207 |
|   | |
| 2 | 08/27/2002 | QCD | QUIT CLAIM DEED | BOCK, JAMES | BOCK JAMES & ESTER | | | | 100242 | 100242- |
| 3 | 09/01/1966 | WARRANTY D | WARRANTY DEED | | | | | $0.00 | 0 | 3190-479805 |
Payout Agreement
| No payout information available.. |