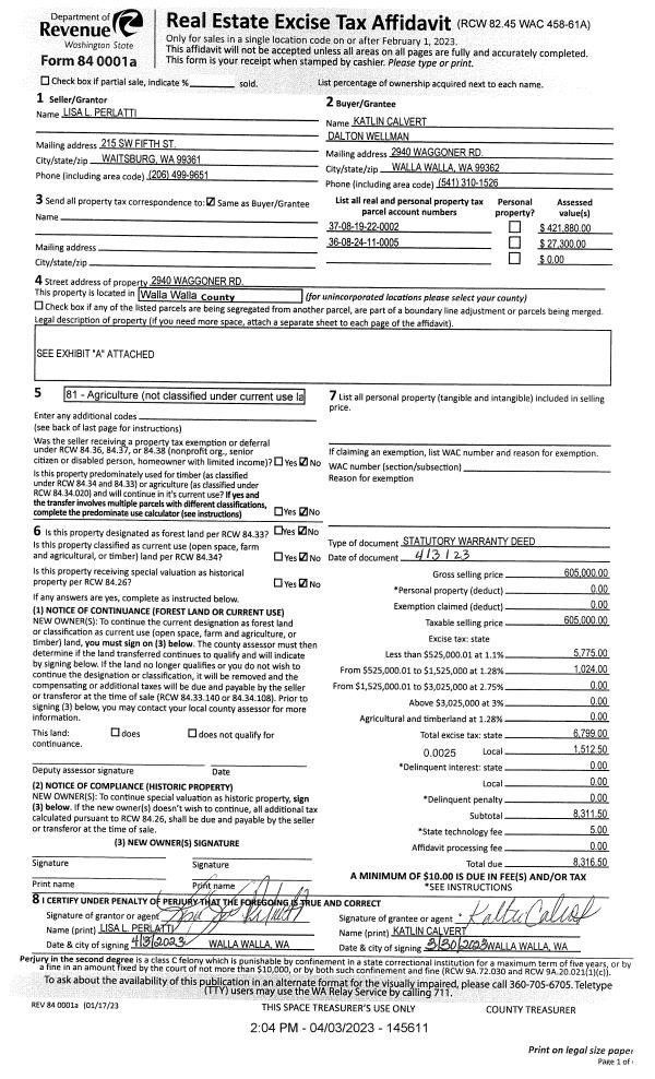
Property
Account |
| Property ID: | 22432 | Abbreviated Legal Description: | 24-08-36 PORTION NE 1/4 METES AND BOUNDS |
| Parcel Number: | 360824110005 | Agent Code: | |
| Type: | Real | | |
| Tax Area: | 100 - 140-8 | Land Use Code | 81 |
| Open Space: | N | DFL | N |
| Historic Property: | N | Remodel Property: | N |
| Multi-Family Redevelopment: | N | | |
| Township: | 8 | Section: | 24 |
| Range: | 36 |
Location |
| Address: | WAGGONER RD WA 99362 | Mapsco: | |
| Neighborhood: | G SFR Contig | Map ID: | |
| Neighborhood CD: | 314097 |
Owner |
| Name: | CALVERT KATLIN | Owner ID: | 73397 |
| Mailing Address: | DALTON WELLMAN 2940 WAGGONER RD WALLA WALLA, WA 99362 | % Ownership: | 100.0000000000% |
| | | Exemptions: | |
Taxes and Assessment Details
Values
| (+) Improvement Homesite Value: | + | N/A | |
| (+) Improvement Non-Homesite Value: | + | N/A | |
| (+) Land Homesite Value: | + | N/A | |
| (+) Land Non-Homesite Value: | + | N/A | Ag / Timber Use Value |
| (+) Curr Use (HS): | + | N/A | N/A |
| (+) Curr Use (NHS): | + | N/A | N/A |
| | | -------------------------- | |
| (=) Market Value: | = | N/A | |
| (–) Productivity Loss: | – | N/A | |
| | | -------------------------- | |
| (=) Subtotal: | = | N/A | |
| (+) Senior Appraised Value: | + | N/A | |
| (+) Non-Senior Appraised Value: | + | N/A | |
| | | -------------------------- | |
| (=) Total Appraised Value: | = | N/A | |
| (–) Senior Exemption Loss: | – | N/A | |
| (–) Exemption Loss: | – | N/A | |
| | | -------------------------- | |
| (=) Taxable Value: | = | N/A | |
Taxing Jurisdiction
| Owner: | CALVERT KATLIN | | |
| % Ownership: | 100.0000000000% | | |
| Total Value: | N/A | | |
| Tax Area: | 100 - 140-8 |
| CERFD | CURRENT EXPENSE REFUND 010 | N/A | N/A | N/A | N/A | | |
| CURREXP | CURRENT EXPENSE 010 | N/A | N/A | N/A | N/A | | |
| HUMNSERV | HUMAN SERVICES 119 | N/A | N/A | N/A | N/A | | |
| SLDREL | SOLDIERS RELIEF 121 | N/A | N/A | N/A | N/A | | |
| EMERGSER | EMS 147 | N/A | N/A | N/A | N/A | | |
| EMSRFD | EMS REFUND 147 | N/A | N/A | N/A | N/A | | |
| FD8EXP | FD #8 EXPENSE 697 | N/A | N/A | N/A | N/A | | |
| RLBRFD | RURAL LIBRARY REFUND 623 | N/A | N/A | N/A | N/A | | |
| RURALLIB | RURAL LIBRARY 623 | N/A | N/A | N/A | N/A | | |
| PORTRFD | PORT REFUND 640 | N/A | N/A | N/A | N/A | | |
| PORTWWGEN | PORT OF WW 640 | N/A | N/A | N/A | N/A | | |
| SD140BOND | SD #140 BOND 764 | N/A | N/A | N/A | N/A | | |
| SD140GEN | SD #140 GENERAL 760 | N/A | N/A | N/A | N/A | | |
| ST2 | STATE SCHOOL PART 2 600 | N/A | N/A | N/A | N/A | | |
| STATESCHL | STATE SCHOOL 600 | N/A | N/A | N/A | N/A | | |
| STREFUND | STATE REFUND LEVY 603 | N/A | N/A | N/A | N/A | | |
| COROAD | COUNTY ROAD 115 | N/A | N/A | N/A | N/A | | |
| CRPRD | COUNTY ROAD REFUND 115 | N/A | N/A | N/A | N/A | | |
| | Total Tax Rate: | N/A | | | | | |
| | | | | Taxes w/Current Exemptions: | N/A | | |
| | | | | Taxes w/o Exemptions: | N/A | | |
Improvement / Building
Sketch
| No sketches available for this property. |
Property Image
Land
| 1 | RES 1 | Converted: Residential | 8.5800 | 373744.80 | 0.00 | 0.00 | 1.00 | N/A | N/A |
Roll Value History
| 2026 | N/A | N/A | N/A | N/A | N/A |
| 2025 | $0 | $27,300 | $0 | $27,300 | $27,300 |
| 2024 | $0 | $27,300 | $0 | $27,300 | $27,300 |
| 2023 | $0 | $27,300 | $0 | $27,300 | $27,300 |
| 2022 | $0 | $27,300 | $0 | $27,300 | $27,300 |
| 2021 | $0 | $27,300 | $0 | $27,300 | $27,300 |
| 2020 | $0 | $27,300 | $0 | $27,300 | $27,300 |
| 2019 | $0 | $27,300 | $0 | $27,300 | $27,300 |
| 2018 | $0 | $27,300 | $0 | $27,300 | $27,300 |
| 2017 | $0 | $27,300 | $0 | $27,300 | $27,300 |
| 2016 | $0 | $27,300 | $0 | $27,300 | $27,300 |
| 2015 | $0 | $27,300 | $0 | $27,300 | $27,300 |
| 2014 | $0 | $27,300 | $0 | $27,300 | $27,300 |
| 2013 | $0 | $27,300 | $0 | $27,300 | $27,300 |
| 2012 | $0 | $27,300 | $0 | $0 | $0 |
| 2011 | $0 | $27,300 | $0 | $0 | $0 |
| 2010 | $0 | $27,300 | $0 | $0 | $0 |
| 2009 | $0 | $27,300 | $0 | $0 | $0 |
| 2008 | $0 | $27,300 | $0 | $0 | $0 |
| 2007 | $0 | $17,200 | $0 | $0 | $0 |
Deed and Sales History
| 1 | 04/03/2023 | SWD | STATUTORY WARRANTY DEED | PERLATTI LISA L | CALVERT KATLIN | | 2-PARCLELS | $605,000.00 | 145611 | 2023-01698 |
|   | |
| 2 | 09/01/2017 | SWD | STATUTORY WARRANTY DEED | PALMER GREG | PERLATTI LISA L | | | $0.00 | 134450 | 2018-02624 |
| 3 | 09/27/2017 | SWD | STATUTORY WARRANTY DEED | PALMER GREG | PERLATTI LISA L | | 2-PARCELS | $325,000.00 | 133291 | 2017-07624 |
|   | |
| 4 | 02/12/2003 | WARRANTY D | WARRANTY DEED | RAMER, KEVIN | PALMER GREG | | | $103,000.00 | 101381 | 2003-01930 |
|   | |
| 5 | 04/06/1973 | WARRANTY D | WARRANTY DEED | | | | | | 0 | 4052-8311 |
Payout Agreement
| No payout information available.. |