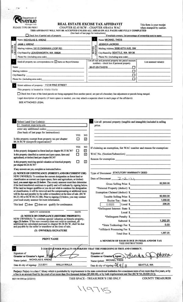
Property
Account |
| Property ID: | 22417 | Abbreviated Legal Description: | SHEILS TAX 2 BLK 3 |
| Parcel Number: | 360720730318 | Agent Code: | |
| Type: | Real | | |
| Tax Area: | 1 - OL-140-F | Land Use Code | 11 |
| Open Space: | N | DFL | N |
| Historic Property: | N | Remodel Property: | N |
| Multi-Family Redevelopment: | N | | |
| Township: | 7 | Section: | 20 |
| Range: | 36 |
Location |
| Address: | 112 W PINE ST WA 99362 | Mapsco: | |
| Neighborhood: | F SFR | Map ID: | |
| Neighborhood CD: | 512011 |
Owner |
| Name: | THEIS MICHAEL | Owner ID: | 49584 |
| Mailing Address: | JESSICA LACROIX 3603 SW MYRTLE ST SEATTLE, WA 98126 | % Ownership: | 100.0000000000% |
| | | Exemptions: | |
Taxes and Assessment Details
Values
| (+) Improvement Homesite Value: | + | $0 | |
| (+) Improvement Non-Homesite Value: | + | $126,000 | |
| (+) Land Homesite Value: | + | $0 | |
| (+) Land Non-Homesite Value: | + | $18,900 | |
| (+) Curr Use (HS): | + | $0 | $0 |
| (+) Curr Use (NHS): | + | $0 | $0 |
| | | -------------------------- | |
| (=) Market Value: | = | $144,900 | |
| (–) Productivity Loss: | – | $0 | |
| | | -------------------------- | |
| (=) Subtotal: | = | $144,900 | |
| (+) Senior Appraised Value: | + | $0 | |
| (+) Non-Senior Appraised Value: | + | $144,900 | |
| | | -------------------------- | |
| (=) Total Appraised Value: | = | $144,900 | |
| (–) Senior Exemption Loss: | – | $0 | |
| (–) Exemption Loss: | – | $0 | |
| | | -------------------------- | |
| (=) Taxable Value: | = | $144,900 | |
Taxing Jurisdiction
| Owner: | THEIS MICHAEL | | |
| % Ownership: | 100.0000000000% | | |
| Total Value: | $144,900 | | |
| Tax Area: | 1 - OL-140-F |
| CERFD | CURRENT EXPENSE REFUND 010 | 0.0000000000 | $144,900 | $144,900 | $0.00 | | |
| CURREXP | CURRENT EXPENSE 010 | 1.0175366760 | $144,900 | $144,900 | $147.44 | | |
| HUMNSERV | HUMAN SERVICES 119 | 0.0250000000 | $144,900 | $144,900 | $3.62 | | |
| SLDREL | SOLDIERS RELIEF 121 | 0.0155990005 | $144,900 | $144,900 | $2.26 | | |
| EMERGSER | EMS 147 | 0.3792580840 | $144,900 | $144,900 | $54.95 | | |
| EMSRFD | EMS REFUND 147 | 0.0000000000 | $144,900 | $144,900 | $0.00 | | |
| PORTRFD | PORT REFUND 640 | 0.0000000000 | $144,900 | $144,900 | $0.00 | | |
| PORTWWGEN | PORT OF WW 640 | 0.2460186015 | $144,900 | $144,900 | $35.65 | | |
| SD140BOND | SD #140 BOND 764 | 0.8342371393 | $144,900 | $144,900 | $120.88 | | |
| SD140GEN | SD #140 GENERAL 760 | 2.0646500647 | $144,900 | $144,900 | $299.17 | | |
| ST2 | STATE SCHOOL PART 2 600 | 0.8131451643 | $144,900 | $144,900 | $117.82 | | |
| STATESCHL | STATE SCHOOL 600 | 1.5158548041 | $144,900 | $144,900 | $219.65 | | |
| STREFUND | STATE REFUND LEVY 603 | 0.0000000000 | $144,900 | $144,900 | $0.00 | | |
| CWWBOND | C OF WW BOND 643 | 0.2760494372 | $144,900 | $144,900 | $40.00 | | |
| CWWGEN | CITY OF WW 631 | 1.6100204973 | $144,900 | $144,900 | $233.29 | | |
| CWWRFD | CITY OF WALLA WALLA REFUND 631 | 0.0000000000 | $144,900 | $144,900 | $0.00 | | |
| | Total Tax Rate: | 8.7973694689 | | | | | |
| | | | | Taxes w/Current Exemptions: | $1,274.73 | | |
| | | | | Taxes w/o Exemptions: | $1,274.73 | | |
Improvement / Building
| Improvement #1: | RESIDENTIAL | State Code: | 11 | 752.0 sqft | Value: | $126,000 |
| Exterior Wall: | SIDING | Heating/Cooling: | FLOOR FURNACE | | Number of Bathrooms: | 1 | Number of Bedrooms: | 1 | | Plumbing: | 6 | Roof Covering: | COMP SHINGLE |
|
| | Type | Description | Class CD | Sub Class CD | Year Built | Area |
| | MA | Main Area | 1 | 30 | 1922 | 752.0 |
| | SI1 | SITE IMPROVEMENT | 1 | 30 | 1922 | 1.0 |
| | RPS | PORCH W/STEPS,ROOF | 1 | 30 | 1922 | 54.0 |
| | UTST | Utility Storage Shed | 1 | 30 | 1922 | 260.0 |
Sketch
Property Image
Land
| 1 | RES 1 | Converted: Residential | 0.0826 | 3600.00 | 0.00 | 0.00 | 1.00 | $18,900 | $0 |
Roll Value History
| 2026 | N/A | N/A | N/A | N/A | N/A |
| 2025 | $199,190 | $32,400 | $0 | $231,590 | $231,590 |
| 2024 | $189,700 | $32,400 | $0 | $222,100 | $222,100 |
| 2023 | $126,000 | $18,900 | $0 | $144,900 | $144,900 |
| 2022 | $126,000 | $18,900 | $0 | $144,900 | $144,900 |
| 2021 | $90,000 | $18,900 | $0 | $108,900 | $108,900 |
| 2020 | $75,000 | $18,900 | $0 | $93,900 | $93,900 |
| 2019 | $75,000 | $18,900 | $0 | $93,900 | $93,900 |
| 2018 | $75,000 | $18,900 | $0 | $93,900 | $93,900 |
| 2017 | $72,350 | $10,800 | $0 | $83,150 | $83,150 |
| 2016 | $72,350 | $10,800 | $0 | $83,150 | $83,150 |
| 2015 | $72,350 | $10,800 | $0 | $83,150 | $83,150 |
| 2014 | $68,900 | $10,800 | $0 | $79,700 | $79,700 |
| 2013 | $68,900 | $10,800 | $0 | $79,700 | $79,700 |
| 2012 | $71,700 | $10,800 | $0 | $0 | $0 |
| 2011 | $107,100 | $10,800 | $0 | $0 | $0 |
| 2010 | $107,100 | $10,800 | $0 | $0 | $0 |
| 2009 | $120,200 | $10,800 | $0 | $0 | $0 |
| 2008 | $54,700 | $10,800 | $0 | $0 | $0 |
| 2007 | $54,700 | $10,800 | $0 | $0 | $0 |
Deed and Sales History
| 1 | 02/09/2011 | WARRANTY D | WARRANTY DEED | KRENZ, NICHOLAS S & JAIMI J | THEIS, MICHAEL | | | $82,500.00 | 119715 | 2011-01267 |
| 2 | 03/07/2008 | QCD | QUIT CLAIM DEED | KRENZ, NICHOLAS S | KRENZ, NICHOLAS S & JAIMI J | | | | 114636 | 2008-02137 |
| 3 | 05/03/2004 | WARRANTY D | WARRANTY DEED | RIGGERT, VERN G & LOIS | KRENZ, NICHOLAS S | | | $47,000.00 | 104662 | 2004-04731 |
| 4 | 09/13/2001 | WARRANTY D | WARRANTY DEED | | | | | $40,000.00 | 98018 | 3190-109976 |
Payout Agreement
| No payout information available.. |