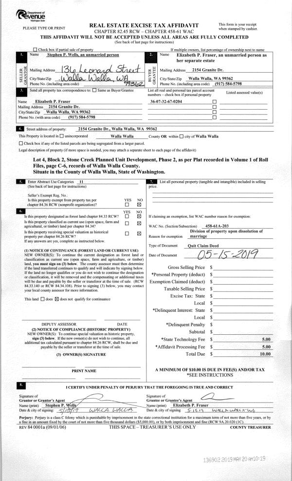
Property
Account |
| Property ID: | 22321 | Abbreviated Legal Description: | DIXIE (PARCEL A SURVEY 2024-02594) TAX 1 BLK 8; LESS PTN FOR PUBLIC RD ROW/EASEMENT TAKE;PLUS PORTION VACA PUBLIC ROW |
| Parcel Number: | 370826510801 | Agent Code: | |
| Type: | Real | | |
| Tax Area: | 310 - 101-8 | Land Use Code | 91 |
| Open Space: | N | DFL | N |
| Historic Property: | N | Remodel Property: | N |
| Multi-Family Redevelopment: | N | | |
| Township: | 8 | Section: | 26 |
| Range: | 37 |
Location |
| Address: | N PETTYBONE ST WA 99329 | Mapsco: | |
| Neighborhood: | A Dixie Land Only | Map ID: | |
| Neighborhood CD: | 413591 |
Owner |
| Name: | RAMIREZ BRITTNEY RAVEN & CARLOS U | Owner ID: | 77157 |
| Mailing Address: | 368 MYRTLE ST WALLA WALLA, WA 99362 | % Ownership: | 100.0000000000% |
| | | Exemptions: | |
Taxes and Assessment Details
Values
| (+) Improvement Homesite Value: | + | $0 | |
| (+) Improvement Non-Homesite Value: | + | $0 | |
| (+) Land Homesite Value: | + | $0 | |
| (+) Land Non-Homesite Value: | + | $61,410 | |
| (+) Curr Use (HS): | + | $0 | $0 |
| (+) Curr Use (NHS): | + | $0 | $0 |
| | | -------------------------- | |
| (=) Market Value: | = | $61,410 | |
| (–) Productivity Loss: | – | $0 | |
| | | -------------------------- | |
| (=) Subtotal: | = | $61,410 | |
| (+) Senior Appraised Value: | + | $0 | |
| (+) Non-Senior Appraised Value: | + | $61,410 | |
| | | -------------------------- | |
| (=) Total Appraised Value: | = | $61,410 | |
| (–) Senior Exemption Loss: | – | $0 | |
| (–) Exemption Loss: | – | $0 | |
| | | -------------------------- | |
| (=) Taxable Value: | = | $61,410 | |
Taxing Jurisdiction
| Owner: | RAMIREZ BRITTNEY RAVEN & CARLOS U | | |
| % Ownership: | 100.0000000000% | | |
| Total Value: | $61,410 | | |
| Tax Area: | 310 - 101-8 |
| CERFD | CURRENT EXPENSE REFUND 010 | 0.0000000000 | $61,410 | $61,410 | $0.00 | | |
| CURREXP | CURRENT EXPENSE 010 | 0.9851088983 | $61,410 | $61,410 | $60.50 | | |
| HUMNSERV | HUMAN SERVICES 119 | 0.0250000000 | $61,410 | $61,410 | $1.54 | | |
| SLDREL | SOLDIERS RELIEF 121 | 0.0155990000 | $61,410 | $61,410 | $0.96 | | |
| EMERGSER | EMS 147 | 0.3676811629 | $61,410 | $61,410 | $22.58 | | |
| EMSRFD | EMS REFUND 147 | 0.0000000000 | $61,410 | $61,410 | $0.00 | | |
| FD8EXP | FD #8 EXPENSE 697 | 1.0864716428 | $61,410 | $61,410 | $66.72 | | |
| RLBRFD | RURAL LIBRARY REFUND 623 | 0.0000000000 | $61,410 | $61,410 | $0.00 | | |
| RURALLIB | RURAL LIBRARY 623 | 0.3601547782 | $61,410 | $61,410 | $22.12 | | |
| PORTRFD | PORT REFUND 640 | 0.0000000000 | $61,410 | $61,410 | $0.00 | | |
| PORTWWGEN | PORT OF WW 640 | 0.2344301070 | $61,410 | $61,410 | $14.40 | | |
| SD101CAP | SD #101 CAP 752 | 0.5278383419 | $61,410 | $61,410 | $32.41 | | |
| SD101GEN | SD #101 GENERAL 750 | 0.7380758990 | $61,410 | $61,410 | $45.33 | | |
| ST2 | STATE SCHOOL PART 2 600 | 0.8853714103 | $61,410 | $61,410 | $54.37 | | |
| STATESCHL | STATE SCHOOL 600 | 1.6424571473 | $61,410 | $61,410 | $100.86 | | |
| STREFUND | STATE REFUND LEVY 603 | 0.0000000000 | $61,410 | $61,410 | $0.00 | | |
| COROAD | COUNTY ROAD 115 | 1.6137667997 | $61,410 | $61,410 | $99.10 | | |
| CRPRD | COUNTY ROAD REFUND 115 | 0.0000000000 | $61,410 | $61,410 | $0.00 | | |
| | Total Tax Rate: | 8.4819551874 | | | | | |
| | | | | Taxes w/Current Exemptions: | $520.89 | | |
| | | | | Taxes w/o Exemptions: | $520.89 | | |
Improvement / Building
Sketch
| No sketches available for this property. |
Property Image
Land
| 1 | RES 1 | Converted: Residential | 0.9447 | 41151.00 | 0.00 | 0.00 | 1.00 | $61,410 | $0 |
Roll Value History
| 2026 | N/A | N/A | N/A | N/A | N/A |
| 2025 | $0 | $61,410 | $0 | $61,410 | $61,410 |
| 2024 | $0 | $66,120 | $0 | $66,120 | $66,120 |
| 2023 | $0 | $66,120 | $0 | $66,120 | $66,120 |
| 2022 | $0 | $3,700 | $0 | $3,700 | $3,700 |
| 2021 | $0 | $3,700 | $0 | $3,700 | $3,700 |
| 2020 | $0 | $3,700 | $0 | $3,700 | $3,700 |
| 2019 | $0 | $3,700 | $0 | $3,700 | $3,700 |
| 2018 | $0 | $3,700 | $0 | $3,700 | $3,700 |
| 2017 | $0 | $3,700 | $0 | $3,700 | $3,700 |
| 2016 | $0 | $3,700 | $0 | $3,700 | $3,700 |
| 2015 | $0 | $3,700 | $0 | $3,700 | $3,700 |
| 2014 | $0 | $23,800 | $0 | $23,800 | $23,800 |
| 2013 | $0 | $23,800 | $0 | $23,800 | $23,800 |
| 2012 | $0 | $23,800 | $0 | $0 | $0 |
| 2011 | $0 | $40,000 | $0 | $0 | $0 |
| 2010 | $36,100 | $3,900 | $0 | $0 | $0 |
| 2009 | $0 | $22,900 | $0 | $0 | $0 |
| 2008 | $0 | $22,900 | $0 | $0 | $0 |
| 2007 | $0 | $22,900 | $0 | $0 | $0 |
Deed and Sales History
| 1 | 05/15/2025 | SWD | STATUTORY WARRANTY DEED | ADAMS ANDREW | RAMIREZ BRITTNEY RAVEN & CARLOS U | | | $88,000.00 | 149375 | 2025-02663 |
| 2 | 05/15/2024 | SURVEY | SURVEY | | | | | | 0 | 2024-02594 |
| 3 | 04/13/2023 | SWD | STATUTORY WARRANTY DEED | TOWNSEND KACEY LEE | ADAMS ANDREW | | | $40,000.00 | 145652 | 2023-01936 |
| 4 | 10/29/2020 | QCD | QUIT CLAIM DEED | TOWNSEND KAILYNN | TOWNSEND KACEY LEE | | | $0.00 | 140657 | 2021-00022 |
| 5 | 10/29/2020 | SWD | STATUTORY WARRANTY DEED | SCOTT TODD D & KIM J | TOWNSEND KACEY LEE | | 4 PARCELS | $0.00 | 140656 | 2021-00021 |
| 6 | 05/21/2014 | EASE | EASEMENT | SCOTT TODD D & KIM J | WALLA WALLA COUNTY OF | | | | 125931 | 2014-03443 |
| 7 | 05/06/2014 | QCD | QUIT CLAIM DEED | SCOTT KIM J | SCOTT TODD D & KIM J | 4-PARCELS | | | 125841 | 2014-031010 |
| 8 | 04/29/2014 | AFFIDAVIT | AFFIDAVIT | TOWNSEND DANIEL & KIM | SCOTT KIM J | | | | 0 | 2014-02882 |
| 9 | 07/01/2001 | QCD | QUIT CLAIM DEED | | | | | $23,000.00 | 97733 | 3170-108239 |
|   | |
Payout Agreement
| No payout information available.. |