Property
Account |
| Property ID: | 2202 | Abbreviated Legal Description: | SEC 34 TWN 8 RNG 32 N1/2N1/2 LESS RD LESS TAX 1 LESS PTN. TO WW CO. |
| Parcel Number: | 320834110003 | Agent Code: | |
| Type: | Real | | |
| Tax Area: | 316 - 300-6 | Land Use Code | 83 |
| Open Space: | Y | DFL | N |
| Historic Property: | N | Remodel Property: | N |
| Multi-Family Redevelopment: | N | | |
| Township: | 8 | Section: | 34 |
| Range: | 32 |
Location |
| Address: | WA 99360 | Mapsco: | |
| Neighborhood: | 0 Farm | Map ID: | |
| Neighborhood CD: | 2220 |
Owner |
| Name: | J R SIMPLOT COMPANY | Owner ID: | 797 |
| Mailing Address: | PO BOX 27 BOISE, ID 83707 | % Ownership: | 100.0000000000% |
| | | Exemptions: | |
Taxes and Assessment Details
Values
| (+) Improvement Homesite Value: | + | $0 | |
| (+) Improvement Non-Homesite Value: | + | $0 | |
| (+) Land Homesite Value: | + | $0 | |
| (+) Land Non-Homesite Value: | + | $0 | |
| (+) Curr Use (HS): | + | $0 | $0 |
| (+) Curr Use (NHS): | + | $1,100,000 | $243,880 |
| | | -------------------------- | |
| (=) Market Value: | = | $1,100,000 | |
| (–) Productivity Loss: | – | $856,130 | |
| | | -------------------------- | |
| (=) Subtotal: | = | $243,870 | |
| (+) Senior Appraised Value: | + | $0 | |
| (+) Non-Senior Appraised Value: | + | $243,880 | |
| | | -------------------------- | |
| (=) Total Appraised Value: | = | $243,880 | |
| (–) Senior Exemption Loss: | – | $0 | |
| (–) Exemption Loss: | – | $0 | |
| | | -------------------------- | |
| (=) Taxable Value: | = | $243,880 | |
Taxing Jurisdiction
| Owner: | J R SIMPLOT COMPANY | | |
| % Ownership: | 100.0000000000% | | |
| Total Value: | $1,100,000 | | |
| Tax Area: | 316 - 300-6 |
| CERFD | CURRENT EXPENSE REFUND 010 | 0.0000000000 | $243,880 | $243,880 | $0.00 | | |
| CURREXP | CURRENT EXPENSE 010 | 1.0175366760 | $243,880 | $243,880 | $248.16 | | |
| HUMNSERV | HUMAN SERVICES 119 | 0.0250000000 | $243,880 | $243,880 | $6.10 | | |
| SLDREL | SOLDIERS RELIEF 121 | 0.0155990005 | $243,880 | $243,880 | $3.80 | | |
| EMERGSER | EMS 147 | 0.3792580840 | $243,880 | $243,880 | $92.49 | | |
| EMSRFD | EMS REFUND 147 | 0.0000000000 | $243,880 | $243,880 | $0.00 | | |
| FD6EXP | FD #6 EXPENSE 693 | 0.6692985746 | $243,880 | $243,880 | $163.23 | | |
| RLBRFD | RURAL LIBRARY REFUND 623 | 0.0000000000 | $243,880 | $243,880 | $0.00 | | |
| RURALLIB | RURAL LIBRARY 623 | 0.3710609029 | $243,880 | $243,880 | $90.49 | | |
| PORTRFD | PORT REFUND 640 | 0.0000000000 | $243,880 | $243,880 | $0.00 | | |
| PORTWWGEN | PORT OF WW 640 | 0.2460186015 | $243,880 | $243,880 | $60.00 | | |
| SD300BOND | SD #300 BOND 783 | 1.8964951620 | $243,880 | $243,880 | $462.52 | | |
| SD300GEN | SD #300 GENERAL 780 | 2.1198322866 | $243,880 | $243,880 | $516.98 | | |
| ST2 | STATE SCHOOL PART 2 600 | 0.8131451643 | $243,880 | $243,880 | $198.31 | | |
| STATESCHL | STATE SCHOOL 600 | 1.5158548041 | $243,880 | $243,880 | $369.69 | | |
| STREFUND | STATE REFUND LEVY 603 | 0.0000000000 | $243,880 | $243,880 | $0.00 | | |
| COROAD | COUNTY ROAD 115 | 1.6549953990 | $243,880 | $243,880 | $403.62 | | |
| CRPRD | COUNTY ROAD REFUND 115 | 0.0000000000 | $243,880 | $243,880 | $0.00 | | |
| | Total Tax Rate: | 10.7240946555 | | | | | |
| | | | | Taxes w/Current Exemptions: | $2,615.39 | | |
| | | | | Taxes w/o Exemptions: | $2,615.39 | | |
Improvement / Building
Sketch
| No sketches available for this property. |
Property Image
Land
| 1 | CC2-1 | Class 2 Circle Irrigation | 125.0000 | 5445000.00 | 0.00 | 0.00 | 1.00 | $1,100,000 | $243,880 |
| 2 | WASTE | Waste | 28.9700 | 1261933.20 | 0.00 | 0.00 | 1.00 | $0 | $0 |
Roll Value History
| 2026 | N/A | N/A | N/A | N/A | N/A |
| 2025 | $0 | $1,375,000 | $251,380 | $251,380 | $251,380 |
| 2024 | $0 | $1,125,000 | $245,380 | $245,380 | $245,380 |
| 2023 | $0 | $1,100,000 | $243,880 | $243,880 | $243,880 |
| 2022 | $0 | $1,000,000 | $234,630 | $234,630 | $234,630 |
| 2021 | $0 | $1,000,000 | $234,630 | $234,630 | $234,630 |
| 2020 | $0 | $937,500 | $229,250 | $229,250 | $229,250 |
| 2019 | $0 | $812,500 | $220,000 | $220,000 | $220,000 |
| 2018 | $0 | $587,500 | $210,880 | $210,880 | $210,880 |
| 2017 | $0 | $587,500 | $209,250 | $209,250 | $209,250 |
| 2016 | $0 | $59,500 | $31,230 | $31,230 | $31,230 |
| 2015 | $0 | $58,900 | $27,380 | $27,380 | $27,380 |
| 2014 | $0 | $58,900 | $27,380 | $27,380 | $27,380 |
| 2013 | $0 | $54,900 | $21,500 | $21,500 | $21,500 |
| 2012 | $0 | $14,100 | $0 | $0 | $0 |
| 2011 | $0 | $13,600 | $0 | $0 | $0 |
| 2010 | $0 | $12,300 | $0 | $0 | $0 |
| 2009 | $0 | $11,500 | $0 | $0 | $0 |
| 2008 | $0 | $11,400 | $0 | $0 | $0 |
| 2007 | $0 | $11,400 | $0 | $0 | $0 |
Deed and Sales History
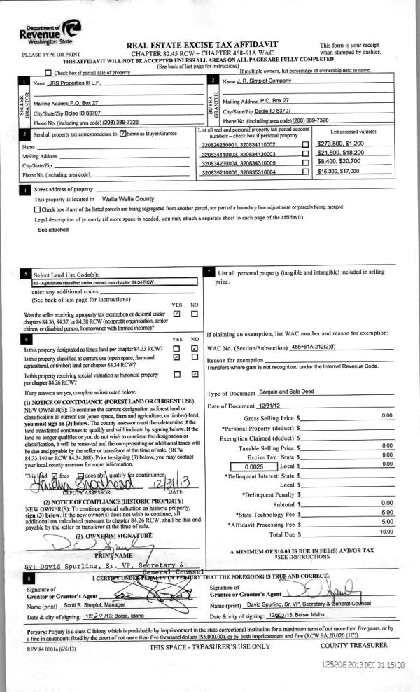
| 1 | 12/31/2013 | BARGAIN & | BARGAIN & SALE DEED | JRS PROPERTIES III LP | J R SIMPLOT COMPANY | | | | 125208 | 2013-12400 |
| 2 | 12/31/2013 | BARGAIN & | BARGAIN & SALE DEED | J R SIMPLOT SELF-DECLARATION | JRS PROPERTIES III LP | | | | 125207 | 2013-12399 |
| 3 | 10/04/1999 | WARRANTY D | WARRANTY DEED | | | | | $710,000.00 | 93755 | 2909-911505 |
|   | |
Payout Agreement
| No payout information available.. |