Property
Account |
| Property ID: | 2173 | Abbreviated Legal Description: | SEC 26 TWP 8 RNG 32 W1/2S1/2; S1/2NW1/4 |
| Parcel Number: | 320826230001 | Agent Code: | |
| Type: | Real | | |
| Tax Area: | 316 - 300-6 | Land Use Code | 83 |
| Open Space: | Y | DFL | N |
| Historic Property: | N | Remodel Property: | N |
| Multi-Family Redevelopment: | N | | |
| Township: | 8 | Section: | 26 |
| Range: | 32 |
Location |
| Address: | WA 99360 | Mapsco: | |
| Neighborhood: | 0 Farm | Map ID: | |
| Neighborhood CD: | 2220 |
Owner |
| Name: | J R SIMPLOT COMPANY | Owner ID: | 797 |
| Mailing Address: | PO BOX 27 BOISE, ID 83707 | % Ownership: | 100.0000000000% |
| | | Exemptions: | |
Taxes and Assessment Details
Property Tax Information as of
02/21/2026
Click on "Statement Details" to expand or collapse a tax statement.
* Please enter a valid date ** Please enter a valid date *
Statement Details |
| | TOTAL: | $0.00 | $0.00 | $0.00 | $0.00 | $0.00 | $0.00 |
|
| | $0.00 | $0.00 | $0.00 | $0.00 | $0.00 | $0.00 |
Values
| (+) Improvement Homesite Value: | + | $0 | |
| (+) Improvement Non-Homesite Value: | + | $0 | |
| (+) Land Homesite Value: | + | $0 | |
| (+) Land Non-Homesite Value: | + | $0 | |
| (+) Curr Use (HS): | + | $0 | $0 |
| (+) Curr Use (NHS): | + | $2,168,440 | $397,940 |
| | | -------------------------- | |
| (=) Market Value: | = | $2,168,440 | |
| (–) Productivity Loss: | – | $1,770,500 | |
| | | -------------------------- | |
| (=) Subtotal: | = | $397,940 | |
| (+) Senior Appraised Value: | + | $0 | |
| (+) Non-Senior Appraised Value: | + | $397,940 | |
| | | -------------------------- | |
| (=) Total Appraised Value: | = | $397,940 | |
| (–) Senior Exemption Loss: | – | $0 | |
| (–) Exemption Loss: | – | $0 | |
| | | -------------------------- | |
| (=) Taxable Value: | = | $397,940 | |
Taxing Jurisdiction
| Owner: | J R SIMPLOT COMPANY | | |
| % Ownership: | 100.0000000000% | | |
| Total Value: | $2,168,440 | | |
| Tax Area: | 316 - 300-6 |
| CERFD | CURRENT EXPENSE REFUND 010 | 0.0000000000 | $397,940 | $397,940 | $0.00 | | |
| CURREXP | CURRENT EXPENSE 010 | 0.9851088983 | $397,940 | $397,940 | $392.01 | | |
| HUMNSERV | HUMAN SERVICES 119 | 0.0250000000 | $397,940 | $397,940 | $9.95 | | |
| SLDREL | SOLDIERS RELIEF 121 | 0.0155990000 | $397,940 | $397,940 | $6.21 | | |
| EMERGSER | EMS 147 | 0.3676811629 | $397,940 | $397,940 | $146.32 | | |
| EMSRFD | EMS REFUND 147 | 0.0000000000 | $397,940 | $397,940 | $0.00 | | |
| FD6EXP | FD #6 EXPENSE 693 | 0.6637564225 | $397,940 | $397,940 | $264.14 | | |
| RLBRFD | RURAL LIBRARY REFUND 623 | 0.0000000000 | $397,940 | $397,940 | $0.00 | | |
| RURALLIB | RURAL LIBRARY 623 | 0.3601547782 | $397,940 | $397,940 | $143.32 | | |
| PORTRFD | PORT REFUND 640 | 0.0000000000 | $397,940 | $397,940 | $0.00 | | |
| PORTWWGEN | PORT OF WW 640 | 0.2344301070 | $397,940 | $397,940 | $93.29 | | |
| SD300BOND | SD #300 BOND 783 | 1.9432820025 | $397,940 | $397,940 | $773.31 | | |
| SD300GEN | SD #300 GENERAL 780 | 2.2641297109 | $397,940 | $397,940 | $900.99 | | |
| ST2 | STATE SCHOOL PART 2 600 | 0.8853714103 | $397,940 | $397,940 | $352.32 | | |
| STATESCHL | STATE SCHOOL 600 | 1.6424571473 | $397,940 | $397,940 | $653.60 | | |
| STREFUND | STATE REFUND LEVY 603 | 0.0000000000 | $397,940 | $397,940 | $0.00 | | |
| COROAD | COUNTY ROAD 115 | 1.6137667997 | $397,940 | $397,940 | $642.18 | | |
| CRPRD | COUNTY ROAD REFUND 115 | 0.0000000000 | $397,940 | $397,940 | $0.00 | | |
| | Total Tax Rate: | 11.0007374396 | | | | | |
| | | | | Taxes w/Current Exemptions: | $4,377.64 | | |
| | | | | Taxes w/o Exemptions: | $4,377.64 | | |
Improvement / Building
Sketch
| No sketches available for this property. |
Property Image
Land
| 1 | CC2-1 | Class 2 Circle Irrigation | 194.5500 | 0.00 | 0.00 | 0.00 | 1.00 | $2,140,050 | $391,240 |
| 2 | WASTE | Waste | 2.5000 | 0.00 | 0.00 | 0.00 | 1.00 | $0 | $0 |
| 3 | 30-C2 | Class 2 30 BU | 42.9500 | 0.00 | 0.00 | 0.00 | 1.00 | $28,390 | $6,700 |
Roll Value History
| 2026 | N/A | N/A | N/A | N/A | N/A |
| 2025 | $0 | $2,168,440 | $397,940 | $397,940 | $397,940 |
| 2024 | $0 | $1,778,140 | $389,160 | $389,160 | $389,160 |
| 2023 | $0 | $1,738,580 | $387,170 | $387,170 | $387,170 |
| 2022 | $0 | $1,579,120 | $372,510 | $372,510 | $372,510 |
| 2021 | $0 | $1,576,800 | $372,600 | $372,600 | $372,600 |
| 2020 | $0 | $1,477,990 | $364,410 | $364,410 | $364,410 |
| 2019 | $0 | $1,282,660 | $350,100 | $350,100 | $350,100 |
| 2018 | $0 | $932,390 | $337,140 | $337,140 | $337,140 |
| 2017 | $0 | $931,660 | $334,740 | $334,740 | $334,740 |
| 2016 | $0 | $639,830 | $334,740 | $334,740 | $334,740 |
| 2015 | $0 | $542,380 | $304,250 | $304,250 | $304,250 |
| 2014 | $0 | $542,380 | $304,250 | $304,250 | $304,250 |
| 2013 | $0 | $521,800 | $273,500 | $273,500 | $273,500 |
| 2012 | $0 | $22,600 | $0 | $0 | $0 |
| 2011 | $0 | $21,900 | $0 | $0 | $0 |
| 2010 | $0 | $19,700 | $0 | $0 | $0 |
| 2009 | $0 | $18,500 | $0 | $0 | $0 |
| 2008 | $0 | $18,300 | $0 | $0 | $0 |
| 2007 | $0 | $18,300 | $0 | $0 | $0 |
Deed and Sales History
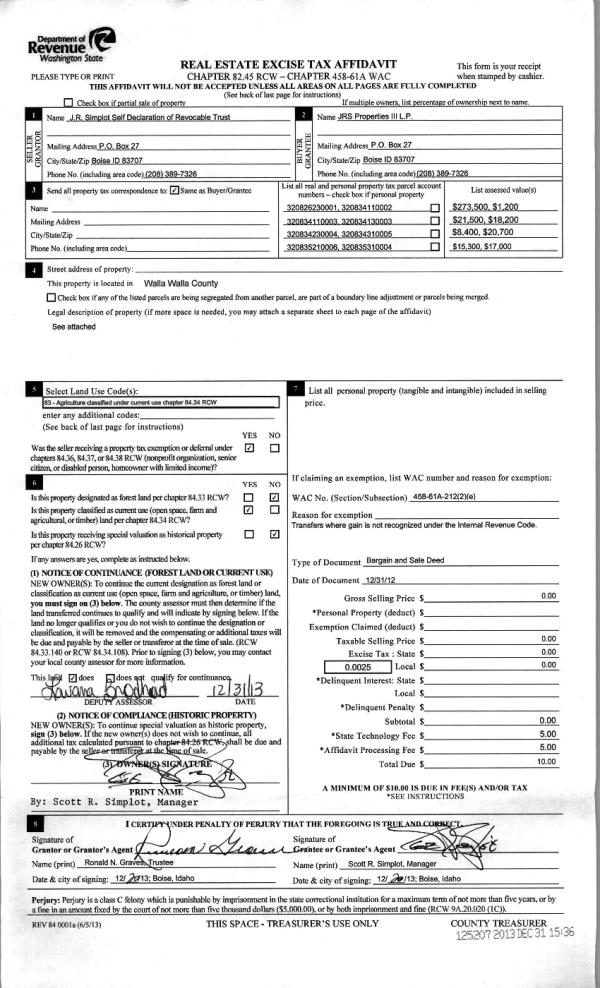
| 1 | 12/31/2013 | BARGAIN & | BARGAIN & SALE DEED | JRS PROPERTIES III LP | J R SIMPLOT COMPANY | | | | 125208 | 2013-12400 |
| 2 | 12/31/2013 | BARGAIN & | BARGAIN & SALE DEED | J R SIMPLOT SELF-DECLARATION | JRS PROPERTIES III LP | | | | 125207 | 2013-12399 |
| 3 | 10/04/1999 | WARRANTY D | WARRANTY DEED | | | | | $347,000.00 | 93753 | 2909-911507 |
|   | |
Payout Agreement
| No payout information available.. |