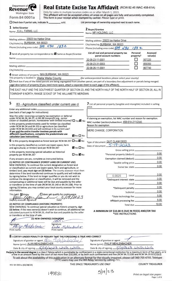
Property
Account |
| Property ID: | 2171 | Abbreviated Legal Description: | SEC 26 TWP 8 RNG 32 N1/2N1/2 |
| Parcel Number: | 320826110001 | Agent Code: | |
| Type: | Real | | |
| Tax Area: | 316 - 300-6 | Land Use Code | 83 |
| Open Space: | Y | DFL | N |
| Historic Property: | N | Remodel Property: | N |
| Multi-Family Redevelopment: | N | | |
| Township: | 8 | Section: | 26 |
| Range: | 32 |
Location |
| Address: | WA 99360 | Mapsco: | |
| Neighborhood: | 0 Farm | Map ID: | |
| Neighborhood CD: | 2220 |
Owner |
| Name: | MFI HOLDING LLC | Owner ID: | 73676 |
| Mailing Address: | 23023 ICE HARBOR DR BURBANK, WA 99323 | % Ownership: | 100.0000000000% |
| | | Exemptions: | |
Taxes and Assessment Details
Values
| (+) Improvement Homesite Value: | + | $0 | |
| (+) Improvement Non-Homesite Value: | + | $0 | |
| (+) Land Homesite Value: | + | $0 | |
| (+) Land Non-Homesite Value: | + | $0 | |
| (+) Curr Use (HS): | + | $0 | $0 |
| (+) Curr Use (NHS): | + | $1,191,330 | $218,760 |
| | | -------------------------- | |
| (=) Market Value: | = | $1,191,330 | |
| (–) Productivity Loss: | – | $972,580 | |
| | | -------------------------- | |
| (=) Subtotal: | = | $218,750 | |
| (+) Senior Appraised Value: | + | $0 | |
| (+) Non-Senior Appraised Value: | + | $218,760 | |
| | | -------------------------- | |
| (=) Total Appraised Value: | = | $218,760 | |
| (–) Senior Exemption Loss: | – | $0 | |
| (–) Exemption Loss: | – | $0 | |
| | | -------------------------- | |
| (=) Taxable Value: | = | $218,760 | |
Taxing Jurisdiction
| Owner: | MFI HOLDING LLC | | |
| % Ownership: | 100.0000000000% | | |
| Total Value: | $1,191,330 | | |
| Tax Area: | 316 - 300-6 |
| CERFD | CURRENT EXPENSE REFUND 010 | 0.0000000000 | $218,760 | $218,760 | $0.00 | | |
| CURREXP | CURRENT EXPENSE 010 | 0.9851088983 | $218,760 | $218,760 | $215.50 | | |
| HUMNSERV | HUMAN SERVICES 119 | 0.0250000000 | $218,760 | $218,760 | $5.47 | | |
| SLDREL | SOLDIERS RELIEF 121 | 0.0155990000 | $218,760 | $218,760 | $3.41 | | |
| EMERGSER | EMS 147 | 0.3676811629 | $218,760 | $218,760 | $80.43 | | |
| EMSRFD | EMS REFUND 147 | 0.0000000000 | $218,760 | $218,760 | $0.00 | | |
| FD6EXP | FD #6 EXPENSE 693 | 0.6637564225 | $218,760 | $218,760 | $145.20 | | |
| RLBRFD | RURAL LIBRARY REFUND 623 | 0.0000000000 | $218,760 | $218,760 | $0.00 | | |
| RURALLIB | RURAL LIBRARY 623 | 0.3601547782 | $218,760 | $218,760 | $78.79 | | |
| PORTRFD | PORT REFUND 640 | 0.0000000000 | $218,760 | $218,760 | $0.00 | | |
| PORTWWGEN | PORT OF WW 640 | 0.2344301070 | $218,760 | $218,760 | $51.28 | | |
| SD300BOND | SD #300 BOND 783 | 1.9432820025 | $218,760 | $218,760 | $425.11 | | |
| SD300GEN | SD #300 GENERAL 780 | 2.2641297109 | $218,760 | $218,760 | $495.30 | | |
| ST2 | STATE SCHOOL PART 2 600 | 0.8853714103 | $218,760 | $218,760 | $193.68 | | |
| STATESCHL | STATE SCHOOL 600 | 1.6424571473 | $218,760 | $218,760 | $359.30 | | |
| STREFUND | STATE REFUND LEVY 603 | 0.0000000000 | $218,760 | $218,760 | $0.00 | | |
| COROAD | COUNTY ROAD 115 | 1.6137667997 | $218,760 | $218,760 | $353.03 | | |
| CRPRD | COUNTY ROAD REFUND 115 | 0.0000000000 | $218,760 | $218,760 | $0.00 | | |
| | Total Tax Rate: | 11.0007374396 | | | | | |
| | | | | Taxes w/Current Exemptions: | $2,406.50 | | |
| | | | | Taxes w/o Exemptions: | $2,406.50 | | |
Improvement / Building
Sketch
| No sketches available for this property. |
Property Image
Land
| 1 | WASTE | Waste | 26.0000 | 0.00 | 0.00 | 0.00 | 1.00 | $0 | $0 |
| 2 | CC2-1 | Class 2 Circle Irrigation | 106.6600 | 4646109.60 | 0.00 | 0.00 | 1.00 | $1,173,260 | $214,490 |
| 3 | 30-C2 | Class 2 30 BU | 27.3400 | 1190930.40 | 0.00 | 0.00 | 1.00 | $18,070 | $4,270 |
Roll Value History
| 2026 | N/A | N/A | N/A | N/A | N/A |
| 2025 | $0 | $1,191,330 | $218,760 | $218,760 | $218,760 |
| 2024 | $0 | $977,250 | $213,990 | $213,990 | $213,990 |
| 2023 | $0 | $955,510 | $212,930 | $212,930 | $212,930 |
| 2022 | $0 | $867,740 | $204,880 | $204,880 | $204,880 |
| 2021 | $0 | $866,270 | $204,930 | $204,930 | $204,930 |
| 2020 | $0 | $811,950 | $200,450 | $200,450 | $200,450 |
| 2019 | $0 | $704,800 | $192,610 | $192,610 | $192,610 |
| 2018 | $0 | $512,760 | $185,630 | $185,630 | $185,630 |
| 2017 | $0 | $512,290 | $184,320 | $184,320 | $184,320 |
| 2016 | $0 | $352,300 | $184,320 | $184,320 | $184,320 |
| 2015 | $0 | $53,330 | $24,790 | $24,790 | $24,790 |
| 2014 | $0 | $53,330 | $24,790 | $24,790 | $24,790 |
| 2013 | $0 | $49,700 | $19,400 | $19,400 | $19,400 |
| 2012 | $0 | $12,700 | $0 | $0 | $0 |
| 2011 | $0 | $12,300 | $0 | $0 | $0 |
| 2010 | $0 | $11,100 | $0 | $0 | $0 |
| 2009 | $0 | $10,500 | $0 | $0 | $0 |
| 2008 | $0 | $10,300 | $0 | $0 | $0 |
| 2007 | $0 | $10,300 | $0 | $0 | $0 |
Deed and Sales History
| 1 | 05/19/2023 | QCD | QUIT CLAIM DEED | KAL FARMS LLC | MFI HOLDING LLC | | 3-PARCELS | $0.00 | 145831 | 2023-02671 |
| 2 | 02/02/2016 | SWD | STATUTORY WARRANTY DEED | LODMELL ANTON MILES | KAL FARMS LLC | | 3-PARCLES | $3,000,000.00 | 129610 | 2016-00824 |
|   | |
| 3 | 09/03/1975 | QCD | QUIT CLAIM DEED | | | | | $2,238.00 | 0 | 3105-47501 |
|   | |
Payout Agreement
| No payout information available.. |