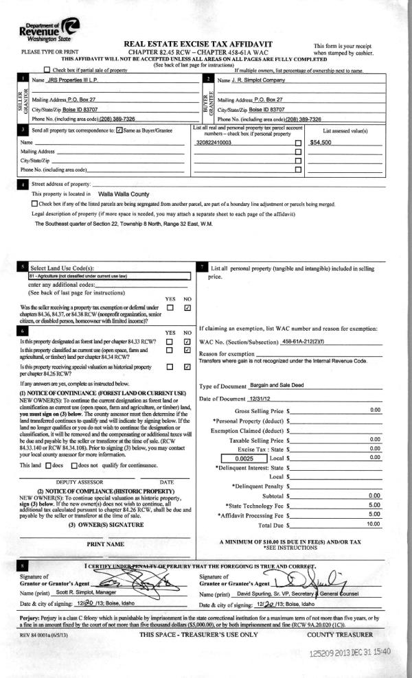
Property
Account |
| Property ID: | 2166 | Abbreviated Legal Description: | SEC 22 TWP 8 RNG 32 SE1/4 |
| Parcel Number: | 320822410003 | Agent Code: | |
| Type: | Real | | |
| Tax Area: | 316 - 300-6 | Land Use Code | 81 |
| Open Space: | Y | DFL | N |
| Historic Property: | N | Remodel Property: | N |
| Multi-Family Redevelopment: | N | | |
| Township: | 8 | Section: | 22 |
| Range: | 32 |
Location |
| Address: | WA 99360 | Mapsco: | |
| Neighborhood: | 0 Farm | Map ID: | |
| Neighborhood CD: | 2220 |
Owner |
| Name: | J R SIMPLOT COMPANY | Owner ID: | 797 |
| Mailing Address: | PO BOX 27 BOISE, ID 83707 | % Ownership: | 100.0000000000% |
| | | Exemptions: | |
Taxes and Assessment Details
Property Tax Information as of
02/21/2026
Click on "Statement Details" to expand or collapse a tax statement.
* Please enter a valid date ** Please enter a valid date *
Statement Details |
| | TOTAL: | $0.00 | $0.00 | $0.00 | $0.00 | $0.00 | $0.00 |
|
| | $0.00 | $0.00 | $0.00 | $0.00 | $0.00 | $0.00 |
Values
| (+) Improvement Homesite Value: | + | $0 | |
| (+) Improvement Non-Homesite Value: | + | $0 | |
| (+) Land Homesite Value: | + | $0 | |
| (+) Land Non-Homesite Value: | + | $0 | |
| (+) Curr Use (HS): | + | $0 | $0 |
| (+) Curr Use (NHS): | + | $1,108,690 | $244,410 |
| | | -------------------------- | |
| (=) Market Value: | = | $1,108,690 | |
| (–) Productivity Loss: | – | $864,290 | |
| | | -------------------------- | |
| (=) Subtotal: | = | $244,400 | |
| (+) Senior Appraised Value: | + | $0 | |
| (+) Non-Senior Appraised Value: | + | $244,410 | |
| | | -------------------------- | |
| (=) Total Appraised Value: | = | $244,410 | |
| (–) Senior Exemption Loss: | – | $0 | |
| (–) Exemption Loss: | – | $0 | |
| | | -------------------------- | |
| (=) Taxable Value: | = | $244,410 | |
Taxing Jurisdiction
| Owner: | J R SIMPLOT COMPANY | | |
| % Ownership: | 100.0000000000% | | |
| Total Value: | $1,108,690 | | |
| Tax Area: | 316 - 300-6 |
| CERFD | CURRENT EXPENSE REFUND 010 | 0.0000000000 | $244,410 | $244,410 | $0.00 | | |
| CURREXP | CURRENT EXPENSE 010 | 1.0175366760 | $244,410 | $244,410 | $248.70 | | |
| HUMNSERV | HUMAN SERVICES 119 | 0.0250000000 | $244,410 | $244,410 | $6.11 | | |
| SLDREL | SOLDIERS RELIEF 121 | 0.0155990005 | $244,410 | $244,410 | $3.81 | | |
| EMERGSER | EMS 147 | 0.3792580840 | $244,410 | $244,410 | $92.69 | | |
| EMSRFD | EMS REFUND 147 | 0.0000000000 | $244,410 | $244,410 | $0.00 | | |
| FD6EXP | FD #6 EXPENSE 693 | 0.6692985746 | $244,410 | $244,410 | $163.58 | | |
| RLBRFD | RURAL LIBRARY REFUND 623 | 0.0000000000 | $244,410 | $244,410 | $0.00 | | |
| RURALLIB | RURAL LIBRARY 623 | 0.3710609029 | $244,410 | $244,410 | $90.69 | | |
| PORTRFD | PORT REFUND 640 | 0.0000000000 | $244,410 | $244,410 | $0.00 | | |
| PORTWWGEN | PORT OF WW 640 | 0.2460186015 | $244,410 | $244,410 | $60.13 | | |
| SD300BOND | SD #300 BOND 783 | 1.8964951620 | $244,410 | $244,410 | $463.52 | | |
| SD300GEN | SD #300 GENERAL 780 | 2.1198322866 | $244,410 | $244,410 | $518.11 | | |
| ST2 | STATE SCHOOL PART 2 600 | 0.8131451643 | $244,410 | $244,410 | $198.74 | | |
| STATESCHL | STATE SCHOOL 600 | 1.5158548041 | $244,410 | $244,410 | $370.49 | | |
| STREFUND | STATE REFUND LEVY 603 | 0.0000000000 | $244,410 | $244,410 | $0.00 | | |
| COROAD | COUNTY ROAD 115 | 1.6549953990 | $244,410 | $244,410 | $404.50 | | |
| CRPRD | COUNTY ROAD REFUND 115 | 0.0000000000 | $244,410 | $244,410 | $0.00 | | |
| | Total Tax Rate: | 10.7240946555 | | | | | |
| | | | | Taxes w/Current Exemptions: | $2,621.07 | | |
| | | | | Taxes w/o Exemptions: | $2,621.07 | | |
Improvement / Building
Sketch
| No sketches available for this property. |
Property Image
Land
| 1 | CC2-1 | Class 2 Circle Irrigation | 125.0000 | 5445000.00 | 0.00 | 0.00 | 1.00 | $1,100,000 | $243,880 |
| 2 | DLP | Dry Land Pasture | 22.0000 | 958320.00 | 0.00 | 0.00 | 1.00 | $8,690 | $530 |
| 3 | WASTE | Waste | 13.0000 | 0.00 | 0.00 | 0.00 | 1.00 | $0 | $0 |
Roll Value History
| 2026 | N/A | N/A | N/A | N/A | N/A |
| 2025 | $0 | $1,383,690 | $251,840 | $251,840 | $251,840 |
| 2024 | $0 | $1,133,690 | $245,860 | $245,860 | $245,860 |
| 2023 | $0 | $1,108,690 | $244,410 | $244,410 | $244,410 |
| 2022 | $0 | $1,007,700 | $235,140 | $235,140 | $235,140 |
| 2021 | $0 | $1,007,700 | $235,110 | $235,110 | $235,110 |
| 2020 | $0 | $944,100 | $229,760 | $229,760 | $229,760 |
| 2019 | $0 | $819,100 | $220,510 | $220,510 | $220,510 |
| 2018 | $0 | $594,100 | $211,390 | $211,390 | $211,390 |
| 2017 | $0 | $59,090 | $0 | $59,090 | $59,090 |
| 2016 | $0 | $59,090 | $0 | $59,090 | $59,090 |
| 2015 | $0 | $58,510 | $0 | $58,510 | $58,510 |
| 2014 | $0 | $58,510 | $0 | $58,510 | $58,510 |
| 2013 | $0 | $54,500 | $54,500 | $54,500 | $54,500 |
| 2012 | $0 | $43,700 | $0 | $0 | $0 |
| 2011 | $0 | $42,600 | $0 | $0 | $0 |
| 2010 | $0 | $40,700 | $0 | $0 | $0 |
| 2009 | $0 | $40,700 | $0 | $0 | $0 |
| 2008 | $0 | $27,300 | $0 | $0 | $0 |
| 2007 | $0 | $27,300 | $0 | $0 | $0 |
Deed and Sales History
| 1 | 12/31/2013 | BARGAIN & | BARGAIN & SALE DEED | JRS PROPERTIES III LP | J R SIMPLOT COMPANY | | | | 125209 | 2013-12401 |
| 2 | 02/15/2000 | WARRANTY D | WARRANTY DEED | | | | | $50,000.00 | 94547 | 2950-001506 |
Payout Agreement
| No payout information available.. |