Property
Account |
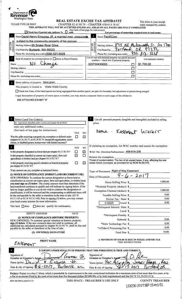
| Property ID: | 2135 | Abbreviated Legal Description: | SEC 30 TWP 7 RNG 32 S1/2SE1/4 LESS RD |
| Parcel Number: | 320730430003 | Agent Code: | |
| Type: | Real | | |
| Tax Area: | 318 - 300-6-TM | Land Use Code | 83 |
| Open Space: | Y | DFL | N |
| Historic Property: | N | Remodel Property: | N |
| Multi-Family Redevelopment: | N | | |
| Township: | 7 | Section: | 30 |
| Range: | 32 |
Location |
| Address: | WA 99360 | Mapsco: | |
| Neighborhood: | 0 Farm | Map ID: | |
| Neighborhood CD: | 2220 |
Owner |
| Name: | ENSUNSA DAVID HENRY JR | Owner ID: | 55816 |
| Mailing Address: | 65 SNAKE RIVER DR BURBANK, WA 99323 | % Ownership: | 100.0000000000% |
| | | Exemptions: | |
Taxes and Assessment Details
Property Tax Information as of
02/21/2026
Click on "Statement Details" to expand or collapse a tax statement.
* Please enter a valid date ** Please enter a valid date *
Statement Details |
| | TOTAL: | $0.00 | $0.00 | $0.00 | $0.00 | $0.00 | $0.00 |
|
| | $0.00 | $0.00 | $0.00 | $0.00 | $0.00 | $0.00 |
Values
| (+) Improvement Homesite Value: | + | $0 | |
| (+) Improvement Non-Homesite Value: | + | $0 | |
| (+) Land Homesite Value: | + | $0 | |
| (+) Land Non-Homesite Value: | + | $0 | |
| (+) Curr Use (HS): | + | $0 | $0 |
| (+) Curr Use (NHS): | + | $29,270 | $1,780 |
| | | -------------------------- | |
| (=) Market Value: | = | $29,270 | |
| (–) Productivity Loss: | – | $27,490 | |
| | | -------------------------- | |
| (=) Subtotal: | = | $1,780 | |
| (+) Senior Appraised Value: | + | $0 | |
| (+) Non-Senior Appraised Value: | + | $1,780 | |
| | | -------------------------- | |
| (=) Total Appraised Value: | = | $1,780 | |
| (–) Senior Exemption Loss: | – | $0 | |
| (–) Exemption Loss: | – | $0 | |
| | | -------------------------- | |
| (=) Taxable Value: | = | $1,780 | |
Taxing Jurisdiction
| Owner: | ENSUNSA DAVID HENRY JR | | |
| % Ownership: | 100.0000000000% | | |
| Total Value: | $29,270 | | |
| Tax Area: | 318 - 300-6-TM |
| CERFD | CURRENT EXPENSE REFUND 010 | 0.0000000000 | $1,780 | $1,780 | $0.00 | | |
| CURREXP | CURRENT EXPENSE 010 | 1.0175366760 | $1,780 | $1,780 | $1.81 | | |
| HUMNSERV | HUMAN SERVICES 119 | 0.0250000000 | $1,780 | $1,780 | $0.04 | | |
| SLDREL | SOLDIERS RELIEF 121 | 0.0155990005 | $1,780 | $1,780 | $0.03 | | |
| EMERGSER | EMS 147 | 0.3792580840 | $1,780 | $1,780 | $0.68 | | |
| EMSRFD | EMS REFUND 147 | 0.0000000000 | $1,780 | $1,780 | $0.00 | | |
| FD6EXP | FD #6 EXPENSE 693 | 0.6692985746 | $1,780 | $1,780 | $1.19 | | |
| RLBRFD | RURAL LIBRARY REFUND 623 | 0.0000000000 | $1,780 | $1,780 | $0.00 | | |
| RURALLIB | RURAL LIBRARY 623 | 0.3710609029 | $1,780 | $1,780 | $0.66 | | |
| PORTRFD | PORT REFUND 640 | 0.0000000000 | $1,780 | $1,780 | $0.00 | | |
| PORTWWGEN | PORT OF WW 640 | 0.2460186015 | $1,780 | $1,780 | $0.44 | | |
| SD300BOND | SD #300 BOND 783 | 1.8964951620 | $1,780 | $1,780 | $3.38 | | |
| SD300GEN | SD #300 GENERAL 780 | 2.1198322866 | $1,780 | $1,780 | $3.77 | | |
| ST2 | STATE SCHOOL PART 2 600 | 0.8131451643 | $1,780 | $1,780 | $1.45 | | |
| STATESCHL | STATE SCHOOL 600 | 1.5158548041 | $1,780 | $1,780 | $2.70 | | |
| STREFUND | STATE REFUND LEVY 603 | 0.0000000000 | $1,780 | $1,780 | $0.00 | | |
| COROAD | COUNTY ROAD 115 | 1.6549953990 | $1,780 | $1,780 | $2.95 | | |
| CRPRD | COUNTY ROAD REFUND 115 | 0.0000000000 | $1,780 | $1,780 | $0.00 | | |
| | Total Tax Rate: | 10.7240946555 | | | | | |
| | | | | Taxes w/Current Exemptions: | $19.10 | | |
| | | | | Taxes w/o Exemptions: | $19.10 | | |
Improvement / Building
Sketch
| No sketches available for this property. |
Property Image
Land
| 1 | WASTE | Waste | 5.0000 | 0.00 | 0.00 | 0.00 | 1.00 | $0 | $0 |
| 2 | DLP | Dry Land Pasture | 74.0900 | 3227360.40 | 0.00 | 0.00 | 1.00 | $29,270 | $1,780 |
Roll Value History
| 2026 | N/A | N/A | N/A | N/A | N/A |
| 2025 | $0 | $29,270 | $1,560 | $1,560 | $1,560 |
| 2024 | $0 | $29,270 | $1,630 | $1,630 | $1,630 |
| 2023 | $0 | $29,270 | $1,780 | $1,780 | $1,780 |
| 2022 | $0 | $25,930 | $1,700 | $1,700 | $1,700 |
| 2021 | $0 | $25,930 | $1,630 | $1,630 | $1,630 |
| 2020 | $0 | $22,230 | $1,700 | $1,700 | $1,700 |
| 2019 | $0 | $22,230 | $1,700 | $1,700 | $1,700 |
| 2018 | $0 | $22,230 | $1,700 | $1,700 | $1,700 |
| 2017 | $0 | $22,230 | $1,780 | $1,780 | $1,780 |
| 2016 | $0 | $7,410 | $1,700 | $1,700 | $1,700 |
| 2015 | $0 | $7,410 | $1,480 | $1,480 | $1,480 |
| 2014 | $0 | $161,720 | $67,440 | $67,440 | $67,440 |
| 2013 | $0 | $155,000 | $57,800 | $57,800 | $57,800 |
| 2012 | $0 | $46,000 | $0 | $0 | $0 |
| 2011 | $0 | $44,200 | $0 | $0 | $0 |
| 2010 | $0 | $45,600 | $0 | $0 | $0 |
| 2009 | $0 | $45,400 | $0 | $0 | $0 |
| 2008 | $0 | $57,300 | $0 | $0 | $0 |
| 2007 | $0 | $57,300 | $0 | $0 | $0 |
Deed and Sales History
| 1 | 12/15/2014 | SWD | STATUTORY WARRANTY DEED | PACIFIC LAND PARTNER LLC | ENSUNSA DAVID HENRY JR | | | $15,401.00 | 127099 | 2014-09072 |
| 2 | 05/01/1995 | QCD | QUIT CLAIM DEED | | | | | $112,500.00 | 84069 | 2309-504956 |
Payout Agreement
| No payout information available.. |