Property
Account |
| Property ID: | 1985 | Abbreviated Legal Description: | SYDNEY HEIGHTS #1 LT 7 |
| Parcel Number: | 360605500007 | Agent Code: | |
| Type: | Real | | |
| Tax Area: | 101 - 140-4 | Land Use Code | 11 |
| Open Space: | N | DFL | N |
| Historic Property: | N | Remodel Property: | N |
| Multi-Family Redevelopment: | N | | |
| Township: | 6 | Section: | 5 |
| Range: | 36 |
Location |
| Address: | 3160 CANBERRA DR WA 99362 | Mapsco: | |
| Neighborhood: | G Res Rural/City Inf | Map ID: | |
| Neighborhood CD: | 614012 |
Owner |
| Name: | REAY PATRICK H & EMILY A | Owner ID: | 65068 |
| Mailing Address: | 3160 CANBERRA DR WALLA WALLA, WA 99362 | % Ownership: | 100.0000000000% |
| | | Exemptions: | |
Taxes and Assessment Details
Property Tax Information as of
02/21/2026
Click on "Statement Details" to expand or collapse a tax statement.
* Please enter a valid date ** Please enter a valid date *
Statement Details |
| | TOTAL: | $0.00 | $0.00 | $0.00 | $0.00 | $0.00 | $0.00 |
|
| | $0.00 | $0.00 | $0.00 | $0.00 | $0.00 | $0.00 |
Values
| (+) Improvement Homesite Value: | + | $0 | |
| (+) Improvement Non-Homesite Value: | + | $497,660 | |
| (+) Land Homesite Value: | + | $0 | |
| (+) Land Non-Homesite Value: | + | $155,450 | |
| (+) Curr Use (HS): | + | $0 | $0 |
| (+) Curr Use (NHS): | + | $0 | $0 |
| | | -------------------------- | |
| (=) Market Value: | = | $653,110 | |
| (–) Productivity Loss: | – | $0 | |
| | | -------------------------- | |
| (=) Subtotal: | = | $653,110 | |
| (+) Senior Appraised Value: | + | $0 | |
| (+) Non-Senior Appraised Value: | + | $653,110 | |
| | | -------------------------- | |
| (=) Total Appraised Value: | = | $653,110 | |
| (–) Senior Exemption Loss: | – | $0 | |
| (–) Exemption Loss: | – | $0 | |
| | | -------------------------- | |
| (=) Taxable Value: | = | $653,110 | |
Taxing Jurisdiction
| Owner: | REAY PATRICK H & EMILY A | | |
| % Ownership: | 100.0000000000% | | |
| Total Value: | $653,110 | | |
| Tax Area: | 101 - 140-4 |
| CERFD | CURRENT EXPENSE REFUND 010 | 0.0000000000 | $653,110 | $653,110 | $0.00 | | |
| CURREXP | CURRENT EXPENSE 010 | 1.0175366760 | $653,110 | $653,110 | $664.56 | | |
| HUMNSERV | HUMAN SERVICES 119 | 0.0250000000 | $653,110 | $653,110 | $16.33 | | |
| SLDREL | SOLDIERS RELIEF 121 | 0.0155990005 | $653,110 | $653,110 | $10.19 | | |
| EMERGSER | EMS 147 | 0.3792580840 | $653,110 | $653,110 | $247.70 | | |
| EMSRFD | EMS REFUND 147 | 0.0000000000 | $653,110 | $653,110 | $0.00 | | |
| FD4EXP | FD #4 EXPENSE 686 | 0.8836993059 | $653,110 | $653,110 | $577.15 | | |
| RLBRFD | RURAL LIBRARY REFUND 623 | 0.0000000000 | $653,110 | $653,110 | $0.00 | | |
| RURALLIB | RURAL LIBRARY 623 | 0.3710609029 | $653,110 | $653,110 | $242.34 | | |
| PORTRFD | PORT REFUND 640 | 0.0000000000 | $653,110 | $653,110 | $0.00 | | |
| PORTWWGEN | PORT OF WW 640 | 0.2460186015 | $653,110 | $653,110 | $160.68 | | |
| SD140BOND | SD #140 BOND 764 | 0.8342371393 | $653,110 | $653,110 | $544.85 | | |
| SD140GEN | SD #140 GENERAL 760 | 2.0646500647 | $653,110 | $653,110 | $1,348.44 | | |
| ST2 | STATE SCHOOL PART 2 600 | 0.8131451643 | $653,110 | $653,110 | $531.07 | | |
| STATESCHL | STATE SCHOOL 600 | 1.5158548041 | $653,110 | $653,110 | $990.02 | | |
| STREFUND | STATE REFUND LEVY 603 | 0.0000000000 | $653,110 | $653,110 | $0.00 | | |
| COROAD | COUNTY ROAD 115 | 1.6549953990 | $653,110 | $653,110 | $1,080.89 | | |
| CRPRD | COUNTY ROAD REFUND 115 | 0.0000000000 | $653,110 | $653,110 | $0.00 | | |
| | Total Tax Rate: | 9.8210551422 | | | | | |
| | | | | Taxes w/Current Exemptions: | $6,414.22 | | |
| | | | | Taxes w/o Exemptions: | $6,414.22 | | |
Improvement / Building
| Improvement #1: | RESIDENTIAL | State Code: | 11 | 2247.0 sqft | Value: | $497,660 |
| Exterior Wall: | SIDING | Foundation: | SLAB FOUNDATION | | Heating/Cooling: | WARM & COOLED AIR | Number of Bathrooms: | 3 | | Number of Bedrooms: | 3 | Plumbing: | 12 | | Roof Covering: | COMP SHINGLE |   |   |
|
| | Type | Description | Class CD | Sub Class CD | Year Built | Area |
| | MA | Main Area | 11 | 40 | 1975 | 2247.0 |
| | SI1 | SITE IMPROVEMENT | 11 | 40 | 1975 | 4.0 |
| | BASE | BASEMENT | 11 | 40 | 1975 | 750.0 |
| | BPF | BASEMENT -PARTITIONED FINISH | 11 | 40 | 1975 | 750.0 |
| | BIG | Built In Garage | 11 | 40 | 1975 | 550.0 |
| | S1F | Single One Story Fireplace | 11 | 40 | 1975 | 1.0 |
| | BLW | WOOD BALCONIES | 11 | 40 | 1975 | 1107.0 |
| | POL3 | POLE BUILDING-CON,ELEC,INSU | 1 | 30 | 2018 | 864.0 |
| | LEAN TO | LEAN TO | 1 | 30 | 2018 | 288.0 |
Sketch
Property Image
Land
| 1 | RES 1 | Converted: Residential | 1.5200 | 0.00 | 0.00 | 0.00 | 1.00 | $155,450 | $0 |
Roll Value History
| 2026 | N/A | N/A | N/A | N/A | N/A |
| 2025 | $483,740 | $175,480 | $0 | $659,220 | $659,220 |
| 2024 | $497,660 | $155,450 | $0 | $653,110 | $653,110 |
| 2023 | $497,660 | $155,450 | $0 | $653,110 | $653,110 |
| 2022 | $497,660 | $102,600 | $0 | $600,260 | $600,260 |
| 2021 | $432,740 | $102,600 | $0 | $535,340 | $535,340 |
| 2020 | $360,620 | $102,600 | $0 | $463,220 | $463,220 |
| 2019 | $360,620 | $102,600 | $0 | $463,220 | $463,220 |
| 2018 | $342,000 | $92,100 | $0 | $434,100 | $434,100 |
| 2017 | $328,500 | $92,100 | $0 | $420,600 | $420,600 |
| 2016 | $328,500 | $92,100 | $0 | $420,600 | $420,600 |
| 2015 | $328,500 | $92,100 | $0 | $420,600 | $420,600 |
| 2014 | $262,800 | $92,100 | $0 | $354,900 | $354,900 |
| 2013 | $262,800 | $92,100 | $0 | $354,900 | $354,900 |
| 2012 | $262,800 | $92,100 | $0 | $0 | $0 |
| 2011 | $232,800 | $122,100 | $0 | $0 | $0 |
| 2010 | $232,800 | $122,100 | $0 | $0 | $0 |
| 2009 | $253,400 | $122,100 | $0 | $0 | $0 |
| 2008 | $253,400 | $122,100 | $0 | $0 | $0 |
| 2007 | $199,000 | $47,100 | $0 | $0 | $0 |
Deed and Sales History
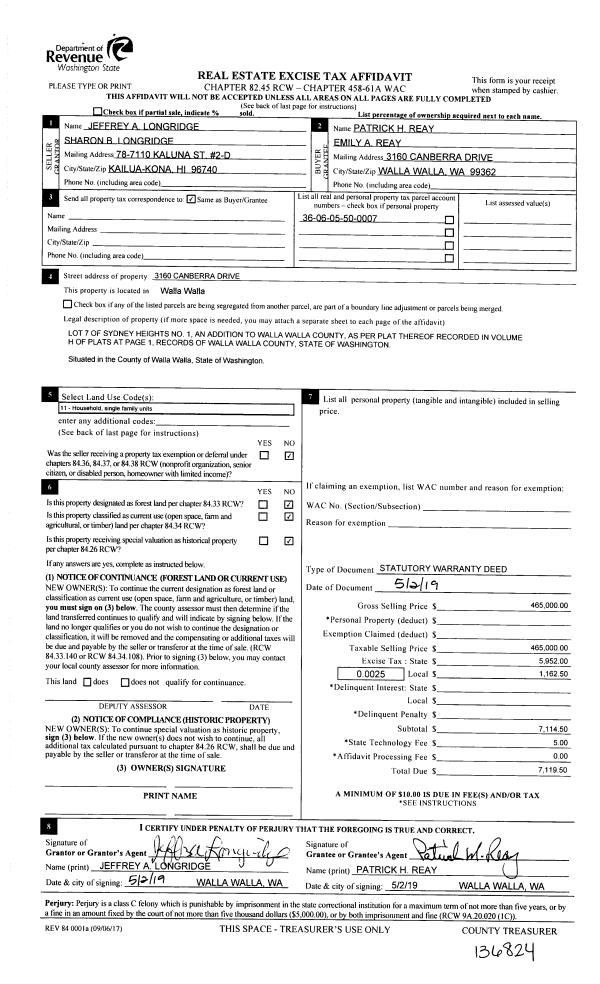
| 1 | 05/03/2019 | SWD | STATUTORY WARRANTY DEED | LONGRIDGE JEFFREY A & SHARON B | REAY PATRICK H & EMILY A | | | $465,000.00 | 136824 | 2019-02918 |
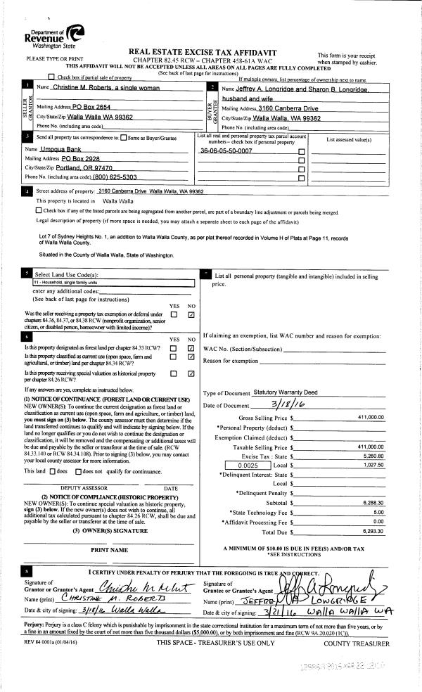
| 2 | 03/22/2016 | SWD | STATUTORY WARRANTY DEED | ROBERTS CHRISTINE M | LONGRIDGE JEFFREY A & SHARON B | | | $411,000.00 | 129868 | 2016-02117 |
| 3 | 12/04/2006 | QCD | QUIT CLAIM DEED | ROBERTS, CHRISTINE M | ROBERTS, CHRISTINE M | | | | 111797 | 2006-14430 |
| 4 | 05/13/2003 | WARRANTY D | WARRANTY DEED | SCHUSTER, TRICIA A | ROBERTS, CHRISTINE M | | | $200,000.00 | 102067 | 2003-06980 |
| 5 | 11/21/2002 | QCD | QUIT CLAIM DEED | CLARK, JANE A | SCHUSTER, TRICIA A | | | | 100872 | 2002-13275 |
| 6 | 08/31/1989 | WARRANTY D | WARRANTY DEED | | | | | $175,000.00 | 0 | 1788-905580 |
Payout Agreement
| No payout information available.. |