Property
Account |
| Property ID: | 1951 | Abbreviated Legal Description: | CBP IRRIGATION BLK 3 (PARCEL B SURVEY 2025-04500) PORTION LOT 1 OF SHORT PLAT SHORT PLAT 5/3 2009-10219; PLUS PTN PARCEL 47 (PTN FU 34) |
| Parcel Number: | 310834510047 | Agent Code: | |
| Type: | Real | | |
| Tax Area: | 328 - 400-M-5 | Land Use Code | 82 |
| Open Space: | N | DFL | N |
| Historic Property: | N | Remodel Property: | N |
| Multi-Family Redevelopment: | N | | |
| Township: | 8 | Section: | 34 |
| Range: | 31 |
Location |
| Address: | WA 99323 | Mapsco: | |
| Neighborhood: | 0 Farm | Map ID: | |
| Neighborhood CD: | 2220 |
Owner |
| Name: | ROWELL TIMOTHY & KATRINA | Owner ID: | 77680 |
| Mailing Address: | 8842 W 7TH PL KENNEWICK, WA 99336 | % Ownership: | 100.0000000000% |
| | | Exemptions: | |
Taxes and Assessment Details
Property Tax Information as of
02/21/2026
Click on "Statement Details" to expand or collapse a tax statement.
* Please enter a valid date ** Please enter a valid date *
Statement Details |
| | TOTAL: | $0.00 | $0.00 | $0.00 | $0.00 | $0.00 | $0.00 |
|
| | $0.00 | $0.00 | $0.00 | $0.00 | $0.00 | $0.00 |
Values
| (+) Improvement Homesite Value: | + | $0 | |
| (+) Improvement Non-Homesite Value: | + | $0 | |
| (+) Land Homesite Value: | + | $0 | |
| (+) Land Non-Homesite Value: | + | $11,600 | |
| (+) Curr Use (HS): | + | $0 | $0 |
| (+) Curr Use (NHS): | + | $0 | $0 |
| | | -------------------------- | |
| (=) Market Value: | = | $11,600 | |
| (–) Productivity Loss: | – | $0 | |
| | | -------------------------- | |
| (=) Subtotal: | = | $11,600 | |
| (+) Senior Appraised Value: | + | $0 | |
| (+) Non-Senior Appraised Value: | + | $11,600 | |
| | | -------------------------- | |
| (=) Total Appraised Value: | = | $11,600 | |
| (–) Senior Exemption Loss: | – | $0 | |
| (–) Exemption Loss: | – | $0 | |
| | | -------------------------- | |
| (=) Taxable Value: | = | $11,600 | |
Taxing Jurisdiction
| Owner: | ROWELL TIMOTHY & KATRINA | | |
| % Ownership: | 100.0000000000% | | |
| Total Value: | $11,600 | | |
| Tax Area: | 328 - 400-M-5 |
| CERFD | CURRENT EXPENSE REFUND 010 | 0.0000000000 | $11,600 | $11,600 | $0.00 | | |
| CURREXP | CURRENT EXPENSE 010 | 0.9851088983 | $11,600 | $11,600 | $11.43 | | |
| HUMNSERV | HUMAN SERVICES 119 | 0.0250000000 | $11,600 | $11,600 | $0.29 | | |
| SLDREL | SOLDIERS RELIEF 121 | 0.0155990000 | $11,600 | $11,600 | $0.18 | | |
| EMERGSER | EMS 147 | 0.3676811629 | $11,600 | $11,600 | $4.27 | | |
| EMSRFD | EMS REFUND 147 | 0.0000000000 | $11,600 | $11,600 | $0.00 | | |
| FD5EXP | FD #5 EXPENSE 689 | 1.1687305128 | $11,600 | $11,600 | $13.56 | | |
| RLBRFD | RURAL LIBRARY REFUND 623 | 0.0000000000 | $11,600 | $11,600 | $0.00 | | |
| RURALLIB | RURAL LIBRARY 623 | 0.3601547782 | $11,600 | $11,600 | $4.18 | | |
| PORTRFD | PORT REFUND 640 | 0.0000000000 | $11,600 | $11,600 | $0.00 | | |
| PORTWWGEN | PORT OF WW 640 | 0.2344301070 | $11,600 | $11,600 | $2.72 | | |
| SD400BOND | SD #400 BOND 793 | 0.0000000000 | $11,600 | $11,600 | $0.00 | | |
| SD400CAP | SD #400 CP 792 | 0.3211981044 | $11,600 | $11,600 | $3.73 | | |
| SD400GEN | SD #400 GENERAL 790 | 2.1312438929 | $11,600 | $11,600 | $24.72 | | |
| ST2 | STATE SCHOOL PART 2 600 | 0.8853714103 | $11,600 | $11,600 | $10.27 | | |
| STATESCHL | STATE SCHOOL 600 | 1.6424571473 | $11,600 | $11,600 | $19.05 | | |
| STREFUND | STATE REFUND LEVY 603 | 0.0000000000 | $11,600 | $11,600 | $0.00 | | |
| COROAD | COUNTY ROAD 115 | 1.6137667997 | $11,600 | $11,600 | $18.72 | | |
| CRPRD | COUNTY ROAD REFUND 115 | 0.0000000000 | $11,600 | $11,600 | $0.00 | | |
| | Total Tax Rate: | 9.7507418138 | | | | | |
| | | | | Taxes w/Current Exemptions: | $113.12 | | |
| | | | | Taxes w/o Exemptions: | $113.12 | | |
Improvement / Building
Sketch
| No sketches available for this property. |
Property Image
Land
| 1 | C2-I | Class 2 Irrigated | 2.0000 | 87120.00 | 0.00 | 0.00 | 1.00 | $11,600 | $0 |
Roll Value History
| 2026 | N/A | N/A | N/A | N/A | N/A |
| 2025 | $0 | $11,600 | $0 | $11,600 | $11,600 |
| 2024 | $85,890 | $68,710 | $0 | $154,600 | $154,600 |
| 2023 | $85,890 | $66,260 | $0 | $152,150 | $152,150 |
| 2022 | $85,890 | $61,350 | $0 | $147,240 | $147,240 |
| 2021 | $85,890 | $55,220 | $0 | $141,110 | $141,110 |
| 2020 | $79,760 | $44,170 | $0 | $123,930 | $123,930 |
| 2019 | $63,800 | $39,260 | $0 | $103,060 | $103,060 |
| 2018 | $63,800 | $38,040 | $0 | $101,840 | $101,840 |
| 2017 | $63,800 | $38,040 | $0 | $101,840 | $101,840 |
| 2016 | $63,800 | $38,040 | $0 | $101,840 | $101,840 |
| 2015 | $63,800 | $33,130 | $0 | $96,930 | $96,930 |
| 2014 | $63,800 | $33,130 | $0 | $96,930 | $96,930 |
| 2013 | $63,800 | $31,900 | $31,900 | $95,700 | $95,700 |
| 2012 | $0 | $28,200 | $0 | $0 | $0 |
| 2011 | $0 | $28,200 | $0 | $0 | $0 |
| 2010 | $0 | $28,200 | $0 | $0 | $0 |
| 2009 | $0 | $28,200 | $0 | $0 | $0 |
| 2008 | $0 | $22,100 | $0 | $0 | $0 |
| 2007 | $0 | $22,100 | $0 | $0 | $0 |
Deed and Sales History
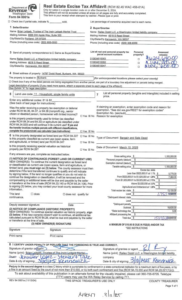
| 1 | 08/08/2025 | WARRANTY D | WARRANTY DEED | RAILEX DODD LLC | ROWELL TIMOTHY & KATRINA | | | $261,360.00 | 149845 | 2025-04710 |
| 2 | 08/01/2025 | SURVEY | SURVEY | | | 14 | 265 | | 0 | 2025-04500 |
| 3 | 03/11/2025 | BARGAIN & | BARGAIN & SALE DEED | LEITGEB IRWIN MARATAL TRUST | RAILEX DODD LLC | | 3 PARCELS | $1,100,000.00 | 149047 | 2025-01264 |
|   | |
| 4 | 02/06/2025 | SHERIFFS D | SHERIFFS DEED | MID-COLUMBIA AG | LEITGEB IRWIN MARATAL TRUST | | | | 148887 | 2025-00626 |
| 5 | 01/28/2025 | QCD | QUIT CLAIM DEED | MID-COLUMBIA AG | LEITGEB IRWIN MARATAL TRUST | | | | 148840 | 2025-00447 |
| 6 | 06/03/2010 | WARRANTY D | WARRANTY DEED | "LUNDGREN, DOUGLAS B &~MARY A" | MID-COLUMBIA AG | | | | 118572 | 2010-04294 |
| 7 | 03/08/2006 | WARRANTY D | WARRANTY DEED | STATE OF WASHINGTON | | | | | 109796 | 2006-02573 |
| 8 | 05/03/1991 | WARRANTY D | WARRANTY DEED | | | | | | 0 | 1889-102725 |
Payout Agreement
| No payout information available.. |