Property
Account |
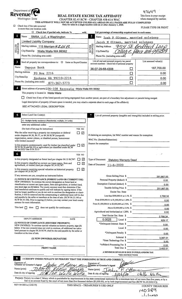
| Property ID: | 1922 | Abbreviated Legal Description: | HENDERSON LOT 2 SHORT PLAT 3/92 1996-05306 (PORTION TAX 4 BLK 43 Y; PLUS PORTION TAX 3 BLK 44 Z) |
| Parcel Number: | 360729684308 | Agent Code: | |
| Type: | Real | | |
| Tax Area: | 1 - OL-140-F | Land Use Code | 12 |
| Open Space: | N | DFL | N |
| Historic Property: | N | Remodel Property: | N |
| Multi-Family Redevelopment: | N | | |
| Township: | 7 | Section: | 29 |
| Range: | 36 |
Location |
| Address: | 106 REEVES LN WA 99362 | Mapsco: | |
| Neighborhood: | Fair Res Duplex/Town | Map ID: | |
| Neighborhood CD: | 612031 |
Owner |
| Name: | OLTMAN CASSIE L & | Owner ID: | 78308 |
| Mailing Address: | JACOB M OLTMAN 764 SE BEDFORD LOOP COLLEGE PLACE, WA 99324 | % Ownership: | 100.0000000000% |
| | | Exemptions: | |
Taxes and Assessment Details
Property Tax Information as of
04/19/2026
Click on "Statement Details" to expand or collapse a tax statement.
* Please enter a valid date ** Please enter a valid date *
Statement Details |
| | TOTAL: | $0.00 | $0.00 | $0.00 | $0.00 | $0.00 | $0.00 |
|
| | $0.00 | $0.00 | $0.00 | $0.00 | $0.00 | $0.00 |
Values
| (+) Improvement Homesite Value: | + | N/A | |
| (+) Improvement Non-Homesite Value: | + | N/A | |
| (+) Land Homesite Value: | + | N/A | |
| (+) Land Non-Homesite Value: | + | N/A | Ag / Timber Use Value |
| (+) Curr Use (HS): | + | N/A | N/A |
| (+) Curr Use (NHS): | + | N/A | N/A |
| | | -------------------------- | |
| (=) Market Value: | = | N/A | |
| (–) Productivity Loss: | – | N/A | |
| | | -------------------------- | |
| (=) Subtotal: | = | N/A | |
| (+) Senior Appraised Value: | + | N/A | |
| (+) Non-Senior Appraised Value: | + | N/A | |
| | | -------------------------- | |
| (=) Total Appraised Value: | = | N/A | |
| (–) Senior Exemption Loss: | – | N/A | |
| (–) Exemption Loss: | – | N/A | |
| | | -------------------------- | |
| (=) Taxable Value: | = | N/A | |
Taxing Jurisdiction
| Owner: | OLTMAN CASSIE L & | | |
| % Ownership: | 100.0000000000% | | |
| Total Value: | N/A | | |
| Tax Area: | 1 - OL-140-F |
| CERFD | CURRENT EXPENSE REFUND 010 | N/A | N/A | N/A | N/A | | |
| CURREXP | CURRENT EXPENSE 010 | N/A | N/A | N/A | N/A | | |
| HUMNSERV | HUMAN SERVICES 119 | N/A | N/A | N/A | N/A | | |
| SLDREL | SOLDIERS RELIEF 121 | N/A | N/A | N/A | N/A | | |
| EMERGSER | EMS 147 | N/A | N/A | N/A | N/A | | |
| EMSRFD | EMS REFUND 147 | N/A | N/A | N/A | N/A | | |
| PORTRFD | PORT REFUND 640 | N/A | N/A | N/A | N/A | | |
| PORTWWGEN | PORT OF WW 640 | N/A | N/A | N/A | N/A | | |
| SD140BOND | SD #140 BOND 764 | N/A | N/A | N/A | N/A | | |
| SD140GEN | SD #140 GENERAL 760 | N/A | N/A | N/A | N/A | | |
| ST2 | STATE SCHOOL PART 2 600 | N/A | N/A | N/A | N/A | | |
| STATESCHL | STATE SCHOOL 600 | N/A | N/A | N/A | N/A | | |
| STREFUND | STATE REFUND LEVY 603 | N/A | N/A | N/A | N/A | | |
| CWWBOND | C OF WW BOND 643 | N/A | N/A | N/A | N/A | | |
| CWWGEN | CITY OF WW 631 | N/A | N/A | N/A | N/A | | |
| CWWRFD | CITY OF WALLA WALLA REFUND 631 | N/A | N/A | N/A | N/A | | |
| | Total Tax Rate: | N/A | | | | | |
| | | | | Taxes w/Current Exemptions: | N/A | | |
| | | | | Taxes w/o Exemptions: | N/A | | |
Improvement / Building
| Improvement #1: | RESIDENTIAL | State Code: | 12 | 1588.0 sqft | Value: | N/A |
| Exterior Wall: | PLYWOOD | Heating/Cooling: | WARM & COOLED AIR | | Number of Bathrooms: | 2 | Number of Bedrooms: | 4 | | Plumbing: | 16 | Roof Covering: | COMP SHINGLE |
|
| | Type | Description | Class CD | Sub Class CD | Year Built | Area |
| | MA | Main Area | 1 | 30 | 1997 | 1588.0 |
| | SI1 | SITE IMPROVEMENT | 1 | 30 | 1997 | 3.0 |
| | ATG | Attached Garage | 1 | 30 | 1997 | 758.0 |
| | RPS | PORCH W/STEPS,ROOF | 1 | 30 | 1997 | 227.0 |
| | OSP | Open | 1 | 30 | 1997 | 80.0 |
| | RPS | PORCH W/STEPS,ROOF | 1 | 30 | 1997 | 148.0 |
Sketch
Property Image
Land
| 1 | RES 1 | Converted: Residential | 0.2129 | 9274.00 | 0.00 | 0.00 | 1.00 | N/A | N/A |
Roll Value History
| 2026 | N/A | N/A | N/A | N/A | N/A |
| 2025 | $225,920 | $85,600 | $0 | $311,520 | $311,520 |
| 2024 | $225,500 | $83,500 | $0 | $309,000 | $309,000 |
| 2023 | $244,230 | $68,440 | $0 | $312,670 | $312,670 |
| 2022 | $244,230 | $53,510 | $0 | $297,740 | $297,740 |
| 2021 | $174,450 | $53,510 | $0 | $227,960 | $227,960 |
| 2020 | $134,190 | $53,510 | $0 | $187,700 | $187,700 |
| 2019 | $134,190 | $53,510 | $0 | $187,700 | $187,700 |
| 2018 | $130,610 | $46,500 | $0 | $177,110 | $177,110 |
| 2017 | $124,390 | $46,500 | $0 | $170,890 | $170,890 |
| 2016 | $113,090 | $46,500 | $0 | $159,590 | $159,590 |
| 2015 | $107,700 | $46,500 | $0 | $154,200 | $154,200 |
| 2014 | $107,700 | $46,500 | $0 | $154,200 | $154,200 |
| 2013 | $107,700 | $46,500 | $0 | $154,200 | $154,200 |
| 2012 | $107,700 | $46,500 | $0 | $0 | $0 |
| 2011 | $107,700 | $46,500 | $0 | $0 | $0 |
| 2010 | $107,700 | $46,500 | $0 | $0 | $0 |
| 2009 | $124,800 | $46,500 | $0 | $0 | $0 |
| 2008 | $124,800 | $46,500 | $0 | $0 | $0 |
| 2007 | $103,300 | $24,000 | $0 | $0 | $0 |
Deed and Sales History
| 1 | 12/16/2025 | DPR | DEED OF PERSONAL REPRESENTATIVE | OLTMAN JOSH P | OLTMAN CASSIE L & | | | | 150536 | 2025-07744 |
| 2 | 11/06/2020 | SWD | STATUTORY WARRANTY DEED | SMBA LLC | OLTMAN JOSH P | | | $251,667.00 | 140284 | 2020-11723 |
| 3 | 09/10/2015 | WARRANTY D | WARRANTY DEED | BLETH JAMES L & WENDY R | SMBA LLC | 3 PARCELS | | | 129037 | 2015-09136 |
| 4 | 09/15/2015 | SWD | STATUTORY WARRANTY DEED | BLETH JAMES L & WENDY R | SMBA LLC | | 3-PARCELS | $569,000.00 | 128815 | 2015-08068 |
|   | |
| 5 | 04/01/2003 | WARRANTY D | WARRANTY DEED | REEVES, WM & GAY A | BLETH, JAMES L & WENDY R | | | $109,869.00 | 101733 | 2003-04556 |
| 6 | 12/19/2002 | WARRANTY D | WARRANTY DEED | REEVES DEVELOPMENT CORP | | | | | 101037 | 2002-14553 |
Payout Agreement
| No payout information available.. |