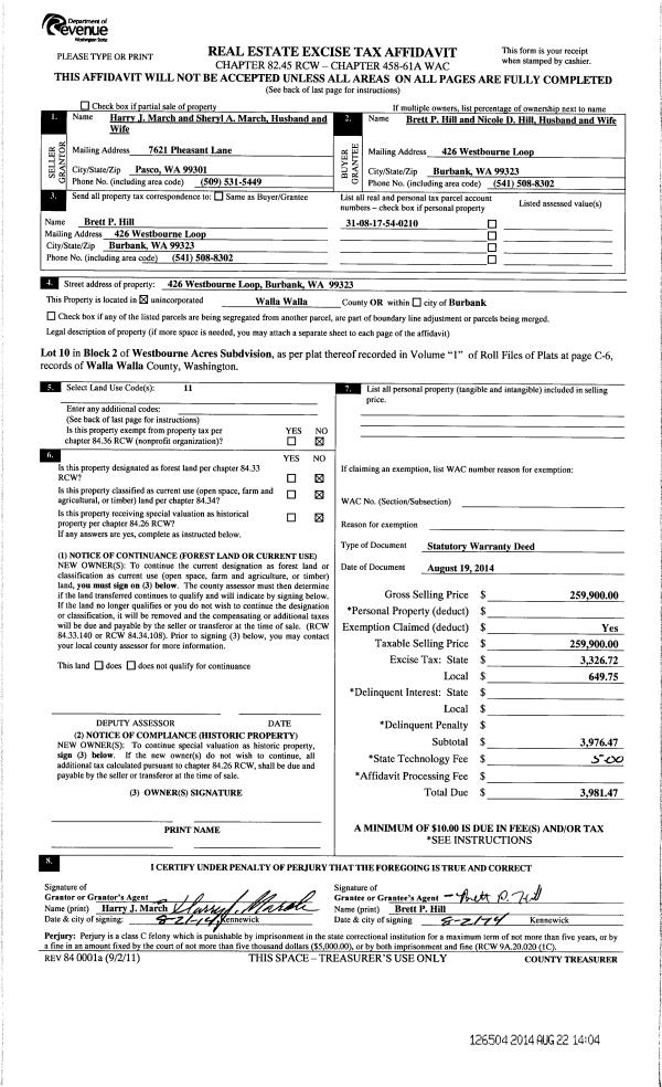
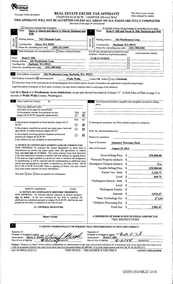
Property
Account |
| Property ID: | 1905 | Abbreviated Legal Description: | WESTBOURNE ACRES LOT 10 BLK 2 |
| Parcel Number: | 310817540210 | Agent Code: | |
| Type: | Real | | |
| Tax Area: | 328 - 400-M-5 | Land Use Code | 11 |
| Open Space: | N | DFL | N |
| Historic Property: | N | Remodel Property: | N |
| Multi-Family Redevelopment: | N | | |
| Township: | 8 | Section: | 17 |
| Range: | 31 |
Location |
| Address: | 426 WESTBOURNE LOOP WA 99323 | Mapsco: | |
| Neighborhood: | G BURBANK SFR | Map ID: | |
| Neighborhood CD: | 214711 |
Owner |
| Name: | HILL BRETT P & NICOLE D | Owner ID: | 55287 |
| Mailing Address: | 426 WESTBOURNE LOOP BURBANK, WA 99323 | % Ownership: | 100.0000000000% |
| | | Exemptions: | |
Taxes and Assessment Details
Values
| (+) Improvement Homesite Value: | + | $0 | |
| (+) Improvement Non-Homesite Value: | + | $327,200 | |
| (+) Land Homesite Value: | + | $0 | |
| (+) Land Non-Homesite Value: | + | $80,000 | |
| (+) Curr Use (HS): | + | $0 | $0 |
| (+) Curr Use (NHS): | + | $0 | $0 |
| | | -------------------------- | |
| (=) Market Value: | = | $407,200 | |
| (–) Productivity Loss: | – | $0 | |
| | | -------------------------- | |
| (=) Subtotal: | = | $407,200 | |
| (+) Senior Appraised Value: | + | $0 | |
| (+) Non-Senior Appraised Value: | + | $407,200 | |
| | | -------------------------- | |
| (=) Total Appraised Value: | = | $407,200 | |
| (–) Senior Exemption Loss: | – | $0 | |
| (–) Exemption Loss: | – | $0 | |
| | | -------------------------- | |
| (=) Taxable Value: | = | $407,200 | |
Taxing Jurisdiction
| Owner: | HILL BRETT P & NICOLE D | | |
| % Ownership: | 100.0000000000% | | |
| Total Value: | $407,200 | | |
| Tax Area: | 328 - 400-M-5 |
| CERFD | CURRENT EXPENSE REFUND 010 | 0.0000000000 | $407,200 | $407,200 | $0.00 | | |
| CURREXP | CURRENT EXPENSE 010 | 1.0175366760 | $407,200 | $407,200 | $414.34 | | |
| HUMNSERV | HUMAN SERVICES 119 | 0.0250000000 | $407,200 | $407,200 | $10.18 | | |
| SLDREL | SOLDIERS RELIEF 121 | 0.0155990005 | $407,200 | $407,200 | $6.35 | | |
| EMERGSER | EMS 147 | 0.3792580840 | $407,200 | $407,200 | $154.43 | | |
| EMSRFD | EMS REFUND 147 | 0.0000000000 | $407,200 | $407,200 | $0.00 | | |
| FD5EXP | FD #5 EXPENSE 689 | 1.2045331840 | $407,200 | $407,200 | $490.49 | | |
| RLBRFD | RURAL LIBRARY REFUND 623 | 0.0000000000 | $407,200 | $407,200 | $0.00 | | |
| RURALLIB | RURAL LIBRARY 623 | 0.3710609029 | $407,200 | $407,200 | $151.10 | | |
| PORTRFD | PORT REFUND 640 | 0.0000000000 | $407,200 | $407,200 | $0.00 | | |
| PORTWWGEN | PORT OF WW 640 | 0.2460186015 | $407,200 | $407,200 | $100.18 | | |
| SD400BOND | SD #400 BOND 793 | 0.0000000000 | $407,200 | $407,200 | $0.00 | | |
| SD400CAP | SD #400 CP 792 | 0.3443722657 | $407,200 | $407,200 | $140.23 | | |
| SD400GEN | SD #400 GENERAL 790 | 1.9278469916 | $407,200 | $407,200 | $785.02 | | |
| ST2 | STATE SCHOOL PART 2 600 | 0.8131451643 | $407,200 | $407,200 | $331.11 | | |
| STATESCHL | STATE SCHOOL 600 | 1.5158548041 | $407,200 | $407,200 | $617.26 | | |
| STREFUND | STATE REFUND LEVY 603 | 0.0000000000 | $407,200 | $407,200 | $0.00 | | |
| COROAD | COUNTY ROAD 115 | 1.6549953990 | $407,200 | $407,200 | $673.91 | | |
| CRPRD | COUNTY ROAD REFUND 115 | 0.0000000000 | $407,200 | $407,200 | $0.00 | | |
| | Total Tax Rate: | 9.5152210736 | | | | | |
| | | | | Taxes w/Current Exemptions: | $3,874.60 | | |
| | | | | Taxes w/o Exemptions: | $3,874.60 | | |
Improvement / Building
| Improvement #1: | RESIDENTIAL | State Code: | 11 | 1754.0 sqft | Value: | $327,200 |
| Exterior Wall: | SIDING | Heating/Cooling: | HEAT PUMP | | Number of Bathrooms: | 2 | Number of Bedrooms: | 3 | | Plumbing: | 11 | Roof Covering: | COMP SHINGLE |
|
| | Type | Description | Class CD | Sub Class CD | Year Built | Area |
| | MA | Main Area | 1 | 35 | 1978 | 1754.0 |
| | SI1 | SITE IMPROVEMENT | 1 | 35 | 1978 | 2.5 |
| | ATG | Attached Garage | 1 | 35 | 1978 | 552.0 |
| | RPO | OPEN PORCH W/ROOF | 1 | 35 | 1978 | 105.0 |
| | OSP | Open | 1 | 35 | 1978 | 63.0 |
| | RPO | OPEN PORCH W/ROOF | 1 | 35 | 1978 | 442.0 |
| | S1F | Single One Story Fireplace | 1 | 35 | 1978 | 1.0 |
| | DTG | Detached Garage | 1 | 35 | 1978 | 864.0 |
Sketch
Property Image
Land
| 1 | RES 1 | Converted: Residential | 1.0000 | 43631.00 | 0.00 | 0.00 | 1.00 | $80,000 | $0 |
Roll Value History
| 2026 | N/A | N/A | N/A | N/A | N/A |
| 2025 | $392,630 | $80,000 | $0 | $472,630 | $472,630 |
| 2024 | $327,200 | $80,000 | $0 | $407,200 | $407,200 |
| 2023 | $327,200 | $80,000 | $0 | $407,200 | $407,200 |
| 2022 | $297,450 | $80,000 | $0 | $377,450 | $377,450 |
| 2021 | $297,450 | $80,000 | $0 | $377,450 | $377,450 |
| 2020 | $245,040 | $60,000 | $0 | $305,040 | $305,040 |
| 2019 | $245,040 | $60,000 | $0 | $305,040 | $305,040 |
| 2018 | $196,040 | $60,000 | $0 | $256,040 | $256,040 |
| 2017 | $196,040 | $60,000 | $0 | $256,040 | $256,040 |
| 2016 | $186,700 | $60,000 | $0 | $246,700 | $246,700 |
| 2015 | $186,700 | $60,000 | $0 | $246,700 | $246,700 |
| 2014 | $147,000 | $60,000 | $0 | $207,000 | $207,000 |
| 2013 | $147,000 | $60,000 | $0 | $207,000 | $207,000 |
| 2012 | $128,200 | $60,000 | $0 | $0 | $0 |
| 2011 | $128,200 | $60,000 | $0 | $0 | $0 |
| 2010 | $128,200 | $60,000 | $0 | $0 | $0 |
| 2009 | $163,700 | $35,000 | $0 | $0 | $0 |
| 2008 | $130,600 | $35,000 | $0 | $0 | $0 |
| 2007 | $130,600 | $35,000 | $0 | $0 | $0 |
Deed and Sales History
| 1 | 08/22/2014 | SWD | STATUTORY WARRANTY DEED | MARCH HARRY J & SHERYL A | HILL BRETT P & NICOLE D | | | $259,900.00 | 126504 | 2014-06114 |
| 2 | 05/02/1979 | WARRANTY D | WARRANTY DEED | | | | | $66,500.00 | 0 | 1037-904135 |
Payout Agreement
| No payout information available.. |