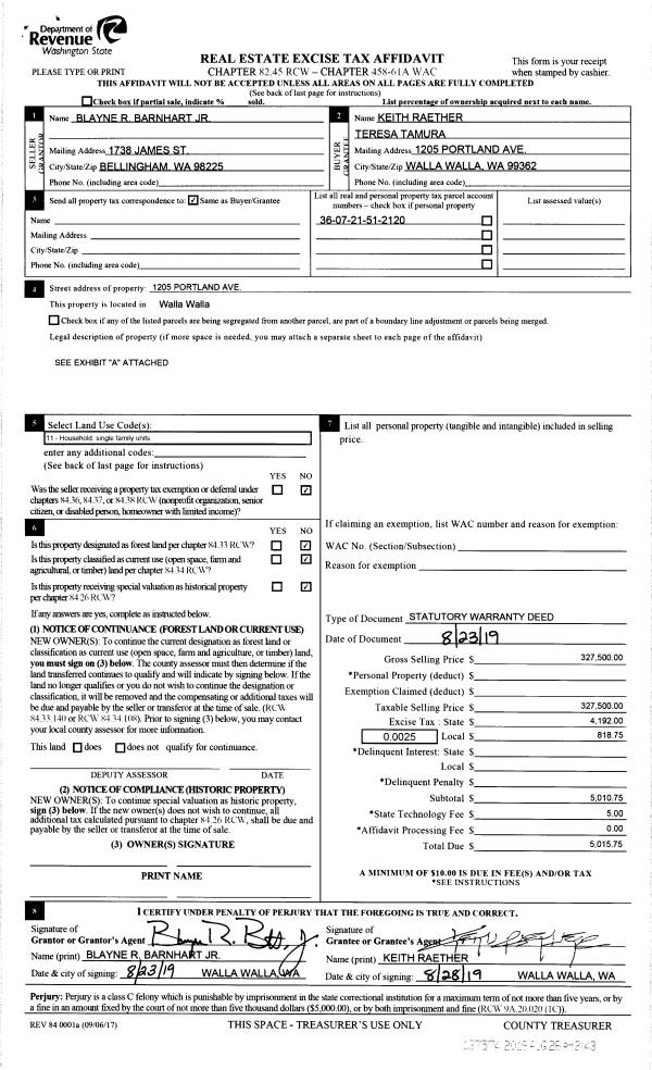
Property
Account |
| Property ID: | 18859 | Abbreviated Legal Description: | GREEN PARK TAX 9 BLK 21 |
| Parcel Number: | 360721512120 | Agent Code: | |
| Type: | Real | | |
| Tax Area: | 1 - OL-140-F | Land Use Code | 11 |
| Open Space: | N | DFL | N |
| Historic Property: | N | Remodel Property: | N |
| Multi-Family Redevelopment: | N | | |
| Township: | 7 | Section: | 21 |
| Range: | 36 |
Location |
| Address: | 1205 PORTLAND AVE WA 99362 | Mapsco: | |
| Neighborhood: | G-SFR | Map ID: | |
| Neighborhood CD: | 514011 |
Owner |
| Name: | RAETHER KEITH | Owner ID: | 42757 |
| Mailing Address: | TERESA L TAMURA 1205 PORTLAND AVE WALLA WALLA, WA 99362 | % Ownership: | 100.0000000000% |
| | | Exemptions: | |
Taxes and Assessment Details
Property Tax Information as of
02/21/2026
Click on "Statement Details" to expand or collapse a tax statement.
* Please enter a valid date ** Please enter a valid date *
Statement Details |
| | TOTAL: | $0.00 | $0.00 | $0.00 | $0.00 | $0.00 | $0.00 |
|
| | $0.00 | $0.00 | $0.00 | $0.00 | $0.00 | $0.00 |
Values
| (+) Improvement Homesite Value: | + | $0 | |
| (+) Improvement Non-Homesite Value: | + | $349,900 | |
| (+) Land Homesite Value: | + | $0 | |
| (+) Land Non-Homesite Value: | + | $49,480 | |
| (+) Curr Use (HS): | + | $0 | $0 |
| (+) Curr Use (NHS): | + | $0 | $0 |
| | | -------------------------- | |
| (=) Market Value: | = | $399,380 | |
| (–) Productivity Loss: | – | $0 | |
| | | -------------------------- | |
| (=) Subtotal: | = | $399,380 | |
| (+) Senior Appraised Value: | + | $0 | |
| (+) Non-Senior Appraised Value: | + | $399,380 | |
| | | -------------------------- | |
| (=) Total Appraised Value: | = | $399,380 | |
| (–) Senior Exemption Loss: | – | $0 | |
| (–) Exemption Loss: | – | $0 | |
| | | -------------------------- | |
| (=) Taxable Value: | = | $399,380 | |
Taxing Jurisdiction
| Owner: | RAETHER KEITH | | |
| % Ownership: | 100.0000000000% | | |
| Total Value: | $399,380 | | |
| Tax Area: | 1 - OL-140-F |
| CERFD | CURRENT EXPENSE REFUND 010 | 0.0000000000 | $399,380 | $399,380 | $0.00 | | |
| CURREXP | CURRENT EXPENSE 010 | 1.0175366760 | $399,380 | $399,380 | $406.38 | | |
| HUMNSERV | HUMAN SERVICES 119 | 0.0250000000 | $399,380 | $399,380 | $9.98 | | |
| SLDREL | SOLDIERS RELIEF 121 | 0.0155990005 | $399,380 | $399,380 | $6.23 | | |
| EMERGSER | EMS 147 | 0.3792580840 | $399,380 | $399,380 | $151.47 | | |
| EMSRFD | EMS REFUND 147 | 0.0000000000 | $399,380 | $399,380 | $0.00 | | |
| PORTRFD | PORT REFUND 640 | 0.0000000000 | $399,380 | $399,380 | $0.00 | | |
| PORTWWGEN | PORT OF WW 640 | 0.2460186015 | $399,380 | $399,380 | $98.25 | | |
| SD140BOND | SD #140 BOND 764 | 0.8342371393 | $399,380 | $399,380 | $333.18 | | |
| SD140GEN | SD #140 GENERAL 760 | 2.0646500647 | $399,380 | $399,380 | $824.58 | | |
| ST2 | STATE SCHOOL PART 2 600 | 0.8131451643 | $399,380 | $399,380 | $324.75 | | |
| STATESCHL | STATE SCHOOL 600 | 1.5158548041 | $399,380 | $399,380 | $605.40 | | |
| STREFUND | STATE REFUND LEVY 603 | 0.0000000000 | $399,380 | $399,380 | $0.00 | | |
| CWWBOND | C OF WW BOND 643 | 0.2760494372 | $399,380 | $399,380 | $110.25 | | |
| CWWGEN | CITY OF WW 631 | 1.6100204973 | $399,380 | $399,380 | $643.01 | | |
| CWWRFD | CITY OF WALLA WALLA REFUND 631 | 0.0000000000 | $399,380 | $399,380 | $0.00 | | |
| | Total Tax Rate: | 8.7973694689 | | | | | |
| | | | | Taxes w/Current Exemptions: | $3,513.48 | | |
| | | | | Taxes w/o Exemptions: | $3,513.48 | | |
Improvement / Building
| Improvement #1: | RESIDENTIAL | State Code: | 11 | 1422.0 sqft | Value: | $349,900 |
| Exterior Wall: | SIDING | Heating/Cooling: | WARM & COOLED AIR | | Number of Bathrooms: | 2 | Number of Bedrooms: | 2 | | Plumbing: | 10 | Roof Covering: | COMP SHINGLE |
|
| | Type | Description | Class CD | Sub Class CD | Year Built | Area |
| | MA | Main Area | 1 | 40 | 1950 | 1422.0 |
| | SI1 | SITE IMPROVEMENT | 1 | 40 | 1950 | 2.5 |
| | DTG | Detached Garage | 1 | 40 | 1950 | 298.0 |
| | OSP | Open | 1 | 40 | 1950 | 30.0 |
| | CPC | COVERED CARPORT/PATIO | 1 | 40 | 1950 | 460.0 |
Sketch
Property Image
Land
| 1 | RES 1 | Converted: Residential | 0.1567 | 6825.00 | 0.00 | 0.00 | 1.00 | $49,480 | $0 |
Roll Value History
| 2026 | N/A | N/A | N/A | N/A | N/A |
| 2025 | $412,900 | $75,080 | $0 | $487,980 | $487,980 |
| 2024 | $344,080 | $75,080 | $0 | $419,160 | $419,160 |
| 2023 | $349,900 | $49,480 | $0 | $399,380 | $399,380 |
| 2022 | $318,090 | $49,480 | $0 | $367,570 | $367,570 |
| 2021 | $289,180 | $49,480 | $0 | $338,660 | $338,660 |
| 2020 | $222,440 | $49,480 | $0 | $271,920 | $271,920 |
| 2019 | $222,440 | $49,480 | $0 | $271,920 | $271,920 |
| 2018 | $202,220 | $49,480 | $0 | $251,700 | $251,700 |
| 2017 | $183,960 | $30,700 | $0 | $214,660 | $214,660 |
| 2016 | $183,960 | $30,700 | $0 | $214,660 | $214,660 |
| 2015 | $183,960 | $30,700 | $0 | $214,660 | $214,660 |
| 2014 | $178,600 | $30,700 | $0 | $209,300 | $209,300 |
| 2013 | $178,600 | $30,700 | $0 | $209,300 | $209,300 |
| 2012 | $176,400 | $30,700 | $0 | $0 | $0 |
| 2011 | $176,400 | $30,700 | $0 | $0 | $0 |
| 2010 | $166,500 | $30,700 | $0 | $0 | $0 |
| 2009 | $188,400 | $30,700 | $0 | $0 | $0 |
| 2008 | $125,800 | $30,700 | $0 | $0 | $0 |
| 2007 | $125,800 | $30,700 | $0 | $0 | $0 |
Deed and Sales History
| 1 | 08/28/2019 | SWD | STATUTORY WARRANTY DEED | BARNHART BLAYNE R JR | RAETHER KEITH | | | $327,500.00 | 137574 | 2019-06646 |
| 2 | 10/18/2016 | QCD | QUIT CLAIM DEED | BARNHART BLAYNE JR & SUSAN KAY | BARNHART BLAYNE R JR | | | $0.00 | 131461 | 2016-09574 |
| 3 | 03/19/2008 | WARRANTY D | WARRANTY DEED | KRAPFEL, JEAN H | BARNHART, BLAYNE JR & SUSAN KA | | | $232,000.00 | 114695 | 2008-02610 |
| 4 | 08/05/2002 | WARRANTY D | WARRANTY DEED | KRAPFEL, WILLIAM D | KRAPFEL, WILLIAM D | | | | 0 | 2002-08815 |
| 5 | 08/01/1965 | WARRANTY D | WARRANTY DEED | | | | | $20,000.00 | 0 | 3150-469065 |
Payout Agreement
| No payout information available.. |