Property
Account |
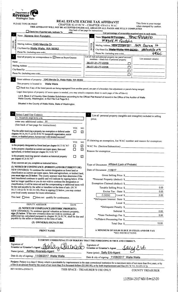
| Property ID: | 18750 | Abbreviated Legal Description: | TAX DIST SEG...SEE 360732770208 COUNTRY GLEN ESTATES WLY PTN LOT 8BLK 2 |
| Parcel Number: | 360731770209 | Agent Code: | |
| Type: | Real | | |
| Tax Area: | 5 - OL-140 | Land Use Code | 91 |
| Open Space: | N | DFL | N |
| Historic Property: | N | Remodel Property: | N |
| Multi-Family Redevelopment: | N | | |
| Township: | 7 | Section: | 31 |
| Range: | 36 |
Location |
| Address: | 1045 MERCITA DR WA 99362 | Mapsco: | |
| Neighborhood: | VG SFR Contig | Map ID: | |
| Neighborhood CD: | 115097 |
Owner |
| Name: | BLACKABY EARL S & SANDRA L | Owner ID: | 5830 |
| Mailing Address: | PO BOX 1681 WALLA WALLA, WA 99362 | % Ownership: | 100.0000000000% |
| | | Exemptions: | |
Taxes and Assessment Details
Property Tax Information as of
02/21/2026
Click on "Statement Details" to expand or collapse a tax statement.
* Please enter a valid date ** Please enter a valid date *
Statement Details |
| | TOTAL: | $0.00 | $0.00 | $0.00 | $0.00 | $0.00 | $0.00 |
|
| | $0.00 | $0.00 | $0.00 | $0.00 | $0.00 | $0.00 |
Values
| (+) Improvement Homesite Value: | + | $0 | |
| (+) Improvement Non-Homesite Value: | + | $0 | |
| (+) Land Homesite Value: | + | $0 | |
| (+) Land Non-Homesite Value: | + | $60,000 | |
| (+) Curr Use (HS): | + | $0 | $0 |
| (+) Curr Use (NHS): | + | $0 | $0 |
| | | -------------------------- | |
| (=) Market Value: | = | $60,000 | |
| (–) Productivity Loss: | – | $0 | |
| | | -------------------------- | |
| (=) Subtotal: | = | $60,000 | |
| (+) Senior Appraised Value: | + | $0 | |
| (+) Non-Senior Appraised Value: | + | $60,000 | |
| | | -------------------------- | |
| (=) Total Appraised Value: | = | $60,000 | |
| (–) Senior Exemption Loss: | – | $0 | |
| (–) Exemption Loss: | – | $0 | |
| | | -------------------------- | |
| (=) Taxable Value: | = | $60,000 | |
Taxing Jurisdiction
| Owner: | BLACKABY EARL S & SANDRA L | | |
| % Ownership: | 100.0000000000% | | |
| Total Value: | $60,000 | | |
| Tax Area: | 5 - OL-140 |
| CERFD | CURRENT EXPENSE REFUND 010 | 0.0000000000 | $60,000 | $60,000 | $0.00 | | |
| CURREXP | CURRENT EXPENSE 010 | 0.9851088983 | $60,000 | $60,000 | $59.11 | | |
| HUMNSERV | HUMAN SERVICES 119 | 0.0250000000 | $60,000 | $60,000 | $1.50 | | |
| SLDREL | SOLDIERS RELIEF 121 | 0.0155990000 | $60,000 | $60,000 | $0.94 | | |
| EMERGSER | EMS 147 | 0.3676811629 | $60,000 | $60,000 | $22.06 | | |
| EMSRFD | EMS REFUND 147 | 0.0000000000 | $60,000 | $60,000 | $0.00 | | |
| PORTRFD | PORT REFUND 640 | 0.0000000000 | $60,000 | $60,000 | $0.00 | | |
| PORTWWGEN | PORT OF WW 640 | 0.2344301070 | $60,000 | $60,000 | $14.07 | | |
| SD140BOND | SD #140 BOND 764 | 0.8032434458 | $60,000 | $60,000 | $48.19 | | |
| SD140CAP | SD #140 CAP 762 | 0.3840034221 | $60,000 | $60,000 | $23.04 | | |
| SD140GEN | SD #140 GENERAL 760 | 2.4999999996 | $60,000 | $60,000 | $150.00 | | |
| ST2 | STATE SCHOOL PART 2 600 | 0.8853714103 | $60,000 | $60,000 | $53.12 | | |
| STATESCHL | STATE SCHOOL 600 | 1.6424571473 | $60,000 | $60,000 | $98.55 | | |
| STREFUND | STATE REFUND LEVY 603 | 0.0000000000 | $60,000 | $60,000 | $0.00 | | |
| CWWBOND | C OF WW BOND 643 | 0.2642134255 | $60,000 | $60,000 | $15.85 | | |
| CWWGEN | CITY OF WW 631 | 1.6110494978 | $60,000 | $60,000 | $96.66 | | |
| CWWRFD | CITY OF WALLA WALLA REFUND 631 | 0.0000000000 | $60,000 | $60,000 | $0.00 | | |
| | Total Tax Rate: | 9.7181575166 | | | | | |
| | | | | Taxes w/Current Exemptions: | $583.09 | | |
| | | | | Taxes w/o Exemptions: | $583.09 | | |
Improvement / Building
Sketch
| No sketches available for this property. |
Property Image
Land
| 1 | RES 1 | Converted: Residential | 0.1147 | 4997.00 | 0.00 | 0.00 | 1.00 | $60,000 | $0 |
Roll Value History
| 2026 | N/A | N/A | N/A | N/A | N/A |
| 2025 | $0 | $60,000 | $0 | $60,000 | $60,000 |
| 2024 | $0 | $40,000 | $0 | $40,000 | $40,000 |
| 2023 | $0 | $40,000 | $0 | $40,000 | $40,000 |
| 2022 | $0 | $40,000 | $0 | $40,000 | $40,000 |
| 2021 | $0 | $40,000 | $0 | $40,000 | $40,000 |
| 2020 | $0 | $40,000 | $0 | $40,000 | $40,000 |
| 2019 | $0 | $5,000 | $0 | $5,000 | $5,000 |
| 2018 | $0 | $5,000 | $0 | $5,000 | $5,000 |
| 2017 | $0 | $5,000 | $0 | $5,000 | $5,000 |
| 2016 | $0 | $5,000 | $0 | $5,000 | $5,000 |
| 2015 | $0 | $5,000 | $0 | $5,000 | $5,000 |
| 2014 | $0 | $5,000 | $0 | $5,000 | $5,000 |
| 2013 | $0 | $5,000 | $0 | $5,000 | $5,000 |
| 2012 | $0 | $5,000 | $0 | $0 | $0 |
| 2011 | $0 | $5,000 | $0 | $0 | $0 |
| 2010 | $0 | $5,000 | $0 | $0 | $0 |
| 2009 | $0 | $5,000 | $0 | $0 | $0 |
| 2008 | $0 | $5,000 | $0 | $0 | $0 |
| 2007 | $0 | $5,000 | $0 | $0 | $0 |
Deed and Sales History
| 1 | 11/08/2017 | SWD | STATUTORY WARRANTY DEED | FONDAHN WAYNE M | BLACKABY EARL S & SANDRA L | | 2-PARCELS | $390,000.00 | 133585 | 2017-08995 |
|   | |
| 2 | 11/06/2017 | LOPA | LACK OF PROBATE AFFIDAVIT | FONDAHN NORENE ANN | FONDAHN WAYNE M | | | $0.00 | 133584 | 2017-08994 |
| 3 | 12/03/1999 | WARRANTY D | WARRANTY DEED | | | | | $275,000.00 | 94119 | 2929-913612 |
|   | |
Payout Agreement
| No payout information available.. |