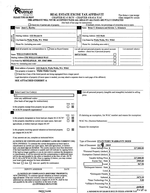
Property
Account |
| Property ID: | 18690 | Abbreviated Legal Description: | WATERTOWN TAX 1 LT 1 BLK 12 |
| Parcel Number: | 360721731202 | Agent Code: | |
| Type: | Real | | |
| Tax Area: | 1 - OL-140-F | Land Use Code | 11 |
| Open Space: | N | DFL | N |
| Historic Property: | N | Remodel Property: | N |
| Multi-Family Redevelopment: | N | | |
| Township: | 7 | Section: | 21 |
| Range: | 36 |
Location |
| Address: | 1422 RUTH ST WA 99362 | Mapsco: | |
| Neighborhood: | A-SFR | Map ID: | |
| Neighborhood CD: | 513011 |
Owner |
| Name: | KITAMURA BRIAN T & KIRSTEN L | Owner ID: | 57782 |
| Mailing Address: | 1422 RUTH ST WALLA WALLA, WA 99362 | % Ownership: | 100.0000000000% |
| | | Exemptions: | |
Taxes and Assessment Details
Property Tax Information as of
02/21/2026
Click on "Statement Details" to expand or collapse a tax statement.
* Please enter a valid date ** Please enter a valid date *
Statement Details |
| | TOTAL: | $0.00 | $0.00 | $0.00 | $0.00 | $0.00 | $0.00 |
|
| | $0.00 | $0.00 | $0.00 | $0.00 | $0.00 | $0.00 |
Values
| (+) Improvement Homesite Value: | + | $0 | |
| (+) Improvement Non-Homesite Value: | + | $296,450 | |
| (+) Land Homesite Value: | + | $0 | |
| (+) Land Non-Homesite Value: | + | $52,500 | |
| (+) Curr Use (HS): | + | $0 | $0 |
| (+) Curr Use (NHS): | + | $0 | $0 |
| | | -------------------------- | |
| (=) Market Value: | = | $348,950 | |
| (–) Productivity Loss: | – | $0 | |
| | | -------------------------- | |
| (=) Subtotal: | = | $348,950 | |
| (+) Senior Appraised Value: | + | $0 | |
| (+) Non-Senior Appraised Value: | + | $348,950 | |
| | | -------------------------- | |
| (=) Total Appraised Value: | = | $348,950 | |
| (–) Senior Exemption Loss: | – | $0 | |
| (–) Exemption Loss: | – | $0 | |
| | | -------------------------- | |
| (=) Taxable Value: | = | $348,950 | |
Taxing Jurisdiction
| Owner: | KITAMURA BRIAN T & KIRSTEN L | | |
| % Ownership: | 100.0000000000% | | |
| Total Value: | $348,950 | | |
| Tax Area: | 1 - OL-140-F |
| CERFD | CURRENT EXPENSE REFUND 010 | 0.0000000000 | $348,950 | $348,950 | $0.00 | | |
| CURREXP | CURRENT EXPENSE 010 | 1.0175366760 | $348,950 | $348,950 | $355.07 | | |
| HUMNSERV | HUMAN SERVICES 119 | 0.0250000000 | $348,950 | $348,950 | $8.72 | | |
| SLDREL | SOLDIERS RELIEF 121 | 0.0155990005 | $348,950 | $348,950 | $5.44 | | |
| EMERGSER | EMS 147 | 0.3792580840 | $348,950 | $348,950 | $132.34 | | |
| EMSRFD | EMS REFUND 147 | 0.0000000000 | $348,950 | $348,950 | $0.00 | | |
| PORTRFD | PORT REFUND 640 | 0.0000000000 | $348,950 | $348,950 | $0.00 | | |
| PORTWWGEN | PORT OF WW 640 | 0.2460186015 | $348,950 | $348,950 | $85.85 | | |
| SD140BOND | SD #140 BOND 764 | 0.8342371393 | $348,950 | $348,950 | $291.11 | | |
| SD140GEN | SD #140 GENERAL 760 | 2.0646500647 | $348,950 | $348,950 | $720.46 | | |
| ST2 | STATE SCHOOL PART 2 600 | 0.8131451643 | $348,950 | $348,950 | $283.75 | | |
| STATESCHL | STATE SCHOOL 600 | 1.5158548041 | $348,950 | $348,950 | $528.96 | | |
| STREFUND | STATE REFUND LEVY 603 | 0.0000000000 | $348,950 | $348,950 | $0.00 | | |
| CWWBOND | C OF WW BOND 643 | 0.2760494372 | $348,950 | $348,950 | $96.33 | | |
| CWWGEN | CITY OF WW 631 | 1.6100204973 | $348,950 | $348,950 | $561.82 | | |
| CWWRFD | CITY OF WALLA WALLA REFUND 631 | 0.0000000000 | $348,950 | $348,950 | $0.00 | | |
| | Total Tax Rate: | 8.7973694689 | | | | | |
| | | | | Taxes w/Current Exemptions: | $3,069.85 | | |
| | | | | Taxes w/o Exemptions: | $3,069.85 | | |
Improvement / Building
| Improvement #1: | RESIDENTIAL | State Code: | 11 | 1156.0 sqft | Value: | $296,450 |
| Exterior Wall: | STUCCO | Heating/Cooling: | WARM & COOLED AIR | | Number of Bathrooms: | 2.5 | Number of Bedrooms: | 3 | | Plumbing: | 13 | Roof Covering: | COMP SHINGLE |
|
| | Type | Description | Class CD | Sub Class CD | Year Built | Area |
| | MA | Main Area | 1 | 35 | 1952 | 1156.0 |
| | SI1 | SITE IMPROVEMENT | 1 | 35 | 0 | 1.5 |
| | BASE | BASEMENT | 1 | 35 | 1952 | 1156.0 |
| | BPF | BASEMENT -PARTITIONED FINISH | 1 | 35 | 1952 | 1156.0 |
| | S1F | Single One Story Fireplace | 1 | 35 | 1952 | 1.0 |
| | OPS | OPEN PORCH W/STEPS | 1 | 35 | 1952 | 20.0 |
| | DTG | Detached Garage | 1 | 35 | 1952 | 240.0 |
Sketch
Property Image
Land
| 1 | RES 1 | Converted: Residential | 0.1928 | 8400.00 | 0.00 | 0.00 | 1.00 | $52,500 | $0 |
Roll Value History
| 2026 | N/A | N/A | N/A | N/A | N/A |
| 2025 | $318,080 | $84,000 | $0 | $402,080 | $402,080 |
| 2024 | $265,070 | $84,000 | $0 | $349,070 | $349,070 |
| 2023 | $296,450 | $52,500 | $0 | $348,950 | $348,950 |
| 2022 | $282,330 | $52,500 | $0 | $334,830 | $334,830 |
| 2021 | $235,280 | $52,500 | $0 | $287,780 | $287,780 |
| 2020 | $188,220 | $52,500 | $0 | $240,720 | $240,720 |
| 2019 | $188,220 | $52,500 | $0 | $240,720 | $240,720 |
| 2018 | $188,220 | $52,500 | $0 | $240,720 | $240,720 |
| 2017 | $184,810 | $33,600 | $0 | $218,410 | $218,410 |
| 2016 | $184,810 | $33,600 | $0 | $218,410 | $218,410 |
| 2015 | $99,650 | $33,600 | $0 | $133,250 | $133,250 |
| 2014 | $94,900 | $33,600 | $0 | $128,500 | $128,500 |
| 2013 | $94,900 | $33,600 | $0 | $128,500 | $128,500 |
| 2012 | $101,100 | $33,600 | $0 | $0 | $0 |
| 2011 | $101,100 | $33,600 | $0 | $0 | $0 |
| 2010 | $94,700 | $33,600 | $0 | $0 | $0 |
| 2009 | $109,000 | $33,600 | $0 | $0 | $0 |
| 2008 | $76,100 | $33,600 | $0 | $0 | $0 |
| 2007 | $76,100 | $33,600 | $0 | $0 | $0 |
Deed and Sales History
| 1 | 11/10/2015 | SWD | STATUTORY WARRANTY DEED | BYERLEY JANET L | KITAMURA BRIAN T & KIRSTEN L | | | $227,000.00 | 129170 | 2015-09806 |
| 2 | 05/28/2008 | WARRANTY D | WARRANTY DEED | FEDERAL NATIONAL MORTGAGE ASSO | BYERLEY, JANET L | | | $157,000.00 | 115087 | 2008-05360 |
| 3 | 02/15/2008 | WARRANTY D | WARRANTY DEED | FULLEN, BRIAN & ERIN | MORTGAGE ELECTRONIC REGISTRATI | | | | 114527 | 2008-01402 |
| 4 | 02/15/2008 | WARRANTY D | WARRANTY DEED | MORTGAGE ELECTRONIC REGISTRATI | FEDERAL NATIONAL MORTGAGE ASSO | | | | 114528 | 2008-01403 |
| 5 | 10/05/2006 | WARRANTY D | WARRANTY DEED | HAWKINS, LORENA M | FULLEN, BRIAN & ERIN | | | $156,150.00 | 111395 | 2006-12049 |
| 6 | 04/15/2003 | WARRANTY D | WARRANTY DEED | DERRICK, MICHAEL D | HAWKINS, LORENA M | | | $99,000.00 | 101839 | 2003-05325 |
| 7 | 10/29/2002 | WARRANTY D | WARRANTY DEED | DERRICK, FRANCES | DERRICK, MICHAEL D | | | | 0 | 02-4--00048 |
| 8 | 01/01/1952 | WARRANTY D | WARRANTY DEED | | | | | $0.00 | 0 | 2580-351691 |
Payout Agreement
| No payout information available.. |