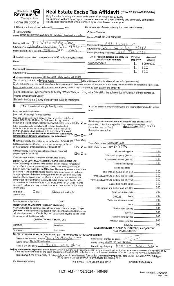
Property
Account |
| Property ID: | 18661 | Abbreviated Legal Description: | BRYANTS LOT 16 BLK 6 |
| Parcel Number: | 360728530616 | Agent Code: | |
| Type: | Real | | |
| Tax Area: | 1 - OL-140-F | Land Use Code | 11 |
| Open Space: | N | DFL | N |
| Historic Property: | N | Remodel Property: | N |
| Multi-Family Redevelopment: | N | | |
| Township: | 7 | Section: | 28 |
| Range: | 36 |
Location |
| Address: | 643 LOCUST ST WA 99362 | Mapsco: | |
| Neighborhood: | A Res | Map ID: | |
| Neighborhood CD: | 613011 |
Owner |
| Name: | HARTZHEIM DANIEL G & JANA C | Owner ID: | 45397 |
| Mailing Address: | 1717 WALLA WALLA AVE WALLA WALLA, WA 99362 | % Ownership: | 100.0000000000% |
| | | Exemptions: | |
Taxes and Assessment Details
Values
| (+) Improvement Homesite Value: | + | $0 | |
| (+) Improvement Non-Homesite Value: | + | $180,880 | |
| (+) Land Homesite Value: | + | $0 | |
| (+) Land Non-Homesite Value: | + | $70,000 | |
| (+) Curr Use (HS): | + | $0 | $0 |
| (+) Curr Use (NHS): | + | $0 | $0 |
| | | -------------------------- | |
| (=) Market Value: | = | $250,880 | |
| (–) Productivity Loss: | – | $0 | |
| | | -------------------------- | |
| (=) Subtotal: | = | $250,880 | |
| (+) Senior Appraised Value: | + | $0 | |
| (+) Non-Senior Appraised Value: | + | $250,880 | |
| | | -------------------------- | |
| (=) Total Appraised Value: | = | $250,880 | |
| (–) Senior Exemption Loss: | – | $0 | |
| (–) Exemption Loss: | – | $0 | |
| | | -------------------------- | |
| (=) Taxable Value: | = | $250,880 | |
Taxing Jurisdiction
| Owner: | HARTZHEIM DANIEL G & JANA C | | |
| % Ownership: | 100.0000000000% | | |
| Total Value: | $250,880 | | |
| Tax Area: | 1 - OL-140-F |
| CERFD | CURRENT EXPENSE REFUND 010 | 0.0000000000 | $250,880 | $250,880 | $0.00 | | |
| CURREXP | CURRENT EXPENSE 010 | 1.0175366760 | $250,880 | $250,880 | $255.28 | | |
| HUMNSERV | HUMAN SERVICES 119 | 0.0250000000 | $250,880 | $250,880 | $6.27 | | |
| SLDREL | SOLDIERS RELIEF 121 | 0.0155990005 | $250,880 | $250,880 | $3.91 | | |
| EMERGSER | EMS 147 | 0.3792580840 | $250,880 | $250,880 | $95.15 | | |
| EMSRFD | EMS REFUND 147 | 0.0000000000 | $250,880 | $250,880 | $0.00 | | |
| PORTRFD | PORT REFUND 640 | 0.0000000000 | $250,880 | $250,880 | $0.00 | | |
| PORTWWGEN | PORT OF WW 640 | 0.2460186015 | $250,880 | $250,880 | $61.72 | | |
| SD140BOND | SD #140 BOND 764 | 0.8342371393 | $250,880 | $250,880 | $209.29 | | |
| SD140GEN | SD #140 GENERAL 760 | 2.0646500647 | $250,880 | $250,880 | $517.98 | | |
| ST2 | STATE SCHOOL PART 2 600 | 0.8131451643 | $250,880 | $250,880 | $204.00 | | |
| STATESCHL | STATE SCHOOL 600 | 1.5158548041 | $250,880 | $250,880 | $380.30 | | |
| STREFUND | STATE REFUND LEVY 603 | 0.0000000000 | $250,880 | $250,880 | $0.00 | | |
| CWWBOND | C OF WW BOND 643 | 0.2760494372 | $250,880 | $250,880 | $69.26 | | |
| CWWGEN | CITY OF WW 631 | 1.6100204973 | $250,880 | $250,880 | $403.92 | | |
| CWWRFD | CITY OF WALLA WALLA REFUND 631 | 0.0000000000 | $250,880 | $250,880 | $0.00 | | |
| | Total Tax Rate: | 8.7973694689 | | | | | |
| | | | | Taxes w/Current Exemptions: | $2,207.08 | | |
| | | | | Taxes w/o Exemptions: | $2,207.08 | | |
Improvement / Building
| Improvement #1: | RESIDENTIAL | State Code: | 11 | 1478.0 sqft | Value: | $180,880 |
| Exterior Wall: | SHINGLE | Heating/Cooling: | WARM & COOLED AIR | | Number of Bathrooms: | 2 | Number of Bedrooms: | 3 | | Plumbing: | 9 | Roof Covering: | COMP SHINGLE |
|
| | Type | Description | Class CD | Sub Class CD | Year Built | Area |
| | MA | Main Area | 1 | 30 | 1900 | 1478.0 |
| | SI1 | SITE IMPROVEMENT | 1 | 30 | 1900 | 1.0 |
| | RCD | WOOD DECK W/ROOF, CEILED | 1 | 30 | 1900 | 66.0 |
| | CPC | COVERED CARPORT/PATIO | 1 | 30 | 1900 | 144.0 |
| | DTG | Detached Garage | 1 | 30 | 1900 | 400.0 |
Sketch
Property Image
Land
| 1 | RES 1 | Converted: Residential | 0.1377 | 6000.00 | 0.00 | 0.00 | 1.00 | $70,000 | $0 |
Roll Value History
| 2026 | N/A | N/A | N/A | N/A | N/A |
| 2025 | $200,510 | $66,000 | $0 | $266,510 | $266,510 |
| 2024 | $189,930 | $70,000 | $0 | $259,930 | $259,930 |
| 2023 | $180,880 | $70,000 | $0 | $250,880 | $250,880 |
| 2022 | $180,880 | $55,000 | $0 | $235,880 | $235,880 |
| 2021 | $150,740 | $55,000 | $0 | $205,740 | $205,740 |
| 2020 | $115,950 | $55,000 | $0 | $170,950 | $170,950 |
| 2019 | $115,950 | $55,000 | $0 | $170,950 | $170,950 |
| 2018 | $127,300 | $36,000 | $0 | $163,300 | $163,300 |
| 2017 | $106,080 | $36,000 | $0 | $142,080 | $142,080 |
| 2016 | $53,040 | $36,000 | $0 | $89,040 | $89,040 |
| 2015 | $53,040 | $36,000 | $0 | $89,040 | $89,040 |
| 2014 | $44,200 | $36,000 | $0 | $80,200 | $80,200 |
| 2013 | $44,200 | $36,000 | $0 | $80,200 | $80,200 |
| 2012 | $37,700 | $36,000 | $0 | $0 | $0 |
| 2011 | $37,700 | $36,000 | $0 | $0 | $0 |
| 2010 | $37,700 | $36,000 | $0 | $0 | $0 |
| 2009 | $76,200 | $36,000 | $0 | $0 | $0 |
| 2008 | $76,200 | $36,000 | $0 | $0 | $0 |
| 2007 | $59,400 | $18,000 | $0 | $0 | $0 |
Deed and Sales History
| 1 | 11/08/2024 | GIFT | GIFT DEED | HARTZHEIM DANIEL G & JANA C | HARTZHEIM JOSEPH IAN COLE | | | | 148498 | 2024-06536 |
| 2 | 02/06/2008 | WARRANTY D | WARRANTY DEED | FULLER, RICHARD R & LOIS M | HARTZHEIM, DANIEL G & JANA C | | | $82,500.00 | 114481 | 2008-01129 |
| 3 | 04/29/1994 | WARRANTY D | WARRANTY DEED | | | | | $45,000.00 | 81524 | 2199-405095 |
Payout Agreement
| No payout information available.. |