Property
Account |
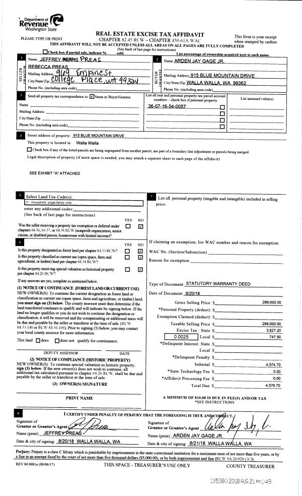
| Property ID: | 18652 | Abbreviated Legal Description: | MELODY PARK TERRACE LOT 57, LOT 58 LESS TAX 36 |
| Parcel Number: | 360716540057 | Agent Code: | |
| Type: | Real | | |
| Tax Area: | 5 - OL-140 | Land Use Code | 11 |
| Open Space: | N | DFL | N |
| Historic Property: | N | Remodel Property: | N |
| Multi-Family Redevelopment: | N | | |
| Township: | 7 | Section: | 16 |
| Range: | 36 |
Location |
| Address: | 915 BLUE MOUNTAIN DR WA 99362 | Mapsco: | |
| Neighborhood: | A-SFR | Map ID: | |
| Neighborhood CD: | 313011 |
Owner |
| Name: | GAGE ARDEN JAY JR | Owner ID: | 63795 |
| Mailing Address: | 915 BLUE MOUNTAIN DR WALLA WALLA, WA 99362 | % Ownership: | 100.0000000000% |
| | | Exemptions: | |
Taxes and Assessment Details
Property Tax Information as of
02/21/2026
Click on "Statement Details" to expand or collapse a tax statement.
* Please enter a valid date ** Please enter a valid date *
Statement Details |
| | TOTAL: | $0.00 | $0.00 | $0.00 | $0.00 | $0.00 | $0.00 |
|
| | $0.00 | $0.00 | $0.00 | $0.00 | $0.00 | $0.00 |
Values
| (+) Improvement Homesite Value: | + | $0 | |
| (+) Improvement Non-Homesite Value: | + | $273,630 | |
| (+) Land Homesite Value: | + | $0 | |
| (+) Land Non-Homesite Value: | + | $90,000 | |
| (+) Curr Use (HS): | + | $0 | $0 |
| (+) Curr Use (NHS): | + | $0 | $0 |
| | | -------------------------- | |
| (=) Market Value: | = | $363,630 | |
| (–) Productivity Loss: | – | $0 | |
| | | -------------------------- | |
| (=) Subtotal: | = | $363,630 | |
| (+) Senior Appraised Value: | + | $0 | |
| (+) Non-Senior Appraised Value: | + | $363,630 | |
| | | -------------------------- | |
| (=) Total Appraised Value: | = | $363,630 | |
| (–) Senior Exemption Loss: | – | $0 | |
| (–) Exemption Loss: | – | $0 | |
| | | -------------------------- | |
| (=) Taxable Value: | = | $363,630 | |
Taxing Jurisdiction
| Owner: | GAGE ARDEN JAY JR | | |
| % Ownership: | 100.0000000000% | | |
| Total Value: | $363,630 | | |
| Tax Area: | 5 - OL-140 |
| CERFD | CURRENT EXPENSE REFUND 010 | 0.0000000000 | $363,630 | $363,630 | $0.00 | | |
| CURREXP | CURRENT EXPENSE 010 | 1.0175366760 | $363,630 | $363,630 | $370.01 | | |
| HUMNSERV | HUMAN SERVICES 119 | 0.0250000000 | $363,630 | $363,630 | $9.09 | | |
| SLDREL | SOLDIERS RELIEF 121 | 0.0155990005 | $363,630 | $363,630 | $5.67 | | |
| EMERGSER | EMS 147 | 0.3792580840 | $363,630 | $363,630 | $137.91 | | |
| EMSRFD | EMS REFUND 147 | 0.0000000000 | $363,630 | $363,630 | $0.00 | | |
| PORTRFD | PORT REFUND 640 | 0.0000000000 | $363,630 | $363,630 | $0.00 | | |
| PORTWWGEN | PORT OF WW 640 | 0.2460186015 | $363,630 | $363,630 | $89.46 | | |
| SD140BOND | SD #140 BOND 764 | 0.8342371393 | $363,630 | $363,630 | $303.35 | | |
| SD140GEN | SD #140 GENERAL 760 | 2.0646500647 | $363,630 | $363,630 | $750.77 | | |
| ST2 | STATE SCHOOL PART 2 600 | 0.8131451643 | $363,630 | $363,630 | $295.68 | | |
| STATESCHL | STATE SCHOOL 600 | 1.5158548041 | $363,630 | $363,630 | $551.21 | | |
| STREFUND | STATE REFUND LEVY 603 | 0.0000000000 | $363,630 | $363,630 | $0.00 | | |
| CWWBOND | C OF WW BOND 643 | 0.2760494372 | $363,630 | $363,630 | $100.38 | | |
| CWWGEN | CITY OF WW 631 | 1.6100204973 | $363,630 | $363,630 | $585.45 | | |
| CWWRFD | CITY OF WALLA WALLA REFUND 631 | 0.0000000000 | $363,630 | $363,630 | $0.00 | | |
| | Total Tax Rate: | 8.7973694689 | | | | | |
| | | | | Taxes w/Current Exemptions: | $3,198.98 | | |
| | | | | Taxes w/o Exemptions: | $3,198.98 | | |
Improvement / Building
| Improvement #1: | RESIDENTIAL | State Code: | 11 | 1160.0 sqft | Value: | $273,630 |
| Exterior Wall: | PLYWOOD | Heating/Cooling: | WARM & COOLED AIR | | Number of Bathrooms: | 1.5 | Number of Bedrooms: | 3 | | Plumbing: | 8 | Roof Covering: | COMP SHINGLE |
|
| | Type | Description | Class CD | Sub Class CD | Year Built | Area |
| | MA | Main Area | 1 | 35 | 1967 | 1160.0 |
| | SI1 | SITE IMPROVEMENT | 1 | 35 | 1967 | 1.5 |
| | BASE | BASEMENT | 1 | 35 | 1967 | 1160.0 |
| | BPF | BASEMENT -PARTITIONED FINISH | 1 | 35 | 1967 | 805.0 |
| | ATG | Attached Garage | 1 | 35 | 1967 | 400.0 |
| | UTST | Utility Storage Shed | 1 | 30 | 1967 | 120.0 |
| | RPC | OPEN PORCH W/ROOF , CEILED | 1 | 35 | 1967 | 24.0 |
Sketch
Property Image
Land
| 1 | RES 1 | Converted: Residential | 0.2146 | 9350.00 | 0.00 | 0.00 | 1.00 | $90,000 | $0 |
Roll Value History
| 2026 | N/A | N/A | N/A | N/A | N/A |
| 2025 | $273,630 | $90,000 | $0 | $363,630 | $363,630 |
| 2024 | $273,630 | $90,000 | $0 | $363,630 | $363,630 |
| 2023 | $273,630 | $90,000 | $0 | $363,630 | $363,630 |
| 2022 | $273,630 | $90,000 | $0 | $363,630 | $363,630 |
| 2021 | $270,430 | $55,000 | $0 | $325,430 | $325,430 |
| 2020 | $225,360 | $55,000 | $0 | $280,360 | $280,360 |
| 2019 | $225,360 | $55,000 | $0 | $280,360 | $280,360 |
| 2018 | $187,800 | $55,000 | $0 | $242,800 | $242,800 |
| 2017 | $187,800 | $55,000 | $0 | $242,800 | $242,800 |
| 2016 | $170,730 | $55,000 | $0 | $225,730 | $225,730 |
| 2015 | $129,500 | $55,000 | $0 | $184,500 | $184,500 |
| 2014 | $129,500 | $55,000 | $0 | $184,500 | $184,500 |
| 2013 | $129,500 | $55,000 | $0 | $184,500 | $184,500 |
| 2012 | $139,200 | $55,000 | $0 | $0 | $0 |
| 2011 | $139,200 | $55,000 | $0 | $0 | $0 |
| 2010 | $146,800 | $40,000 | $0 | $0 | $0 |
| 2009 | $167,600 | $40,000 | $0 | $0 | $0 |
| 2008 | $119,700 | $40,000 | $0 | $0 | $0 |
| 2007 | $119,700 | $40,000 | $0 | $0 | $0 |
Deed and Sales History
| 1 | 08/21/2018 | SWD | STATUTORY WARRANTY DEED | PREAS JEFFREY & REBECCA | GAGE ARDEN JAY JR | | | $299,000.00 | 135380 | 2018-06900 |
| 2 | 12/24/2014 | SWD | STATUTORY WARRANTY DEED | WILMETH PROPERTY VENTURES LLC | PREAS JEFFREY & REBECCA | | | $239,000.00 | 127178 | 2014-09377 |
| 3 | 02/06/2008 | WARRANTY D | WARRANTY DEED | OLDS, CLIFFORD J & BONNIE | WILMETH PROPERTY VENTURES, LLC | | | $223,500.00 | 114483 | 2008-01135 |
| 4 | 05/05/1970 | QCD | QUIT CLAIM DEED | | | | | $20,315.00 | 0 | 1859-007492 |
Payout Agreement
| No payout information available.. |