Property
Account |
| Property ID: | 18636 | Abbreviated Legal Description: | CAINS LOT 8 BLK 10 |
| Parcel Number: | 360720571008 | Agent Code: | |
| Type: | Real | | |
| Tax Area: | 1 - OL-140-F | Land Use Code | 11 |
| Open Space: | N | DFL | N |
| Historic Property: | N | Remodel Property: | N |
| Multi-Family Redevelopment: | N | | |
| Township: | 7 | Section: | 20 |
| Range: | 36 |
Location |
| Address: | 415 E SUMACH ST WA 99362 | Mapsco: | |
| Neighborhood: | F SFR | Map ID: | |
| Neighborhood CD: | 512011 |
Owner |
| Name: | WHETSTONE PAUL | Owner ID: | 54879 |
| Mailing Address: | ARIELLE M COOLEY 415 E SUMACH ST WALLA WALLA, WA 99362 | % Ownership: | 100.0000000000% |
| | | Exemptions: | |
Taxes and Assessment Details
Property Tax Information as of
02/21/2026
Click on "Statement Details" to expand or collapse a tax statement.
* Please enter a valid date ** Please enter a valid date *
Statement Details |
| | TOTAL: | $0.00 | $0.00 | $0.00 | $0.00 | $0.00 | $0.00 |
|
| | $0.00 | $0.00 | $0.00 | $0.00 | $0.00 | $0.00 |
Values
| (+) Improvement Homesite Value: | + | $0 | |
| (+) Improvement Non-Homesite Value: | + | $361,280 | |
| (+) Land Homesite Value: | + | $0 | |
| (+) Land Non-Homesite Value: | + | $37,800 | |
| (+) Curr Use (HS): | + | $0 | $0 |
| (+) Curr Use (NHS): | + | $0 | $0 |
| | | -------------------------- | |
| (=) Market Value: | = | $399,080 | |
| (–) Productivity Loss: | – | $0 | |
| | | -------------------------- | |
| (=) Subtotal: | = | $399,080 | |
| (+) Senior Appraised Value: | + | $0 | |
| (+) Non-Senior Appraised Value: | + | $399,080 | |
| | | -------------------------- | |
| (=) Total Appraised Value: | = | $399,080 | |
| (–) Senior Exemption Loss: | – | $0 | |
| (–) Exemption Loss: | – | $0 | |
| | | -------------------------- | |
| (=) Taxable Value: | = | $399,080 | |
Taxing Jurisdiction
| Owner: | WHETSTONE PAUL | | |
| % Ownership: | 100.0000000000% | | |
| Total Value: | $399,080 | | |
| Tax Area: | 1 - OL-140-F |
| CERFD | CURRENT EXPENSE REFUND 010 | 0.0000000000 | $399,080 | $399,080 | $0.00 | | |
| CURREXP | CURRENT EXPENSE 010 | 1.0175366760 | $399,080 | $399,080 | $406.08 | | |
| HUMNSERV | HUMAN SERVICES 119 | 0.0250000000 | $399,080 | $399,080 | $9.98 | | |
| SLDREL | SOLDIERS RELIEF 121 | 0.0155990005 | $399,080 | $399,080 | $6.23 | | |
| EMERGSER | EMS 147 | 0.3792580840 | $399,080 | $399,080 | $151.35 | | |
| EMSRFD | EMS REFUND 147 | 0.0000000000 | $399,080 | $399,080 | $0.00 | | |
| PORTRFD | PORT REFUND 640 | 0.0000000000 | $399,080 | $399,080 | $0.00 | | |
| PORTWWGEN | PORT OF WW 640 | 0.2460186015 | $399,080 | $399,080 | $98.18 | | |
| SD140BOND | SD #140 BOND 764 | 0.8342371393 | $399,080 | $399,080 | $332.93 | | |
| SD140GEN | SD #140 GENERAL 760 | 2.0646500647 | $399,080 | $399,080 | $823.96 | | |
| ST2 | STATE SCHOOL PART 2 600 | 0.8131451643 | $399,080 | $399,080 | $324.51 | | |
| STATESCHL | STATE SCHOOL 600 | 1.5158548041 | $399,080 | $399,080 | $604.95 | | |
| STREFUND | STATE REFUND LEVY 603 | 0.0000000000 | $399,080 | $399,080 | $0.00 | | |
| CWWBOND | C OF WW BOND 643 | 0.2760494372 | $399,080 | $399,080 | $110.17 | | |
| CWWGEN | CITY OF WW 631 | 1.6100204973 | $399,080 | $399,080 | $642.53 | | |
| CWWRFD | CITY OF WALLA WALLA REFUND 631 | 0.0000000000 | $399,080 | $399,080 | $0.00 | | |
| | Total Tax Rate: | 8.7973694689 | | | | | |
| | | | | Taxes w/Current Exemptions: | $3,510.87 | | |
| | | | | Taxes w/o Exemptions: | $3,510.87 | | |
Improvement / Building
| Improvement #1: | RESIDENTIAL | State Code: | 11 | 2120.0 sqft | Value: | $361,280 |
| Exterior Wall: | VINYL | Heating/Cooling: | WARM & COOLED AIR | | Number of Bathrooms: | 3 | Number of Bedrooms: | 4 | | Plumbing: | 12 | Roof Covering: | COMP SHINGLE |
|
| | Type | Description | Class CD | Sub Class CD | Year Built | Area |
| | MA | Main Area | 4 | 40 | 1906 | 2120.0 |
| | GFP | GAS FIREPLACE | 4 | 40 | 2007 | 1.0 |
| | SI1 | SITE IMPROVEMENT | 4 | 40 | 0 | 3.5 |
| | BASE | BASEMENT | 4 | 40 | 1906 | 420.0 |
| | DTG | Detached Garage | 4 | 40 | 1906 | 336.0 |
| | RPO | OPEN PORCH W/ROOF | 4 | 40 | 1906 | 240.0 |
| | WOD | Wood Deck | 4 | 40 | 1906 | 260.0 |
| | UPFL | Upper Floor (included in main area) | 4 | 40 | 1906 | 936.0 |
Sketch
Property Image
Land
| 1 | RES 1 | Converted: Residential | 0.1653 | 7200.00 | 0.00 | 0.00 | 1.00 | $37,800 | $0 |
Roll Value History
| 2026 | N/A | N/A | N/A | N/A | N/A |
| 2025 | $342,150 | $64,800 | $0 | $406,950 | $406,950 |
| 2024 | $342,150 | $64,800 | $0 | $406,950 | $406,950 |
| 2023 | $361,280 | $37,800 | $0 | $399,080 | $399,080 |
| 2022 | $314,160 | $37,800 | $0 | $351,960 | $351,960 |
| 2021 | $285,600 | $37,800 | $0 | $323,400 | $323,400 |
| 2020 | $285,600 | $37,800 | $0 | $323,400 | $323,400 |
| 2019 | $285,600 | $37,800 | $0 | $323,400 | $323,400 |
| 2018 | $285,600 | $37,800 | $0 | $323,400 | $323,400 |
| 2017 | $285,600 | $21,600 | $0 | $307,200 | $307,200 |
| 2016 | $285,600 | $21,600 | $0 | $307,200 | $307,200 |
| 2015 | $272,000 | $21,600 | $0 | $293,600 | $293,600 |
| 2014 | $272,000 | $21,600 | $0 | $293,600 | $293,600 |
| 2013 | $286,300 | $21,600 | $0 | $307,900 | $307,900 |
| 2012 | $286,300 | $21,600 | $0 | $0 | $0 |
| 2011 | $286,300 | $21,600 | $0 | $0 | $0 |
| 2010 | $286,300 | $21,600 | $0 | $0 | $0 |
| 2009 | $320,500 | $21,600 | $0 | $0 | $0 |
| 2008 | $133,900 | $21,600 | $0 | $0 | $0 |
| 2007 | $88,900 | $21,600 | $0 | $0 | $0 |
Deed and Sales History
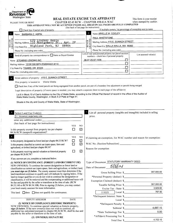
| 1 | 05/13/2014 | SWD | STATUTORY WARRANTY DEED | ASPIN BARBARA C | WHETSTONE PAUL | | | $307,000.00 | 125875 | 2014-03242 |
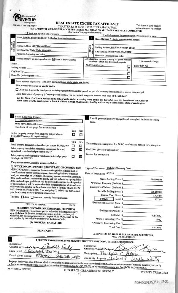
| 2 | 09/11/2013 | WARRANTY D | WARRANTY DEED | SEALEY, JOHN R & LYNN B | ASPIN, BARBARA C | | | $295,000.00 | 124640 | 2013-09358 |
| 3 | 01/22/2008 | WARRANTY D | WARRANTY DEED | THOMPSON, DAVID & LISA | SEALEY, JOHN R & LYNN B | | | $365,000.00 | 114406 | 2008-00589 |
| 4 | 07/12/2006 | WARRANTY D | WARRANTY DEED | PHILLIPS, ROGER & TAMMY | THOMPSON, DAVID | | | $125,000.00 | 110699 | 2006-08157 |
| 5 | 01/09/1998 | WARRANTY D | WARRANTY DEED | | | | | $68,000.00 | 89686 | 2619-800222 |
Payout Agreement
| No payout information available.. |