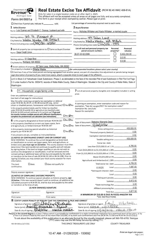
Property
Account |
| Property ID: | 18634 | Abbreviated Legal Description: | YELLOWHAWK CREEK SUBD PHASE 2 LOT 6 BLK 3 |
| Parcel Number: | 360722620306 | Agent Code: | |
| Type: | Real | | |
| Tax Area: | 1 - OL-140-F | Land Use Code | 11 |
| Open Space: | N | DFL | N |
| Historic Property: | N | Remodel Property: | N |
| Multi-Family Redevelopment: | N | | |
| Township: | 7 | Section: | 22 |
| Range: | 36 |
Location |
| Address: | 49 TALON LOOP WA 99362 | Mapsco: | |
| Neighborhood: | A-Superior SFR | Map ID: | |
| Neighborhood CD: | 413211 |
Owner |
| Name: | OCANAZ LUIS & ELIZABETH C | Owner ID: | 64198 |
| Mailing Address: | 49 TALON LOOP WALLA WALLA, WA 99362 | % Ownership: | 100.0000000000% |
| | | Exemptions: | |
Taxes and Assessment Details
Values
| (+) Improvement Homesite Value: | + | $0 | |
| (+) Improvement Non-Homesite Value: | + | $354,500 | |
| (+) Land Homesite Value: | + | $0 | |
| (+) Land Non-Homesite Value: | + | $80,000 | |
| (+) Curr Use (HS): | + | $0 | $0 |
| (+) Curr Use (NHS): | + | $0 | $0 |
| | | -------------------------- | |
| (=) Market Value: | = | $434,500 | |
| (–) Productivity Loss: | – | $0 | |
| | | -------------------------- | |
| (=) Subtotal: | = | $434,500 | |
| (+) Senior Appraised Value: | + | $0 | |
| (+) Non-Senior Appraised Value: | + | $434,500 | |
| | | -------------------------- | |
| (=) Total Appraised Value: | = | $434,500 | |
| (–) Senior Exemption Loss: | – | $0 | |
| (–) Exemption Loss: | – | $0 | |
| | | -------------------------- | |
| (=) Taxable Value: | = | $434,500 | |
Taxing Jurisdiction
| Owner: | OCANAZ LUIS & ELIZABETH C | | |
| % Ownership: | 100.0000000000% | | |
| Total Value: | $434,500 | | |
| Tax Area: | 1 - OL-140-F |
| CERFD | CURRENT EXPENSE REFUND 010 | 0.0000000000 | $434,500 | $434,500 | $0.00 | | |
| CURREXP | CURRENT EXPENSE 010 | 1.0175366760 | $434,500 | $434,500 | $442.12 | | |
| HUMNSERV | HUMAN SERVICES 119 | 0.0250000000 | $434,500 | $434,500 | $10.86 | | |
| SLDREL | SOLDIERS RELIEF 121 | 0.0155990005 | $434,500 | $434,500 | $6.78 | | |
| EMERGSER | EMS 147 | 0.3792580840 | $434,500 | $434,500 | $164.79 | | |
| EMSRFD | EMS REFUND 147 | 0.0000000000 | $434,500 | $434,500 | $0.00 | | |
| PORTRFD | PORT REFUND 640 | 0.0000000000 | $434,500 | $434,500 | $0.00 | | |
| PORTWWGEN | PORT OF WW 640 | 0.2460186015 | $434,500 | $434,500 | $106.90 | | |
| SD140BOND | SD #140 BOND 764 | 0.8342371393 | $434,500 | $434,500 | $362.48 | | |
| SD140GEN | SD #140 GENERAL 760 | 2.0646500647 | $434,500 | $434,500 | $897.09 | | |
| ST2 | STATE SCHOOL PART 2 600 | 0.8131451643 | $434,500 | $434,500 | $353.31 | | |
| STATESCHL | STATE SCHOOL 600 | 1.5158548041 | $434,500 | $434,500 | $658.64 | | |
| STREFUND | STATE REFUND LEVY 603 | 0.0000000000 | $434,500 | $434,500 | $0.00 | | |
| CWWBOND | C OF WW BOND 643 | 0.2760494372 | $434,500 | $434,500 | $119.94 | | |
| CWWGEN | CITY OF WW 631 | 1.6100204973 | $434,500 | $434,500 | $699.55 | | |
| CWWRFD | CITY OF WALLA WALLA REFUND 631 | 0.0000000000 | $434,500 | $434,500 | $0.00 | | |
| | Total Tax Rate: | 8.7973694689 | | | | | |
| | | | | Taxes w/Current Exemptions: | $3,822.46 | | |
| | | | | Taxes w/o Exemptions: | $3,822.46 | | |
Improvement / Building
| Improvement #1: | RESIDENTIAL | State Code: | 11 | 1972.0 sqft | Value: | $354,500 |
| Exterior Wall: | PLYWOOD | Heating/Cooling: | WARM & COOLED AIR | | Number of Bathrooms: | 3 | Number of Bedrooms: | 3 | | Plumbing: | 12 | Roof Covering: | COMP SHINGLE |
|
| | Type | Description | Class CD | Sub Class CD | Year Built | Area |
| | MA | Main Area | 2 | 35 | 2000 | 1972.0 |
| | SI1 | SITE IMPROVEMENT | 2 | 35 | 0 | 4.0 |
| | UPFL | Upper Floor (included in main area) | 2 | 35 | 2000 | 840.0 |
| | ATG | Attached Garage | 2 | 35 | 2000 | 440.0 |
| | RPO | OPEN PORCH W/ROOF | 2 | 35 | 2000 | 228.0 |
Sketch
Property Image
Land
| 1 | RES 1 | Converted: Residential | 0.1926 | 8390.00 | 0.00 | 0.00 | 1.00 | $80,000 | $0 |
Roll Value History
| 2026 | N/A | N/A | N/A | N/A | N/A |
| 2025 | $372,230 | $80,000 | $0 | $452,230 | $452,230 |
| 2024 | $354,500 | $80,000 | $0 | $434,500 | $434,500 |
| 2023 | $354,500 | $80,000 | $0 | $434,500 | $434,500 |
| 2022 | $360,960 | $50,000 | $0 | $410,960 | $410,960 |
| 2021 | $273,450 | $50,000 | $0 | $323,450 | $323,450 |
| 2020 | $224,140 | $50,000 | $0 | $274,140 | $274,140 |
| 2019 | $224,140 | $50,000 | $0 | $274,140 | $274,140 |
| 2018 | $203,760 | $50,000 | $0 | $253,760 | $253,760 |
| 2017 | $185,240 | $50,000 | $0 | $235,240 | $235,240 |
| 2016 | $185,240 | $40,000 | $0 | $225,240 | $225,240 |
| 2015 | $185,240 | $40,000 | $0 | $225,240 | $225,240 |
| 2014 | $168,400 | $40,000 | $0 | $208,400 | $208,400 |
| 2013 | $168,400 | $40,000 | $0 | $208,400 | $208,400 |
| 2012 | $168,400 | $40,000 | $0 | $0 | $0 |
| 2011 | $159,100 | $40,000 | $0 | $0 | $0 |
| 2010 | $141,000 | $40,000 | $0 | $0 | $0 |
| 2009 | $161,100 | $40,000 | $0 | $0 | $0 |
| 2008 | $161,100 | $40,000 | $0 | $0 | $0 |
| 2007 | $161,100 | $40,000 | $0 | $0 | $0 |
Deed and Sales History
| 1 | 01/28/2026 | SWD | STATUTORY WARRANTY DEED | OCANAZ LUIS & ELIZABETH C | WHITAKER NICHOLAS & KAYLA | | | $435,000.00 | 150692 | 2026-00535 |
| 2 | 11/02/2018 | SWD | STATUTORY WARRANTY DEED | GRAHAM PATRICK M & AMY E | OCANAZ LUIS & ELIZABETH C | | | $286,500.00 | 135874 | 2018-09145 |
| 3 | 01/11/2008 | WARRANTY D | WARRANTY DEED | VINYARD, RICK S & YVONNE | GRAHAM, PATRICK M & AMY E | | | $238,000.00 | 114373 | 2008-00303 |
| 4 | 10/23/2000 | WARRANTY D | WARRANTY DEED | | | | | $140,400.00 | 96045 | 3040-010117 |
Payout Agreement
| No payout information available.. |