Property
Account |
| Property ID: | 18631 | Abbreviated Legal Description: | SPRING TERRACE LOT 8 BLOCK 2 |
| Parcel Number: | 360734600208 | Agent Code: | |
| Type: | Real | | |
| Tax Area: | 101 - 140-4 | Land Use Code | 11 |
| Open Space: | N | DFL | N |
| Historic Property: | N | Remodel Property: | N |
| Multi-Family Redevelopment: | N | | |
| Township: | 7 | Section: | 34 |
| Range: | 36 |
Location |
| Address: | 1932 STILLWATER DR WA 99362 | Mapsco: | |
| Neighborhood: | VG Res Rural/City Inf | Map ID: | |
| Neighborhood CD: | 615012 |
Owner |
| Name: | SORENSEN MELVIN N & CYNTHIA M | Owner ID: | 64596 |
| Mailing Address: | 1932 STILLWATER DR WALLA WALLA, WA 99362 | % Ownership: | 100.0000000000% |
| | | Exemptions: | |
Taxes and Assessment Details
Values
| (+) Improvement Homesite Value: | + | $0 | |
| (+) Improvement Non-Homesite Value: | + | $595,050 | |
| (+) Land Homesite Value: | + | $0 | |
| (+) Land Non-Homesite Value: | + | $150,000 | |
| (+) Curr Use (HS): | + | $0 | $0 |
| (+) Curr Use (NHS): | + | $0 | $0 |
| | | -------------------------- | |
| (=) Market Value: | = | $745,050 | |
| (–) Productivity Loss: | – | $0 | |
| | | -------------------------- | |
| (=) Subtotal: | = | $745,050 | |
| (+) Senior Appraised Value: | + | $0 | |
| (+) Non-Senior Appraised Value: | + | $745,050 | |
| | | -------------------------- | |
| (=) Total Appraised Value: | = | $745,050 | |
| (–) Senior Exemption Loss: | – | $0 | |
| (–) Exemption Loss: | – | $0 | |
| | | -------------------------- | |
| (=) Taxable Value: | = | $745,050 | |
Taxing Jurisdiction
| Owner: | SORENSEN MELVIN N & CYNTHIA M | | |
| % Ownership: | 100.0000000000% | | |
| Total Value: | $745,050 | | |
| Tax Area: | 101 - 140-4 |
| CERFD | CURRENT EXPENSE REFUND 010 | 0.0000000000 | $745,050 | $745,050 | $0.00 | | |
| CURREXP | CURRENT EXPENSE 010 | 1.0175366760 | $745,050 | $745,050 | $758.12 | | |
| HUMNSERV | HUMAN SERVICES 119 | 0.0250000000 | $745,050 | $745,050 | $18.63 | | |
| SLDREL | SOLDIERS RELIEF 121 | 0.0155990005 | $745,050 | $745,050 | $11.62 | | |
| EMERGSER | EMS 147 | 0.3792580840 | $745,050 | $745,050 | $282.57 | | |
| EMSRFD | EMS REFUND 147 | 0.0000000000 | $745,050 | $745,050 | $0.00 | | |
| FD4EXP | FD #4 EXPENSE 686 | 0.8836993059 | $745,050 | $745,050 | $658.40 | | |
| RLBRFD | RURAL LIBRARY REFUND 623 | 0.0000000000 | $745,050 | $745,050 | $0.00 | | |
| RURALLIB | RURAL LIBRARY 623 | 0.3710609029 | $745,050 | $745,050 | $276.46 | | |
| PORTRFD | PORT REFUND 640 | 0.0000000000 | $745,050 | $745,050 | $0.00 | | |
| PORTWWGEN | PORT OF WW 640 | 0.2460186015 | $745,050 | $745,050 | $183.30 | | |
| SD140BOND | SD #140 BOND 764 | 0.8342371393 | $745,050 | $745,050 | $621.55 | | |
| SD140GEN | SD #140 GENERAL 760 | 2.0646500647 | $745,050 | $745,050 | $1,538.27 | | |
| ST2 | STATE SCHOOL PART 2 600 | 0.8131451643 | $745,050 | $745,050 | $605.83 | | |
| STATESCHL | STATE SCHOOL 600 | 1.5158548041 | $745,050 | $745,050 | $1,129.39 | | |
| STREFUND | STATE REFUND LEVY 603 | 0.0000000000 | $745,050 | $745,050 | $0.00 | | |
| COROAD | COUNTY ROAD 115 | 1.6549953990 | $745,050 | $745,050 | $1,233.05 | | |
| CRPRD | COUNTY ROAD REFUND 115 | 0.0000000000 | $745,050 | $745,050 | $0.00 | | |
| | Total Tax Rate: | 9.8210551422 | | | | | |
| | | | | Taxes w/Current Exemptions: | $7,317.19 | | |
| | | | | Taxes w/o Exemptions: | $7,317.19 | | |
Improvement / Building
| Improvement #1: | RESIDENTIAL | State Code: | 11 | 3027.0 sqft | Value: | $595,050 |
| Exterior Wall: | STUCCO | Heating/Cooling: | WARM & COOLED AIR | | Number of Bathrooms: | 2.5 | Number of Bedrooms: | 4 | | Plumbing: | 13 | Roof Covering: | COMP SHINGLE |
|
| | Type | Description | Class CD | Sub Class CD | Year Built | Area |
| | MA | Main Area | 1 | 45 | 2007 | 3027.0 |
| | SI1 | SITE IMPROVEMENT | 1 | 45 | 2007 | 5.5 |
| | ATG | Attached Garage | 1 | 45 | 2007 | 834.0 |
| | PRC | PORCH W STEPS, ROOF,CEILED | 1 | 45 | 2007 | 133.0 |
| | PRC | PORCH W STEPS, ROOF,CEILED | 1 | 45 | 2007 | 162.0 |
| | GFP | GAS FIREPLACE | 1 | 45 | 2007 | 1.0 |
Sketch
Property Image
Land
| 1 | RES 1 | Converted: Residential | 0.2606 | 11352.00 | 0.00 | 0.00 | 1.00 | $150,000 | $0 |
Roll Value History
| 2026 | N/A | N/A | N/A | N/A | N/A |
| 2025 | $670,320 | $180,000 | $0 | $850,320 | $850,320 |
| 2024 | $654,550 | $150,000 | $0 | $804,550 | $804,550 |
| 2023 | $595,050 | $150,000 | $0 | $745,050 | $745,050 |
| 2022 | $540,950 | $120,000 | $0 | $660,950 | $660,950 |
| 2021 | $491,780 | $120,000 | $0 | $611,780 | $611,780 |
| 2020 | $427,630 | $120,000 | $0 | $547,630 | $547,630 |
| 2019 | $427,630 | $120,000 | $0 | $547,630 | $547,630 |
| 2018 | $376,300 | $120,000 | $0 | $496,300 | $496,300 |
| 2017 | $416,300 | $80,000 | $0 | $496,300 | $496,300 |
| 2016 | $396,480 | $80,000 | $0 | $476,480 | $476,480 |
| 2015 | $396,480 | $80,000 | $0 | $476,480 | $476,480 |
| 2014 | $377,600 | $80,000 | $0 | $457,600 | $457,600 |
| 2013 | $377,600 | $80,000 | $0 | $457,600 | $457,600 |
| 2012 | $370,200 | $80,000 | $0 | $0 | $0 |
| 2011 | $370,200 | $80,000 | $0 | $0 | $0 |
| 2010 | $370,200 | $80,000 | $0 | $0 | $0 |
| 2009 | $396,400 | $80,000 | $0 | $0 | $0 |
| 2008 | $123,800 | $80,000 | $0 | $0 | $0 |
| 2007 | $0 | $2,600 | $0 | $0 | $0 |
Deed and Sales History
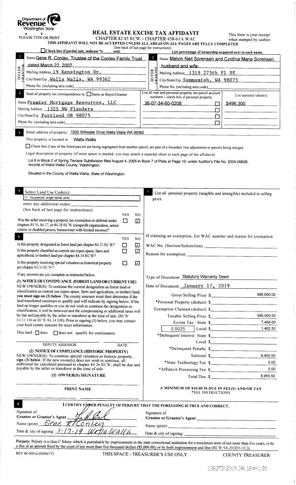
| 1 | 01/18/2019 | SWD | STATUTORY WARRANTY DEED | CONLEY FAMILY TRUST | SORENSEN MELVIN N & CYNTHIA M | | | $585,000.00 | 136272 | 2019-00397 |
| 2 | 12/12/2015 | QCD | QUIT CLAIM DEED | CONLEY GENE R & ANNETTE L | CONLEY FAMILY TRUST | | | $0.00 | 129337 | 2015-10689 |
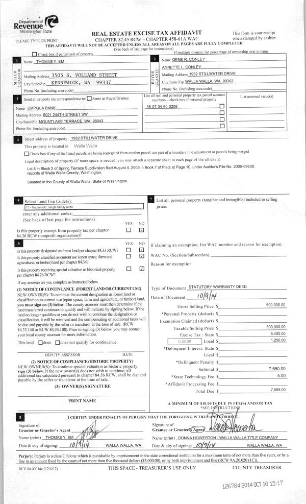
| 3 | 10/09/2014 | SWD | STATUTORY WARRANTY DEED | EM THOMAS Y | CONLEY GENE R & ANNETTE L | | | $500,000.00 | 126784 | 2014-07478 |
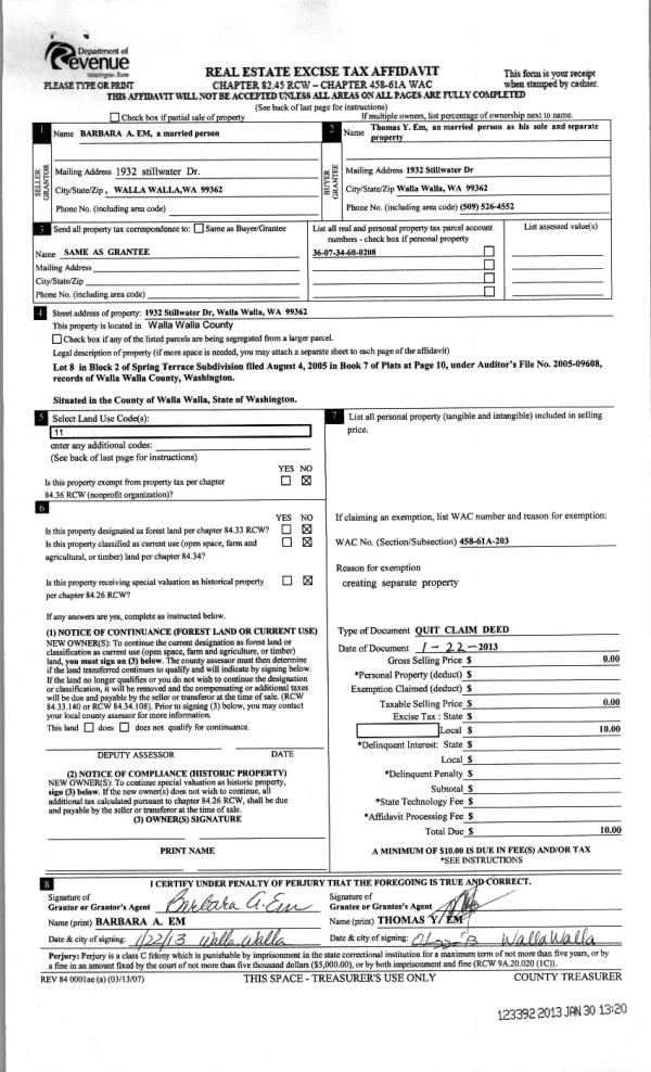
| 4 | 01/30/2013 | QCD | QUIT CLAIM DEED | EM, BARBARA A | EM, THOMAS Y | | | $0.00 | 123392 | 2013-00858 |
| 5 | 01/28/2008 | WARRANTY D | WARRANTY DEED | SOUTH WILBUR LLC | EM, THOMAS Y. & BARBARA A | | | $515,000.00 | 114439 | 2008-00807 |
| 6 | 08/05/2005 | WARRANTY D | WARRANTY DEED | "CRAIG, ANNETTE V" | SOUTH WILBUR LLC | | | | 108163 | 2005-09679 |
Payout Agreement
| No payout information available.. |