Property
Account |
| Property ID: | 18595 | Abbreviated Legal Description: | 14-6-35 TRACT D OF S/P (SLY 223' OF ELY PTN TAX 19 LESS WLY STRIP) |
| Parcel Number: | 350614110040 | Agent Code: | |
| Type: | Real | | |
| Tax Area: | 311 - 250-4 | Land Use Code | 91 |
| Open Space: | N | DFL | N |
| Historic Property: | N | Remodel Property: | N |
| Multi-Family Redevelopment: | N | | |
| Township: | 6 | Section: | 14 |
| Range: | 35 |
Location |
| Address: | 24 SHANE PORTER RD WA 99324 | Mapsco: | |
| Neighborhood: | G Land Only Rural | Map ID: | |
| Neighborhood CD: | 214093 |
Owner |
| Name: | DRAIN DAVID P & NATALIE A | Owner ID: | 57964 |
| Mailing Address: | 21806 NE 17TH COURT SAMMAMISH, WA 98074 | % Ownership: | 100.0000000000% |
| | | Exemptions: | |
Taxes and Assessment Details
Values
| (+) Improvement Homesite Value: | + | $0 | |
| (+) Improvement Non-Homesite Value: | + | $0 | |
| (+) Land Homesite Value: | + | $0 | |
| (+) Land Non-Homesite Value: | + | $129,960 | |
| (+) Curr Use (HS): | + | $0 | $0 |
| (+) Curr Use (NHS): | + | $0 | $0 |
| | | -------------------------- | |
| (=) Market Value: | = | $129,960 | |
| (–) Productivity Loss: | – | $0 | |
| | | -------------------------- | |
| (=) Subtotal: | = | $129,960 | |
| (+) Senior Appraised Value: | + | $0 | |
| (+) Non-Senior Appraised Value: | + | $129,960 | |
| | | -------------------------- | |
| (=) Total Appraised Value: | = | $129,960 | |
| (–) Senior Exemption Loss: | – | $0 | |
| (–) Exemption Loss: | – | $0 | |
| | | -------------------------- | |
| (=) Taxable Value: | = | $129,960 | |
Taxing Jurisdiction
| Owner: | DRAIN DAVID P & NATALIE A | | |
| % Ownership: | 100.0000000000% | | |
| Total Value: | $129,960 | | |
| Tax Area: | 311 - 250-4 |
| CERFD | CURRENT EXPENSE REFUND 010 | 0.0000000000 | $129,960 | $129,960 | $0.00 | | |
| CURREXP | CURRENT EXPENSE 010 | 1.0175366760 | $129,960 | $129,960 | $132.24 | | |
| HUMNSERV | HUMAN SERVICES 119 | 0.0250000000 | $129,960 | $129,960 | $3.25 | | |
| SLDREL | SOLDIERS RELIEF 121 | 0.0155990005 | $129,960 | $129,960 | $2.03 | | |
| EMERGSER | EMS 147 | 0.3792580840 | $129,960 | $129,960 | $49.29 | | |
| EMSRFD | EMS REFUND 147 | 0.0000000000 | $129,960 | $129,960 | $0.00 | | |
| FD4EXP | FD #4 EXPENSE 686 | 0.8836993059 | $129,960 | $129,960 | $114.85 | | |
| RLBRFD | RURAL LIBRARY REFUND 623 | 0.0000000000 | $129,960 | $129,960 | $0.00 | | |
| RURALLIB | RURAL LIBRARY 623 | 0.3710609029 | $129,960 | $129,960 | $48.22 | | |
| PORTRFD | PORT REFUND 640 | 0.0000000000 | $129,960 | $129,960 | $0.00 | | |
| PORTWWGEN | PORT OF WW 640 | 0.2460186015 | $129,960 | $129,960 | $31.97 | | |
| SD250BOND | SD #250 BOND 773 | 1.4560608159 | $129,960 | $129,960 | $189.23 | | |
| SD250GEN | SD #250 GENERAL 770 | 2.3880724087 | $129,960 | $129,960 | $310.35 | | |
| ST2 | STATE SCHOOL PART 2 600 | 0.8131451643 | $129,960 | $129,960 | $105.68 | | |
| STATESCHL | STATE SCHOOL 600 | 1.5158548041 | $129,960 | $129,960 | $197.00 | | |
| STREFUND | STATE REFUND LEVY 603 | 0.0000000000 | $129,960 | $129,960 | $0.00 | | |
| COROAD | COUNTY ROAD 115 | 1.6549953990 | $129,960 | $129,960 | $215.08 | | |
| CRPRD | COUNTY ROAD REFUND 115 | 0.0000000000 | $129,960 | $129,960 | $0.00 | | |
| | Total Tax Rate: | 10.7663011628 | | | | | |
| | | | | Taxes w/Current Exemptions: | $1,399.19 | | |
| | | | | Taxes w/o Exemptions: | $1,399.19 | | |
Improvement / Building
Sketch
| No sketches available for this property. |
Property Image
Land
| 1 | RES 1 | Converted: Residential | 2.9800 | 129808.80 | 0.00 | 0.00 | 1.00 | $129,960 | $0 |
Roll Value History
| 2026 | N/A | N/A | N/A | N/A | N/A |
| 2025 | $527,620 | $129,960 | $0 | $657,580 | $657,580 |
| 2024 | $0 | $129,960 | $0 | $129,960 | $129,960 |
| 2023 | $0 | $129,960 | $0 | $129,960 | $129,960 |
| 2022 | $0 | $129,960 | $0 | $129,960 | $129,960 |
| 2021 | $0 | $129,960 | $0 | $129,960 | $129,960 |
| 2020 | $0 | $90,000 | $0 | $90,000 | $90,000 |
| 2019 | $0 | $90,000 | $0 | $90,000 | $90,000 |
| 2018 | $0 | $90,000 | $0 | $90,000 | $90,000 |
| 2017 | $0 | $90,000 | $0 | $90,000 | $90,000 |
| 2016 | $0 | $90,000 | $0 | $90,000 | $90,000 |
| 2015 | $0 | $90,000 | $0 | $90,000 | $90,000 |
| 2014 | $0 | $90,000 | $0 | $90,000 | $90,000 |
| 2013 | $0 | $90,000 | $0 | $90,000 | $90,000 |
| 2012 | $0 | $135,000 | $0 | $0 | $0 |
| 2011 | $0 | $135,000 | $0 | $0 | $0 |
| 2010 | $0 | $155,000 | $0 | $0 | $0 |
| 2009 | $0 | $70,000 | $0 | $0 | $0 |
| 2008 | $0 | $11,900 | $0 | $0 | $0 |
| 2007 | $0 | $11,900 | $0 | $0 | $0 |
Deed and Sales History
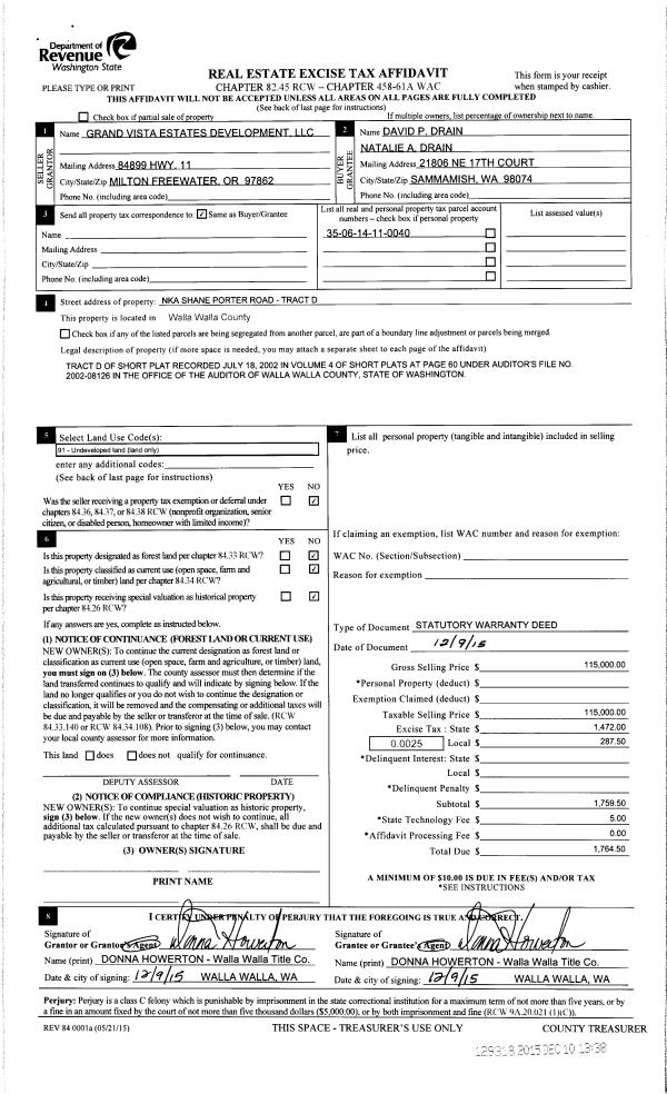
| 1 | 12/10/2015 | SWD | STATUTORY WARRANTY DEED | GRAND VISTA ESTATES DEV LLC | DRAIN DAVID P & NATALIE A | | | $115,000.00 | 129318 | 2015-10548 |
| 2 | 12/10/2007 | WARRANTY D | WARRANTY DEED | "STROHMAIER, JANICE K" | GRAND VISTA ESTATES DEV LLC | | | | 114208 | 2007-14039 |
Payout Agreement
| No payout information available.. |