Property
Account |
| Property ID: | 18594 | Abbreviated Legal Description: | 14-6-35 TRACT C OF S/P (PTN WITHIN ELY PT TAX 19) |
| Parcel Number: | 350614110039 | Agent Code: | |
| Type: | Real | | |
| Tax Area: | 311 - 250-4 | Land Use Code | 11 |
| Open Space: | N | DFL | N |
| Historic Property: | N | Remodel Property: | N |
| Multi-Family Redevelopment: | N | | |
| Township: | 6 | Section: | 14 |
| Range: | 35 |
Location |
| Address: | 64 SHANE PORTER RD WA 99362 | Mapsco: | |
| Neighborhood: | G SFR Rural | Map ID: | |
| Neighborhood CD: | 214013 |
Owner |
| Name: | CLARK ROGER H & PATRICIA B | Owner ID: | 57711 |
| Mailing Address: | 11436 SE 208TH ST #70 KENT, WA 98031 | % Ownership: | 100.0000000000% |
| | | Exemptions: | |
Taxes and Assessment Details
Property Tax Information as of
02/21/2026
Click on "Statement Details" to expand or collapse a tax statement.
* Please enter a valid date ** Please enter a valid date *
Statement Details |
| | TOTAL: | $0.00 | $0.00 | $0.00 | $0.00 | $0.00 | $0.00 |
|
| | $0.00 | $0.00 | $0.00 | $0.00 | $0.00 | $0.00 |
Values
| (+) Improvement Homesite Value: | + | $0 | |
| (+) Improvement Non-Homesite Value: | + | $568,130 | |
| (+) Land Homesite Value: | + | $0 | |
| (+) Land Non-Homesite Value: | + | $129,960 | |
| (+) Curr Use (HS): | + | $0 | $0 |
| (+) Curr Use (NHS): | + | $0 | $0 |
| | | -------------------------- | |
| (=) Market Value: | = | $698,090 | |
| (–) Productivity Loss: | – | $0 | |
| | | -------------------------- | |
| (=) Subtotal: | = | $698,090 | |
| (+) Senior Appraised Value: | + | $0 | |
| (+) Non-Senior Appraised Value: | + | $698,090 | |
| | | -------------------------- | |
| (=) Total Appraised Value: | = | $698,090 | |
| (–) Senior Exemption Loss: | – | $0 | |
| (–) Exemption Loss: | – | $0 | |
| | | -------------------------- | |
| (=) Taxable Value: | = | $698,090 | |
Taxing Jurisdiction
| Owner: | CLARK ROGER H & PATRICIA B | | |
| % Ownership: | 100.0000000000% | | |
| Total Value: | $698,090 | | |
| Tax Area: | 311 - 250-4 |
| CERFD | CURRENT EXPENSE REFUND 010 | 0.0000000000 | $698,090 | $698,090 | $0.00 | | |
| CURREXP | CURRENT EXPENSE 010 | 1.0175366760 | $698,090 | $698,090 | $710.33 | | |
| HUMNSERV | HUMAN SERVICES 119 | 0.0250000000 | $698,090 | $698,090 | $17.45 | | |
| SLDREL | SOLDIERS RELIEF 121 | 0.0155990005 | $698,090 | $698,090 | $10.89 | | |
| EMERGSER | EMS 147 | 0.3792580840 | $698,090 | $698,090 | $264.76 | | |
| EMSRFD | EMS REFUND 147 | 0.0000000000 | $698,090 | $698,090 | $0.00 | | |
| FD4EXP | FD #4 EXPENSE 686 | 0.8836993059 | $698,090 | $698,090 | $616.90 | | |
| RLBRFD | RURAL LIBRARY REFUND 623 | 0.0000000000 | $698,090 | $698,090 | $0.00 | | |
| RURALLIB | RURAL LIBRARY 623 | 0.3710609029 | $698,090 | $698,090 | $259.03 | | |
| PORTRFD | PORT REFUND 640 | 0.0000000000 | $698,090 | $698,090 | $0.00 | | |
| PORTWWGEN | PORT OF WW 640 | 0.2460186015 | $698,090 | $698,090 | $171.74 | | |
| SD250BOND | SD #250 BOND 773 | 1.4560608159 | $698,090 | $698,090 | $1,016.46 | | |
| SD250GEN | SD #250 GENERAL 770 | 2.3880724087 | $698,090 | $698,090 | $1,667.09 | | |
| ST2 | STATE SCHOOL PART 2 600 | 0.8131451643 | $698,090 | $698,090 | $567.65 | | |
| STATESCHL | STATE SCHOOL 600 | 1.5158548041 | $698,090 | $698,090 | $1,058.20 | | |
| STREFUND | STATE REFUND LEVY 603 | 0.0000000000 | $698,090 | $698,090 | $0.00 | | |
| COROAD | COUNTY ROAD 115 | 1.6549953990 | $698,090 | $698,090 | $1,155.34 | | |
| CRPRD | COUNTY ROAD REFUND 115 | 0.0000000000 | $698,090 | $698,090 | $0.00 | | |
| | Total Tax Rate: | 10.7663011628 | | | | | |
| | | | | Taxes w/Current Exemptions: | $7,515.84 | | |
| | | | | Taxes w/o Exemptions: | $7,515.84 | | |
Improvement / Building
| Improvement #1: | RESIDENTIAL | State Code: | 11 | 2076.0 sqft | Value: | $568,130 |
| Exterior Wall: | HARDBOARD | Heating/Cooling: | WARM & COOLED AIR | | Number of Bathrooms: | 2.5 | Number of Bedrooms: | 3 | | Plumbing: | 13 | Roof Covering: | COMP SHINGLE |
|
| | Type | Description | Class CD | Sub Class CD | Year Built | Area |
| | MA | Main Area | 1 | 40 | 2016 | 2076.0 |
| | ATG | Attached Garage | 1 | 40 | 2016 | 695.0 |
| | RPC | OPEN PORCH W/ROOF , CEILED | 1 | 40 | 2016 | 81.0 |
| | GFP | GAS FIREPLACE | 1 | 40 | 2016 | 1.0 |
| | SI1 | SITE IMPROVEMENT | 1 | 40 | 2016 | 3.0 |
| | RPC | OPEN PORCH W/ROOF , CEILED | 1 | 40 | 2016 | 224.0 |
Sketch
Property Image
Land
| 1 | RES 1 | Converted: Residential | 2.9800 | 129808.80 | 0.00 | 0.00 | 1.00 | $129,960 | $0 |
Roll Value History
| 2026 | N/A | N/A | N/A | N/A | N/A |
| 2025 | $624,940 | $129,960 | $0 | $754,900 | $754,900 |
| 2024 | $568,130 | $129,960 | $0 | $698,090 | $698,090 |
| 2023 | $568,130 | $129,960 | $0 | $698,090 | $698,090 |
| 2022 | $568,130 | $129,960 | $0 | $698,090 | $698,090 |
| 2021 | $344,320 | $129,960 | $0 | $474,280 | $474,280 |
| 2020 | $296,930 | $90,000 | $0 | $386,930 | $386,930 |
| 2019 | $296,930 | $90,000 | $0 | $386,930 | $386,930 |
| 2018 | $296,930 | $90,000 | $0 | $386,930 | $386,930 |
| 2017 | $282,790 | $90,000 | $0 | $372,790 | $372,790 |
| 2016 | $239,200 | $90,000 | $0 | $329,200 | $329,200 |
| 2015 | $0 | $90,000 | $0 | $90,000 | $90,000 |
| 2014 | $0 | $90,000 | $0 | $90,000 | $90,000 |
| 2013 | $0 | $90,000 | $0 | $90,000 | $90,000 |
| 2012 | $0 | $135,000 | $0 | $0 | $0 |
| 2011 | $0 | $135,000 | $0 | $0 | $0 |
| 2010 | $0 | $155,000 | $0 | $0 | $0 |
| 2009 | $0 | $70,000 | $0 | $0 | $0 |
| 2008 | $0 | $11,900 | $0 | $0 | $0 |
| 2007 | $0 | $11,900 | $0 | $0 | $0 |
Deed and Sales History
| 1 | 06/13/2025 | SWD | STATUTORY WARRANTY DEED | CLARK ROGER H | SMITH FAMILY TRUST | | | $885,000.00 | 149532 | 2025-03352 |
| 2 | 05/29/2025 | COMMUNITY | COMMUNITY PROPERTY AGREEMENT | CLARK ROGER H & PATRICIA B | CLARK ROGER H | | | | 0 | 2025-03005 |
| 3 | | DEATH CERT | DEATH CERTIFICATE | CLARK PATRICIA BARBARA | | | | | 0 | SEE IMAGES |
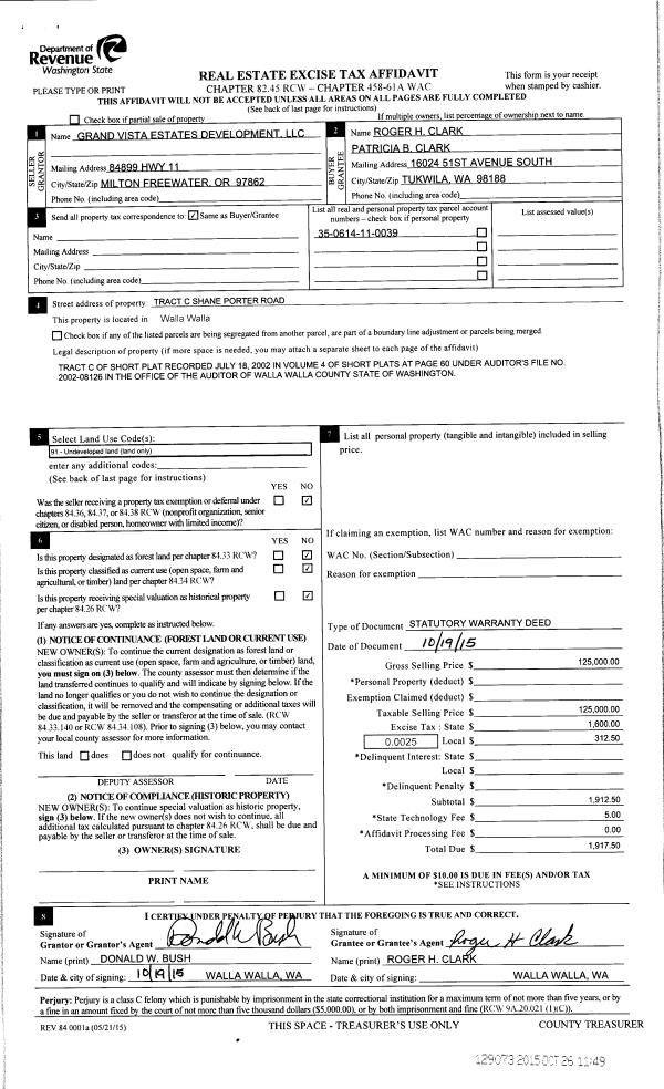
| 4 | 10/26/2015 | SWD | STATUTORY WARRANTY DEED | GRAND VISTA ESTATES DEV LLC | CLARK ROGER H & PATRICIA B | | | $125,000.00 | 129073 | 2015-09346 |
| 5 | 12/10/2007 | WARRANTY D | WARRANTY DEED | "STROHMAIER, JANICE K" | GRAND VISTA ESTATES DEV LLC | | | | 114208 | 2007-14039 |
Payout Agreement
| No payout information available.. |