Property
Account |
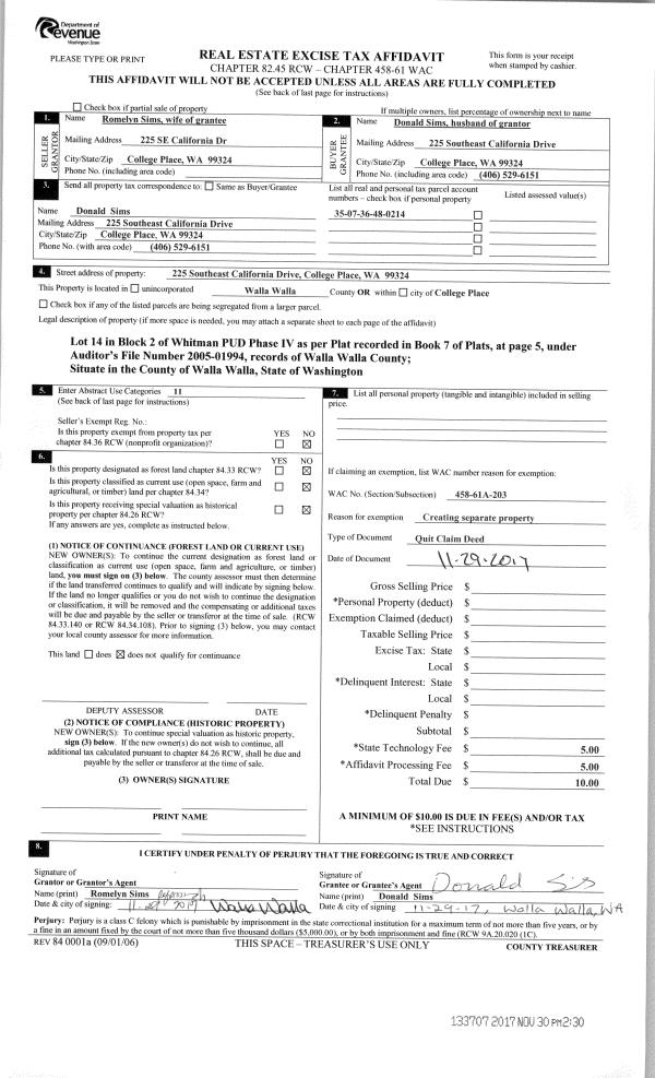
| Property ID: | 18588 | Abbreviated Legal Description: | WHITMAN P.U.D. PHASE IV LOT 14 BLOCK 2 |
| Parcel Number: | 350736480214 | Agent Code: | |
| Type: | Real | | |
| Tax Area: | 75 - CP 250 | Land Use Code | 11 |
| Open Space: | N | DFL | N |
| Historic Property: | N | Remodel Property: | N |
| Multi-Family Redevelopment: | N | | |
| Township: | | Section: | |
| Range: | |
Location |
| Address: | 225 SE CALIFORNIA AVE WA 99324 | Mapsco: | |
| Neighborhood: | A SFR | Map ID: | |
| Neighborhood CD: | 113011 |
Owner |
| Name: | SIMS DONALD | Owner ID: | 62151 |
| Mailing Address: | 225 SE CALIFORNIA DR COLLEGE PLACE, WA 99324 | % Ownership: | 100.0000000000% |
| | | Exemptions: | |
Taxes and Assessment Details
Values
| (+) Improvement Homesite Value: | + | $0 | |
| (+) Improvement Non-Homesite Value: | + | $267,880 | |
| (+) Land Homesite Value: | + | $0 | |
| (+) Land Non-Homesite Value: | + | $130,000 | |
| (+) Curr Use (HS): | + | $0 | $0 |
| (+) Curr Use (NHS): | + | $0 | $0 |
| | | -------------------------- | |
| (=) Market Value: | = | $397,880 | |
| (–) Productivity Loss: | – | $0 | |
| | | -------------------------- | |
| (=) Subtotal: | = | $397,880 | |
| (+) Senior Appraised Value: | + | $0 | |
| (+) Non-Senior Appraised Value: | + | $397,880 | |
| | | -------------------------- | |
| (=) Total Appraised Value: | = | $397,880 | |
| (–) Senior Exemption Loss: | – | $0 | |
| (–) Exemption Loss: | – | $0 | |
| | | -------------------------- | |
| (=) Taxable Value: | = | $397,880 | |
Taxing Jurisdiction
| Owner: | SIMS DONALD | | |
| % Ownership: | 100.0000000000% | | |
| Total Value: | $397,880 | | |
| Tax Area: | 75 - CP 250 |
| CERFD | CURRENT EXPENSE REFUND 010 | 0.0000000000 | $397,880 | $397,880 | $0.00 | | |
| CURREXP | CURRENT EXPENSE 010 | 0.9851088983 | $397,880 | $397,880 | $391.96 | | |
| HUMNSERV | HUMAN SERVICES 119 | 0.0250000000 | $397,880 | $397,880 | $9.95 | | |
| SLDREL | SOLDIERS RELIEF 121 | 0.0155990000 | $397,880 | $397,880 | $6.21 | | |
| COLLPLBOND | C OF CP BOND 644 | 0.3846009312 | $397,880 | $397,880 | $153.03 | | |
| COLLPLGEN | CITY OF CP 632 | 1.4193088888 | $397,880 | $397,880 | $564.71 | | |
| EMERGSER | EMS 147 | 0.3676811629 | $397,880 | $397,880 | $146.29 | | |
| EMSRFD | EMS REFUND 147 | 0.0000000000 | $397,880 | $397,880 | $0.00 | | |
| RLBRFD | RURAL LIBRARY REFUND 623 | 0.0000000000 | $397,880 | $0 | $0.00 | | |
| RURALLIB | RURAL LIBRARY 623 | 0.0000000000 | $397,880 | $0 | $0.00 | | |
| PORTRFD | PORT REFUND 640 | 0.0000000000 | $397,880 | $397,880 | $0.00 | | |
| PORTWWGEN | PORT OF WW 640 | 0.2344301070 | $397,880 | $397,880 | $93.28 | | |
| SD250BOND | SD #250 BOND 773 | 1.3740031235 | $397,880 | $397,880 | $546.69 | | |
| SD250GEN | SD #250 GENERAL 770 | 2.4999999988 | $397,880 | $397,880 | $994.70 | | |
| ST2 | STATE SCHOOL PART 2 600 | 0.8853714103 | $397,880 | $397,880 | $352.27 | | |
| STATESCHL | STATE SCHOOL 600 | 1.6424571473 | $397,880 | $397,880 | $653.50 | | |
| STREFUND | STATE REFUND LEVY 603 | 0.0000000000 | $397,880 | $397,880 | $0.00 | | |
| | Total Tax Rate: | 9.8335606681 | | | | | |
| | | | | Taxes w/Current Exemptions: | $3,912.59 | | |
| | | | | Taxes w/o Exemptions: | $3,912.59 | | |
Improvement / Building
| Improvement #1: | RESIDENTIAL | State Code: | 11 | 1848.0 sqft | Value: | $267,880 |
| Exterior Wall: | HARDBOARD | Foundation: | SLAB FOUNDATION | | Heating/Cooling: | HEAT PUMP | Number of Bathrooms: | 2.5 | | Number of Bedrooms: | 4 | Plumbing: | 13 | | Roof Covering: | COMP SHINGLE |   |   |
|
| | Type | Description | Class CD | Sub Class CD | Year Built | Area |
| | MA | Main Area | 2 | 35 | 2007 | 1848.0 |
| | UPFL | Upper Floor (included in main area) | 2 | 35 | 2007 | 912.0 |
| | ATG | Attached Garage | 2 | 35 | 2007 | 484.0 |
| | RPC | OPEN PORCH W/ROOF , CEILED | 2 | 35 | 2007 | 120.0 |
| | GFP | GAS FIREPLACE | 2 | 35 | 2007 | 1.0 |
| | SI1 | SITE IMPROVEMENT | 2 | 35 | 2007 | 2.5 |
Sketch
Property Image
Land
| 1 | RES 1 | Converted: Residential | 0.1201 | 5230.00 | 0.00 | 0.00 | 1.00 | $130,000 | $0 |
Roll Value History
| 2026 | N/A | N/A | N/A | N/A | N/A |
| 2025 | $267,880 | $130,000 | $0 | $397,880 | $397,880 |
| 2024 | $357,180 | $70,000 | $0 | $427,180 | $427,180 |
| 2023 | $357,180 | $70,000 | $0 | $427,180 | $427,180 |
| 2022 | $264,580 | $70,000 | $0 | $334,580 | $334,580 |
| 2021 | $251,980 | $70,000 | $0 | $321,980 | $321,980 |
| 2020 | $209,980 | $70,000 | $0 | $279,980 | $279,980 |
| 2019 | $234,980 | $45,000 | $0 | $279,980 | $279,980 |
| 2018 | $195,820 | $45,000 | $0 | $240,820 | $240,820 |
| 2017 | $190,110 | $45,000 | $0 | $235,110 | $235,110 |
| 2016 | $172,830 | $45,000 | $0 | $217,830 | $217,830 |
| 2015 | $172,830 | $45,000 | $0 | $217,830 | $217,830 |
| 2014 | $164,600 | $45,000 | $0 | $209,600 | $209,600 |
| 2013 | $173,300 | $45,000 | $0 | $218,300 | $218,300 |
| 2012 | $157,800 | $65,000 | $0 | $0 | $0 |
| 2011 | $169,500 | $65,000 | $0 | $0 | $0 |
| 2010 | $169,500 | $65,000 | $0 | $0 | $0 |
| 2009 | $181,800 | $65,000 | $0 | $0 | $0 |
| 2008 | $214,000 | $30,000 | $0 | $0 | $0 |
| 2007 | $0 | $2,400 | $0 | $0 | $0 |
Deed and Sales History
| 1 | 11/30/2017 | QCD | QUIT CLAIM DEED | SIMS ROMELYN | SIMS DONALD | | | | 133707 | 2017-09582 |
| 2 | 11/30/2017 | SWD | STATUTORY WARRANTY DEED | PALOUSE FALLS INVESTOR GROUP LLC | SIMS DONALD | | | $247,000.00 | 133706 | 2017-09581 |
| 3 | 11/30/2007 | WARRANTY D | WARRANTY DEED | ROFF HOMES INC | PALOUSE FALLS INVESTOR GROUP LLC | | | $408,000.00 | 114172 | 2007-13695 |
|   | |
| 4 | 01/31/2007 | WARRANTY D | WARRANTY DEED | WHITMAN DEVELOPMENT CORP | ROFF HOMES INC | | | $291,500.00 | 112167 | 2007-01240 |
|   | |
Payout Agreement
| No payout information available.. |